Beschrijving

Wonen aan de Den Herd in Berkel-Enschot

Gelegen in een rustig hofje van Berkel-Enschot, straalt de Den Herd een heerlijke balans uit tussen geborgenheid en ruimte. Kindvriendelijk en groen, met een speeltuin voor de deur, is dit de ideale omgeving voor gezinnen die dichtbij elkaar willen wonen en tegelijkertijd willen genieten van rust en privacy. Winkels, scholen en sportfaciliteiten zijn eenvoudig bereikbaar, terwijl de steden Tilburg en ‘s-Hertogenbosch binnen handbereik liggen. Wonen hier betekent elke dag opstaan in een fijne, levendige buurt met een echte dorpssfeer, waar comfort en gezelligheid hand in hand gaan.

Sfeervol, royaal en toekomstbestendig

Ruimte en flexibiliteit
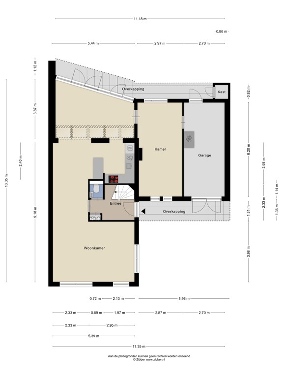
Deze twee-onder-één-kap woning van 167 m² biedt volop mogelijkheden. Met maar liefst vijf mogelijkheid tot zes slaapkamers, waarvan die mogelijkheid ligt op de begane grond, is het huis ideaal voor gezinnen, thuiswerkers of zelfs een praktijkruimte aan huis. De voormalige garage is nu een extra slaapkamer, volledig geïsoleerd en voorzien van airco, waardoor hij zowel privé als professioneel inzetbaar is.

Licht en leefcomfort
De begane grond is aan de achterzijde uitgebouwd en voorzien van een lichtstraat, waardoor het eetgedeelte en de keuken een overvloed aan natuurlijk licht ontvangen. De woonkamer in U-vorm heeft een zitgedeelte aan de voorzijde en een eetgedeelte aan de achterzijde, perfect voor gezellige diners of ontspannende avonden. De keuken is modern en praktisch ingericht met een 4-pits inductieplaat, oven, afzuiging, koelkast en vaatwasser.

Luxe badkamer en comfort
De ruime badkamer van 2,97 x 2,68 m is uitgerust met een dubbele wastafel, toilet, inloopdouche en vloerverwarming (elektrisch), waardoor elke ochtend begint met een vleugje luxe. Vloerverwarming strekt zich ook uit over de keuken, eetkamer en slaapkamer op de begane grond, wat het wooncomfort verhoogt.

Slaapcomfort en klimaatbeheersing
Op de eerste verdieping bevinden zich drie slaapkamers, waarvan de hoofdslaapkamer is voorzien van inbouwkasten, openslaande deuren en zonnewering. Een airco op de overloop zorgt voor extra comfort tijdens warme dagen, terwijl een tweede airco in de voormalige garage of extra slaapkamer het klimaat op maat maakt. De tweede verdieping biedt een voorzolder met wasruimte en CV en twee ruime slaapkamers met inbouwkasten.

Buiten leven en privacy
De tuin biedt veel privacy en is voorzien van een overkapping, zonnescherm en een oude buitendouche voor zomerse verfrissing. Een nieuwe garage biedt ruimte voor één auto en extra opslag, en de grote oprit biedt plek voor twee auto’s naast elkaar. Hier combineer je praktische mogelijkheden met een ontspannen buitenleven.

Duurzaam en energiezuinig
Met 14 zonnepanelen en goed geïsoleerde vloeren, gevel en dak is deze woning toekomstbestendig. Energielabel B garandeert een energiezuinig en comfortabel thuis voor nu en de toekomst.

Pluspunten van deze woning
•	Bouwjaar: 1993
•	Woonoppervlak: 167 m²
•	Twee-onder-één-kap woning met 5 (6) slaapkamers
•	CV-ketel 2009
•	In 2024 gerenoveerd
•	Energielabel B 
•	Fijn wonen in een rustig hofje van Berkel-Enschot
•	NEN 2580 meetrapport*

Bezichtiging en contact
Wil je deze bijzondere woning met zijn vele mogelijkheden bezichtigen?
Dat begrijpen wij heel goed!

Bel of mail ons dan voor een afspraak:
Tel: 013 - 30 33 195
Mail: info@viapaulmakelaardij.nl

Via wie?
Via Paul Makelaardij natuurlijk!
Via wie anders?

*De NEN 2580 meetnorm is een eenduidige meetnorm, waarbij met bepaalde richtlijnen rekening gehouden wordt. Zo wordt o.a. een zolder zonder vaste trap of met een lichtoppervlakte (bv dakraam) kleiner dan 0,5 m² niet tot de woonoppervlakte gerekend. Hierdoor kan de woonoppervlakte soms kleiner lijken dan de daadwerkelijke vloeroppervlakte en kleiner lijken bij vergelijkbare woningen waar de makelaar de meetnorm niet toe heeft gepast. Ondanks het feit dat de meetnorm verplicht is, hanteren niet alle makelaars consequent de norm. Via Paul Makelaardij laat haar woningen inmeten door een erkend bedrijf. Het meetrapport van deze woning is dan ook, indien gewenst, ter inzage.

Ten aanzien van deze verkoopbrochure zijn de gegevens in deze brochure met de grootste zorg samengesteld. Voor de juistheid van de verstrekte informatie zijn wij in grote mate afhankelijk van derden. Aan vermelde tekst, maten en bijgevoegde tekeningen kunnen derhalve geen rechten worden ontleend aan Via Paul Makelaardij.

Kenmerken