Beschrijving

RAPELLA 6 BERKEL-ENSCHOT

Deze sfeervolle, ruime, eengezinswoning bevindt zich aan de rand van Berkel-Enschot in een rustige straat in een van de populairste wijken van Berkel Enschot (De Hoge Hoek)! Door de centrale ligging heb je werkelijk alles binnen handbereik. Basisschool, Sportclubs, bushalte, en het gezellige nieuwe winkelcentrum (Koningsoord) van Berkel-Enschot. De spoorzone van Tilburg is met de fiets makkelijk bereikbaar en via de diverse uitvalswegen ben je zo in Den Bosch, Breda en Eindhoven. De woning is perfect afgewerkt en zou qua styling zo in een woonblad kunnen. Deze woning is zeker het bezichtigen waard.

BEGANE GROND:

Entree: Via de vensters in en naast de voordeur valt lekker veel daglicht de entree binnen. Je vindt hier de meterkast, het toilet en de trap naar de eerste verdieping. Op de vloer liggen grijze tegels, met vloerverwarming, die mooi doorlopen over de gehele begane grond.

Woonkamer: Bij binnenkomst valt meteen op hoe ruim deze living is. Hier is ruimte genoeg voor een royale zithoek en een gezellige eettafel. De openslaande tuindeuren in de achtergevel, zorgen voor veel lichtinval en een gezellig contact met de achtertuin. Vanuit de living heb je ook toegang tot de berging onder de trap naar de eerste verdieping.

Keuken: De strakke moderne keuken bevindt zich aan de voorzijde van de woning. Er is een groot kookeiland voorzien van een inductiekookplaat en een geïntegreerde afzuigkap. Tegen de wand vind je het aanrecht met de spoelbak, een Quooker en een vaatwasser. In de kastenwand ernaast de koel-vriescombinatie en de combi-stoomoven/combi-magnetron op ooghoogte. Hier bereid je allerlei lekkere gerechten voor je hele familie en al je vrienden, terwijl zij al lekker van een drankje genieten aan de bar van het kookeiland.

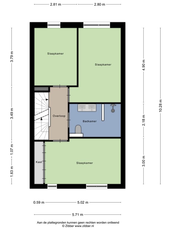
EERSTE VERDIEPING:

Via de vaste trap bereik je de eerste verdieping van de woning. De overloop geeft toegang tot de drie slaapkamers en de badkamer op deze verdieping. De "masterbedroom" bevindt zich aan de voorzijde van de woning en heeft een grote inbouwkastenwand. De overige 2 slaapkamers vind je aan de achterzijde van de woning. Alle slaapkamers zijn netjes afgewerkt en voorzien van een "houtlook" laminaatvloer die mooi doorloopt naar de overloop. De badkamer bevindt zich in het hart van de woning is strak gestuct en gedeeltelijk betegeld. Je hebt er de beschikking over een ruime inloopdouche, twee wastafels die mooi zijn samengevoegd in een wandmeubel, een designradiator en een zwevend toilet. De elektrische vloerverwarming in deze badkamer zorgt ervoor dat je nooit koude voeten hebt.

TWEEDE VERDIEPING:

Met een vaste trap bereik je de tweede verdieping van deze woning.  Hier bevindt zich nog een verrassing....een extra grote ruimte, te gebruiken als vierde !!! slaapkamer of kantoorruimte of....vul het zelf maar in. De dakkapel aan de voorzijde van de woning zorgt voor een volwaardige tweede verdieping. Ook deze verdieping is netjes afgewerkt en voorzien van een "houtlook" laminaatvloer. Je vindt er ook de aansluitingen voor de wasmachine en de droger. Wil je echt alles uit deze ruimte halen dan kun je hier zelfs twee slaapkamers creëren!

TUIN:

De heerlijke achtertuin ligt op het westen en vangt dus tot laat in de avond veel zonnestralen. Ook tijdens een regenbuitje kun je, onder de royale overkapping (10 m2), optimaal blijven genieten van je tuin. De tuin is onderhoudsvriendelijk aangelegd met grote vierkante tegels. Door het ontbreken van directe achterburen biedt de tuin extra veel privacy. De berging naast de overkapping is ideaal voor het opbergen van je tuinspullen en het parkeren van je fiets. Je auto parkeer je op je eigen parkeerplek achter de tuin. Vanuit de tuin is deze toegankelijk via de poort naast de berging. Vanaf de straat is de parkeerplek toegankelijk via het mandelig terrein, wat is voorzien van een elektrische poort. 

- Bouwjaar 2018;
- Perceeloppervlak 183 m2;
- Woonoppervlak 171 m2;
- Inhoud  606 m3;
- NEN 2580 meetrapport*;
- Energielabel A;
- Begane grond voorzien van vloerverwarming;
- Voorzien van zonnepanelen;
- Voorzien van eigen parkeerplaats;
- Tuin voorzien van grote overkapping;
- Maandelijkse kosten mandelig terrein: €18,-.
- In rustige populaire woonwijk gelegen;
- Winkels, scholen en de diverse uitvalswegen op korte afstand gelegen.

Wil je deze bijzondere woning met zijn vele mogelijkheden bezichtigen?  
Dat begrijpen wij heel goed! 
Bel of mail ons dan voor een afspraak: 

Tel:      013 - 30 33 195 
Mail:    info@viapaulmakelaardij.nl

Via wie? 
Via Paul Makelaardij natuurlijk! 
Via wie anders?

* De NEN 2580 meetnorm is een eenduidige meetnorm, waarbij met bepaalde richtlijnen rekening gehouden wordt. Zo wordt o.a. een zolder zonder vaste trap of met een lichtoppervlakte (bv dakraam) kleiner dan 0,5 m² niet tot de woonoppervlakte gerekend. Hierdoor kan de woonoppervlakte soms kleiner lijken dan de daadwerkelijke vloeroppervlakte en kleiner lijken dan bij vergelijkbare woningen waar de makelaar de meetnorm niet toe heeft gepast. Ondanks het feit dat de meetnorm verplicht is, hanteren niet alle makelaars consequent de norm. Via Paul Makelaardij laat haar woningen inmeten door een erkend bedrijf. Het meetrapport van deze woning is dan ook, indien gewenst, ter inzage.

Ten aanzien van deze verkoopbrochure zijn de gegevens in deze brochure met de grootste zorg samengesteld. Voor de juistheid van de verstrekte informatie zijn wij in grote mate afhankelijk van derden. Aan vermelde tekst, maten en bijgevoegde tekeningen kunnen derhalve geen rechten worden ontleend. Via Paul makelaardij en de verkoper aanvaarden geen aansprakelijkheid ten aanzien van de gegevens in deze brochure.

Kenmerken