Beschrijving

BARONIELAAN 102 GOIRLE

Gedeeltelijk gerenoveerde gezinswoning op toplocatie in Goirle

Comfortabel, instapklaar én prettig wonen op een heerlijke, kindvriendelijke locatie in Goirle. Deze verrassend ruime gezinswoning is vanaf 2022 op meerdere belangrijke onderdelen gemoderniseerd en verbeterd. Diverse renovaties zijn uitgevoerd met oog voor kwaliteit, comfort en een eigentijdse uitstraling.

Zo zijn onder andere verschillende woonruimtes, afwerkingen en installaties aangepakt, wat zorgt voor een frisse en verzorgde basis om direct te kunnen wonen. Niet alle onderdelen van de woning zijn vernieuwd; de badkamer is bijvoorbeeld nog in bestaande staat, wat de nieuwe eigenaar de mogelijkheid biedt deze geheel naar eigen smaak te moderniseren.

Een fijne gezinswoning met veel pluspunten, gelegen op een aantrekkelijke locatie en met een goede balans tussen vernieuwd comfort en ruimte voor eigen wensen.

De woning is gelegen in de populaire en groene woonwijk De Hellen, op korte afstand van een speeltuin, scholen, winkels, natuur en uitvalswegen. Een ideale plek voor gezinnen die ruimte, rust en gemak zoeken.

Indeling

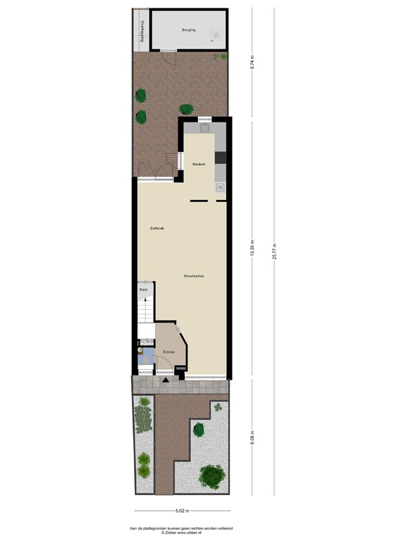
Begane grond

Via de overdekte entree betreed je de woning in de ruime hal met vernieuwde meterkast, trapopgang en een volledig nieuwe toiletruimte. Deze toiletruimte is uitgevoerd met een wandcloset, fontein, lichte wand- en vloertegels en een raampje voor daglicht en ventilatie.

De begane grond is in zijn geheel strak gestuct (wanden én plafonds) en voorzien van een nieuwe, lichte vloer. De woonkamer is verrassend ruim en licht, met aan de voorzijde een ideale werk- of speel/leeshoek met zicht op de voortuin en straat. Aan de achterzijde bevindt zich het zit-/eetgedeelte met een praktische trap-/bergkast en openslaande deuren naar de achtertuin.

Aansluitend ligt de volledig nieuwe keuken (2022), gesitueerd in de bestaande uitbouw. De keuken is uitgevoerd in een strakke witte kleurstelling met een licht composiet werkblad en voorzien van inbouwapparatuur van Whirlpool, waaronder:

* vaatwasser
* inductiekookplaat
* combi magnetron/oven
* koelkast

Alles is modern, functioneel en perfect geïntegreerd.

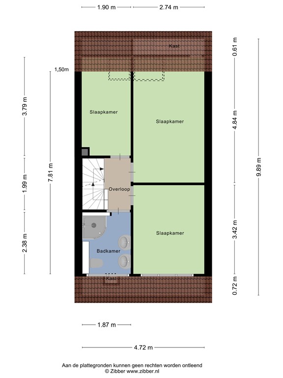
Eerste verdieping

De eerste verdieping (betonvloer) is eveneens volledig gerenoveerd: strak gestucte wanden en plafonds, nieuwe lichte laminaatvloer en nieuwe binnendeuren.

Vanaf de overloop bereik je drie slaapkamers en de badkamer. De twee slaapkamers aan de achterzijde beschikken over  Velux dakramen met screens en praktische bergruimte onder de knieschotten.

De badkamer is uitgevoerd met een toilet, twee wastafel met planchet en een doucecabine met een nieuwe thermostaatkraan en regen- met handdouche. De brede raampartij over de volle breedte voor daglicht en natuurlijke ventilatie

Tweede verdieping

Via een vaste trap bereik je de tweede verdieping. Op de voorzolder bevinden zich:

- aansluiting voor wasmachine/droger
- Remeha CV-ketel (2022)

Vanaf de voorzolder heb je toegang tot een bergzolder via een luik  en toegang tot de ruime vierde slaapkamer, voorzien van radiator en een groot dakraam met dubbele beglazing. De gehele tweede verdieping is voorzien van een nieuwe vloer, gelijk aan de rest van de woning. Het dak is na-geïsoleerd en afgewerkt met gipsplaten en strak stucwerk.

Tuin

De woning beschikt over een onderhoudsvriendelijke voor- en achtertuin.
De voortuin is netjes aangelegd met grindperken, beplanting en een looppad naar de (nieuwe) voordeur.

De geheel omsloten achtertuin is volledig bestraat en beschikt over:

- zonnescherm
- berging voorzien van elektra
- overkapte achterom
- buitenverlichting
- buitenkraan

Woonomgeving

De woning ligt op een rustige, groene locatie in de geliefde woonwijk De Hellen. Speeltuin, scholen en winkels zijn op loop- en fietsafstand gelegen. Het centrum van Goirle, Tilburg én de uitvalswegen richting Breda, Eindhoven en ’s-Hertogenbosch zijn snel en eenvoudig bereikbaar.

Bijzonderheden

- Volledig gerenoveerd vanaf 2022 en later;
- Bouwjaar: 1982;
- Gebruiksoppervlakte wonen: ca. 112 m²;
- Externe bergruimte: ca. 8 m²;
- Perceeloppervlakte: 132 m²;
- Inhoud: 397 m³;
- Energielabel B (geldig tot 03-05-2031);
- Nieuwe keuken, toiletruimte, vloeren, stucwerk, deuren, dakramen en installaties;
- CV-ketel Remeha (2022);
- NEN 2580 meetrapport*.

Wil je deze bijzondere woning met zijn vele mogelijkheden bezichtigen?
Dat begrijpen wij heel goed!
Bel of mail ons dan voor een afspraak:

Tel: 013 - 30 33 195
Mail: info@viapaulmakelaardij.nl

Via wie?
Via Paul Makelaardij natuurlijk!
Via wie anders?

* De NEN 2580 meetnorm is een eenduidige meetnorm, waarbij met bepaalde richtlijnen rekening gehouden wordt. Zo wordt o.a. een zolder zonder vaste trap of met een lichtoppervlakte (bv dakraam) kleiner dan 0,5 m² niet tot de woonoppervlakte gerekend. Hierdoor kan de woonoppervlakte soms kleiner lijken dan de daadwerkelijke vloeroppervlakte en kleiner lijken dan bij vergelijkbare woningen waar de makelaar de meetnorm niet toe heeft gepast. Ondanks het feit dat de meetnorm verplicht is, hanteren niet alle makelaars consequent de norm. Via Paul Makelaardij laat haar woningen inmeten door een erkend bedrijf. Het meetrapport van deze woning is dan ook, indien gewenst, ter inzage.

Ten aanzien van deze verkoopbrochure zijn de gegevens in deze brochure met de grootste zorg samengesteld. Voor de juistheid van de verstrekte informatie zijn wij in grote mate afhankelijk van derden. Aan vermelde tekst, maten en bijgevoegde tekeningen kunnen derhalve geen rechten worden ontleend. Via Paul makelaardij en de verkoper aanvaarden geen aansprakelijkheid ten aanzien van de gegevens in deze brochure.

Kenmerken