Beschrijving

GROOT KRAAIVENSTRAAT 21 GOIRLE

Wonen in Goirle

Aan een rustige woonstraat in het geliefde Goirle ligt deze vrijstaande woning met volop mogelijkheden. Goirle staat bekend om zijn dorpse charme met alle voorzieningen binnen handbereik, fijne wandel- en fietsroutes in de nabijheid én de stad Tilburg op steenworp afstand. Een plek waar rust en levendigheid samenkomen.

De woning - vol ruimte, licht en mogelijkheden

Vrijstaand wonen met karakter
Een woonoppervlak van 98 m² en een perceel van 359 m²: dit huis biedt ruimte in overvloed. Vrijstaand wonen betekent vrijheid, privacy en volop mogelijkheden om de woning geheel naar eigen smaak te moderniseren.

Licht & lucht
Dankzij de vele ramen stroomt het daglicht gul naar binnen. Dit zorgt voor een frisse, uitnodigende sfeer en maakt van elke ruimte een prettige plek om te vertoeven.

Een keuken die dromen waarmaakt
De huidige gesloten keuken kan eenvoudig worden omgetoverd tot een open leefkeuken. Denk aan een modern kookeiland waar je kookt én gezellig samenkomt, het kloppend hart van het huis.

Slaap lekker royaal
Op de eerste verdieping vind je drie slaapkamers van mooi formaat. Daarnaast is er de mogelijkheid om de zolder om te bouwen tot een royale extra verdieping, ideaal als master bedroom, werkruimte of speelparadijs.

Buitenleven rondom
De tuin omsluit de woning volledig. Van een zonnige achtertuin op het zuid-oosten tot een groene voortuin en royale zijtuin: hier geniet je van elke zonnestraal en creëer je je eigen buitenparadijs. Een luxe overkapping, een speelgazon of zelfs een moestuin,  het kan hier allemaal.

Praktische extra’s
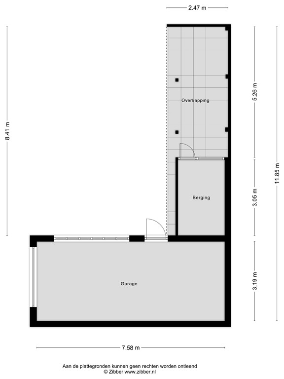
De woning beschikt over een grote bijkeuken met wasmachine-aansluiting en een garage aan de achterzijde van het perceel met eigen oprit. Bovendien kun je gratis parkeren voor de deur, wel zo comfortabel.

Bouwkundige keuring
Voor deze woning is reeds een bouwkundige keuring uitgevoerd. Dit rapport is op aanvraag ter inzage beschikbaar, zodat geïnteresseerden een volledig en transparant beeld krijgen van de huidige staat van de woning.

Pluspunten op een rij
•	Verwarming – De CV-ketel is in 2022 geplaatst, dus klaar voor jarenlang zorgeloos comfort;
•	Tuin rondom – Met de achtertuin op het zuid-oosten geniet je de hele dag van zon én mogelijkheden; 
        voor een luxe overkapping, speelruimte of moestuin;
•	Ruimte voor gemak – De royale bijkeuken met wasmachine-aansluiting biedt praktische bergruimte;
•	Eigen garage en oprit – Altijd plaats voor de auto, direct bij de woning;
•	Vrijstaand wonen met potentie – Een solide basis die vraagt om modernisering, maar waar de 
        mogelijkheden oneindig zijn.

Kenmerken:
•	Bouwjaar: 1964;
•	Woonoppervlak: 98 m²;
•	Perceeloppervlakte: 359 m²;
•	Inhoud 439 m³;
•	Energielabel: F;
•       Bouwtechnisch rapport aanwezig;
•       Wordt verkocht met een as is-where is clausule;
•	NEN 2580 meetrapport*.

Een woning met toekomst
Deze woning is als een blanco canvas, klaar om jouw woonwensen werkelijkheid te maken. Met zijn vrijstaande ligging, zonnige tuin rondom en royale ruimtes binnen, straalt het huis rust en mogelijkheden uit. De indeling is praktisch, de lichtinval overvloedig en de buitenruimte veelzijdig. Een huis waarin je nu al fijn kunt wonen, maar dat met een moderne touch kan transformeren tot een eigentijdse droomwoning.

Stel je voor: een grote leefkeuken waar het hele gezin samenkomt, openslaande deuren naar een zonnig terras met een luxe overkapping, een royale zolderverdieping als extra woonlaag en een tuin die je volledig naar eigen wens kunt indelen. Dit huis biedt de ruimte, jij voegt de stijl toe.
Kortom: een woning met karakter, licht en vooral toekomst.

Wil je deze bijzondere woning met zijn vele mogelijkheden bezichtigen?
Dat begrijpen wij heel goed!
Bel of mail ons dan voor een afspraak:

Tel: 013 - 30 33 195
Mail: info@viapaulmakelaardij.nl

Via wie?
Via Paul Makelaardij natuurlijk!
Via wie anders?

De NEN 2580 meetnorm is een eenduidige meetnorm, waarbij met bepaalde richtlijnen rekening gehouden wordt. Zo wordt o.a. een zolder zonder vaste trap of met een lichtoppervlakte (bv dakraam) kleiner dan 0,5 m² niet tot de woonoppervlakte gerekend. Hierdoor kan de woonoppervlakte soms kleiner lijken dan de daadwerkelijke vloeroppervlakte en kleiner lijken dan bij vergelijkbare woningen waar de makelaar de meetnorm niet toe heeft gepast. Ondanks het feit dat de meetnorm verplicht is, hanteren niet alle makelaars consequent de norm. Via Paul Makelaardij laat haar woningen inmeten door een erkend bedrijf. Het meetrapport van deze woning is dan ook, indien gewenst, ter inzage.

Ten aanzien van deze verkoopbrochure zijn de gegevens in deze brochure met de grootste zorg samengesteld. Voor de juistheid van de verstrekte informatie zijn wij in grote mate afhankelijk van derden. Aan vermelde tekst, maten en bijgevoegde tekeningen kunnen derhalve geen rechten worden ontleend. Via Paul makelaardij en de verkoper aanvaarden geen aansprakelijkheid ten aanzien van de gegevens in deze brochure.

Kenmerken