Beschrijving

HALVE MAAN 13 GOIRLE

Wonen aan de Halve Maan in Goirle betekent thuiskomen in een omgeving waar rust, ruimte en levendigheid elkaar moeiteloos aanvullen. Deze charmante straat, gelegen in de geliefde wijk De Hellen, ademt een gemoedelijke sfeer waar buren elkaar nog groeten en kinderen veilig buiten spelen. Hier woon je in een dorpse setting met een warme, vertrouwde uitstraling, terwijl de dynamiek van de stad nooit ver weg is.

Goirle zelf staat bekend om zijn groene karakter, fijne voorzieningen en Bourgondische levensstijl. Op korte afstand vind je het gezellige dorpshart met winkels, restaurants en terrasjes waar je op elk moment van de dag kunt neerstrijken. Tegelijkertijd biedt de nabijheid van Tilburg alle voordelen van een stad: cultuur, onderwijs en bereikbaarheid. Of je nu kiest voor een ontspannen wandeling in de natuur, een sportieve middag bij Stappegoor of een snelle verbinding naar omliggende steden of zelfs België – alles ligt binnen handbereik. Halve Maan 13 is daarmee niet zomaar een adres, maar een plek waar wonen voelt als leven op z’n best.

Welkom thuis – een entree die je omarmt
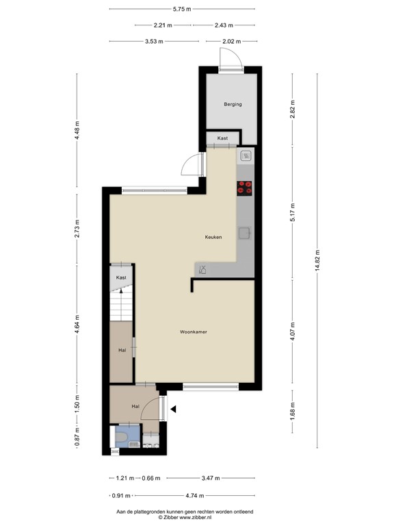
Zodra je binnenstapt, ervaar je het meteen: licht, ruimte en een gevoel van thuiskomen. De hal verwelkomt je met een aangename hoeveelheid daglicht en een verzorgde afwerking. Hier begint de warme sfeer die zich als een rode draad door de woning trekt.

Leven in licht – de woonkamer als hart van het huis
De woonkamer is een plek waar je wilt zijn. Grote raampartijen laten het daglicht rijkelijk binnenstromen en zorgen voor een open, luchtig gevoel. Of je nu geniet van een rustige avond op de bank of uitgebreid dineert met vrienden en familie – deze ruimte vormt het perfecte decor voor elk moment. De praktische bergkast onder de trap maakt het geheel bovendien verrassend functioneel.

Koken & genieten – een keuken die verbindt
Aan de achterzijde van de woning bevindt zich de recent vernieuwde keuken: strak, modern en volledig uitgerust. Hier kook je met plezier, terwijl je via de directe toegang naar de tuin moeiteloos binnen en buiten met elkaar verbindt. Op zonnige dagen zet je de deur open en vloeien keuken en tuin naadloos in elkaar over.

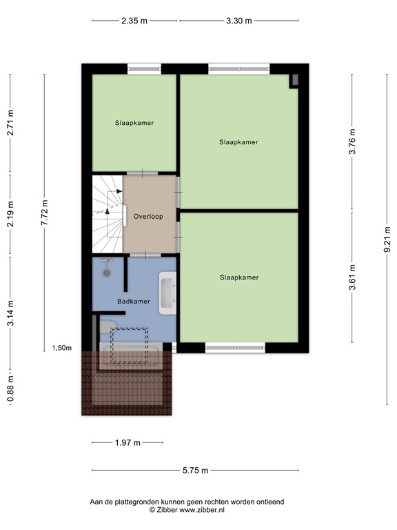
Rust & privacy – de slaapkamers als persoonlijke toevlucht
Op de eerste verdieping vind je drie slaapkamers, elk met een eigen karakter maar allemaal met dezelfde verzorgde afwerking en warme uitstraling dankzij de houtlook vloer. De master bedroom biedt rust en ruimte, terwijl de overige kamers flexibel in te richten zijn – als kinderkamer, werkplek of inloopkast.

Ontspannen in stijl – de badkamer als wellnessruimte
De badkamer is een plek om even stil te staan. Met een ligbad, ruime inloopdouche en dubbele wastafel is dit een ruimte waar comfort en ontspanning samenkomen. Hier sluit je de dag in alle rust af.

Een extra verdieping vol mogelijkheden
De zolderverdieping verrast met een volwaardige vierde slaapkamer en een praktische overloop. Dankzij de dakramen is ook hier volop daglicht aanwezig, wat deze verdieping perfect maakt als extra slaapruimte, werkplek of hobbykamer.

Buitenleven – zon, privacy en gemak
De achtertuin is onderhoudsvriendelijk en biedt volop privacy. Gelegen op het zuidoosten geniet je hier al vroeg van de eerste zonnestralen – een heerlijke plek voor een kop koffie in de ochtend of een ontspannen middag in de buitenlucht. De praktische berging en achterom maken het plaatje compleet.

Kenmerken van de woning:

- Bouwjaar 1980;
- Perceeloppervlak 133 m²;
- Woonoppervlak 114 m²;
- Inhoud 421 m³;
- NEN 2580 meetrapport*;
- Energielabel A geldig tot en met 23-03-2036;
- 12 zonnepanelen;
- Schilderwerk vernieuwd in 2025;
- In rustige woonwijk gelegen;
- Gelegen op 2 autominuten van de A58;
- Winkels, scholen en diverse uitvalswegen op korte afstand gelegen.

Wil je deze bijzondere woning met zijn vele mogelijkheden bezichtigen?
Dat begrijpen wij heel goed!

Bel of mail ons dan voor een afspraak:

Tel: 013 - 30 33 195
Mail: goirle@viapaulmakelaardij.nl

Via wie?
Via Paul Makelaardij natuurlijk!
Via wie anders?

* De NEN 2580 meetnorm is een eenduidige meetnorm, waarbij met bepaalde richtlijnen rekening gehouden wordt. Zo wordt o.a. een zolder zonder vaste trap of met een lichtoppervlakte (bv dakraam) kleiner dan 0,5 m² niet tot de woonoppervlakte gerekend. Hierdoor kan de woonoppervlakte soms kleiner lijken dan de daadwerkelijke vloeroppervlakte en kleiner lijken dan bij vergelijkbare woningen waar de makelaar de meetnorm niet toe heeft gepast. Ondanks het feit dat de meetnorm verplicht is, hanteren niet alle makelaars consequent de norm. Via Paul Makelaardij laat haar woningen inmeten door een erkend bedrijf. Het meetrapport van deze woning is dan ook, indien gewenst, ter inzage.

Ten aanzien van deze verkoopbrochure zijn de gegevens in deze brochure met de grootste zorg samengesteld. Voor de juistheid van de verstrekte informatie zijn wij in grote mate afhankelijk van derden. Aan vermelde tekst, maten en bijgevoegde tekeningen kunnen derhalve geen rechten worden ontleend. Via Paul makelaardij en de verkoper aanvaarden geen aansprakelijkheid ten aanzien van de gegevens in deze brochure.

Kenmerken