Beschrijving

Welkom bij jouw nieuwe thuis aan de Weerijs 79, Tilburg

Stel je eens voor: een sfeervolle hoekwoning, prachtig gelegen aan de groene rand van de gewilde woonwijk De Blaak. Hier ervaar je elke dag rust en ruimte, omringd door veel groen en waterpartijen. Ideaal voor jou en je gezin! Vanuit deze kindvriendelijke wijk ben je in een paar minuten met de auto of fiets in het bruisende centrum van Tilburg. Scholen, winkels, sportfaciliteiten en de natuur liggen allemaal binnen handbereik, zoals het prachtige Stadsbos 013 en het waterwingebied. Via de chique Baroniebaan rijd je bovendien snel naar Den Bosch, Eindhoven of Breda. Een TOP locatie voor wie het beste van twee werelden zoekt: rust en de dynamiek van de stad binnen bereik!

Begane grond – Jouw gezellige en lichte leefruimte

Als je aankomt, betreed je de woning via de sfeervolle voortuin. De entree verwelkomt je met een handige garderobenis en biedt toegang tot de ruime woonkamer, een moderne toiletruimte en de meterkast.

De woonkamer is het hart van de woning: licht, ruim en sfeervol. Grote ramen en een glazen schuifpui aan de achterzijde zorgen voor veel natuurlijk licht en verbinden binnen en buiten op een prachtige manier. Zo geniet je in elk seizoen van jouw ruime tuin. In de woonkamer is er meer dan genoeg plek voor een gezellige zithoek én een aparte eethoek. De lichte, neutrale muren en warme houtlook vloer geven de ruimte een moderne, warme uitstraling. Via de woonkamer bereik je ook de trap naar de eerste verdieping.

Een droom van een woonkeuken
De ruime keuken, die in een uitbouw is geplaatst, biedt alles wat je nodig hebt. Dankzij de grote raampartij stroomt er veel daglicht naar binnen, en de lichte kastfronten geven de keuken een frisse uitstraling. De hoekopstelling zorgt voor meer dan genoeg werk- en opbergruimte, zodat koken altijd een plezier is. Ook hier heb je een glazen schuifpui die je direct naar de tuin leidt – ideaal voor wanneer je buiten wilt dineren of gewoon van het zonnetje wilt genieten. Een eethoek in de keuken maakt deze ruimte perfect voor dagelijkse maaltijden of gezellig tafelen met vrienden en familie. Aangrenzend vind je een praktische bijkeuken voor extra opslag.

Handige berging voor al je spullen
Aan de voorkant van de woning, naast de entree, bevindt zich een handige berging. Deze ruimte is perfect om fietsen te stallen of om spullen op te bergen. Bovendien kun je hier zelfs een werkruimte of klusplek van maken, met elektriciteit binnen handbereik.

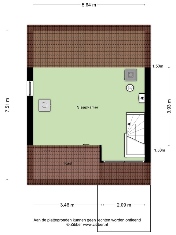
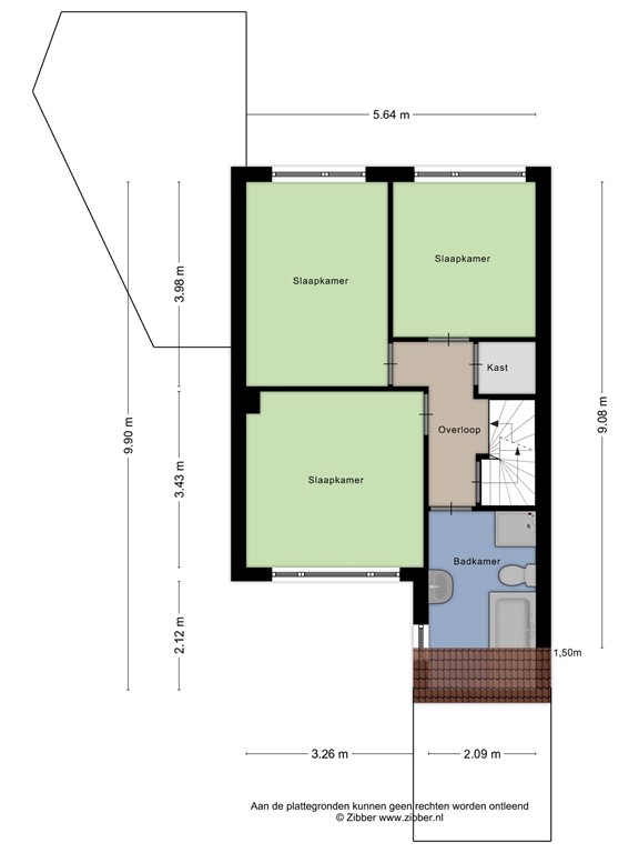
Eerste verdieping – Ruimte voor iedereen
Op de eerste verdieping heb je drie ruime slaapkamers, allemaal flexibel in te richten. Of je nu een thuiswerkplek nodig hebt, een extra logeerkamer, of een kinderkamer – het kan hier allemaal. De overloop biedt toegang tot een vaste kast en de badkamer. De badkamer is uitgerust met alles wat je nodig hebt: een douchecabine, een ligbad voor ontspanning en een staand toilet.

Tweede verdieping – Mogelijkheden te over
De zolderverdieping biedt nog meer ruimte. Op dit moment dient deze verdieping als praktische zolderkamer met ruimte voor de wasmachine en de recent vernieuwde HR Remeha CV-combiketel (2023). Hier kun je gemakkelijk een vierde slaapkamer of een royale werkruimte creëren, helemaal naar jouw wens!

Genieten in de tuin
De ruime tuin is een oase van rust en privacy. Netjes betegeld, met een gazon en groene borders, biedt deze tuin de perfecte balans tussen onderhoudsvriendelijkheid en groen. Dankzij de ligging op het zuidwesten geniet je de hele dag van de zon. De royale zitplek op het terras is ideaal voor buiten dineren of simpelweg genieten van de rust. De groene omheining zorgt ervoor dat je je volledig kunt ontspannen, zonder inkijk van buren.

Bijzonderheden van jouw nieuwe woning
- Bouwjaar: 1980  
- Perceeloppervlakte: 282 m²  
- Woonoppervlakte: 134 m²  
- Inhoud: 498 m³  
- Inclusief NEN 2580 meetrapport  
- Gelegen in de rustige en populaire woonwijk De Blaak  
- Winkels, scholen en uitvalswegen op korte afstand

Kom snel een kijkje nemen!
Deze woning heeft alles in huis om jouw ideale nieuwe thuis te worden.

Wil je deze bijzondere woning met zijn vele mogelijkheden bezichtigen? 
Bel of mail ons dan voor een afspraak: 

Tel:      013 - 30 33 195 
Mail:    info@viapaulmakelaardij.nl

Via wie? 
Via Paul Makelaardij natuurlijk! 

* De NEN 2580 meetnorm is een eenduidige meetnorm, waarbij met bepaalde richtlijnen rekening gehouden wordt. Zo wordt o.a. een zolder zonder vaste trap of met een lichtoppervlakte (bv dakraam) kleiner dan 0,5 m² niet tot de woonoppervlakte gerekend. Hierdoor kan de woonoppervlakte soms kleiner lijken dan de daadwerkelijke vloeroppervlakte en kleiner lijken dan bij vergelijkbare woningen waar de makelaar de meetnorm niet toe heeft gepast. Ondanks het feit dat de meetnorm verplicht is, hanteren niet alle makelaars consequent de norm. Via Paul Makelaardij laat haar woningen inmeten door een erkend bedrijf. Het meetrapport van deze woning is dan ook, indien gewenst, ter inzage.

Kenmerken