Beschrijving

BARKSTRAAT 17, TILBURG

Barkstraat: wonen in de dromerige nostalgie van de dertiger jaren. De wijk is zeer populair en gezocht door jong en ouder! Het waarom laat zich raden; met 50 meter lopen sta je midden in de bruisende hotspot van Tilburg: het Piushavengebied. Flaneer langs de passantenboten, snuffel rond in de leuke winkeltjes of strijk neer voor lunch, diner of een drankje bij een van de vele gezellige horeca-gelegenheden. 

Rijke en geschakeerde omgeving
Ook verder is dit een geweldige plek om te wonen: je wandelt zo het stadscentrum in (Dwaalgebied, Korte Heuvel, Spoorzone) en heb je behoefte aan groene rust dan biedt het prachtige natuurgebied Moerenburg uitkomst. Sportief uitleven kan zowel buiten (tennis, hockey, beachvolleybal, voetbal) als binnen bij diverse nabijgelegen fitnesscentra.

Andere faciliteiten die het leven hier zo aangenaam maken: een ruim aanbod aan scholen (van basis tot voortgezet), kinderopvang, supermarkten (zoals AH en de nieuwe AaBe fabriek) en zowel perfecte aansluiting op uitvalswegen (A58, A65, A27) als goed openbaar vervoer. 

Thuisgevoel
Terug naar het huis aan de Barkstraat 17, want dat wordt immers jouw woonplek. De straat zelf is opvallend rustig. En sociaal, want een vriendelijke groet (of hulp) van de buren is hier nog standaard. Volwassen bomen worden aangevuld met kleur en fleur van bloeiende planten voor de gezellige erkers. Je voelt je er meteen thuis.

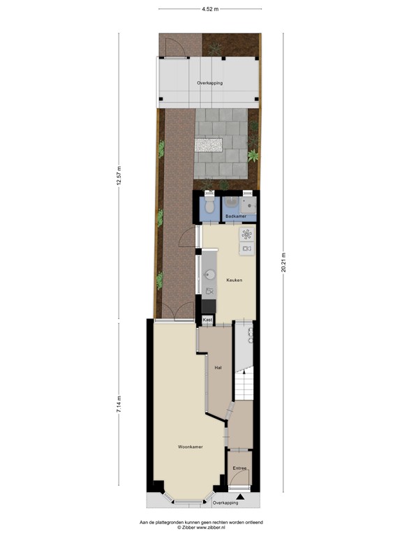
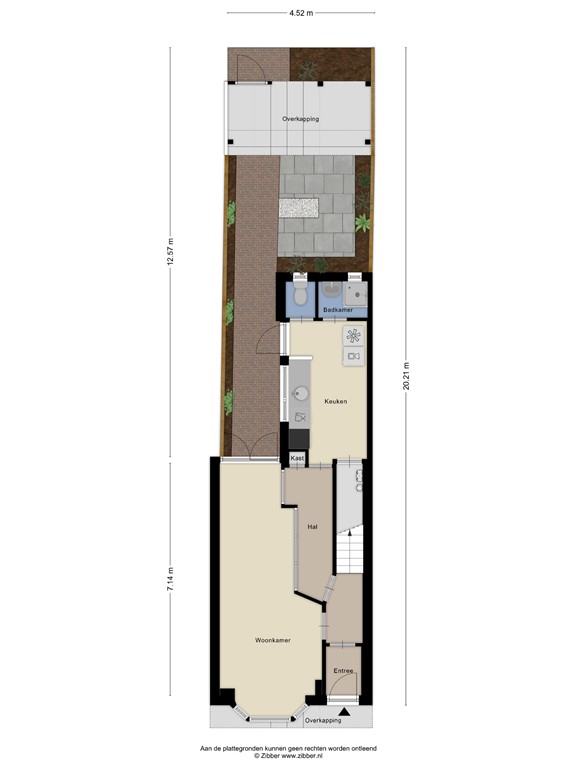
Karaktervolle binnenkomst*
Via de kloeke, massief houten voordeur loop je door het voorportaal de hal met trapopgang in. De terrazzovloer, oude tegeltjes en paneeldeuren zijn charmant en de verlengde, gecreëerde hal naar de keuken benadrukt het ’30 jaren gevoel door zijn fraaie glas-in-lood ramen. Zelfs hier valt al onmiddellijk op hoe perfect onderhouden alles is.

Sfeervolle woonkamer
Het frisse wit van de hal is doorgezet in de woonkamer, wat het met het royaal binnenvallende licht door de authentieke erker met glas-in-lood zijramen en de dubbele tuindeuren aan de achterzijde tot een heerlijke leefruimte maakt. De massief houten vloer voegt een dimensie toe. Wil je nóg meer ruimte of de keuken directer bij de leefruimte betrekken, dan is de houten wand met glas-in-lood probleemloos te verwijderen. De houten vloer loopt er namelijk onderdoor.

Keuken (met bonus) in stijl
De keuken ademt de tijdgeest van toen, maar is goed voorzien van de modernste apparatuur! Ook hier weer het stralende wit van de gestucte muren en houtwerk, wat een schoon en fris gevoel geeft. Het granieten aanrecht met spoelbak, de marmeren vloer en de open, houten kasten en eettafel brengen gezelligheid. Ze worden aangevuld met moderniteit: een vrijwel nieuwe inductiekookplaat, oven en afzuigkap, hoge koelkast met vriesvak, wasmachine en droger. Een diepe inbouwkast (onder de trap) is meterkast maar ook handig als extra bergruimte. Als je de vloer hier optilt, komt er bovendien een kleine kelder tevoorschijn waar proviand heerlijk koel blijft.
Twee paneeldeuren achter in de keuken geven toegang tot enerzijds het toilet en anderzijds de eerste badkamer met moderne douche en wastafel.

Complete slaapverdieping
De overloop toont 5 deuren: twee ervan ontsluiten een zeer royale slaapkamer die over de hele diepte van de woning loopt. Door haar ‘ensuite’-stijl kan ze goed worden ingedeeld in slaap- en studie/speelruimte of slaapkamer voor 2 kinderen. Wil je er liever weer twee echt aparte slaapkamers van maken, dan is een wandje tussen de twee vaste kasten/nissen snel geplaatst. De toegangsdeuren herkrijgen daarmee hun eigen functie. Achter de derde deur ligt de hoofdbadkamer met tweede toilet, wastafel en ruime douche met glaswanden. De buitendeur op de overloop geeft toegang tot het royale dakterras aan tuinzijde.
De houten vloer loopt over de gehele verdieping door, inclusief overloop. 

Een zonnige zolder met prachtig uitzicht
De vijfde deur verbergt de vaste trap naar de tweede verdieping (geen warmteverlies!) en leidt naar een verrassend ruime zolder die baadt in het licht. De brede erker over de totale breedte aan de achterzijde is hieraan debet. Naast heel veel licht geeft ze zicht op de tuin én kijk je prachtig uit over Tilburg. Aan de voorzijde is een kleinere erker aanwezig. De c.v.-ketel bevindt zich in een aparte kast.

(H)Eerlijke tuin
Via de deur in de keuken kom je in de zonnige, onderhoudsarme achtertuin. Ze ligt op het zuidwesten, garantie voor lange zomerdagen -en avonden in de zon. De privacy die je er geniet is groot, mede door de ligging aan het einde van de achterom. Een houten overkapping maakt het er ook fijn toeven tijdens hete dagen. 

Bijzonderheden/extra’s:
- perfect onderhouden en geheel gerenoveerde woning;
- jaren ’30 pur sang met behoud van originele details (zoals paneeldeuren, glas-in-lood);
- instapklaar en geheel gestoffeerd opgeleverd
- in de hele woning zijn de wanden gestuct en wit afgewerkt
- elektrabedrading en meterkast (slimme meter) zijn vernieuwd;
- glasvezel ligt in huis
- HR c.v. ketel 2016
- de muren, (tussen)-vloeren en dak zijn geïsoleerd
- 3 jaar geleden zijn alle ramen en buitendeuren (behoudens voordeur) vervangen door 
   hardhouten, grotendeels draai-/kiep ramen met HR++ glas en beveiligings hang- en sluitwerk;
- schilderwerk binnen en buiten met hoogste kwaliteit verf (Sigma) in 2025 uitgevoerd;
- vorstvrije kranen aan voor- en achterzijde van het huis;
- tuin met deels antieke waaltjes en overkapping met verlichting en elektriciteit;
- voor beleggers: deze woning beschikt over een verhuurvergunning voor 3 huurders, 
   mogelijk 4.

Kenmerken
- Bouwjaar: 1931
- Perceeloppervlakte: 91 m²
- Woonoppervlakte: 93 m²
- Inhoud: 328 m³
- Energielabel D (2025)

Wil jij deze ruime en eigentijdse geschakelde woning bezichtigen? 
Dat begrijpen wij heel goed! 

Bel of mail ons dan voor een afspraak: 
Tel:      013 - 30 33 195 
Mail:    info@viapaulmakelaardij.nl

Via wie? 
Via Paul Makelaardij natuurlijk! 
Via wie anders?

* De NEN 2580 meetnorm is een eenduidige meetnorm, waarbij met bepaalde richtlijnen rekening gehouden wordt. Zo wordt o.a. een zolder zonder vaste trap of met een lichtoppervlakte (bv dakraam) kleiner dan 0,5 m² niet tot de woonoppervlakte gerekend. Hierdoor kan de woonoppervlakte soms kleiner lijken dan de daadwerkelijke vloeroppervlakte en kleiner lijken dan bij vergelijkbare woningen waar de makelaar de meetnorm niet toe heeft gepast. Ondanks het feit dat de meetnorm verplicht is, hanteren niet alle makelaars consequent de norm. Via Paul Makelaardij laat haar woningen inmeten door een erkend bedrijf. Het meetrapport van deze woning is dan ook, indien gewenst, ter inzage.

Ten aanzien van deze verkoopbrochure zijn de gegevens in deze brochure met de grootste zorg samengesteld. Voor de juistheid van de verstrekte informatie zijn wij in grote mate afhankelijk van derden. Aan vermelde tekst, maten en bijgevoegde tekeningen kunnen derhalve geen rechten worden ontleend. Via Paul makelaardij en de verkoper aanvaarden geen aansprakelijkheid ten aanzien van de gegevens in deze brochure.

Kenmerken