Beschrijving

BEEKLAAN 97 TILBURG

Heerlijk wonen in De Blaak – ruimte, comfort en een ideale ligging

In de gewilde en kindvriendelijke woonwijk De Blaak ligt deze degelijke 2-onder-1-kapwoning met maar liefst vier verrassend ruime slaapkamers, een garage, oprit en een fraai aangelegde voor- en achtertuin. Een comfortabele gezinswoning met volop leefruimte, zowel binnen als buiten.

De woning is centraal gelegen in de wijk, op korte afstand van het winkelcentrum, scholen en kinderdagopvang. Ook het buitengebied ligt op steenworp afstand. Winkelcentrum De Blaak biedt een compleet voorzieningenaanbod met onder andere een supermarkt, kapper, bakker, keurslager, drogist, kantoorboekhandel en bloemist. Daarnaast is er een medisch centrum met apotheek, huisartsenpraktijken, een fysiotherapeut en een podotherapeut.

Begane grond

De ruime hal/entree biedt toegang tot de woonkamer, de trapopgang, de meterkast, de toiletruimte én de garage – een groot pluspunt in het dagelijks gebruik. De toiletruimte is geheel betegeld en voorzien van een staand toilet, fonteintje en mechanische ventilatie.

De L-vormige woonkamer is fraai afgewerkt met een leistenen vloer met grotendeels vloerverwarming, aangevuld met traditionele radiatoren/convectorputverwarming. De wanden zijn afgewerkt met Spachtputz stucwerk en het plafond met spuitwerk. Aan de voorzijde bevindt zich het gezellige zitgedeelte met een sfeervolle houthaard. Aan de achterzijde ligt het eetgedeelte met daarnaast een speelhoek of werkplek, ideaal voor gezinnen of thuiswerken. Grote raampartijen zorgen voor een prettige lichtinval en via de aluminium schuifpui is er directe toegang tot de achtertuin.

De woonkeuken is gesitueerd in de uitbouw en vormt een echte leefkeuken met ruimte voor een royale eethoek. Het keukenblok is recht opgesteld en voorzien van een granieten aanrechtblad, combimagnetron, koelkast, vaatwasser, 5-pits gaskookplaat en afzuigkap. Ook vanuit de keuken is de achtertuin bereikbaar via een deur.

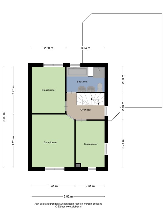
Eerste verdieping

De overloop geeft toegang tot drie slaapkamers en de badkamer. Twee slaapkamers bevinden zich aan de voorzijde van de woning en de derde slaapkamer is gelegen aan de achterzijde. Alle kamers zijn afgewerkt met een laminaatvloer, Spachtelputz stucwerk op de wanden en gipsplaten plafonds. De badkamer is geheel betegeld en uitgerust met een ligbad, douche, dubbele wastafel en een staand toilet. Tevens is de badkamer voorzien van een beluchter.

Tweede verdieping

De tweede verdieping is bereikbaar via een vaste trap en bestaat uit een voorzolder en een aparte technische ruimte. In deze technische ruimte bevindt zich de opstelling van de HR CV-ketel (Remeha, 2019). Aansluitend bevindt zich de ruime vierde slaapkamer met dakkapel. Daarnaast is er praktische bergruimte achter de knieschotten over de gehele verdieping.

Tuin & garage

De woning is gelegen op een perceel van 336 m². Aan de voorzijde bevindt zich een fraai aangelegde voortuin met oprit. Zowel bij de voordeur als bij de garage is een praktische overkapping aanwezig.

De achtertuin, gelegen op het noordwesten, is netjes aangelegd met sierbestrating, plantenborders, een gazon en een zonnescherm. Dankzij de gunstige ligging is er altijd een plek in de zon of juist in de schaduw te vinden. Vanuit de tuin is er directe toegang tot de garage.

De garage is circa 21 m² groot en voorzien van een elektrische sectionaaldeur naar de oprit en een loopdeur naar de achtertuin. In de garage bevinden zich de aansluitingen voor wasmachine en droger. 

Kenmerken van de woning:

* Woonoppervlakte: ca. 133 m²;
* Inhoud: ca. 548 m³;
* Garage: ca. 22 m²;
* Perceeloppervlakte: 336 m²;
* Bouwjaar: 1980;
* Energielabel: C;
* Heerlijke 2-onder-1-kapwoning met vier slaapkamers;
* Ruime garage (ca. 21 m²) met oprit;
* Op steenworp afstand van winkelcentrum De Blaak en scholen;
* Gelegen in de gewilde en kindvriendelijke woonwijk De Blaak.

Wil je deze bijzondere woning met zijn vele mogelijkheden bezichtigen?
Dat begrijpen wij heel goed!
Bel of mail ons dan voor een afspraak:

Tel: 013 - 30 33 195
Mail: info@viapaulmakelaardij.nl

Via wie?
Via Paul Makelaardij natuurlijk!
Via wie anders?

* De NEN 2580 meetnorm is een eenduidige meetnorm, waarbij met bepaalde richtlijnen rekening gehouden wordt. Zo wordt o.a. een zolder zonder vaste trap of met een lichtoppervlakte (bv dakraam) kleiner dan 0,5 m² niet tot de woonoppervlakte gerekend. Hierdoor kan de woonoppervlakte soms kleiner lijken dan de daadwerkelijke vloeroppervlakte en kleiner lijken dan bij vergelijkbare woningen waar de makelaar de meetnorm niet toe heeft gepast. Ondanks het feit dat de meetnorm verplicht is, hanteren niet alle makelaars consequent de norm. Via Paul Makelaardij laat haar woningen inmeten door een erkend bedrijf. Het meetrapport van deze woning is dan ook, indien gewenst, ter inzage.

Ten aanzien van deze verkoopbrochure zijn de gegevens in deze brochure met de grootste zorg samengesteld. Voor de juistheid van de verstrekte informatie zijn wij in grote mate afhankelijk van derden. Aan vermelde tekst, maten en bijgevoegde tekeningen kunnen derhalve geen rechten worden ontleend. Via Paul makelaardij en de verkoper aanvaarden geen aansprakelijkheid ten aanzien van de gegevens in deze brochure.

Kenmerken