Beschrijving

GALJOENSTRAAT 34 TILBURG

Aan de Galjoenstraat in Tilburg ontvouwt zich een woonomgeving waar het beste van twee werelden naadloos samenkomt. Hier woont u op een plek waar de levendigheid van de stad voelbaar dichtbij is, terwijl de straat zelf juist rust en geborgenheid ademt. De nabijgelegen Piushaven vormt het kloppende hart van de omgeving: een plek waar water, horeca en architectuur elkaar versterken en waar u op elk moment van de dag kunt genieten van sfeer en beleving. Op loopafstand treft u het bruisende centrum van Tilburg, met een breed scala aan winkels, speciaalzaken en culinaire hotspots. Of u nu kiest voor een ontspannen wandeling langs het water, een avond tafelen bij een van de vele restaurants of een kop koffie op een zonnig terras — alles ligt binnen handbereik. Tegelijkertijd biedt de Galjoenstraat zelf een fijne, rustige woonomgeving waar u zich direct thuis voelt. Een plek waar stads wonen voelt als thuiskomen.

Stijlvol tot in perfectie afgewerkt – een beleving
Vanaf het moment dat u binnenstapt, ervaart u het direct: deze woning is met oog voor detail en liefde voor kwaliteit afgewerkt. Strakke, gestucte plafonds, een naadloze gietvloer die zich elegant uitstrekt over alle woonetages en massieve deuren die iedere ruimte karakter geven. De gerenoveerde trappen vormen subtiele blikvangers en verbinden de verdiepingen op stijlvolle wijze. Hier is werkelijk alles in harmonie.

Ruimte voor het hele gezin – met luxe en comfort 
Met maar liefst vijf volwaardige slaapkamers biedt deze woning een zee aan ruimte voor het hele gezin. Iedere kamer is met dezelfde hoogwaardige afwerking gerealiseerd, waardoor rust, eenheid en comfort overal voelbaar zijn. De strakke wanden, de doorlopende gietvloer en de prettige lichtinval zorgen ervoor dat iedere ruimte zijn eigen fijne sfeer heeft, terwijl het geheel toch één harmonieus geheel vormt.

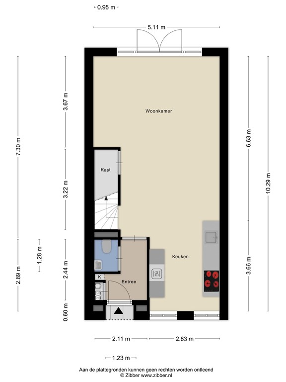
De royale woonkamer vormt het warme hart van de woning. Dankzij de grote raampartijen aan de achterzijde baadt deze ruimte in natuurlijk licht, wat zorgt voor een open en uitnodigende ambiance. De directe verbinding met de zonnige tuin via de openslaande deuren versterkt het gevoel van binnen-buiten leven — een plek waar u zowel tot rust komt als gasten in stijl ontvangt.

Aan de voorzijde van de woning bevindt zich de luxe keuken, een plek waar functionaliteit en design samenkomen. De keuken is uitgevoerd met een strak keukenblok en een praktische kastenwand, wat niet alleen zorgt voor een moderne uitstraling, maar ook voor volop bergruimte. Hier vindt u alle denkbare inbouwapparatuur: een kookplaat met meerdere zones, een RVS afzuigkap, een stijlvolle spoelbak en een Quooker voor direct kokend water. Daarnaast beschikt de keuken over een vaatwasser, combi-oven, koelkast en vriezer — alles wat u nodig heeft om koken tot een waar plezier te maken. Of u nu een snelle maaltijd bereidt of uitgebreid dineert met vrienden, deze keuken vormt het perfecte decor.

Ook de badkamer is met zorg en luxe uitgevoerd en biedt een plek om echt te ontspannen. Volledig betegeld en stijlvol ingericht beschikt deze over een comfortabel ligbad, een ruime inloopdouche en een wastafel met fraai wandmeubel. Het tweede toilet en de designradiator maken het geheel compleet. Hier begint en eindigt uw dag in alle comfort.

De verdiepingen zijn doordacht ingedeeld en bieden volop flexibiliteit. Of u nu behoefte heeft aan extra slaapkamers, een rustige thuiswerkplek of een inspirerende hobbyruimte — deze woning past zich moeiteloos aan uw woonwensen aan. Iedere verdieping ademt dezelfde kwaliteit en afwerking, wat zorgt voor een consistent en luxe woongevoel van beneden tot boven.

Duurzaam comfort, elke dag opnieuw
Met 8 zonnepanelen en 3 airco’s is deze woning klaar voor de toekomst. U geniet hier niet alleen van een aangenaam binnenklimaat in elk seizoen, maar ook van een energiezuinige levensstijl. Comfort en duurzaamheid gaan hier moeiteloos hand in hand.

Altijd uw eigen plek om thuis te komen
Nooit meer zoeken naar een parkeerplek: uw eigen parkeerplaats onder de carport op een afgesloten terrein biedt gemak en zekerheid. Bovendien is er al een voorbereiding getroffen voor elektrisch laden — helemaal van deze tijd.

Zon, rust en privacy in uw eigen tuin
De zonnige achtertuin op het zuiden is een heerlijke plek om te ontspannen. Fraai aangelegd met sierbestrating, kunstgras en groene borders vormt dit een onderhoudsvriendelijke oase waar u van ’s ochtends vroeg tot ’s avonds laat van de zon kunt genieten. In deze tuin ervaart u rust, ruimte en privacy. Een zeldzame combinatie.

Wonen met alles binnen handbereik
Naast het centrum en de Piushaven vindt u in de directe omgeving scholen, sportfaciliteiten en het vernieuwde winkelcentrum in de AaBe fabriek. Voor een snelle boodschap of uitgebreid winkelen hoeft u nooit ver. Ook de bereikbaarheid is uitstekend, met snelle verbindingen richting Breda, Eindhoven en ’s-Hertogenbosch.

De kenmerken op een rij:

•   Bouwjaar: 2010;
•   Woonoppervlak: 136 m²;
•   Perceeloppervlak: 115 m²;
•   Inhoud: ca. 483 m³;
•   5 slaapkamers;
•   Energielabel A++ (geldig tot en met 12-03-2036);
•   NEN 2580 meetrapport aanwezig.

Wil je deze bijzondere woning met zijn vele mogelijkheden bezichtigen?
Dat begrijpen wij heel goed!
Bel of mail ons dan voor een afspraak:

Tel: 013 - 30 33 195
Mail: info@viapaulmakelaardij.nl

Via wie?
Via Paul Makelaardij natuurlijk!
Via wie anders?

De NEN 2580 meetnorm is een eenduidige meetnorm, waarbij met bepaalde richtlijnen rekening gehouden wordt. Zo wordt o.a. een zolder zonder vaste trap of met een lichtoppervlakte (bv dakraam) kleiner dan 0,5 m² niet tot de woonoppervlakte gerekend. Hierdoor kan de woonoppervlakte soms kleiner lijken dan de daadwerkelijke vloeroppervlakte en kleiner lijken dan bij vergelijkbare woningen waar de makelaar de meetnorm niet toe heeft gepast. Ondanks het feit dat de meetnorm verplicht is, hanteren niet alle makelaars consequent de norm. Via Paul Makelaardij laat haar woningen inmeten door een erkend bedrijf. Het meetrapport van deze woning is dan ook, indien gewenst, ter inzage.

Ten aanzien van deze verkoopbrochure zijn de gegevens in deze brochure met de grootste zorg samengesteld. Voor de juistheid van de verstrekte informatie zijn wij in grote mate afhankelijk van derden. Aan vermelde tekst, maten en bijgevoegde tekeningen kunnen derhalve geen rechten worden ontleend. Via Paul makelaardij en de verkoper aanvaarden geen aansprakelijkheid ten aanzien van de gegevens in deze brochure.

Kenmerken