Beschrijving

GILDEBROEDERSTRAAT 35 – TILBURG

Stijlvol wonen in het hart van de stad

Aan de rand van de levendige Piushaven en op loopafstand van het bruisende centrum van Tilburg ligt deze in 2025 volledig gerenoveerde jaren ’30 woning. Een thuis waar authentieke charme naadloos samensmelt met hedendaagse luxe; een plek waar rust, comfort en stadsleven verrassend harmonieus samengaan.

Waar karakter en modern comfort elkaar vinden

Dat deze woning gebouwd is in de jaren ’30 merk je meteen: de sfeer, de uitstraling, het gevoel van thuiskomen. Maar achter de gevel schuilt een volledig vernieuwd en instap klaar huis (energielabel B), met een slimme indeling die elke ruimte optimaal benut. Drie slaapkamers, een hoogwaardige afwerking, een nieuwe keuken en badkamer én een heerlijke onderhoudsarme stadstuin vormen samen een uitzonderlijk comfortabele woonomgeving.

Leven op steenworp afstand van de Piushaven

De populaire Piushaven ligt letterlijk om de hoek. Hier geniet u van terrasjes aan het water, sfeervolle restaurants, boutique winkels en de bedrijvigheid van de grootste stadshaven van Brabant. Ook het Tilburgse stadscentrum is binnen enkele minuten lopen bereikbaar. Levendig, divers en vol culinaire en culturele ontdekkingen. En dat alles terwijl Gildebroederstraat 35 een oase van rust biedt zodra de deur achter u dichtvalt.

Wonen met licht, rust en finesse

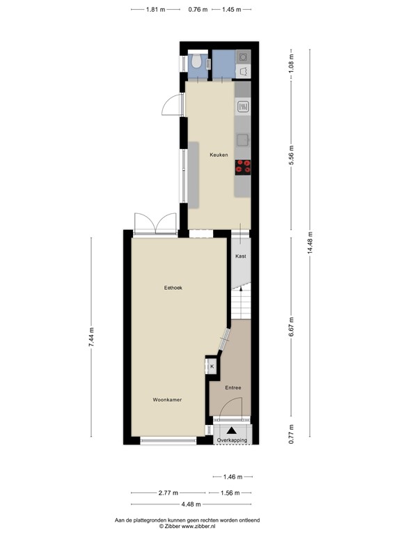
Binnenkomst gebeurt in de lichte hal die toegang geeft tot de woonkamer, bereikbaar via een elegante zwarte stalen deur. De doorzonindeling zorgt voor een prachtige lichtinval, waarbij de raampartijen aan voor- én achterzijde de ruimte vullen met een natuurlijke frisheid. Het zitgedeelte aan de voorzijde voelt warm en uitnodigend, terwijl het eetgedeelte aan de tuinzijde door de openslaande deuren een directe verbinding met buiten biedt. De licht-eiken laminaatvloer, die doorloopt tot in de keuken, en het strakke stucwerk geven de gehele begane grond een stijlvolle, serene uitstraling.

De strakke en lichte open keuken vormt een modern hart van de woning. Uitgevoerd met dubbel keukenblok en voorzien van nieuwe apparatuur waaronder een inductiekookplaat met geïntegreerde afzuiging, vaatwasser, combi-oven, koel-/vriescombinatie en een zwarte spoelbak. Deze ruimte biedt alle comfort voor dagelijks koken én gezellig tafelen. Praktisch zijn de kelderkast met bergruimte, de recent vernieuwde meterkast (12 groepen, 2025) en de aansluitende was-/bergruimte. Vanuit hier bereikt u ook het vernieuwde toilet en toegang tot de tuin.

Via de trap bereikt u de eerste verdieping, waar twee slaapkamers liggen die beide rust en licht uitstralen. De afwerking is hoogwaardig: strak stucwerk, frisse kleuren en dezelfde laminaatvloer die zorgt voor een gevoel van eenheid. Op deze verdieping bevindt zich tevens de luxe badkamer. Een verfijnde ruimte met ligbad, inloopdouche, tweede toilet en een modern wasmeubel met touch-switch spiegel.

De vaste trap leidt verder naar de tweede verdieping, een sfeervolle en royale derde slaapkamer. Dankzij de dakkapellen aan zowel de voor- als achterzijde, waarbij de achterste in 2025 is geplaatst, voelt deze verdieping verrassend ruim aan. Ook hier zijn wanden en plafonds volledig vernieuwd, ligt ook hier dezelfde laminaat vloer welke op de begane grond en 1ste verdieping is gelegd en is er een stijlvol wastafelmeubel aanwezig. De cv-installatie (ATAG 2024) is netjes geïntegreerd.

Een stadstuin voor elke dag

De onderhoudsarme stadstuin, gelegen op het noordoosten, is modern en verzorgd aangelegd met grote geglazuurde tegels en licht steensplit. Er zijn 4 sfeervolle lichten aangebracht op de schutting wat in de avond voor extra sfeer in de tuin zorgt. Een fijne plek voor een rustige ochtendkoffie of een ontspannen avond in de buitenlucht. Achterin de tuin vindt u de achterom én een berging van ca. 6 m², voorzien van elektra ideaal voor opslag of hobby.

Tilburg – Creativiteit, cultuur en karakter

Tilburg is een stad die blijft verrassen. Van het bruisende Piushavengebied metb al zijn culinaire hotspots, het gezellige Dwaalgebied of De Spoorzone: alles ligt binnen handbereik. De stad bruist van evenementen zoals Roadburn, de Tilburgse Kermis, HapStap en Tilburg Ten Miles. Het is een stad met geschiedenis, met energie, met ziel.

Pluspunten op een rij

- Bouwjaar: 1936
- Woonoppervlak: 102 m²
- In 2025 volledig gerenoveerde jaren ’30 woning
- 3 slaapkamers
- Instap klaar en modern afgewerkt
- Energielabel B (geldig tot 04-11-2035)
- Luxe badkamer en nieuwe keuken (2025)
- Nieuwe vloeren en stucwerk op alle verdiepingen
- Vernieuwde houten kozijnen met HR++ glas
- Fraai aangelegde onderhoudsvriendelijke tuin op het noorden
- Op loopafstand van zowel Piushaven als stadscentrum
- Nabij uitvalswegen en winkelvoorzieningen
- Alle elektra is vernieuwd incl. bedrading
- Platte dak en muren van aanbouw in 2025 vernieuwd en geïsoleerd. 
- Achtergevel is in 2025 geïsoleerd
- NEN 2580 meetrapport*

Wil je deze moderne en instapklare jaren '30 bezichtigen?
Dat begrijpen wij heel goed!
Bel of mail ons dan voor een afspraak:

Tel: 013 - 30 33 195
Mail: info@viapaulmakelaardij.nl

Via wie?
Via Paul Makelaardij natuurlijk!
Via wie anders?

* De NEN 2580 meetnorm is een eenduidige meetnorm, waarbij met bepaalde richtlijnen rekening gehouden wordt. Zo wordt o.a. een zolder zonder vaste trap of met een lichtoppervlakte (bv dakraam) kleiner dan 0,5 m² niet tot de woonoppervlakte gerekend. Hierdoor kan de woonoppervlakte soms kleiner lijken dan de daadwerkelijke vloeroppervlakte en kleiner lijken dan bij vergelijkbare woningen waar de makelaar de meetnorm niet toe heeft gepast. Ondanks het feit dat de meetnorm verplicht is, hanteren niet alle makelaars consequent de norm. Via Paul Makelaardij laat haar woningen inmeten door een erkend bedrijf. Het meetrapport van deze woning is dan ook, indien gewenst, ter inzage.

Ten aanzien van deze verkoopbrochure zijn de gegevens in deze brochure met de grootste zorg samengesteld. Voor de juistheid van de verstrekte informatie zijn wij in grote mate afhankelijk van derden. Aan vermelde tekst, maten en bijgevoegde tekeningen kunnen derhalve geen rechten worden ontleend. Via Paul makelaardij en de verkoper aanvaarden geen aansprakelijkheid ten aanzien van de gegevens in deze brochure.

Kenmerken