Beschrijving

GROESEINDSTRAAT 53 04 TILBURG

Wonen aan de Groeseindstraat betekent wonen met karakter, comfort én connectie met de stad. Deze straat ligt in de geliefde wijk Groeseind, op steenworp afstand van alles wat Tilburg zo aantrekkelijk maakt. Hier ervaar je het beste van twee werelden: de rust van een fijne woonomgeving en de energie van een stad die altijd in beweging is.

Op loopafstand vind je het groene decor van het Sint Pieterspark en het statige Wilhelminapark — plekken waar je ’s ochtends een rondje hardloopt, ’s middags een wandeling maakt of simpelweg even neerstrijkt in het gras. Voor cultuur en inspiratie liggen het toonaangevende TextielMuseum en museum De Pont praktisch om de hoek.

Fiets je vijf minuten, dan sta je midden in het centrum van Tilburg met haar veelzijdige winkels, gezellige terrassen en culinaire hotspots. Ook de creatieve dynamiek van de Spoorzone en de levendige sfeer rondom de Piushaven liggen binnen handbereik. Niet midden in de drukte, maar wél overal dichtbij — precies zoals je het hebben wilt.

En moet je de stad uit? Via de ringbanen bereik je vlot de uitvalswegen richting Eindhoven, ’s-Hertogenbosch en Breda. Ook het Centraal Station is in no time bereikbaar. Hier woon je centraal, comfortabel en verbonden.

Wonen in Maximus: stijlvol stadsleven met een warme ziel

Heerlijk vertoeven in het bruisende Tilburg? Deal! Dit fijne appartement aan de Groeseindstraat vormt dé ideale uitvalsbasis voor stadse levensgenieters. Je woont in het kleinschalige en verzorgde appartementencomplex Maximus — een plek waar comfort en rust hand in hand gaan met stedelijke levendigheid. Come in!

Binnenkomen met een goed gevoel

Via de centrale entree — bereikbaar vanaf de straat én het afgesloten binnenterrein — stap je een verzorgd geheel binnen. De lift, het trappenhuis, de brievenbussen: alles straalt netheid en structuur uit. Op het binnenterrein wacht jouw eigen parkeerplaats, veilig achter een elektrisch bedienbare poort. Thuiskomen voelt hier direct ontspannen.

Een interieur dat omarmt

Zodra je de voordeur opent, word je verwelkomd door een lange, verzorgde entree die toegang geeft tot alle ruimtes. De afwerking is netjes, de sfeer rustig en neutraal — een perfect canvas voor jouw persoonlijke stijl.

Leven in het licht

De woonkamer is het kloppend hart van het appartement. Grote raampartijen zorgen voor een overvloed aan daglicht dat prachtig weerkaatst op de warme parketvloer. De ruimte leent zich perfect voor een gezellige zithoek én een sfeervol eetgedeelte. Hier drink je wijn met vrienden, geniet je van lange diners of plof je neer na een drukke werkdag. Met jouw meubels en accessoires wordt dit moeiteloos een plek vol persoonlijkheid en warmte.

Koken met karakter

In de hoek van de living vind je de moderne open keuken, uitgevoerd in een stijlvolle donkere look. De keuken is voorzien van diverse inbouwapparatuur — van koelkast en vriezer tot combi-magnetron en gaskookplaat. Terwijl jij een heerlijke maaltijd bereidt, blijf je dankzij de open opstelling verbonden met je gasten. Samen koken, lachen en tafelen: hier gebeurt het.

Buiten genieten

Via de schuifdeur stap je het balkon op — een verrassend ruime buitenplek waar je in alle comfort geniet van de zon en frisse lucht. Een kop koffie in de ochtendzon of een drankje bij zonsondergang? Dit is jouw privéplek in de buitenlucht.

Dromen in stilte

De slaapkamer aan de achterzijde is een plek van rust. Hier geen stadse hectiek, maar stilte en comfort. Met voldoende ruimte voor een royaal bed en kastruimte, zachte lichtinval en een verzorgde afwerking is dit zonder twijfel een heerlijke master bedroom. Dit is zo’n kamer waar je ’s avonds graag naartoe trekt en ’s ochtends uitgerust ontwaakt.

Fris begin, ontspannen einde

De badkamer is compact maar verrassend compleet en verzorgd afgewerkt. Een plek waar functionaliteit en comfort elkaar ontmoeten. De lichte basis zorgt voor een frisse uitstraling, terwijl de praktische indeling optimaal gebruikmaakt van de ruimte. De douchecabine nodigt uit tot een verkwikkende start van de dag of juist een ontspannen moment in de avond. De wastafel met spiegel en ondermeubel vormt een strak en tijdloos geheel — overzichtelijk, netjes en klaar voor jouw dagelijkse routine. 

Comfort & zekerheid

Gebouwd in 2007 en volledig geïsoleerd, beschikt het appartement over energielabel A. Dat betekent comfortabel wonen met lage energielasten. Daarnaast draag je met een maandelijkse bijdrage bij aan een gezonde en actieve Vereniging van Eigenaren — alles is hier goed geregeld.

Kenmerken op een rij:

- Bouwjaar: 2007;
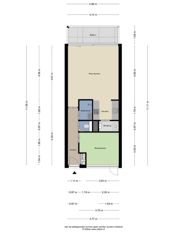
- Woonoppervlak: 52 m²;
- Inhoud: 171 m³;
- VvE kosten €159,- per maand;  
- Energielabel A  geldig tot en met 30-01-2027;
- NEN 2580 meetrapport*.

Wil je deze bijzondere woning met zijn vele mogelijkheden bezichtigen?
Dat begrijpen wij heel goed!
Bel of mail ons dan voor een afspraak:

Tel: 013 - 30 33 195
Mail: info@viapaulmakelaardij.nl

Via wie?
Via Paul Makelaardij natuurlijk!
Via wie anders?

De NEN 2580 meetnorm is een eenduidige meetnorm, waarbij met bepaalde richtlijnen rekening gehouden wordt. Zo wordt o.a. een zolder zonder vaste trap of met een lichtoppervlakte (bv dakraam) kleiner dan 0,5 m² niet tot de woonoppervlakte gerekend. Hierdoor kan de woonoppervlakte soms kleiner lijken dan de daadwerkelijke vloeroppervlakte en kleiner lijken dan bij vergelijkbare woningen waar de makelaar de meetnorm niet toe heeft gepast. Ondanks het feit dat de meetnorm verplicht is, hanteren niet alle makelaars consequent de norm. Via Paul Makelaardij laat haar woningen inmeten door een erkend bedrijf. Het meetrapport van deze woning is dan ook, indien gewenst, ter inzage.

Ten aanzien van deze verkoopbrochure zijn de gegevens in deze brochure met de grootste zorg samengesteld. Voor de juistheid van de verstrekte informatie zijn wij in grote mate afhankelijk van derden. Aan vermelde tekst, maten en bijgevoegde tekeningen kunnen derhalve geen rechten worden ontleend. Via Paul makelaardij en de verkoper aanvaarden geen aansprakelijkheid ten aanzien van de gegevens in deze brochure.

Kenmerken