Beschrijving

HAGELKRUISPLEIN 27 TILBURG – wonen in de geliefde Bomenbuurt

Welkom aan het Hagelkruisplein, een van die plekken in Tilburg waar de stad tot rust komt. Hier woon je in de populaire Bomenbuurt: een wijk die voelt als een warm dorpshart, maar dan met alle voorzieningen van de binnenstad om de hoek. Het ruime plein waaraan de woning ligt geeft een prettig, open gevoel. Geen smalle straat, geen drukte voor de deur, maar vrij uitzicht op een groene strook waar kinderen spelen en buurtbewoners elkaar groeten.

Het is precies deze combinatie die de Bomenbuurt zo geliefd maakt. Je woont er rustig en sfeervol, maar toch uiterst centraal. Het centrum en station liggen op loop- of fietsafstand, net als fijne koffietentjes, buurtwinkels, het Spoorpark en de levendige Piushaven. Ook de uitvalswegen liggen dichtbij, waardoor je snel richting Eindhoven, Breda of Den Bosch rijdt.

Kortom: dit is zo’n plek waar je de stad voelt bruisen, zonder dat het je wooncomfort in de weg staat. Een plek waar het wonen nog écht prettig is.


De lichte binnenkomer

De woonkamer is zo’n ruimte waar je direct wilt blijven. Het zachte daglicht dat binnenvalt via de karakteristieke erker, de hoge plafonds die de kamer optisch nóg ruimer maken, en de jaren ’30-signatuur die overal subtiel aanwezig is. Hier begint het sfeervolle hart van de woning.

Potentiële droomkeuken in de aanbouw

Achter de woonkamer ligt de keuken in de aanbouw – nu eenvoudig en gedateerd, straks misschien wel jouw droomkeuken. De ruimte biedt volop mogelijkheden voor wie graag een royale leefkeuken creëert, of simpelweg een moderne, praktische indeling voor ogen heeft.

Praktisch en prettig: badkamer & toilet

Achter de keuken bevinden zich een apart toilet en de badkamer, volledig betegeld en voorzien van douche, wastafelmeubel en ligbad. Functioneel en netjes – klaar voor gebruik, maar ook klaar voor een upgrade wanneer jouw woonwensen dat vragen.

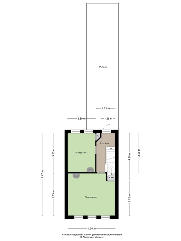
Eerste verdieping: rust & ruimte

Op de eerste verdieping bevinden zich twee verrassend ruime slaapkamers, elk met een eigen wastafel en inbouwkast. De overloop geeft toegang tot het platte dak van de aanbouw, wat extra mogelijkheden biedt voor bijvoorbeeld een dakterras.

Tweede verdieping: de onverwachte extra etage

De zolderverdieping voelt als een volwaardige woonlaag. Twee slaapkamers en een royale overloop maken dit tot een heerlijke verdieping waar kinderen kunnen spelen, tieners hun eigen plek hebben of waar je een fantastische werkruimte van kunt maken. De grote glaspartij aan de achterzijde zorgt voor een prachtige lichtinval en doordat de achtergevel recht is, ervaar je hier verrassend veel ruimte en rust.

De diepe tuin vol mogelijkheden

De tuin op het noordoosten is diep en breed, klaar om door jou geheel naar eigen smaak te worden aangelegd. Een groene oase? Een sfeervolle stadstuin met loungehoek? Alles kan. Achterin staat een royale berging, ideaal voor fietsen en tuinspullen, met daarnaast een praktische achterom via deze berging.

Een woning vol potentie

Deze jaren ’30 woning is een uitnodiging. Een huis met karakter, sfeer en een verrassend ruim gevoel. Ja, er is werk te doen – maar juist dat maakt deze woning interessant. De basis is sterk: goede ruimtes, veel licht, een fantastische ligging. Het moderniseren en personaliseren? Dat mag jij doen. Zo maak je van dit huis precies dát thuis waar je al die tijd naar op zoek was.

Kenmerken van de woning:

- Woonoppervlakte ca. 116 m²; 
- Perceel 159 m²;
- Inhoud 410 m³;
- Bouwjaar 1936;
- Energielabel D;
- NEN 2580 meetrapport*.

Projectnotaris van toepassing: Kooijman Autar Notarissen Rotterdam
As is where is clausule van toepassing
Niet-zelfbewoningsclausule van toepassing

Wil je deze bijzondere woning met zijn vele mogelijkheden bezichtigen?
Dat begrijpen wij heel goed!
Bel of mail ons dan voor een afspraak:

Tel: 013 - 30 33 195
Mail: info@viapaulmakelaardij.nl

Via wie?
Via Paul Makelaardij natuurlijk!
Via wie anders?

De NEN 2580 meetnorm is een eenduidige meetnorm, waarbij met bepaalde richtlijnen rekening gehouden wordt. Zo wordt o.a. een zolder zonder vaste trap of met een lichtoppervlakte (bv dakraam) kleiner dan 0,5 m² niet tot de woonoppervlakte gerekend. Hierdoor kan de woonoppervlakte soms kleiner lijken dan de daadwerkelijke vloeroppervlakte en kleiner lijken dan bij vergelijkbare woningen waar de makelaar de meetnorm niet toe heeft gepast. Ondanks het feit dat de meetnorm verplicht is, hanteren niet alle makelaars consequent de norm. Via Paul Makelaardij laat haar woningen inmeten door een erkend bedrijf. Het meetrapport van deze woning is dan ook, indien gewenst, ter inzage.

Ten aanzien van deze verkoopbrochure zijn de gegevens in deze brochure met de grootste zorg samengesteld. Voor de juistheid van de verstrekte informatie zijn wij in grote mate afhankelijk van derden. Aan vermelde tekst, maten en bijgevoegde tekeningen kunnen derhalve geen rechten worden ontleend. Via Paul makelaardij en de verkoper aanvaarden geen aansprakelijkheid ten aanzien van de gegevens in deze brochure.

Kenmerken