Beschrijving

HOLTENSTRAAT 41 TILBURG

Welkom in de Holtenstraat, een verborgen parel in het geliefde stadsdeel Reeshof in Tilburg. Een straat waar rust en wooncomfort elkaar moeiteloos vinden. Hier woon je in een vriendelijke, groene woonomgeving met volop ruimte voor kinderen om veilig te spelen en te ontdekken. Pal tegenover de woning ligt een fijn, afgescheiden speelveld met speeltoestellen – een ideale plek voor jonge avonturiers.

De directe omgeving biedt alles wat het dagelijks leven gemakkelijk en aangenaam maakt. Op korte afstand vind je winkelcentrum Heyhoef, diverse (basis)scholen, sportvoorzieningen en fijne parken om te wandelen of te genieten van de natuur. Dankzij de gunstige ligging nabij uitvalswegen is zowel het bruisende centrum van Tilburg als de rest van Brabant uitstekend bereikbaar. Rustig wonen met alle gemakken binnen handbereik – dát is de Holtenstraat.

Een warm welkom

Vanaf het eerste moment voelt deze woning als thuiskomen. Een nette, strakke uitstraling en een voortuin met oprit verwelkomen je vriendelijk. Hier begint het comfortabele woonverhaal van deze lichte, verzorgde en uitgebouwde eengezinswoning.

Leven & beleven – De sfeervolle begane grond

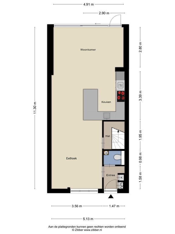
Binnen stap je in een zee van licht en ruimte. De woning is aan de achterzijde uitgebouwd, wat zorgt voor een royale leefruimte waar je met gemak een grote eettafel én een gezellige zithoek kwijt kunt. De PVC-houtlook vloer en strakke wanden en plafonds geven het geheel een moderne, luxe uitstraling.

Koken in stijl – de luxe woonkeuken

De open keuken is een droom voor kookliefhebbers: modern, greeploos en volledig uitgerust. De hoogwaardige inbouwapparatuur, waaronder een inductiekookplaat, combi-oven op fijne kijkhoogte, vaatwasser, koel- én vriesgedeelte, zorgt ervoor dat elke culinaire wens met gemak waargemaakt kan worden. Terwijl je kookt, blijven gesprekken met je gasten aan de bar moeiteloos op gang. Dankzij de grote schuifpui en aparte loopdeur wordt de tuin op natuurlijke wijze een verlengstuk van de woonkamer.

Slapen & ontspannen – De eerste verdieping

Op de eerste verdieping wachten twee ruime slaapkamers. Eén daarvan beschikt over een royale walk-in closet – een kledingdroom voor zowel haar als hem. De luxe badkamer maakt het plaatje compleet: dubbele waskommen, een inloopdouche, zwevend toilet en heerlijke vloerverwarming. Elke dag beginnen alsof je in een boutique hotel verblijft.

Privacy en veelzijdigheid – De tweede verdieping

De vaste trap brengt je naar de tweede verdieping, waar een fijne voorzolder en een derde slaapkamer met dakkapel zich bevinden. Ideaal als comfortabele slaapkamer, werkruimte of hobbykamer. De afwerking is stijlvol en praktisch, met volop bergruimte en aansluiting voor wasapparatuur.

Genieten in de buitenlucht

De onderhoudsvriendelijke achtertuin is een heerlijke plek om te ontspannen. Hier geniet je van de zon, je espresso in de ochtend of gezellig samen borrelen in de avond. De berging biedt extra opbergmogelijkheden en via de achterom bereik je gemakkelijk de straatzijde. De voortuin met oprit maakt het plaatje compleet – parkeren op eigen terrein is een fijne luxe.

Pluspunten van de woning:

- Bouwjaar: 1990;
- Perceeloppervlakte: 149 m²;
- Woonoppervlakte: 113 m²;
- Inhoud: 401 m³;
- Energielabel B geldig tot en met 26-01-2027;
- NEN 2580 meetrapport*;
- Nette en strakke woning;
- 3 slaapkamers;
- Onderhoudsvriendelijke tuin.


Wil je deze bijzondere woning met zijn vele mogelijkheden bezichtigen?
Dat begrijpen wij heel goed!
Bel of mail ons dan voor een afspraak:

Tel: 013 - 30 33 195
Mail: info@viapaulmakelaardij.nl

Via wie?
Via Paul Makelaardij natuurlijk!
Via wie anders?

De NEN 2580 meetnorm is een eenduidige meetnorm, waarbij met bepaalde richtlijnen rekening gehouden wordt. Zo wordt o.a. een zolder zonder vaste trap of met een lichtoppervlakte (bv dakraam) kleiner dan 0,5 m² niet tot de woonoppervlakte gerekend. Hierdoor kan de woonoppervlakte soms kleiner lijken dan de daadwerkelijke vloeroppervlakte en kleiner lijken dan bij vergelijkbare woningen waar de makelaar de meetnorm niet toe heeft gepast. Ondanks het feit dat de meetnorm verplicht is, hanteren niet alle makelaars consequent de norm. Via Paul Makelaardij laat haar woningen inmeten door een erkend bedrijf. Het meetrapport van deze woning is dan ook, indien gewenst, ter inzage.

Ten aanzien van deze verkoopbrochure zijn de gegevens in deze brochure met de grootste zorg samengesteld. Voor de juistheid van de verstrekte informatie zijn wij in grote mate afhankelijk van derden. Aan vermelde tekst, maten en bijgevoegde tekeningen kunnen derhalve geen rechten worden ontleend. Via Paul makelaardij en de verkoper aanvaarden geen aansprakelijkheid ten aanzien van de gegevens in deze brochure.

Kenmerken