Beschrijving

HYACINTSTRAAT 14 TILBURG

De Hyacintstraat is zo’n straat die je eigenlijk alleen kent als je er woont. Grenzend aan het Molenbochtplein, verscholen in een rustige, groene buurt ademt deze straat een bijna dorps karakter, terwijl het bruisende centrum van Tilburg zich op slechts enkele minuten afstand bevindt. Hier hoor je ’s ochtends vogels in plaats van verkeer, groet je elkaar nog bij het voorbijgaan en voelt thuiskomen elke dag opnieuw als een klein moment van rust.

De wijk is geliefd bij jonge gezinnen én doorstromers die de balans zoeken tussen stad en sereniteit. Speelgelegenheden, scholen en dagelijkse voorzieningen liggen binnen handbereik, net als gezellige koffietentjes, winkels en restaurants richting het centrum. De Hyacintstraat is zonder twijfel een verborgen pareltje: discreet, charmant en verrassend centraal.

Een warm welkom – Sfeervol wonen, van voor tot achter

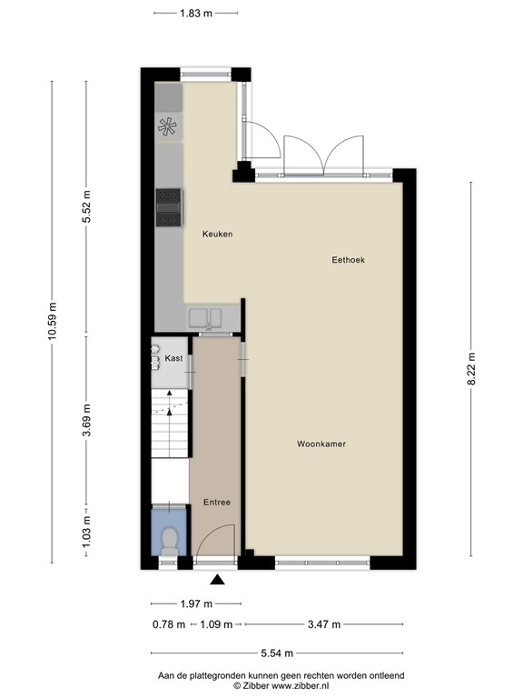
Achter de karakteristieke gevel schuilt een woning waar sfeer en comfort naadloos samenkomen. De entree verwelkomt je met een prachtige authentieke tegelvloer die direct de toon zet. De stalen deur met glas vormt een elegante overgang naar de woonkamer en laat het licht vrij doorstromen.

Leefruimte met karakter

De woonkamer voelt licht, ruim en uitnodigend aan. Strakke witte muren en plafonds vormen een rustige basis, terwijl de gietvloer zorgt voor een moderne, luxe uitstraling. Dankzij de openslaande deuren naar de achtertuin vervaagt de grens tussen binnen en buiten. Er is volop ruimte voor een royale zithoek én een gezellige eethoek – een plek waar lange avonden met vrienden vanzelf ontstaan.

De keuken als blikvanger

Aan de achterzijde van de woonkamer bevindt zich de open keuken, vernieuwd in 2021. De gietvloer loopt hier naadloos door en versterkt het gevoel van eenheid. Lichte houten keukenkasten, een dik donker werkblad en zwarte accenten geven de keuken een stoer en warm karakter. De zwarte afzuigkap, vaatwasser en Quooker zijn stijlvol geïntegreerd, maar dé eyecatcher is zonder twijfel het zwarte Boretti gasfornuis met extra brede oven – gemaakt voor kookliefhebbers. Vanuit de keuken stap je zo de zonnige achtertuin in. 

Eerste verdieping – Rust & comfort

Op de eerste verdieping bevinden zich drie slaapkamers: twee aan de achterzijde en één aan de voorzijde, ingericht als master bedroom en voorzien van een eigen wastafel. Alle slaapkamers en de overloop zijn afgewerkt met een fraaie houtlook laminaatvloer, wat zorgt voor een warme, rustige sfeer.
De badkamer aan de voorzijde is volledig betegeld en beschikt over een wastafel met meubel en een ligbad met douchefunctie – praktisch en comfortabel.

Tweede verdieping – Verrassend ruim

De tweede verdieping is een volwaardige woonlaag dankzij de grote dakkapel aan de achterzijde. Op de voorzolder vind je de aansluitingen voor wasmachine en droger. Daarnaast is hier een vierde slaapkamer gerealiseerd: licht, ruim en veelzijdig in gebruik – perfect als slaapkamer, werkkamer of hobbyruimte.

Buitenleven op z’n best

Zowel de voor- als achtertuin zijn onderhoudsvriendelijk ingericht. De achtertuin ligt op het zuiden en biedt een zonnig terras direct achter de woning. Achterin bevindt zich een fijne overkapping waar je ook tijdens een zomerse regenbui heerlijk buiten zit. Via de overkapping zijn twee bergingen bereikbaar én de praktische achterom. De tuin is bovendien een waar paradijs voor liefhebbers van vers fruit: een circa 45 jaar oude druif die jaarlijks honderden trossen geeft, twee appelbomen die samen elk jaar minimaal 200 eetbare, biologisch geteelde appels opleveren, aangevuld met een bramenstruik, een vijg en frambozen. In de voortuin geniet je juist weer van de middag- en avondzon – elk moment van de dag heeft hier zijn eigen plek.

Pluspunten op een rij:

- Bouwjaar: 1919;
- Woonoppervlak: 118 m²;
- Perceeloppervlakte: 166 m²;
- Inhoud: 442 m³;
- Vernieuwd schuin dak + isolatie 2024;
- Vernieuwd plat dak uitbouw + isolatie 2021;
- Rustig wonen in een kindvriendelijke buurt;
- NEN 2580 meetrapport*.

Wil je deze bijzondere woning met zijn vele mogelijkheden bezichtigen?
Dat begrijpen wij heel goed!
Bel of mail ons dan voor een afspraak:

Tel: 013 - 30 33 195
Mail: info@viapaulmakelaardij.nl

Via wie?
Via Paul Makelaardij natuurlijk!
Via wie anders?

* De NEN 2580 meetnorm is een eenduidige meetnorm, waarbij met bepaalde richtlijnen rekening gehouden wordt. Zo wordt o.a. een zolder zonder vaste trap of met een lichtoppervlakte (bv dakraam) kleiner dan 0,5 m² niet tot de woonoppervlakte gerekend. Hierdoor kan de woonoppervlakte soms kleiner lijken dan de daadwerkelijke vloeroppervlakte en kleiner lijken dan bij vergelijkbare woningen waar de makelaar de meetnorm niet toe heeft gepast. Ondanks het feit dat de meetnorm verplicht is, hanteren niet alle makelaars consequent de norm. Via Paul Makelaardij laat haar woningen inmeten door een erkend bedrijf. Het meetrapport van deze woning is dan ook, indien gewenst, ter inzage.

Ten aanzien van deze verkoopbrochure zijn de gegevens in deze brochure met de grootste zorg samengesteld. Voor de juistheid van de verstrekte informatie zijn wij in grote mate afhankelijk van derden. Aan vermelde tekst, maten en bijgevoegde tekeningen kunnen derhalve geen rechten worden ontleend. Via Paul makelaardij en de verkoper aanvaarden geen aansprakelijkheid ten aanzien van de gegevens in deze brochure.

Kenmerken