Beschrijving

IR. KIPPERMANSTRAAT 44

Stijlvol en duurzaam wonen nabij het bruisende hart van Tilburg

De omgeving: een perfecte balans tussen stad en rust
Welkom in de Ir. Kippermanstraat, een moderne en geliefde woonstraat in Tilburg waar het stadsleven en rust moeiteloos samenkomen. Deze straat ligt in een jonge, ruim opgezette woonwijk met veel groen, brede trottoirs en een prettige, veilige sfeer. Hier woon je op korte afstand van het centrum van Tilburg, met al haar gezellige cafés, sfeervolle restaurants en levendige winkels, maar toch in een omgeving waar rust en privacy overheersen.
De ligging is ideaal: nabij diverse supermarkten, scholen, sportvoorzieningen en het openbaar vervoer. Ook het Spoorpark en de Piushaven – met hun gezellige terrassen en wandelroutes – liggen binnen handbereik. En met de uitvalswegen richting Eindhoven, Breda en ’s-Hertogenbosch in de buurt, is de Ir. Kippermanstraat een perfecte uitvalsbasis voor wie het beste van twee werelden zoekt.

Welkom thuis
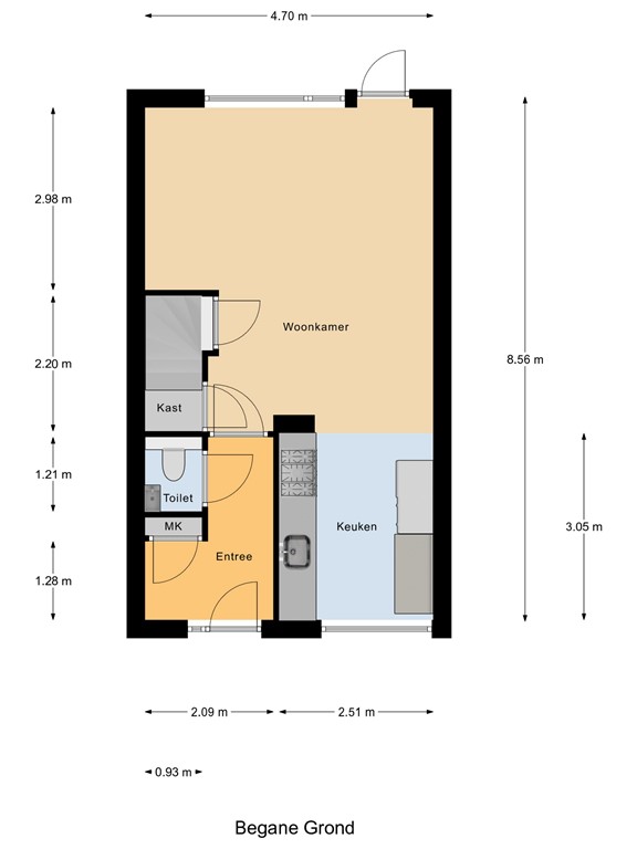
Bij binnenkomst via de nette hal voel je het meteen: dit huis is met zorg bewoond en straalt warmte en comfort uit. De hal is voorzien van een modern toilet met fontein en een meterkast, waarna je doorloopt naar de woonkamer – een fijne, lichte ruimte waar sfeer en functionaliteit samenkomen.

Woonkamer vol licht en leven
De begane grond is voorzien van een strakke tegelvloer met vloerverwarming die zorgt voor een behaaglijk woonklimaat, het hele jaar door. De openslaande deuren verbinden binnen en buiten moeiteloos en nodigen uit tot lange avonden met de deuren open, terwijl de zon langzaam ondergaat in de zuidwestelijke stadstuin.

Koken met plezier
De open keuken vormt het hart van de woning en staat in verbinding met de woonkamer. Hier kook je met gemak op de vijfpits gaskookplaat, met alle benodigde inbouwapparatuur binnen handbereik: een vaatwasser, koelkast, afzuigkap en combi oven. De neutrale, tijdloze afwerking maakt het geheel stijlvol en onderhoudsvriendelijk.

Zon, rust en privacy
De onderhoudsvriendelijke zonnige stadstuin ligt op het zuidwesten en is een heerlijke plek om te ontspannen. Of je nu geniet van een barbecue met vrienden of een goed boek in de zon, deze tuin biedt een oase van rust. Achterin bevindt zich een vrijstaande houten berging met elektra – perfect voor fietsen, tuinmeubelen of gereedschap. De tuin is ook bereikbaar via de gezamenlijke brandgang en is afgesloten met een hek. Enkel bereikbaar voor bewoners. 

Slaapkamers met karakter
De eerste verdieping telt twee ruime slaapkamers, beide keurig afgewerkt en met veel lichtinval. De badkamer is netjes betegeld en voorzien van een douchecabine, tweede toilet en wastafelmeubel – praktisch en verzorgd. De badkamer is deels vervangen in 2025. 
De tweede verdieping verrast met nog eens twee identieke royale slaapkamers, de slaapkamers aan de voorzijde zijn voorzien van  openslaande deuren en een charmant Frans balkon. Hier vind je bovendien een ruime was-/bergruimte met aansluitingen voor wasmachine en droger, de CV-ketel (2016) en de omvormer voor de zonnepanelen.

Duurzaam en comfortabel
Met energielabel A en 8 zonnepanelen is dit huis niet alleen comfortabel, maar ook toekomstgericht. De combinatie van vloerverwarming, goede isolatie en een doordachte indeling zorgt voor een energiezuinige en aangename leefomgeving.

Altijd een autoplek 
De woning beschikt over een eigen parkeerplaats, en voor een tweede auto is er een parkeervergunning mogelijk. In de wijk geldt betaald parkeren, wat bijdraagt aan de rust en de nette uitstraling van de straat.
Rustig wonen, dichtbij het bruisende stadsleven
Deze woning biedt het beste van twee werelden: rustig wonen, terwijl je binnen enkele minuten in het levendige centrum van Tilburg staat. Een ideale plek voor wie comfort, duurzaamheid en een fijne sfeer zoekt.

Pluspunten van de woning
•	Bouwjaar: 2001
•	VvE kosten 1 eigen parkeerplaats €7,94 per maand 
•	Woonoppervlak: 118 m²
•	Tussenwoning met 4 slaapkamers
•	Screens op de begane grond (achterzijde) 
•	8 zonnepanelen
•	Deels vloerverwarming
•	CV-ketel d.d. 2016
•	Energielabel A – geldig tot en met 26-08-2029
•	Rustig wonen nabij het centrum van Tilburg
•	NEN 2580 meetrapport*

Wil je deze bijzondere woning met zijn vele mogelijkheden bezichtigen?
Dat begrijpen wij heel goed!

Bel of mail ons dan voor een afspraak:
Tel: 013 - 30 33 195
Mail: info@viapaulmakelaardij.nl

Via wie?
Via Paul Makelaardij natuurlijk!
Via wie anders?

* De NEN 2580 meetnorm is een eenduidige meetnorm, waarbij met bepaalde richtlijnen rekening gehouden wordt. Zo wordt o.a. een zolder zonder vaste trap of met een lichtoppervlakte (bv dakraam) kleiner dan 0,5 m² niet tot de woonoppervlakte gerekend. Hierdoor kan de woonoppervlakte soms kleiner lijken dan de daadwerkelijke vloeroppervlakte en kleiner lijken dan bij vergelijkbare woningen waar de makelaar de meetnorm niet toe heeft gepast. Ondanks het feit dat de meetnorm verplicht is, hanteren niet alle makelaars consequent de norm. Via Paul Makelaardij laat haar woningen inmeten door een erkend bedrijf. Het meetrapport van deze woning is dan ook, indien gewenst, ter inzage.
Ten aanzien van deze verkoopbrochure zijn de gegevens in deze brochure met de grootste zorg samengesteld. Voor de juistheid van de verstrekte informatie zijn wij in grote mate afhankelijk van derden. Aan vermelde tekst, maten en bijgevoegde tekeningen kunnen derhalve geen rechten worden ontleend. Via Paul Makelaardij en de verkoper aanvaarden geen aansprakelijkheid ten aanzien van de gegevens in deze brochure.

Kenmerken