Beschrijving

JASMIJNSTRAAT 19 TILBURG

De Jasmijnstraat is zo’n straat waar je meteen voelt: hier woon je écht. Een charmante, rustige straat in een geliefde wijk van Tilburg, waar het straatbeeld wordt gekenmerkt door karaktervolle jaren ’30-woningen, volwassen groen en een prettige, gemoedelijke sfeer. Hier groeten buren elkaar nog en hangt een fijne balans tussen stadse levendigheid en ontspannen wonen.

Op korte afstand vind je winkels voor de dagelijkse boodschappen, gezellige horeca, scholen en sportvoorzieningen. Ook het centrum van Tilburg en het centraal station zijn eenvoudig bereikbaar, net als uitvalswegen richting Breda, Eindhoven en ’s-Hertogenbosch. Of je nu houdt van een wandeling in het groen, een koffietje in de stad of snel thuis wilt zijn na een werkdag: de ligging van de Jasmijnstraat maakt het allemaal moeiteloos mogelijk.

Een warm welkom – De sfeer van het huis

Je betreedt de woning via een karakteristieke voordeur met prachtig glas-in-lood bovenlicht. Nog voordat je binnen bent, voel je de authentieke charme die deze woning zo bijzonder maakt. Eenmaal binnen word je verwelkomd door een fijne lichtinval en een huiselijke sfeer die direct omarmt.

Wonen met allure

De ruime woonkamer is een echte sfeermaker. De erker aan de voorzijde zorgt niet alleen voor extra licht, maar geeft de ruimte ook een gevoel van grandeur en openheid. De parketvloer, het strakke plafond met sierlijst en de schouw met houtkachel vormen samen een warm en stijlvol geheel. Dit is zo’n ruimte waar lange avonden, knisperend vuur en goede gesprekken vanzelf ontstaan.

De keuken als hart van het huis

De lichte keuken is praktisch ingericht met onder- en bovenkastjes en voorzien van een kookplaat, RVS afzuigkap en oven. Vanuit hier heb je toegang tot de handige trapkast onder de trap naar de eerste verdieping: ideaal voor voorraad en extra bergruimte. Een fijne plek waar koken en dagelijks leven samenkomen.

Rust & comfort

Achter de keuken bevindt zich een hal die toegang biedt tot de badkamer en de achtertuin. Ook vind je hier twee vaste kasten, waarvan één met aansluiting voor de wasmachine. De volledig betegelde badkamer is verrassend ruim en compleet uitgevoerd met ligbad, douche, toilet en wastafel, gecombineerd met een groot wandmeubel. Een comfortabele plek om de dag ontspannen te beginnen of juist af te sluiten.

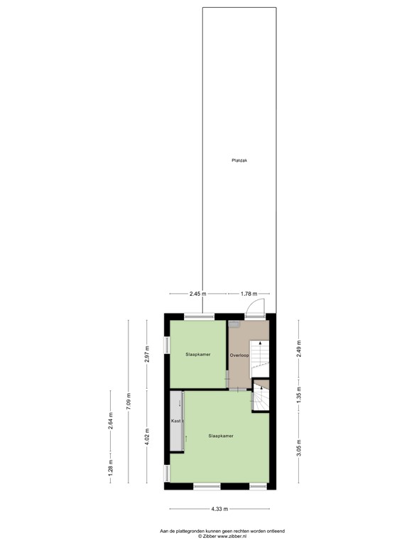
Slapen & ontspannen

Op de eerste verdieping vind je een overloop met airco en een wastafel, met toegang tot het platte dak van de begane grond. De houtlook laminaatvloer loopt hier mooi door naar de slaapkamers en zorgt voor rust en eenheid.
De master bedroom aan de voorzijde beschikt over een vaste kastenwand, terwijl de slaapkamer aan de achterzijde perfect dienst kan doen als kinder-, werk- of logeerkamer.

Volop mogelijkheden onder de kap

De zolderverdieping, bereikbaar via een vaste trap, is een verrassend ruime en lichte verdieping dankzij het grote dakraam. Hier is eenvoudig een derde slaapkamer te realiseren, maar ook een werk- of hobbyruimte behoort tot de mogelijkheden. Daarnaast is er nog een vliering aanwezig: ideaal voor het opbergen van koffers, kerstspullen en alles wat je niet dagelijks nodig hebt.

Buiten leven tot in de avondzon

De diepe achtertuin is gelegen op het westen, waardoor je tot laat in de avond kunt genieten van de zon. Achter in de tuin bevindt zich een grote overkapping, zodat je ook bij een zomerse regenbui comfortabel buiten zit. Verder is er een berging en een praktische achterom via een poort naast de woning, passend bij het gemak van een hoekwoning. Een tuin die uitnodigt tot lange zomeravonden, barbecues en ontspannen momenten.

Jouw eigen stempel

De woning heeft wat extra aandacht nodig, maar dat biedt juist een prachtige kans. Hier kun je nog volop je eigen smaak, stijl en ideeën tot leven brengen en er écht jouw thuis van maken.

Kenmerken van de woning:

- Bouwjaar: 1931;
- Woonoppervlak: 97 m²;
- Inhoud: 385 m³;
- Perceel oppervlakte: 193 m²;
- Energielabel F geldig tot en met 19-01-2036;
- NEN 2580 meetrapport*.

Wil je deze bijzondere woning met zijn vele mogelijkheden bezichtigen?
Dat begrijpen wij heel goed!
Bel of mail ons dan voor een afspraak:

Tel: 013 - 30 33 195
Mail: info@viapaulmakelaardij.nl

Via wie?
Via Paul Makelaardij natuurlijk!
Via wie anders?

* De NEN 2580 meetnorm is een eenduidige meetnorm, waarbij met bepaalde richtlijnen rekening gehouden wordt. Zo wordt o.a. een zolder zonder vaste trap of met een lichtoppervlakte (bv dakraam) kleiner dan 0,5 m² niet tot de woonoppervlakte gerekend. Hierdoor kan de woonoppervlakte soms kleiner lijken dan de daadwerkelijke vloeroppervlakte en kleiner lijken dan bij vergelijkbare woningen waar de makelaar de meetnorm niet toe heeft gepast. Ondanks het feit dat de meetnorm verplicht is, hanteren niet alle makelaars consequent de norm. Via Paul Makelaardij laat haar woningen inmeten door een erkend bedrijf. Het meetrapport van deze woning is dan ook, indien gewenst, ter inzage.

Ten aanzien van deze verkoopbrochure zijn de gegevens in deze brochure met de grootste zorg samengesteld. Voor de juistheid van de verstrekte informatie zijn wij in grote mate afhankelijk van derden. Aan vermelde tekst, maten en bijgevoegde tekeningen kunnen derhalve geen rechten worden ontleend. Via Paul makelaardij en de verkoper aanvaarden geen aansprakelijkheid ten aanzien van de gegevens in deze brochure.

Kenmerken