Beschrijving

KETELHAVENPLEIN 35 TILBURG (REESHOF)

Welkom aan het Ketelhavenplein in Tilburg, waar wooncomfort en stadsleven naadloos samenkomen. Dit moderne pleinstedelijke hart van de Reeshof ademt een ontspannen en vriendelijke sfeer. Hier woon je aan een levendig stadsplein, maar altijd met rust en privacy in je eigen woning.

Op loopafstand vind je alles wat het dagelijks leven comfortabel maakt: een compleet winkelcentrum, gezellige horecagelegenheden, zorgvoorzieningen en sportfaciliteiten. Wandel zo naar het Reeshofpark voor een middag zon, een picknick of een ontspannen wandeling langs het water. De wijk staat bekend om haar groene karakter, brede lanen en uitstekende voorzieningen.

Dankzij het nabijgelegen NS-station sta je binnen enkele minuten in het centrum van Tilburg, of stap je eenvoudig op de trein richting Eindhoven, Breda of Den Bosch. Ook met de auto ben je zo de stad uit richting de grote uitvalswegen. Ketelhavenplein is daarmee dé perfecte plek voor iedereen die gemak, stijl en een vleugje stads dynamiek zoekt — zonder concessies te doen aan rust en ruimte.

Licht dat leeft

Zodra je binnenkomt, voel je het meteen: dit is een woning vol licht en warmte. De royale raampartijen laten het daglicht overvloedig binnenvallen en zorgen voor een open, ruimtelijk gevoel. De lichte houtlook laminaatvloer met vloerverwarming geeft de woning die heerlijke huiselijke basis — van zachte winterochtenden tot lange zomeravonden.

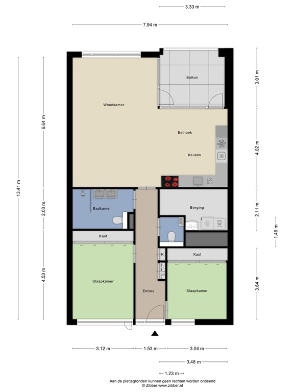
Een woonkamer om te leven

De woonkamer is een plek om tot rust te komen én te genieten. Ruimte voor een sfeervolle zithoek, een royale eettafel voor lange avonden met vrienden en familie, én plek voor jouw persoonlijke woonstijl. De luchtige indeling en neutrale afwerking creëren een rustige achtergrond voor elke woonwens.

Koken & ontmoeten

De moderne open keuken vormt het kloppend hart van de woning. Het strakke, greeploze ontwerp en de stijlvolle afwerking maken dit een plek waar koken, ontmoeten en genieten samenkomen. Met hoogwaardige inbouwapparatuur, een stoomoven op ooghoogte en praktische werkruimte wordt koken hier moeiteloos, gezellig en inspirerend.

Slapen met stijl

Twee prachtige slaapkamers, elk met vaste kastenwand, geven ruimte aan zowel rust als functionaliteit. De master bedroom is royaal en uitnodigend, perfect voor ontspanning. De tweede kamer? Ideaal als logeer- of kinderkamer, maar ook heerlijk als werk- of hobbyruimte.

Wellness-comfort in huis

De badkamer straalt luxe uit: een inloopdouche met hand- én regendouche, dubbele wastafel en een tweede toilet. Alles in één stijlvolle, rustige uitvoering. Geen concessies — alleen comfort. Dat wordt iedere dag genieten.

Buiten met uitzicht

Het royale balkon is een verlengstuk van de woonkamer. ’s Ochtends wakker worden met een kop koffie of ’s avonds ontspannen met een glas wijn: hier beleef je ieder seizoen. Het uitzicht op het plein geeft een gevoel van ruimte en levendigheid, zonder dat je iets inlevert op privacy.

Comfort & gemak

Een eigen parkeerplaats in de parkeergarage, een inpandige berging én een extra berging in het complex — praktisch gemak ten top. Tel daar de goede toegankelijkheid voor mindervaliden, lift, video-intercom en gemeenschappelijke fietsenstalling bij op, en het plaatje is compleet.

Belangrijkste kenmerken in één oogopslag:

- Bouwjaar 2015;
- Woonoppervlak: 95 m²;
- Inhoud: 314 m³;
- NEN 2580 meetrapport beschikbaar;
- Energielabel Energielabel A geldig tot en met 27-10-2035
- WtW-unit;
- 2 slaapkamers;
- Ruim balkon;
- Voorzien van vloerverwarming;
- Inpandige berging;
- VvE-bijdrage: €163,81 per maand (incl. parkeerplaats);
- Eigen parkeerplaats in de parkeergarage;
- Gezamenlijke fietsenstalling;
- NS-station en openbaar vervoer vlakbij;
- Winkelcentrum De Heyhoef en diverse uitvalswegen in directe nabijheid;
- Appartementencomplex en woning goed toegankelijk voor mindervaliden (brede deuren, geen drempels).

Wil je deze bijzondere woning met zijn vele mogelijkheden bezichtigen?
Dat begrijpen wij heel goed!
Bel of mail ons dan voor een afspraak:

Tel: 013 - 30 33 195
Mail: info@viapaulmakelaardij.nl

Via wie?
Via Paul Makelaardij natuurlijk!
Via wie anders?

De NEN 2580 meetnorm is een eenduidige meetnorm, waarbij met bepaalde richtlijnen rekening gehouden wordt. Zo wordt o.a. een zolder zonder vaste trap of met een lichtoppervlakte (bv dakraam) kleiner dan 0,5 m² niet tot de woonoppervlakte gerekend. Hierdoor kan de woonoppervlakte soms kleiner lijken dan de daadwerkelijke vloeroppervlakte en kleiner lijken dan bij vergelijkbare woningen waar de makelaar de meetnorm niet toe heeft gepast. Ondanks het feit dat de meetnorm verplicht is, hanteren niet alle makelaars consequent de norm. Via Paul Makelaardij laat haar woningen inmeten door een erkend bedrijf. Het meetrapport van deze woning is dan ook, indien gewenst, ter inzage.

Ten aanzien van deze verkoopbrochure zijn de gegevens in deze brochure met de grootste zorg samengesteld. Voor de juistheid van de verstrekte informatie zijn wij in grote mate afhankelijk van derden. Aan vermelde tekst, maten en bijgevoegde tekeningen kunnen derhalve geen rechten worden ontleend. Via Paul makelaardij en de verkoper aanvaarden geen aansprakelijkheid ten aanzien van de gegevens in deze brochure.

Kenmerken