Beschrijving

KORENBLOEMSTRAAT 191 TILBURG

Welkom in de Korenbloemstraat: een charmante straat waar de levendigheid van Tilburg vloeiend samensmelt met de rust van een fijne woonomgeving. Hier woon je op loop- en fietsafstand van het bruisende stadscentrum, maar toch in een buurt waar buren elkaar nog groeten, kinderen veilig kunnen spelen en waar het leven nét een tandje relaxter voelt. De populaire uitvalswegen liggen binnen handbereik, supermarkten en buurtwinkels bevinden zich om de hoek en cafés, restaurants, culturele hotspots en sportvoorzieningen zijn nooit ver weg.

Het is een straat waar karaktervolle woningen het straatbeeld bepalen en waar de sfeer je direct omarmt. Geen massale nieuwbouwwijk, maar een authentiek stukje Tilburg met ziel — precies de plek waar je thuiskomt zodra je er binnenstapt.

Een thuis met karakter

Sommige woningen hebben een prettige uitstraling. Andere hebben sfeer. En dan zijn er huizen zoals deze: een plek waar historie en comfort samenkomen. Zodra je de originele entree binnenstapt, voel je het — dit huis vertelt verhalen. De prachtige originele tegelvloer en de statige trapopgang vormen een sfeervolle introductie tot de rest van de woning.

Licht, lucht en leven

De doorzonwoonkamer is een uitnodiging op zichzelf. Hoge plafonds, een warme houten vloer, originele glas-in-loodramen en een overvloed aan licht die vrij door de ruimte stroomt. Het is de ideale setting voor een knusse filmavond, een feestelijke spelletjesavond met vrienden of gewoon een rustige avond voor jezelf met een goed boek. De dubbele tuindeuren trekken de tuin als het ware naar binnen — en zorgen op zonnige dagen voor een heerlijk verlengstuk van je leefruimte.

Koken met een glimlach

De keuken is een perfecte balans tussen modern gemak en warme sfeer. Uitgevoerd met een 4-pits gaskookplaat, combi-oven/magnetron, een charmante porseleinen spoelbak en een stoere restaurantkraan, nodigt deze ruimte uit tot koken, proberen, proeven en genieten. Het tweede aanrecht onder het raam geeft extra werkruimte én dat leuke uitzicht tijdens het bereiden van een maaltijd.

Praktisch én sfeervol

Aansluitend vind je de bijkeuken met separate toiletruimte: een ideale plek voor de wasmachine, extra apparatuur én directe toegang naar de tuin. De badkamer — fris, volledig betegeld en voorzien van een royale inloopdouche en modern wastafelmeubel — maakt de begane grond compleet.

Slaapkamers met sfeer, stijl en flexibiliteit

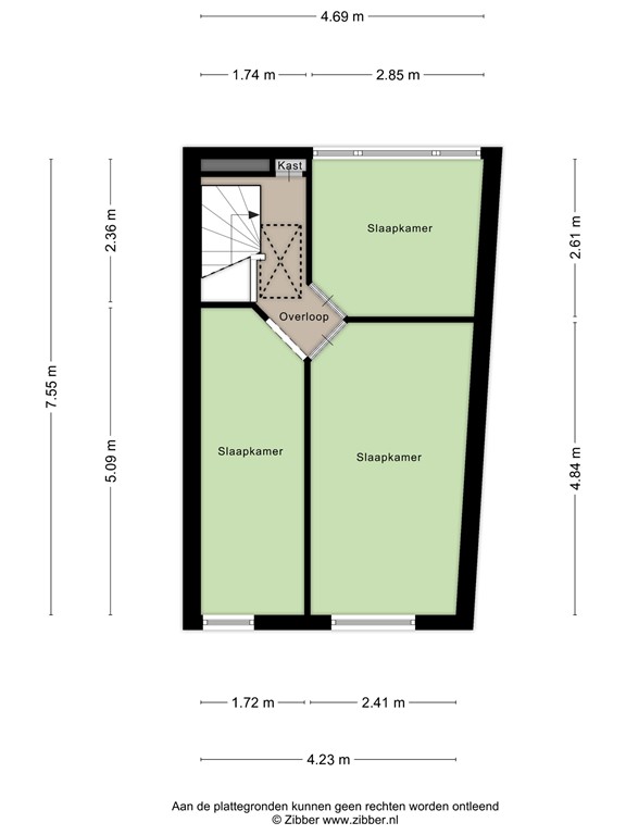
Op de eerste verdieping vind je drie fijn bemeten slaapkamers, elk met een eigen charme. Deze ruimtes zijn volledig naar wens in te vullen: creëer een royale master bedroom, richt één van de kamers in als walk-in-closet of maak er een sfeervolle kinderkamer van. De huidige indeling – met één kamer als walk-in – laat perfect zien hoeveel mogelijkheden deze verdieping biedt.

De tweede verdieping is nog een ongeschreven hoofdstuk: nu een bergzolder, maar dankzij de nokhoogte uitstekend geschikt om om te toveren tot volwaardige extra verdieping. Denk aan een master bedroom, een thuiskantoor of een hobbyruimte.

Zuidzon in de stad

De zonnige stadstuin — gelegen op het zuiden — is precies groot genoeg om optimaal te genieten en toch onderhoudsvriendelijk te blijven. Een fijne plek om te ontbijten, borrelen, tuinieren of simpelweg even helemaal niks te doen. De stenen berging en achterom maken het geheel compleet.

Kenmerken van de woning:

- Bouwjaar: 1906
- Woonoppervlak: 88 m²
- Perceel: 118 m²
- Inhoud: 352 m³
- 3 slaapkamers
- Charmante gevel
- Authentieke en karakteristieke details
- Zuiden gelegen tuin
- Energielabel D geldig tot en met 24-11-2035
- NEN 2580 meetrapport aanwezig*

Wil je deze bijzondere woning met zijn vele mogelijkheden bezichtigen?
Dat begrijpen wij heel goed!
Bel of mail ons dan voor een afspraak:

Tel: 013 - 30 33 195
Mail: info@viapaulmakelaardij.nl

Via wie?
Via Paul Makelaardij natuurlijk!
Via wie anders?

De NEN 2580 meetnorm is een eenduidige meetnorm, waarbij met bepaalde richtlijnen rekening gehouden wordt. Zo wordt o.a. een zolder zonder vaste trap of met een lichtoppervlakte (bv dakraam) kleiner dan 0,5 m² niet tot de woonoppervlakte gerekend. Hierdoor kan de woonoppervlakte soms kleiner lijken dan de daadwerkelijke vloeroppervlakte en kleiner lijken dan bij vergelijkbare woningen waar de makelaar de meetnorm niet toe heeft gepast. Ondanks het feit dat de meetnorm verplicht is, hanteren niet alle makelaars consequent de norm. Via Paul Makelaardij laat haar woningen inmeten door een erkend bedrijf. Het meetrapport van deze woning is dan ook, indien gewenst, ter inzage.

Ten aanzien van deze verkoopbrochure zijn de gegevens in deze brochure met de grootste zorg samengesteld. Voor de juistheid van de verstrekte informatie zijn wij in grote mate afhankelijk van derden. Aan vermelde tekst, maten en bijgevoegde tekeningen kunnen derhalve geen rechten worden ontleend. Via Paul makelaardij en de verkoper aanvaarden geen aansprakelijkheid ten aanzien van de gegevens in deze brochure.

Kenmerken