Beschrijving

LANGE NIEUWSTRAAT 150 - TILBURG

Waar historie en luxe elkaar ontmoeten
Aan de rand van het bruisende stadscentrum, in het geliefde Theresia, staat een woning waar je binnenloopt in een verhaal van karakter, comfort en stijlvolle vernieuwing. Achter de prachtige authentieke gevel uit 1905 gaat een volledig gerenoveerd thuis schuil dat met oog voor detail is afgewerkt. Een unieke combinatie van sfeer en modern woonplezier, klaar om zonder enige moeite te betrekken.

Een warme welkom in licht en ruimte
De woonkamer ademt rust, openheid en verfijning. Grote raampartijen laten het daglicht rijkelijk binnen, waardoor de eikenhouten vloer prachtig tot zijn recht komt. De strak gestucte wanden en het hoogstaande afwerkingsniveau zorgen voor een serene basis waarin elke woonstijl tot bloei komt.

Koken in eigentijdse elegantie
De nieuwe keuken is een lust voor het oog: greeploos, uitgevoerd in een zachte taupe tint, met een strak composieten werkblad. De zwarte spoelbak en kraan voegen een moderne elegantie toe, terwijl de inductiekookplaat met geïntegreerd afzuigsysteem zorgt voor een rustige, minimalistische uitstraling. Geheel uitgerust met een combi-oven, koel-vriescombinatie en vaatwasser vormt dit een keuken waar koken vanzelf een moment van genieten wordt.

Functioneel gemak met een stijlvolle twist
In de bijkeuken vind je het toilet en de aansluiting voor de wasmachine. Praktische voorzieningen die slim uit het zicht zijn geplaatst, zonder in te leveren op sfeer of stijl.

Verfijnde rust op de eerste verdieping
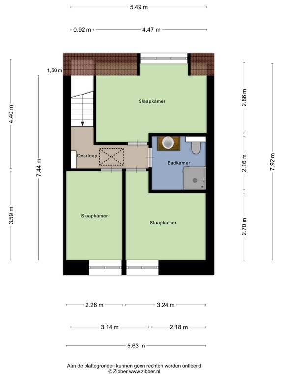
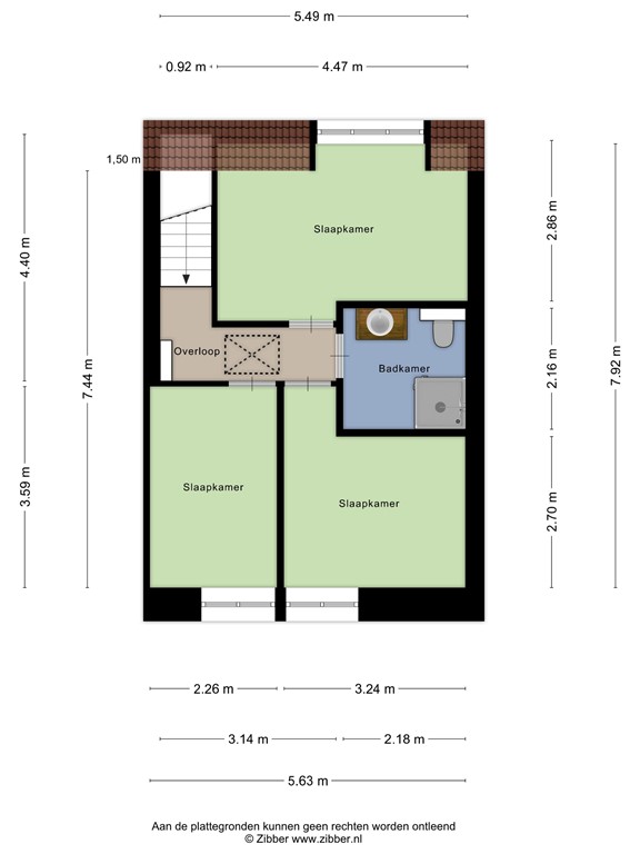
De eerste verdieping biedt drie slaapkamers, allemaal voorzien van dezelfde prachtige eikenhouten vloer als beneden. Dit doorlopende materiaalgebruik creëert een gevoel van harmonie en luxe. De badkamer is een waar hoogtepunt: strak ontworpen, met grote grijzige tegels, gouden accenten en een houten wastafelmeubel dat warmte toevoegt. De inloopdouche en het tweede toilet maken de ruimte compleet tot een luxe wellnesservaring.

Een zonnige tuin met mogelijkheden
De onderhoudsvriendelijke tuin op het zuiden nodigt uit tot ontspannen. Achterin staat een volledig geïsoleerde stenen berging, voorzien van elektra en dus inzetbaar voor talloze doeleinden: atelier, werkruimte, hobbykamer. Wat jouw plannen ook zijn, deze ruimte groeit moeiteloos met je mee.

Wonen in het meest geliefde stukje van de stad
Theresia is een wijk met ziel: een mix van historie, karakteristieke straten en een warm buurtgevoel. Je woont hier op loopafstand van het stadscentrum, het Centraal Station, de levendige Spoorzone en talloze restaurants en winkels. Het Wilhelminapark en de groene lanen maken de omgeving compleet tot een plek waar stad en rust in balans zijn.

Een bijzonder thuis, tot in detail verfijnd
Deze prachtige woning combineert de charme van 1905 met het comfort en de luxe van nu. Een stijlvol, instap klaar huis op een toplocatie in Tilburg; klaar voor een nieuwe bewoner die de kwaliteit en sfeer hier direct herkent.

Kenmerken:
* Bouwjaar: 1905
* Woonoppervlak: 96 m²
* Gerenoveerde woning 
* Keuken, badkamer en vloeren uit 2025
* 3 slaapkamers + riante bergzolder
* Tuin op het zuiden en riant bijgebouw met veel opties
* Energielabel A
* In gewilde wijk Theresia
* Nabij centrum, Spoorzone, Centraal Station, winkels en scholen
* NEN 2580 meetrapport*

Wil je deze bijzonder ruime en sfeervolle woning bezichtigen?
Dat begrijpen wij heel goed!
Bel of mail ons dan voor een afspraak:

Tel: 013 - 30 33 195
Mail: info@viapaulmakelaardij.nl

Via wie?
Via Paul Makelaardij natuurlijk!
Via wie anders?

* De NEN 2580 meetnorm is een eenduidige meetnorm, waarbij met bepaalde richtlijnen rekening gehouden wordt. Zo wordt o.a. een zolder zonder vaste trap of met een lichtoppervlakte (bv dakraam) kleiner dan 0,5 m² niet tot de woonoppervlakte gerekend. Hierdoor kan de woonoppervlakte soms kleiner lijken dan de daadwerkelijke vloeroppervlakte en kleiner lijken dan bij vergelijkbare woningen waar de makelaar de meetnorm niet toe heeft gepast. Ondanks het feit dat de meetnorm verplicht is, hanteren niet alle makelaars consequent de norm. Via Paul Makelaardij laat haar woningen inmeten door een erkend bedrijf. Het meetrapport van deze woning is dan ook, indien gewenst, ter inzage.

Ten aanzien van deze verkoopbrochure zijn de gegevens in deze brochure met de grootste zorg samengesteld. Voor de juistheid van de verstrekte informatie zijn wij in grote mate afhankelijk van derden. Aan vermelde tekst, maten en bijgevoegde tekeningen kunnen derhalve geen rechten worden ontleend. Via Paul makelaardij en de verkoper aanvaarden geen aansprakelijkheid ten aanzien van de gegevens in deze brochure.

Kenmerken