Beschrijving

LEENHERENSTRAAT 34 TILBURG

De Leenherenstraat is zo’n straat waar je je meteen thuis voelt. Het huis is gelegen in het autoluwe en rustigste deel van de straat, midden in het geliefde Piushavengebied. Hier woon je op een plek waar stadse levendigheid en ontspannen wonen naadloos in elkaar overvloeien. Vanuit de woning wandel je zó naar de haven, waar het leven zich afspeelt aan het water. Denk aan lange zomeravonden, een glas wijn op het terras en de geur van goed eten die je tegemoetkomt. In de directe omgeving vind je een keur aan sfeervolle restaurants en hotspots zoals RAK, Jaxx Marina, Smit Vis aan de Haven, Pulcinos en natuurlijk bakker Alma voor dat ene perfecte brood of gebakje. Loop je richting de draaibrug bij Villa La Vida, dan is de kans groot dat je op zonnige dagen IJscoman Vittorio tegenkomt — een Tilburgs icoon waar verhalen en ambachtelijk ijs samenkomen.

Even behoefte aan rust? Aan de andere kant van de Piushaven ligt het prachtige natuurgebied Moerenburg, waar je heerlijk kunt wandelen en ontsnappen aan de drukte. Ook het Leijpark ligt op loopafstand en is ideaal voor een rondje hardlopen, een picknick of gewoon even niets. Praktisch gezien zit je hier eveneens perfect. Het centrum van Tilburg bevindt zich op korte loopafstand, net als het recent vernieuwde AaBe Fabrieksterrein voor de dagelijkse boodschappen. Scholen — zowel basis- als middelbaar onderwijs — liggen op korte fiets- en loopafstand. En wil je de stad toch even uit (al kunnen wij ons dat nauwelijks voorstellen), dan ben je via de Ringbaan Oost en Ringbaan Zuid zó onderweg richting Breda, Eindhoven, Waalwijk of de omliggende dorpen.

Kortom: een locatie waar alles klopt. Een TOP plek voor wie wil wonen met karakter, comfort en alles binnen handbereik.

Binnenkomen met karakter – een huis dat je voelt zodra je binnenstapt

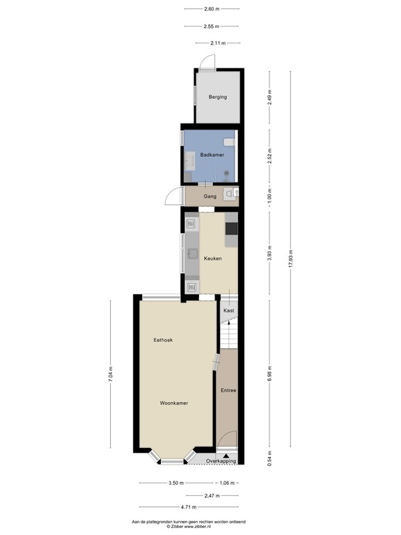
Zodra je de woning binnenstapt, voel je het: dit is geen standaard huis. Authentieke details zoals de prachtige glas-in-loodramen en de charmante erker in zowel de woonkamer als de slaapkamer geven de woning een unieke uitstraling en een warm, historisch karakter. In de entree bevinden zich de trap naar de eerste verdieping en de toegang tot de living — een uitnodiging om verder te ontdekken.

Woonkamer: licht, ruimte en elegantie

De woonkamer is aan de voorzijde uitgebouwd met een erker, wat zorgt voor een speels effect en extra lichtinval. Het is een ruimte waar je moeiteloos een royale zithoek én een grote eettafel kwijt kunt. Het hoge plafond, de strak afgewerkte wanden en de warme eikenhouten vloer vormen samen een stijlvol en harmonieus geheel. Hier voel je je direct op je gemak — of je nu gasten ontvangt of geniet van een rustige avond thuis.

Keuken: het kloppend hart van het huis

Aan de achterzijde is een uitbouw gerealiseerd waarin zich de keuken bevindt. Het grote raam boven het aanrecht laat het daglicht rijkelijk binnenstromen en maakt koken hier extra prettig. De lichte keuken is van alle gemakken voorzien: een inductie kookplaat met RVS afzuigkap, vaatwasser, koelkast, combi-oven/magnetron op ooghoogte én een ingebouwd koffiezetapparaat voor dat perfecte begin van de dag. Praktisch detail: onder de trap bevindt zich een handige bergkast.

Badkamer & portaal: rust en comfort

Via het portaal achter de keuken bereik je zowel de badkamer als de achtertuin. De volledig betegelde badkamer is strak en modern ingericht met een brede wastafel met ondermeubel, een toilet en een royale inloopdouche. Extra comfortabel is de aanwezige vloerverwarming, waardoor deze ruimte ook op koudere dagen een aangename plek is om de dag te beginnen of ontspannen af te sluiten.

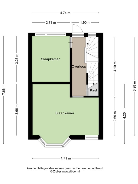
Eerste verdieping: slapen, werken, ontspannen

Op de eerste verdieping geeft de overloop toegang tot twee slaapkamers. Aan de voorzijde bevindt zich de grootste slaapkamer, opnieuw met die karakteristieke erker en uitzicht over de Leenherenstraat. Aan de achterzijde ligt een tweede, ruime slaapkamer — perfect als kinder-, hobby- of thuiswerkkamer. Beide kamers zijn keurig afgewerkt en voorzien van een massief grenen houten vloer met een warme, natuurlijke uitstraling, wat bijdraagt aan de rustige en comfortabele sfeer.

Tweede verdieping: een master bedroom met allure

Via een vaste trap bereik je de tweede verdieping, waar zich de huidige master bedroom bevindt. Dit is een ruimte met absolute wow-factor. De zichtbare houten spanten en extra hoogte geven de kamer een bijzonder karakter. Dankzij de dakkapellen aan zowel de voor- als achterzijde baadt deze verdieping in natuurlijk licht en voelt hij als een volwaardige woonlaag. De massief eikenhouten vloer met lichte whitewash versterkt het luxe gevoel. Aan weerszijden zijn op maat gemaakte inbouwkasten en lades gerealiseerd, ideaal voor kleding en extra bergruimte. De aanwezige wastafel maakt het geheel extra comfortabel.

Tuin: zon, rust en gemak

De onderhoudsvriendelijke achtertuin is strak aangelegd met keramische tegels, wat betekent: geen groene aanslag en minimaal onderhoud. Door de lengte van de tuin profiteer je hier niet alleen van ochtendzon, maar kun je de hele dag van de zon genieten — een zeldzaam pluspunt in deze buurt. Achterin de tuin bevindt zich een ruime berging voor fietsen en tuinspullen. Dankzij de achterom is de tuin ook praktisch en goed bereikbaar.

- Bouwjaar 1936;
- Perceeloppervlak 105 m²;
- Woonoppervlak 115 m²;
- Inhoud 426 m³;
- 5 zonnepanelen;
- Energielabel C geldig tot en met 03-07-2035
- NEN 2580 meetrapport*;
- Voorzien van authentieke details;
- Gelegen in het populaire Piushavengebied;
- Winkels, scholen en de diverse uitvalswegen
  op korte afstand gelegen.

Wil je deze bijzondere woning met zijn vele mogelijkheden zelf ervaren?
Dat begrijpen wij heel goed.

Bel: 013 – 30 33 195
Mail: info@viapaulmakelaardij.nl

Via wie?
Via Paul Makelaardij natuurlijk.
Via wie anders?

* De NEN 2580 meetnorm is een eenduidige meetnorm, waarbij met vaste richtlijnen wordt gewerkt. Hierdoor kan de woonoppervlakte soms kleiner lijken dan de daadwerkelijke vloeroppervlakte. Via Paul Makelaardij laat haar woningen inmeten door een erkend bedrijf. Het meetrapport is, indien gewenst, ter inzage.

Aan deze verkoopbrochure kunnen geen rechten worden ontleend. Via Paul Makelaardij en de verkoper aanvaarden geen aansprakelijkheid voor eventuele onjuistheden.

Kenmerken