Via Paul Makelaardij

Verkocht: Metslawierstraat 51, 5045 EB Tilburg

Beschrijving

METSLAWIERSTRAAT 51 TILBURG

Een huis dat nét even anders is
Ben je op zoek naar een starterswoning die zich niet in het rijtje van dertien-in-een-dozijn laat plaatsen? Dan is dit jouw kans. Deze tussenwoning aan de Metslawierstraat 51 in Tilburg combineert moderne vormgeving met een speelse indeling en is bovendien volledig geïsoleerd. Een woning waar je zó in kunt trekken; comfortabel, eigentijds en verrassend anders.

Thuiskomen in de Reeshof
De woning ligt in een fijne, kindvriendelijke wijk in de Reeshof, met alle gemakken binnen handbereik. Parkeren doe je voor de deur, dagelijkse boodschappen haal je bij winkelcentrum Heyhoef, en de wijk zelf biedt volop speelveldjes, scholen en sportfaciliteiten. Rustig wonen, maar alles dichtbij.

Een verrassende binnenkomer
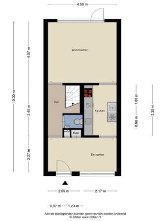
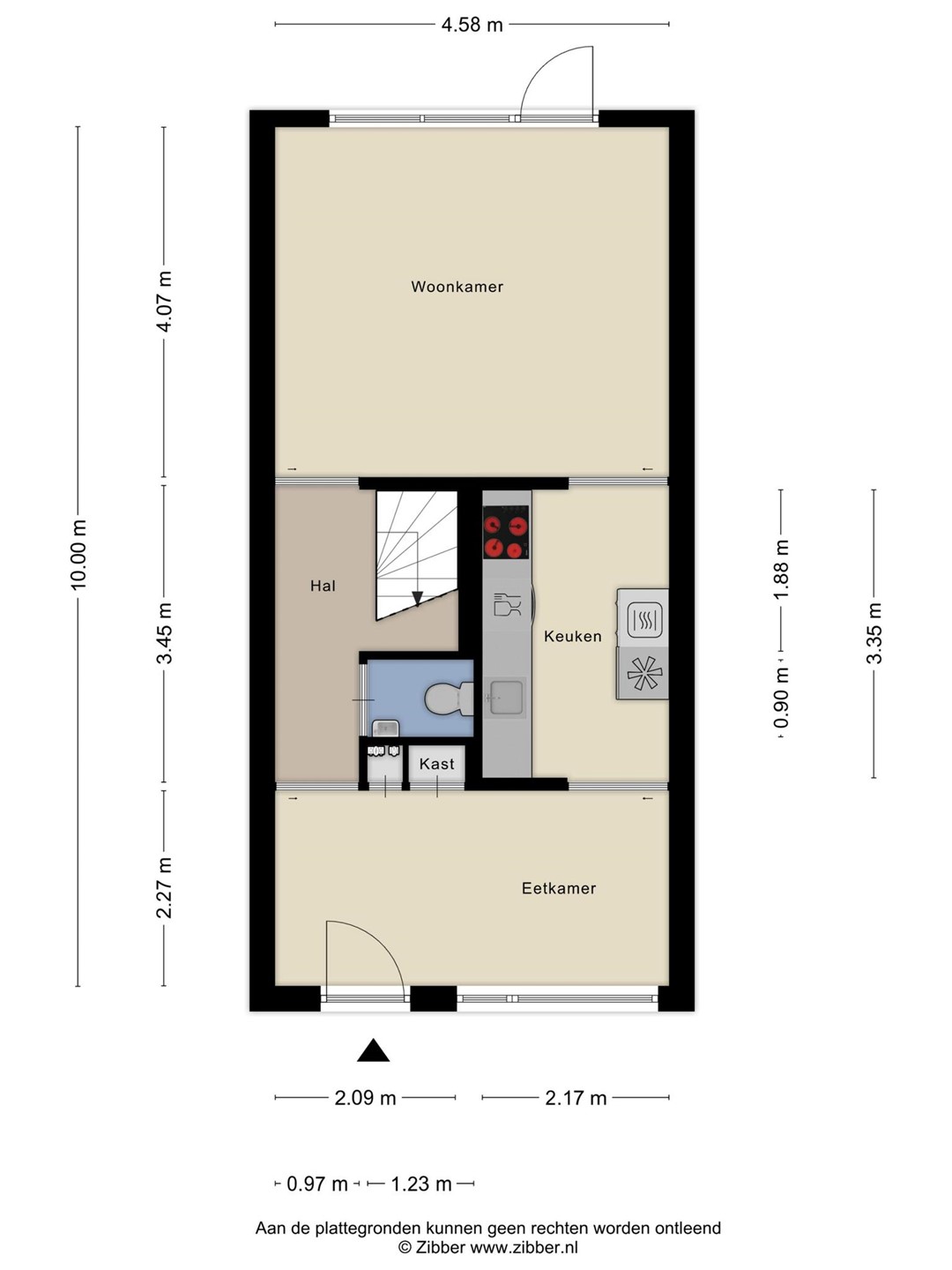
Geen standaard halletje, maar meteen sfeer zodra je binnenkomt. Je stapt binnen in de gezellige eetkamer, waar je moeiteloos een lange eettafel kwijt kunt. Perfect voor etentjes met vrienden of gewoon een uitgebreid ontbijt op zondagochtend.

Aan de achterzijde bevindt zich de lichte zitkamer met grote ramen en een directe verbinding naar de tuin via een loopdeur met hor. Tussenin? De moderne keuken uit 2013, voorzien van alle gemakken zoals een keramische kookplaat, combimagnetron, vaatwasser, koelkast en vriezer. Witte greeploze kasten zorgen voor een strakke look.

Dankzij slimme schuifdeuren kun je de ruimtes afsluiten, zodat je altijd de sfeer kunt creëren die jij wilt. Praktisch detail: er is ook een toilet, trapopgang en een vaste kast met de meterkast en stadsverwarming.

Ruimte en rust op de verdieping
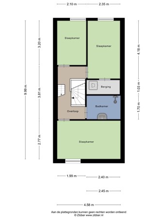
Op de eerste verdieping vind je drie fijne slaapkamers en een nette badkamer met douche, wastafel en radiator. De hoge plafonds geven de kamers een extra ruimtelijk gevoel. Een van de slaapkamers aan de achterzijde heeft een handige bergruimte, met aansluiting voor wasapparatuur ook ideaal als extra kastruimte.

Een extra verdieping om van te dromen
Via een vaste trap bereik je de tweede verdieping, waar je verrast wordt door een royale vierde slaapkamer. Dankzij de twee Velux dakramen is het hier heerlijk licht, ideaal als hoofdslaapkamer, werkkamer of logeerruimte.

Buiten genieten zonder zorgen
De achtertuin is met zorg aangelegd en onderhoudsvriendelijk ingericht met bestrating, borders, een drain voor regenwaterafvoer, en een praktische berging met achterom. De berging is uitgebreid met een overkapping en het dak is professioneel vervangen door een kunststof exemplaar.

Klaar voor de volgende stap?
Metslawierstraat 51 is een woning met karakter en comfort, ideaal voor starters of jonge gezinnen die nét iets meer zoeken. Kom kijken, proef de sfeer, en wie weet voelt dit straks als jouw nieuwe thuis.

Even kort samengevat:

- Volledig geïsoleerde tussenwoning – energiezuinig en instapklaar;
- Moderne, speelse indeling – geen standaard woning;
- Lichte, tuingerichte woonkamer;
- Strakke keuken (2013) met moderne inbouwapparatuur;
- Vier slaapkamers;
- Nette badkamer;
- Aparte wasruimte/berging;
- Fraai aangelegde achtertuin met overkapping;
- Berging met kunststof dak;
- Rustige, kindvriendelijke ligging in de Reeshof;
- Parkeergelegenheid voor de deur;
- Voorzieningen op korte afstand zoals winkelcentrum Heyhoef, scholen, sportclubs en speeltuinen.

Kenmerken:

- Bouwjaar 1998;
- Perceeloppervlak 124 m²;
- Woonoppervlak 113 m²;
- Inhoud 399 m³;
- NEN 2580 meetrapport*.

Enthousiast geworden van deze woning? Dat begrijpen wij heel goed!
Neem snel contact op voor een bezichtiging, deze kans wil je niet missen!

Bel of mail ons dan voor een afspraak:
Tel: 013 - 30 33 195
Mail: info@viapaulmakelaardij.nl

Via wie?
Via Paul Makelaardij natuurlijk!
Via wie anders?

* De NEN 2580 meetnorm is een eenduidige meetnorm, waarbij met bepaalde richtlijnen rekening gehouden wordt. Zo wordt o.a. een zolder zonder vaste trap of met een lichtoppervlakte (bv dakraam) kleiner dan 0,5 m² niet tot de woonoppervlakte gerekend. Hierdoor kan de woonoppervlakte soms kleiner lijken dan de daadwerkelijke vloeroppervlakte en kleiner lijken dan bij vergelijkbare woningen waar de makelaar de meetnorm niet toe heeft gepast. Ondanks het feit dat de meetnorm verplicht is, hanteren niet alle makelaars consequent de norm. Via Paul Makelaardij laat haar woningen inmeten door een erkend bedrijf. Het meetrapport van deze woning is dan ook, indien gewenst, ter inzage.

Ten aanzien van deze verkoopbrochure zijn de gegevens in deze brochure met de grootste zorg samengesteld. Voor de juistheid van de verstrekte informatie zijn wij in grote mate afhankelijk van derden. Aan vermelde tekst, maten en bijgevoegde tekeningen kunnen derhalve geen rechten worden ontleend. Via Paul makelaardij en de verkoper aanvaarden geen aansprakelijkheid ten aanzien van de gegevens in deze brochure.

Kenmerken

Overdracht
Vraagprijs € 350.000,- k.k.
Status Verkocht
Aanvaarding In overleg
Aangeboden sinds Donderdag 7 augustus 2025
Laatste wijziging Maandag 29 september 2025
Bouw
Type object Eengezinswoning, woonhuis, tussenwoning
Soort bouw Bestaande bouw
Bouwjaar 1998
Oppervlaktes en inhoud
Perceeloppervlakte 124 m²
Woonoppervlakte 113 m²
Woonkameroppervlakte 19 m²
Inhoud 399 m³
Oppervlakte externe bergruimte 10 m²
Indeling
Aantal bouwlagen 3
Aantal kamers 7 (waarvan 4 slaapkamers)
Locatie
Ligging Aan rustige weg
In woonwijk
Tuin
Type Achtertuin
Hoofdtuin Ja
Oriëntering Noorden
Heeft een achterom Ja
Tuin 2 - Type Achtertuin
Energieverbruik
Energielabel A
Uitrusting
Verwarmingssysteem Stadsverwarming
Badkamervoorzieningen Inloopdouche
Wastafel
Tuin aanwezig Ja
Heeft schuur/berging Ja
Heeft ventilatie Ja
Kadastrale gegevens
Kadastrale aanduiding Tilburg AG 7610
Perceeloppervlakte 124 m²
Omvang Geheel perceel
Eigendomsituatie Eigen grond

Plattegronden

Brochure(s) en overige bijlagen