Beschrijving

PAUS ADRIAANSTRAAT 49 - Tilburg

Jaren ’30 charme met eigentijdse luxe

Wonen in een gezellige wijk
In een rustige straat in Tilburg staat deze karaktervolle jaren ’30 woning. Hier ervaar je de fijne mix van nostalgische details en hedendaags comfort. Met energielabel A, zonnepanelen en een moderne afwerking woon je niet alleen sfeervol, maar ook duurzaam en comfortabel. De woning ligt in de wijk Hoefstraat en is een levendige en centrale locatie in Tilburg. Je woont hier op loop- en fietsafstand van het centrum, de Spoorzone en diverse winkels en restaurants. Scholen en sportvoorzieningen liggen in de buurt en met zowel openbaar vervoer als uitvalswegen dichtbij, is de wijk uitstekend bereikbaar.

Een warm welkom
Stap binnen in de hal en laat je verrassen door de warme donkere houtlook PVC vloer die naadloos doorloopt in de woonkamer en keuken. De strak gestucte wanden en plafonds zorgen voor een moderne en frisse uitstraling, terwijl de afwerking rust en klasse uitstraalt.

Licht en leefruimte
De doorzonwoonkamer biedt volop licht en ruimte. Of je nu een grote eettafel wilt neerzetten voor gezellige diners of een knusse zithoek creëert voor lange avonden, hier kan het allemaal. Het is een fijne plek waar je direct het gevoel van thuiskomen ervaart.

Stijlvol koken
De keuken (2023) is strak wit met een donker werkblad, voorzien van een spoelbak, vaatwasser en inductiekookplaat. Aan de andere zijde vind je een grote kastenwand met combi-oven, koel-/vriescombinatie en veel bergruimte. Hier bereid je niet alleen de lekkerste gerechten, maar geniet je ook van de praktische indeling en moderne uitstraling.

Eigentijdse luxe in de badkamer
De badkamer (2023) straalt luxe uit met grote beige tegels, stijlvolle zwarte accenten en een ruime inloopdouche met regendouche. Het moderne wastafelmeubel met spiegelkast en het toilet maken de ruimte helemaal compleet. Een plek waar je de dag heerlijk kunt beginnen én afsluiten.

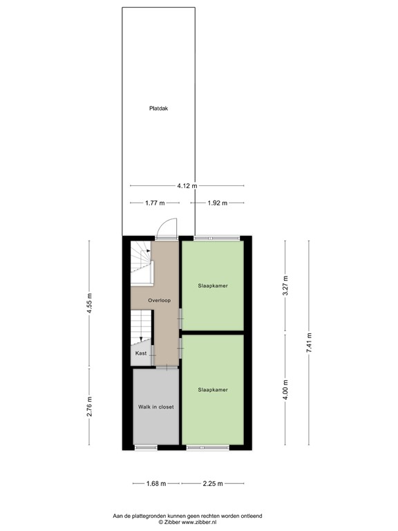
Slapen en ontspannen
Op de eerste verdieping vind je drie slaapkamers. Eén daarvan is ingericht als praktische walk-in closet. De lichte houtlook laminaatvloer en de strak afgewerkte wanden geven de verdieping een frisse en serene uitstraling.

Extra ruimte boven
De tweede verdieping is een nette zolderruimte, ideaal als bergzolder of voor de was. Hier bevinden zich de aansluitingen voor de wasmachine en droger. Alles overzichtelijk en netjes weggewerkt. Hier is nog een mogelijkheid voor het plaatsen van een dakkapel, waardoor een 4e slaapkamer gerealiseerd kan worden.

Buiten genieten
De diepe, onderhoudsvriendelijke tuin biedt volop mogelijkheden. Achterin is ruimte voor een zonnig zitje, perfect voor lange zomeravonden of een ontspannen kop koffie in de ochtendzon.

Pluspunten van deze woning

- Bouwjaar 1936, maar volledig eigentijds afgewerkt;
- Woonoppervlakte: 77 m²;
- Perceel 85 m²;
- Inhoud 293 m³;
- Energielabel A;
- NEN 2580 meetrapport*;
- 6 zonnepanelen;
- Doorzonwoonkamer met warme houtlook PVCvloer;
- Nieuwe keuken (2023) en badkamer (2023);
- Drie slaapkamers;
- Nette bergzolder met wasruimte;
- Onderhoudsvriendelijke tuin met zonnig terras.

Een instapklare jaren ’30 woning, duurzaam en sfeervol, klaar om jouw nieuwe thuis te worden.

Ben jij net zo enthousiast geworden als wij en wil je een bezichtiging inplannen?
Dat begrijpen wij heel goed! 

Bel of mail ons dan voor een afspraak: 
Tel:      013 - 30 33 195 
Mail:    info@viapaulmakelaardij.nl

Via wie? 
Via Paul Makelaardij natuurlijk! 
Via wie anders?

* De NEN 2580 meetnorm is een eenduidige meetnorm, waarbij met bepaalde richtlijnen rekening gehouden wordt. Zo wordt o.a. een zolder zonder vaste trap of met een lichtoppervlakte (bv dakraam) kleiner dan 0,5 m² niet tot de woonoppervlakte gerekend. Hierdoor kan de woonoppervlakte soms kleiner lijken dan de daadwerkelijke vloeroppervlakte en kleiner lijken dan bij vergelijkbare woningen waar de makelaar de meetnorm niet toe heeft gepast. Ondanks het feit dat de meetnorm verplicht is, hanteren niet alle makelaars consequent de norm. Via Paul Makelaardij laat haar woningen inmeten door een erkend bedrijf. Het meetrapport van deze woning is dan ook, indien gewenst, ter inzage.

Ten aanzien van deze verkoopbrochure zijn de gegevens in deze brochure met de grootste zorg samengesteld. Voor de juistheid van de verstrekte informatie zijn wij in grote mate afhankelijk van derden. Aan vermelde tekst, maten en bijgevoegde tekeningen kunnen derhalve geen rechten worden ontleend. Via Paul makelaardij en de verkoper aanvaarden geen aansprakelijkheid ten aanzien van de gegevens in deze brochure.

Kenmerken