Beschrijving

RIDDERSTRAAT 40 TILBURG (PIUSHAVEN):

Deze gezellige sfeervolle woning ligt in het populaire Piushavengebied tussen de Leenherenstraat en de Hertoghstraat. Je loopt vanuit de woning linksom zo naar de Piushaven. Een populaire woonomgeving waar veel gezellige restaurantjes zijn gelegen zoals restaurant RAK, Jaxx Marina, Pulcino's, Smit Vis aan de Haven en Satiata welke de Piushaven zo geliefd bij een ieder maken. Loop je wat verder richting de draaibrug bij Villa La Vida dan is de kans levensgroot dat je bij goed weer de bekende IJscoman Vitorio tegenkomt waar je kan genieten van zijn prachtige verhalen en het overheerlijke ijs ! En heb je even geen zin in drukte.......dan loop je ook zo naar het mooie natuurgebied Moerenburg wat aan de andere kant van de Piushaven ligt. 

Voor de dagelijkse boodschappen ligt het AaBe Fabrieksterrein op loopafstand. Vlakbij de woning bevind zich ook een heerlijke speelplek voor de allerkleinsten. Maar ook voor onderwijs hoef je niet ver weg want op loop- en fietsafstand bevinden zich diverse lagere scholen en middelbare scholen. En wil je de stad uit (wij kunnen ons dat niet voorstellen).......geen probleem, via "De Ringbaan Oost" en "De Ringbaan Zuid" zijn de diverse uitvalswegen naar de snelweg richting Breda, Eindhoven en Waalwijk en de omliggende dorpen gemakkelijk te bereiken ! Kortom een TOP plek !

BEGANE GROND:

Entree: Bij binnenkomst zie je meteen dat er heel veel aandacht is besteed aan deze woning. Mooie details zijn de tegels op de vloer en de paneeldeuren. 

Woonkamer: De strakke woonkamer is door de aanbouw aan de achterzijde van de woning lekker ruim van opzet. Er is voldoende ruimte voor een lekkere eettafel en een royale zithoek. Door de grote vensters valt veel daglicht naar binnen. En in de zomer sla je de tuindeuren in de achtergevel wagenwijd open. Hier vind je ook de toegang tot de hal met de trapopgang naar de eerste verdieping.

Keuken: De moderne witte keuken is van alle gemakken voorzien. Je vindt er een vaatwasser, een ijskast, een combi/magnetron van Siemens en een 5 pits gastoestel met RVS afzuigkap, Hier tover je binnen de kortste keren de lekkerste gerechten te voorschijn.

Bijkeuken: In de hal achter de keuken vind je de bijkeuken, het aparte toilet en de achterdeur. In de bijkeuken zitten tevens de aansluitingen voor de wasmachine en droger.

Het platte dak bij de keuken is in 2025 nog voorzien van een nieuw dak met isolatie en ook de gehele buitengevel van de keuken en bijkeuken is in 2025 nageïsoleerd. 

EERSTE VERDIEPING:

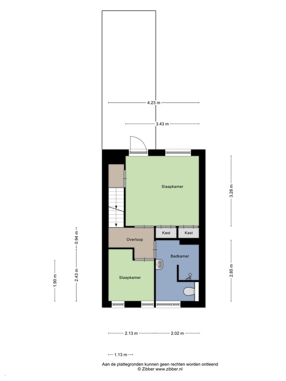
Via de vaste trap in het halletje naast de woonkamer, bereik je de eerste verdieping van deze woning. Hier vind je 2 slaapkamers en een badkamer. De grootste slaapkamer bevindt zich aan de achterzijde van de woning, deze beschikt over 2 vaste kasten, Je vindt er ook de toegang tot het dak van de uitbouw. Beide kamers zijn net als de overloop netjes afgewerkt met een "houtlook" laminaatvloer. Ook deze verdieping heeft mooie paneeldeuren. De badkamer is van recente datum, is volledig betegeld en heeft een heerlijke inloopdouche, een toilet en een wastafel met ondermeubel en wandmeubel. Hier kun je dus voldoende spullen opbergen. Alle ruimtes op deze verdieping zijn ook voorzien van rolluiken.

TWEEDE VERDIEPING:

Via een vaste trap bereik je de zolderverdieping van de woning. Hier vind je de aansluitingen voor de wasmachine en de droger, maar deze zitten ook in de bijkeuken. Deze ruimte wordt nu ook gebruikt als berg- en wasruimte. Maar door het grote dakraam aan de achterzijde van de woning zou deze ruimte ook prima als een extra slaapkamer ingericht kunnen worden. 

TUIN:

De achtertuin ligt op het oosten, je kunt hier dus al vroeg in de ochtend genieten van de zon. De diepe tuin is onderhoudsvriendelijk aangelegd en voorzien van strakke betonnen bestrating. Achterin de tuin bevindt zich de aparte zeer ruime berging. Via de berging kun je makkelijk met je fiets achterom. 

- Bouwjaar 1941;
- Perceeloppervlak 110 m²;
- Woonoppervlak  83 m²;
- Inhoud  295 m³;
- NEN 2580 meetrapport*;
- Gelegen in het populaire Piushavengebied;
- Voorzien van rolluiken;
- Keuken recent vernieuwd;
- Badkamer en toilet recent vernieuwd;
- Meterkast en electra geheel vernieuwd;
- Schuine dak geheel nageïsoleerd;
- Plat dak in 2025 vernieuwd en van buiten geïsoleerd;
- Buitengevel keuken en bijkeuken zijn in 2025 van buiten nageïsoleerd;
- Kozijnen woning voorzien van dubbel glas;
- Energielabel E verouderd, deze is gunstiger
- Berging is in 2025 voorzien van nieuwe kozijnen met dubbel glas en nieuwe deuren met nieuwe kozijnen;
- In rustige woonwijk gelegen;
- Winkels, scholen en de diverse uitvalswegen op korte afstand gelegen.

Wil je deze bijzondere woning met zijn vele mogelijkheden bezichtigen?  
Dat begrijpen wij heel goed! 
Bel of mail ons dan voor een afspraak: 

Tel:      013 - 30 33 195 
Mail:    info@viapaulmakelaardij.nl

Via Wie? 
Via Paul Makelaardij natuurlijk! 
Via Wie anders?

* De NEN 2580 meetnorm is een eenduidige meetnorm, waarbij met bepaalde richtlijnen rekening gehouden wordt. Zo wordt o.a. een zolder zonder vaste trap of met een lichtoppervlakte (bv dakraam) kleiner dan 0,5 m² niet tot de woonoppervlakte gerekend. Hierdoor kan de woonoppervlakte soms kleiner lijken dan de daadwerkelijke vloeroppervlakte en kleiner lijken dan bij vergelijkbare woningen waar de makelaar de meetnorm niet toe heeft gepast. Ondanks het feit dat de meetnorm verplicht is, hanteren niet alle makelaars consequent de norm. Via Paul Makelaardij laat haar woningen inmeten door een erkend bedrijf. Het meetrapport van deze woning is dan ook, indien gewenst, ter inzage.

Kenmerken