Beschrijving

ROSMOLENPLEIN 11 TILBURG

Het Rosmolenplein in Tilburg is zo’n plek waar de stad haar charme laat zien: levendig maar gemoedelijk, stedelijk en toch verrassend groen. Hier woon je op korte afstand van het bruisende stadscentrum, met winkels, horeca en cultuur binnen handbereik, terwijl je thuis juist de rust ervaart van een prettig plein en een fijne woonomgeving. De buurt kenmerkt zich door karakteristieke woningen, vriendelijke buren en een ontspannen sfeer. Dagelijkse voorzieningen, scholen en uitvalswegen liggen op comfortabele afstand, waardoor dit een ideale locatie is voor wie centraal wil wonen zonder in te leveren op wooncomfort en leefbaarheid.

Een huis met karakter en gevoel

Een warme verrassing achter de gevel
Achter de karakteristieke gevel schuilt een sfeervolle woning die je vanaf het eerste moment weet te verrassen. Licht, rust en een slimme indeling vormen hier de perfecte basis voor een comfortabel thuis met een eigen identiteit.

Binnenkomen met een welkom gevoel
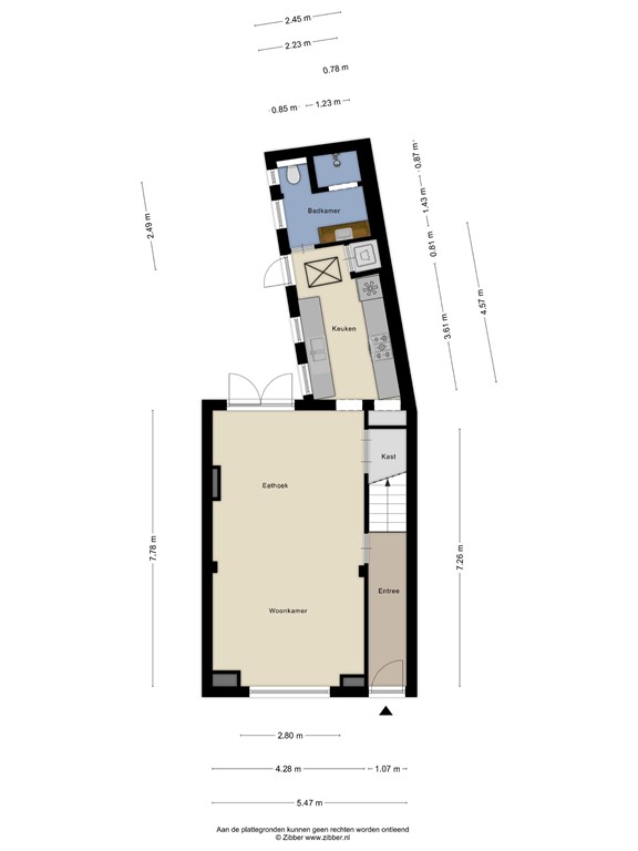
Via de entree stap je direct de woonkamer binnen, terwijl de trap naar de eerste verdieping subtiel zijn plek inneemt. Alles voelt logisch, overzichtelijk en vooral uitnodigend.

Wonen met warmte en ruimte
De woonkamer ademt sfeer. De warme, houten vloer vormt het hart van de ruimte en geeft direct karakter. Er is meer dan genoeg plek voor een royale zithoek én een grote eettafel waar lange avonden met vrienden en familie vanzelf ontstaan. De openslaande deuren naar de achtertuin halen buiten naar binnen en zorgen voor een heerlijke lichtinval. Praktisch detail: de handige kast onder de trap biedt extra bergruimte zonder afbreuk te doen aan de uitstraling.

Koken met karakter
De ruime keuken heeft een stoere, industriële uitstraling en is een droom voor de kookliefhebber. De rvs-afzuigkap en vaatwasser sluiten naadloos aan bij het robuuste ontwerp, terwijl het grote rvs-gasfornuis met maar liefst vijf gaspitten dé blikvanger is. Hier kook je niet alleen, hier beleef je het koken. Daarnaast beschikt de keuken over een vaste bergkast met de aansluiting voor de wasmachine en een achterdeur die direct toegang geeft tot de tuin. Vanuit de keuken is bovendien via een vlizotrap een extra zolder bereikbaar, gelegen boven de keuken en een deel van de badkamer. Deze praktische zolder biedt verrassend veel bergruimte.

Comfort in stijl
Direct achter de keuken bevindt zich de volledig betegelde badkamer. Deze is praktisch én verzorgd ingericht met een douche, toilet, wastafel met ruim wastafelmeubel en een designradiator. Een fijne plek om de dag ontspannen te beginnen of juist rustig af te sluiten.

Flexibel en toekomstgericht wonen
Op de eerste verdieping kom je uit op een royale overloop met verrassend veel gebruiksmogelijkheden. Deze lichte en open ruimte leent zich uitstekend voor bijvoorbeeld een thuiswerkplek, hobbyruimte of extra speel- of leeshoek. Vanaf hier heb je toegang tot twee comfortabele slaapkamers. Via een vaste trap bereik je de zolderverdieping. Hier bevindt zich een ruime zolderkamer met diverse indelingsmogelijkheden. Hoewel deze ruimte momenteel niet als volwaardige slaapkamer is aangemerkt, biedt zij – net als de overige zolderruimte – volop potentie om naar eigen wens in te richten, bijvoorbeeld als slaap-, werk- of hobbyruimte.

Extra bergruimte, altijd handig
De zolderverdieping beschikt daarnaast over een tweede ruimte, die uitstekend dienst kan doen als bergruimte. Aan de voorzijde van beide zolderruimtes is extra opbergruimte aanwezig achter praktische knieschotten, ideaal voor het netjes opbergen van seizoensspullen en andere zaken die je niet dagelijks nodig hebt.

Zon, rust en privacy
De diepe achtertuin is gelegen op het zuidwesten en biedt daardoor volop zonuren tot in de late avond. De tuin is onderhoudsvriendelijk aangelegd met strakke, vierkante tegels en borders langs de zijkanten. Een heerlijke buitenruimte waar je na een drukke dag tot rust komt of juist geniet van lange zomeravonden.

Kenmerken op een rij:

- Bouwjaar: 1906;
- Woonoppervlakte: 101 m²;
- Inhoud: 384 m³;
- Perceeloppervlakte: 132 m²;
- Energielabel E, geldig tot en met 31-12-2030;
- Rustig wonen in een kindvriendelijke buurt;
- NEN 2580 meetrapport aanwezig.

Wil je deze bijzondere woning met zijn vele mogelijkheden bezichtigen?
Dat begrijpen wij heel goed!
Bel of mail ons dan voor een afspraak:

Tel: 013 - 30 33 195
Mail: info@viapaulmakelaardij.nl

Via wie?
Via Paul Makelaardij natuurlijk!
Via wie anders?

* De NEN 2580 meetnorm is een eenduidige meetnorm, waarbij met bepaalde richtlijnen rekening gehouden wordt. Zo wordt o.a. een zolder zonder vaste trap of met een lichtoppervlakte (bv dakraam) kleiner dan 0,5 m² niet tot de woonoppervlakte gerekend. Hierdoor kan de woonoppervlakte soms kleiner lijken dan de daadwerkelijke vloeroppervlakte en kleiner lijken dan bij vergelijkbare woningen waar de makelaar de meetnorm niet toe heeft gepast. Ondanks het feit dat de meetnorm verplicht is, hanteren niet alle makelaars consequent de norm. Via Paul Makelaardij laat haar woningen inmeten door een erkend bedrijf. Het meetrapport van deze woning is dan ook, indien gewenst, ter inzage.

Ten aanzien van deze verkoopbrochure zijn de gegevens in deze brochure met de grootste zorg samengesteld. Voor de juistheid van de verstrekte informatie zijn wij in grote mate afhankelijk van derden. Aan vermelde tekst, maten en bijgevoegde tekeningen kunnen derhalve geen rechten worden ontleend. Via Paul makelaardij en de verkoper aanvaarden geen aansprakelijkheid ten aanzien van de gegevens in deze brochure.

Kenmerken