Beschrijving

SINT PIETERPARK 96 TILBURG

Wonen aan het Sint Pieterspark in Tilburg is wonen in een omgeving waar rust en levendigheid elkaar moeiteloos vinden. Hier woon je aan een groen park dat als verlengstuk van je achtertuin voelt – een plek waar kinderen veilig spelen, buren elkaar groeten en je op een zonnige middag even neerstrijkt op het gras met een goed glas wijn.

De wijk kenmerkt zich door haar vriendelijke karakter: autoluwe straten, veel openbaar groen en een prettige mix van jonge gezinnen en doorstromers. Op korte afstand vind je scholen, winkels en sportvoorzieningen, terwijl ook het bruisende stadscentrum van Tilburg eenvoudig bereikbaar is. Het is die combinatie van ruimte, bereikbaarheid en geborgenheid die deze locatie zo geliefd maakt. Hier woon je niet alleen in een huis, maar in een omgeving die klopt – elke dag opnieuw. Sfeervol wonen met ruimte, licht en comfort.

Thuiskomen met een glimlach
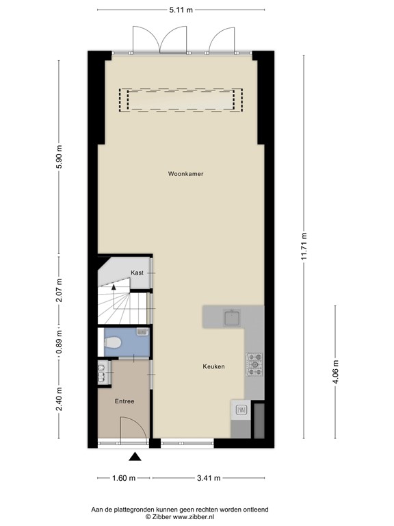
De entree verwelkomt je met een verzorgde hal, toilet en meterkast, waarna je direct wordt meegenomen naar het hart van de woning: de woonkamer. Hier voel je het meteen – dit is een huis waar geleefd mag worden.

Leefruimte met licht en luxe
In 2022 is de begane grond uitgebouwd, waarmee niet alleen extra vierkante meters zijn gecreëerd, maar vooral een zee aan leefruimte. De nieuw gelegde PVC vloer op de begane grond zorgt voor een moderne uitstraling en vormt samen met de comfortabele vloerverwarming een aangename basis voor het dagelijks leven. Een fraaie lichtstraat in de aanbouw zorgt voor een prachtige lichtinval en versterkt het gevoel van ruimte. Grote opslaande deuren én een praktische loopdeur verbinden binnen moeiteloos met buiten. Op warme dagen zet je alles open en vloeien tuin en woonkamer in elkaar over. Onder de trap bevindt zich een praktische trapkast – ideaal voor proviand, speelgoed of extra bergruimte. Functionaliteit en sfeer gaan hier hand in hand.

Koken, leven, verbinden
De open keuken in L-opstelling bevindt zich aan de voorzijde van de woning en kijkt uit over het groene Sint Pieterspark. Terwijl jij staat te koken, blijf je onderdeel van het gesprek aan tafel en geniet je tegelijkertijd van het vrije uitzicht. De keuken is uitgerust met een oven, koel-/vriescombinatie, vaatwasser, 5-pits gasplaat en een RVS afzuigkap – alles wat je nodig hebt om uitgebreid te koken of snel iets lekkers op tafel te zetten.

Rust en ruimte op de eerste verdieping
De trap naar boven is gesitueerd in de woonkamer en brengt je naar de eerste verdieping met drie slaapkamers. Twee kamers bevinden zich aan de achterzijde en één royale hoofdslaapkamer aan de voorzijde. Elke kamer ademt licht en comfort – fijne ruimtes om te slapen, werken of spelen. De in 2019 vernieuwde badkamer is strak en eigentijds uitgevoerd met een douche, wastafelmeubel én een luxe sunshower – een heerlijke combinatie van douchen en infraroodwarmte voor extra ontspanning. Daarnaast is er een separate toiletruimte op de overloop – praktisch en comfortabel voor het hele gezin.

De tweede verdieping: verrassend veelzijdig
De tweede verdieping biedt een ruime voorzolder met plek voor een thuiswerkplek en de aansluitingen voor zowel de wasmachine als de droger. Dankzij de ingebouwde kasten is er volop bergruimte. Hier bevindt zich ook de vierde slaapkamer – een heerlijke, volwaardige kamer met privacy en mogelijkheden.

Buitenleven zoals het bedoeld is
De fraai aangelegde achtertuin is een plek om te ontspannen. Of je nu geniet van een zomerse barbecue, een rustige ochtendkoffie of een lange avond aan tafel – hier kan het allemaal. De houten schuur met elektra biedt ruimte voor fietsen en gereedschap. Achter het perceel bevindt zich een eigen parkeerplaats op afgesloten terrein (VvE kosten €100,- per jaar) én een klein afdakje – ideaal voor een motor of bakfiets. Aan de voorzijde van de woning ligt een autoluwe straat met direct voor de deur een groot speelveld. Een droomplek voor kinderen, waar ze veilig kunnen spelen terwijl jij vanuit huis een oogje in het zeil houdt.

Duurzaam en toekomstgericht
Met 13 zonnepanelen, energielabel A (geldig tot en met 09-12-2030) en een CV-ketel uit 2011 is deze woning klaar voor de toekomst. Comfortabel wonen met oog voor duurzaamheid – precies zoals je het wilt.

De pluspunten op een rij:

- Bouwjaar: 2011;
- Woonoppervlak: 130 m²;
- Perceeloppervlak: 124 m²;
- Tussenwoning met 4 slaapkamers;
- Eigen parkeerplaats op afgesloten terrein,
  €100,- VvE kosten per jaar;
- Energielabel A geldig tot en met 09-12-2030;
- 13 zonnepanelen;
- CV-ketel d.d. 2011;
- NEN 2580 meetrapport*.

Wil je deze bijzondere woning met zijn vele mogelijkheden bezichtigen?
Dat begrijpen wij heel goed!

Bel of mail ons dan voor een afspraak:
Tel: 013 - 30 33 195
Mail: info@viapaulmakelaardij.nl

Via wie?
Via Paul Makelaardij natuurlijk!
Via wie anders?

*De NEN 2580 meetnorm is een eenduidige meetnorm, waarbij met bepaalde richtlijnen rekening gehouden wordt. Zo wordt o.a. een zolder zonder vaste trap of met een lichtoppervlakte (bv dakraam) kleiner dan 0,5 m² niet tot de woonoppervlakte gerekend. Hierdoor kan de woonoppervlakte soms kleiner lijken dan de daadwerkelijke vloeroppervlakte en kleiner lijken dan bij vergelijkbare woningen waar de makelaar de meetnorm niet toe heeft gepast. Ondanks het feit dat de meetnorm verplicht is, hanteren niet alle makelaars consequent de norm. Via Paul Makelaardij laat haar woningen inmeten door een erkend bedrijf. Het meetrapport van deze woning is dan ook, indien gewenst, ter inzage.

Ten aanzien van deze verkoopbrochure zijn de gegevens in deze brochure met de grootste zorg samengesteld. Voor de juistheid van de verstrekte informatie zijn wij in grote mate afhankelijk van derden. Aan vermelde tekst, maten en bijgevoegde tekeningen kunnen derhalve geen rechten worden ontleend. Via Paul makelaardij en de verkoper aanvaarden geen aansprakelijkheid ten aanzien van de gegevens in deze brochure.

Kenmerken