Beschrijving

STEDEKESTRAAT 22E TILBURG

Te koop: Moderne stadswoning in authentiek pand nabij het centrum van Tilburg

Ben jij op zoek naar een unieke woning met karakter en modern comfort? Dan is dit jouw kans! Deze voormalige vogelkooifabriek uit 1917 is omgetoverd tot negen prachtige, eigentijdse stadswoningen, waarbij authentieke elementen perfect zijn gecombineerd met industriële en moderne accenten. Samen met de acht andere woningen vormt dit een sfeervol en harmonisch geheel.
Gelegen op een TOP locatie, ben je binnen enkele minuten in de levendige Spoorzone van Tilburg, waar je het Centraal Station, de iconische LocHal, en tal van trendy restaurants zoals De Houtloods, De Wagon en RAW kunt vinden. Het Spoorpark en het Wilhelminapark bieden een groene oase in de stad en is ideaal voor ontspanning. En wil je verder het centrum verkennen? Dat kan eenvoudig te voet of per fiets!
Voor de dagelijkse benodigdheden hoef je niet ver: de Albert Heijn XL en andere winkels bevinden zich op steenworp afstand. Ook voor onderwijs ben je goed gelegen, met diverse lagere en middelbare scholen binnen loop- en fietsafstand, evenals Tilburg University.
Ben je afhankelijk van openbaar vervoer of wil je met de auto op pad? Het bus- en treinstation liggen vlakbij, en via de Spoorlaan en Ringbanen ben je snel op de snelwegen richting Breda, Eindhoven, Den Bosch en de omliggende dorpen.

Kortom, deze woning biedt de perfecte combinatie van rust, ruimte, en bereikbaarheid op een van de mooiste plekken van Tilburg. Wacht niet te lang, want dit is een kans die je niet wilt missen!

BEGANE GROND

Je betreedt de woning via de grote entreedeur. Dit gedeelte van het pand is nieuw aangebouwd, maar in exact dezelfde stijl waardoor de eenheid van het pand behouden wordt. In de hal vind je de meterkast en is er ruimte voor een garderobe.
Loop je door naar achter kom je bij de keuken waar is gekozen voor strak maar tijdloos wit met een lichtgrijs aanrechtblad. De keuken heeft werkelijk alles wat je nodig hebt, namelijk een vaatwasser, koel vriescombinatie, een combi-oven, een inductiekookplaat en een RVS spoelbak met afzuigkap. Zie jij jezelf hier al staan kokkerellen? Ja dat dachten wij al! Onder de lichtkoepel is ruimte voor een eettafel. Hier hangt een airco, welke in de winter de ruimte verwarmt en in de zomer voor verkoeling zorgt. Over de gehele verdieping ligt een betonvloer wat zorgt voor een stoere uitstraling. 

EERSTE VERDIEPING

Op deze verdieping is de zitkamer gesitueerd en een van de twee slaapkamers. Deze kamer kan eventueel ook als thuiswerkplek of kastenkamer worden ingericht. Op deze verdieping ligt een houtlook PVC vloer, wat zorgt voor een warme uitstraling.
Onder de trap is nog een trapkast, wat ideaal is voor het opbergen van spullen.

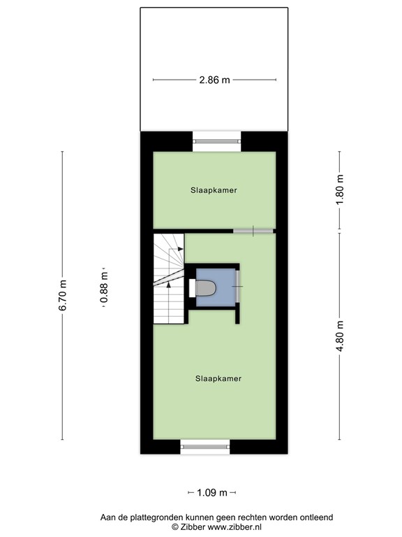
TWEEDE VERDIEPING

Via de vaste trap kom je op de tweede verdieping van de woning. Welke geheel nieuw is opgebouwd. Op deze etage vind je de tweede slaapkamer en de badkamer. De slaapkamer is voorzien van een lichtkoepel en een airco. Ook hier ligt de neutrale PVC vloer.
De badkamer heeft een luxe en serene uitstraling, door de grote beige tegel. Daarnaast is deze ook lekker ruim opgesteld en uitgerust met een toilet, wastafel met verlichte spiegel en een inloopdouche.
Tussen de twee kamers vind je nog een inbouwkast, waar de wasmachine- en drogeraansluiting is gesitueerd.

Turn Key: het enige wat jij hoeft te doen is de sleutel omdraaien, je spullen uitpakken en genieten van deze TOPwoning!

LET OP: de foto's kunnen verschillende van de werkelijkheid. De foto's zijn van de hoekwoning, dit type heeft geen ramen aan de zijkant.

Het betreft een appartementsrecht in oprichting. 

- Bouwjaar 1917 volledig verbouwd in 2023;
- Woonoppervlak 63 m²;
- Inhoud 206 m³;
- NEN 2580 meetrapport*;
- STARTERSWONING;
- Turn Key oplevering;
- Energielabel A;
- Gasloos;
- Aansluiting voor zonnepanelen & vloerverwarming;
- maandelijkse VVE bijdrage €49,-;
- Nabij Spoorzonde en centrum;
- Winkels, scholen en de diverse uitvalswegen op korte afstand gelegen.

Wil je deze unieke stadswoning bezichtigen?  
Dat begrijpen wij heel goed! 

Bel of mail ons dan voor een afspraak: 
Tel:      013 - 30 33 195 
Mail:    info@viapaulmakelaardij.nl

Via wie? 
Via Paul Makelaardij natuurlijk! 
Via wie anders?

* De NEN 2580 meetnorm is een eenduidige meetnorm, waarbij met bepaalde richtlijnen rekening gehouden wordt. Zo wordt o.a. een zolder zonder vaste trap of met een lichtoppervlakte (bv dakraam) kleiner dan 0,5 m² niet tot de woonoppervlakte gerekend. Hierdoor kan de woonoppervlakte soms kleiner lijken dan de daadwerkelijke vloeroppervlakte en kleiner lijken dan bij vergelijkbare woningen waar de makelaar de meetnorm niet toe heeft gepast. Ondanks het feit dat de meetnorm verplicht is, hanteren niet alle makelaars consequent de norm. Via Paul Makelaardij laat haar woningen inmeten door een erkend bedrijf. Het meetrapport van deze woning is dan ook, indien gewenst, ter inzage.

Ten aanzien van deze verkoopbrochure zijn de gegevens in deze brochure met de grootste zorg samengesteld. Voor de juistheid van de verstrekte informatie zijn wij in grote mate afhankelijk van derden. Aan vermelde tekst, maten en bijgevoegde tekeningen kunnen derhalve geen rechten worden ontleend. Via Paul makelaardij en de verkoper aanvaarden geen aansprakelijkheid ten aanzien van de gegevens in deze brochure.

Kenmerken