Beschrijving

TELEFOONSTRAAT 7 TILBURG

Telefoonstraat – Historie, karakter en modern comfort in het hart van het Dwaalgebied 

Authentiek, artistiek en eigentijds
Welkom in het Dwaalgebied – het kloppende hart van Tilburg waar verleden en heden in harmonie samenkomen. Dit geliefde stukje binnenstad is doordrenkt met historie en charme: statige herenhuizen, sfeervolle straatjes en de grandeur van vervlogen tijden waarin textieldirecteuren hier hun intrek namen.

Tegenwoordig bruist het Dwaalgebied van creativiteit, gastronomie en cultuur. Loop de deur uit en je staat binnen enkele minuten in de Spoorzone, met de iconische LocHal, hippe hotspots als De Houtloods, De Wagon en RAW, of het Spoorpark – de ultieme plek voor een zomerse picknick of een ontspannen wandeling.

Tegelijkertijd biedt de Telefoonstraat een verrassende rust. Het is een plek waar buren elkaar nog groeten, kinderen veilig kunnen spelen en je midden in de stad woont zonder het gevoel te hebben dat je er middenin lééft. Hier ervaar je het beste van twee werelden: stedelijke levendigheid én huiselijke geborgenheid.

De woning – Waar charme en comfort elkaar ontmoeten
De eerste indruk? Warm, stijlvol en verzorgd. De voordeur opent naar een uitnodigende entree waar de fraaie houtlook PVC vloer meteen de toon zet. Deze loopt elegant door naar de woonkamer en keuken, waardoor een gevoel van rust en eenheid ontstaat.

De woonkamer – Ruimte om te ademen
De woonkamer is een plek die meteen omarmt. De hoge plafonds, het overvloedige licht van de glas-in-loodramen aan de voorzijde en de dubbele openslaande tuindeuren aan de achterzijde zorgen voor een unieke balans tussen klassiek en eigentijds. De houtkachel op ooghoogte vormt het warme hart van deze ruimte. Hier kruip je op winteravonden met een goed boek onder een plaid, terwijl het vuur zachtjes knispert. In de zomer staan de tuindeuren open, en vloeien binnen en buiten moeiteloos in elkaar over. De airco zorgt het hele jaar door voor een aangenaam binnenklimaat – koel in de zomer, behaaglijk in de winter.

De keuken – Eigentijds design met een ziel
De luxe keuken is een absolute blikvanger. Eigentijds, licht en doordacht tot in elk detail. De prachtige glazen pui in de zijgevel laat daglicht binnenstromen en biedt een uitzicht op de stadstuin dat nooit verveelt. Hier kook je niet alleen – je leeft er. Met een Quooker, combi-oven, koel- en vriescombinatie, vaatwasser, 5-pits gaskookplaat met wokbrander en een robuust, extra dik keramisch werkblad is dit een keuken die uitnodigt tot culinaire ontdekkingen. De open verbinding met de woonkamer maakt het dé perfecte plek voor lange etentjes met vrienden of een ontspannen zondagochtendkoffie met uitzicht op de tuin.

Achter de keuken bevindt zich een praktisch halletje met een stijlvolle kastenwand en een modern, zwevend toilet met fonteintje.

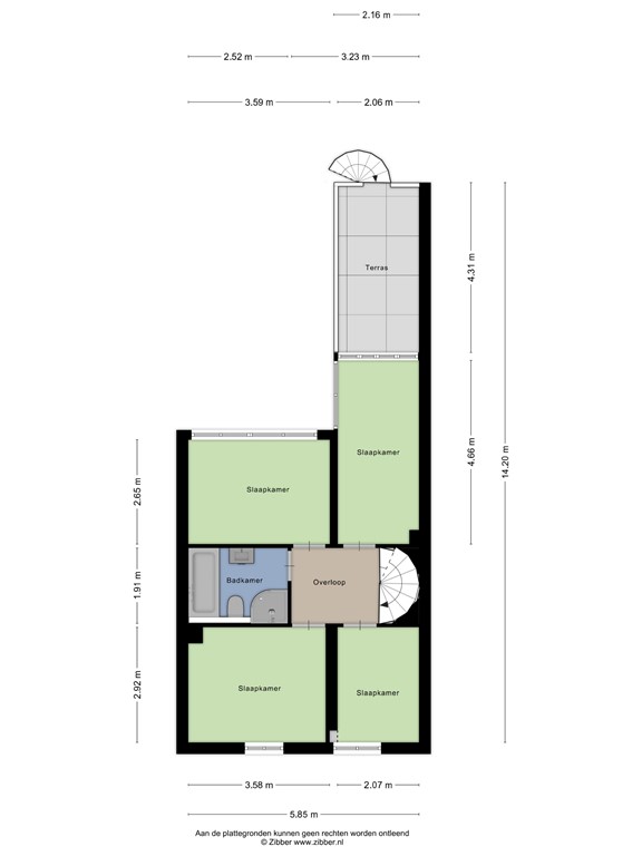
De eerste verdieping – Comfortabel en sfeervol
De overloop geeft toegang tot vier kamers, elk met hun eigen charme en mogelijkheden. Een van de kamers is nu ingericht als walk-in closet – een droom voor de liefhebber van mode en overzicht. Een van de kamers biedt toegang tot het dakterras – een privéplek waar de stad tot rust komt.

De badkamer is een oase van rust: volledig betegeld, voorzien van een ligbad met ontspannende whirlpoolfunctie, aparte douche, modern wastafelmeubel en een tweede toilet. Alles straalt comfort en kwaliteit uit.

De tweede verdieping – Licht, ruimte en flexibiliteit
De vaste trap brengt je naar de tweede verdieping, waar een royale zolder is ingericht met een vijfde slaapkamer. Dankzij de dakkapel en Velux-dakramen baadt deze verdieping in het natuurlijke licht. De voorzolder biedt praktische ruimte voor de wasmachine, droger en bergruimte. Deze verdieping leent zich uitstekend als werkplek, hobbyruimte of gastenverblijf – hier is letterlijk plek voor al je plannen.

De tuin – Een stadsparadijs op het zuidwesten
De tuin is een verborgen juweeltje: fraai aangelegd, verrassend diep en heerlijk zonnig. De ligging op het zuidwesten zorgt ervoor dat je de hele dag door kunt genieten van de zon, privacy en een fijne indeling met sierbestrating, groene borders en een houten overkapping. Onder deze overkapping geniet je zelfs tijdens een zomers buitje van de frisse lucht. Een plek waar kinderen kunnen spelen, vrienden kunnen aanschuiven en waar elke zomeravond eindigt met het gevoel dat je even helemaal weg bent – zonder de stad te verlaten.

De tuin beschikt over een houten berging en een zij-ingang vanaf de straat, wat het dagelijks gebruik extra comfortabel maakt.

Kenmerken van de woning:

- Bouwjaar: oorspronkelijk 1905, later volledig gemoderniseerd;
- Woonoppervlakte: ca. 120 m²;
- Inhoud: ca. 448 m³;
- Perceeloppervlakte: 149 m²;
- Aantal slaapkamers: 5;
- Energielabel C, geldig tot en met 13-08-2035;
- 15 zonnepanelen – duurzaam, voordelig en toekomstgericht;
- NEN 2580 meetrapport* aanwezig.

Wil je deze bijzondere woning met zijn vele mogelijkheden bezichtigen?
Dat begrijpen wij heel goed!
Bel of mail ons dan voor een afspraak:

Tel: 013 - 30 33 195
Mail: info@viapaulmakelaardij.nl

Via wie?
Via Paul Makelaardij natuurlijk!
Via wie anders?

* De NEN 2580 meetnorm is een eenduidige meetnorm, waarbij met bepaalde richtlijnen rekening gehouden wordt. Zo wordt o.a. een zolder zonder vaste trap of met een lichtoppervlakte (bv dakraam) kleiner dan 0,5 m² niet tot de woonoppervlakte gerekend. Hierdoor kan de woonoppervlakte soms kleiner lijken dan de daadwerkelijke vloeroppervlakte en kleiner lijken dan bij vergelijkbare woningen waar de makelaar de meetnorm niet toe heeft gepast. Ondanks het feit dat de meetnorm verplicht is, hanteren niet alle makelaars consequent de norm. Via Paul Makelaardij laat haar woningen inmeten door een erkend bedrijf. Het meetrapport van deze woning is dan ook, indien gewenst, ter inzage.

Ten aanzien van deze verkoopbrochure zijn de gegevens in deze brochure met de grootste zorg samengesteld. Voor de juistheid van de verstrekte informatie zijn wij in grote mate afhankelijk van derden. Aan vermelde tekst, maten en bijgevoegde tekeningen kunnen derhalve geen rechten worden ontleend. Via Paul makelaardij en de verkoper aanvaarden geen aansprakelijkheid ten aanzien van de gegevens in deze brochure.

Kenmerken