Beschrijving

TROUWLAAN 19-03 – TILBURG

Stijlvol wonen op steenworp afstand van het stadscentrum!

Welkom aan de Trouwlaan 19-03 in Tilburg. Een instapklaar, modern afgewerkt appartement met veel licht en ruimte. De ligging is ideaal: aan een fietsstraat en op steenworp afstand van winkels, gezellige eetzaakjes en natuurlijk het bruisende stadscentrum.

Zin in koffie, borrel of een avondje uit? Binnen vijf minuten wandel je naar het Dwaalgebied met populaire hotspots als Café Noir, Goesting en Anvers. Shopliefhebbers kunnen hun hart ophalen in de Heuvelstraat, eveneens op loopafstand. De supermarkt ligt op 300 meter, Piushaven en het station zijn vijf minuten fietsen, en met de auto zit je binnen zes minuten op de snelweg richting Eindhoven, Breda of ’s-Hertogenbosch. De perfecte uitvalsbasis dus — zónder concessies aan ruimte, rust en comfort.

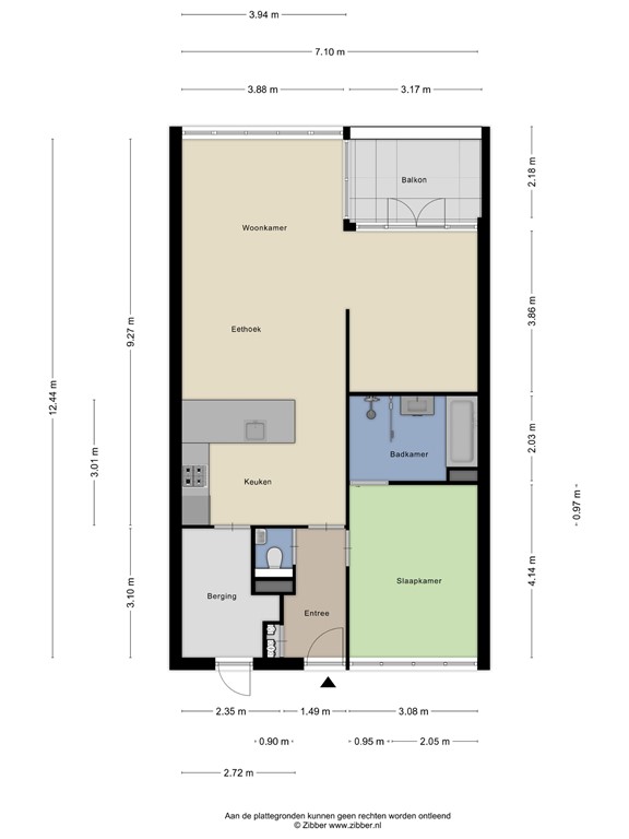
Binnenkomen met stijl
Het appartement bevindt zich op de eerste verdieping van een verzorgd kleinschalig appartementencomplex. In de centrale entree vind je de meterkast met opbergruimte en de gezamenlijke fietsenstalling. Er is zowel een lift als een trap aanwezig. Zodra je het appartement binnenstapt, voel je direct de warme, verzorgde sfeer die hier heerst. De hal is ruim, voorzien van een nieuw toilet (juli 2024) en geeft toegang tot de woonkamer en slaapkamer.

Een woonkamer die leeft
De woonkamer voelt licht, ruim en uitnodigend. Dankzij de vele ramen stroomt het daglicht rijkelijk naar binnen, waardoor de ruimte altijd levendig en open aanvoelt. De neutrale afwerking met een gloednieuwe houtlook PVC-vloer (juli 2025) en frisse gestuukte wanden maken het geheel af. De airco-installatie houdt het gehele appartement koel tijdens warme zomerdagen, terwijl de goede isolatie en het energielabel C ervoor zorgen dat de stookkosten beperkt blijven.

Een heerlijke keuken
De strakke, matzwarte leefkeuken is een echte eyecatcher en nodigt uit tot koken, borrelen en gezellig tafelen. Het royale werkblad, de overvloed aan opbergruimte en de complete uitrusting maken koken een feestje. De keuken is voorzien van een koelkast, aparte vriezer, oven, vaatwasser, 4-pits gaskookplaat en een elegante RVS-afzuigkap.

Jouw eigen buitenruimte – het balkon
Een van de pareltjes van dit appartement is het balkon van circa 6 m². Via dubbele deuren stap je direct naar buiten. Groot genoeg voor een loungehoek of bistroset en voorzien van onderhoudsvriendelijke composiet vlonderplanken. Hier kun je ontspannen met een boek, ontbijten in de ochtendzon en later op de dag genieten van een glas wijn. Het balkon ligt gunstig op de zon: heerlijk zonnig tot halverwege de middag en daarna aangenaam beschut. Binnen en buiten lopen naadloos in elkaar over.

Buitenruimte – de galerij
Op de brede galerij is ruimte voor een extra zitje waar je het hele jaar door geniet van de avondzon.

Slaapkamer – rustig ontwaken
Aan de achterzijde van het appartement vind je de ruime slaapkamer van circa 13 m². Dankzij de rustige ligging slaap je hier heerlijk en word je uitgerust wakker. Er is ruimte voor een groot tweepersoonsbed én een royale kast, zodat je geen compromis hoeft te sluiten tussen comfort en opbergruimte.

Een badkamer als wellnessruimte 
Grenzend aan de slaapkamer ligt een stijlvolle, splinternieuwe badkamer (juli 2024). Lekker ruim, voorzien van vloerverwarming (bedienbaar via een app) en strak afgewerkt met hoogwaardige materialen. Je vindt er een matwit ligbad, een royale inloopdouche met regendouche, een designradiator en een strak matwit wastafelmeubel. De koperen kranen geven een luxe, warme touch. Hier voelt elke douche of bad als een moment in je eigen privéspa.

Flexibele indeling – ruimte om te groeien
Het gedeelte van de woonkamer bij het balkon is nu ingericht als thuiswerkplek: licht, rustig en met veel opbergruimte. Wil je een extra kamer? Met een eenvoudige ingreep, zoals een wand met deur, creëer je hier gemakkelijk een tweede slaapkamer of afgesloten werkkamer.

Praktisch gemak en bergruimte
In de bijkeuken kun je veel spullen kwijt. Ook vind je hier de cv-opstelling en de aansluitingen voor wasmachine en droger. En voor de fiets of scooter kun je terecht in de gezamenlijke fietsenstalling beneden in het complex.

Kenmerken van de woning:

- Bouwjaar: 1999;
- Woonoppervlak: 81 m²;
- Balkon: 6 m²;
- Energielabel: C (goede isolatie, lagere stookkosten);
- Badkamer vernieuwd in juli 2024;
- Toilet vernieuwd in juli 2024;
- Composiet vlonderplanken balkon vernieuwd in mei 2024;
- PVC-vloer (doorlopend gelegd in de gehele woning) vernieuwd in juli 2025;
- Schilderwerk binnen vernieuwd in juli 2025;
- Airco (7 kW) voor het gehele appartement (koelen en verwarmen);
- VvE-kosten: € 241 per maand;
- NEN 2580 meetrapport beschikbaar.

Wil je deze bijzondere woning met zijn vele mogelijkheden bezichtigen?
Dat begrijpen wij heel goed!
Bel of mail ons dan voor een afspraak:

Tel: 013 - 30 33 195
Mail: info@viapaulmakelaardij.nl

Via wie?
Via Paul Makelaardij natuurlijk!
Via wie anders?

De NEN 2580 meetnorm is een eenduidige meetnorm, waarbij met bepaalde richtlijnen rekening gehouden wordt. Zo wordt o.a. een zolder zonder vaste trap of met een lichtoppervlakte (bv dakraam) kleiner dan 0,5 m² niet tot de woonoppervlakte gerekend. Hierdoor kan de woonoppervlakte soms kleiner lijken dan de daadwerkelijke vloeroppervlakte en kleiner lijken dan bij vergelijkbare woningen waar de makelaar de meetnorm niet toe heeft gepast. Ondanks het feit dat de meetnorm verplicht is, hanteren niet alle makelaars consequent de norm. Via Paul Makelaardij laat haar woningen inmeten door een erkend bedrijf. Het meetrapport van deze woning is dan ook, indien gewenst, ter inzage.

Ten aanzien van deze verkoopbrochure zijn de gegevens in deze brochure met de grootste zorg samengesteld. Voor de juistheid van de verstrekte informatie zijn wij in grote mate afhankelijk van derden. Aan vermelde tekst, maten en bijgevoegde tekeningen kunnen derhalve geen rechten worden ontleend. Via Paul makelaardij en de verkoper aanvaarden geen aansprakelijkheid ten aanzien van de gegevens in deze brochure.

(Optie tweede slaapkamer, zie tweede plattegrond)

Kenmerken