Beschrijving

VALKENIERSTRAAT 48 – TILBURG

Een charmante straat, omgeven door karakteristieke woningen en een sfeer die je alleen vindt in buurten met een verhaal. De Valkenierstraat ademt rust, terwijl je tegelijkertijd profiteert van alles wat de stad te bieden heeft. Op steenworp afstand ligt de bruisende Piushaven: dé plek om te genieten aan het water, met een rijk aanbod aan terrassen en culinaire hotspots. Denk aan een lange zomeravond bij Villa la Vida, een vers visje bij Smit Vis aan de Haven of een sfeervolle avond in RAK.
Wil je juist even ontsnappen aan de drukte? Dan wandel je binnen enkele minuten het Leijpark in, een groene oase van rust waar je in alle seizoenen heerlijk kunt vertoeven. Dankzij de nabijheid van de Ringbaan Zuid en de A58 zijn Eindhoven, Breda of Den Bosch binnen korte tijd bereikbaar. Dit is wonen op een plek waar stad en natuur elkaar in balans ontmoeten.

Authentiek en toch eigentijds
Wat dit huis zo bijzonder maakt, is de manier waarop de verbouwing is uitgevoerd: met respect voor de historie en liefde voor detail. Originele elementen zijn behouden én geaccentueerd. Zo komt de houten balkconstructie prachtig tot zijn recht op de bovenverdieping, zorgen glas-in-loodramen voor een subtiel spel van licht en kleur, en geeft de charmante erker de woonkamer zijn warme uitstraling. Tegelijkertijd is de woning verduurzaamd en aangepast aan de eisen van nu. Het resultaat: een thuis waar karakter en comfort hand in hand gaan.

Een entree vol karakter
De voordeur met charmant gebogen bovenlicht heet je welkom en zet direct de toon: hier stap je binnen in een huis met ziel. De hal voelt licht en uitnodigend, waarbij de parketvloer je als vanzelf de woonkamer in leidt. Het is een entree die je gasten met een glimlach ontvangt.

Woonkamer: licht, lucht en warmte
De woonkamer is het hart van het huis. De royale erker vangt het avondlicht en laat de ruimte stralen, terwijl de warme houten vloer zorgt voor een huiselijke basis. Hier creëer je moeiteloos een grote zithoek én een eettafel voor lange diners. Dankzij de openslaande tuindeuren vervaagt de grens tussen binnen en buiten en geniet je in elk seizoen van een directe verbinding met de tuin.

Een keuken die uitnodigt
De keuken, in de uitbouw aan de achterzijde, is praktisch én sfeervol. Met zijn strakke afwerking en moderne apparatuur – waaronder een vijfpits gaskookplaat, vaatwasser en koel-vriescombinatie – is koken hier niet zomaar een alledaagse bezigheid, maar een moment van samenkomen. Via de keuken bereik je de handige bergruimte onder de trap naar de eerste verdieping: ideaal voor het bewaren van voorraad of als wijnkelder.

Een badkamer voor elke dag
De badkamer is volledig betegeld en voorzien van een douche, wastafel met wastafelmeubel en toilet. Compact en praktisch, precies zoals je het nodig hebt voor een drukke doordeweekse dag.

Slapen met allure
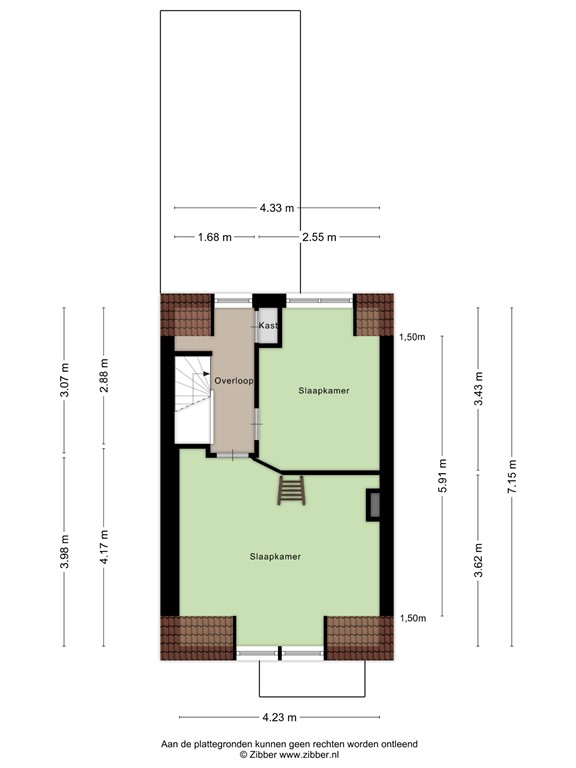
De bovenverdieping herbergt twee slaapkamers, waarvan de master bedroom een waar statement maakt. Dankzij de vide en de houten balkconstructie die hier zichtbaar werd gemaakt, straalt deze kamer een unieke, bijna loftachtige sfeer uit. Dit geeft de master bedroom karakter en een ruimtelijk gevoel, terwijl de praktische zolderberging extra opbergruimte biedt. Een plek die groots aanvoelt, maar toch intiem blijft. De tweede slaapkamer is praktisch in te delen en ideaal als kastenkamer, kinderkamer, logeerkamer of thuiswerkplek.

Een tuin om in te leven
Zodra je de tuin in stapt, ervaar je een gevoel van vrijheid. De onderhoudsvriendelijke sierbestrating, het zonnige terras en de verzorgde beplanting maken dit een heerlijke buitenruimte die in elk seizoen zijn charme heeft. ’s Ochtends drink je er je eerste kop koffie in de zon, terwijl je ’s avonds onder de overkapping met vrienden geniet van een goed glas wijn. De tuin is bovendien praktisch ingericht met een achterom en extra bergruimte.

Een huis dat leeft met licht
Wat deze woning bijzonder maakt, is de constante aanwezigheid van natuurlijk daglicht. Elk vertrek ademt openheid, waardoor het geheel groter en luchtiger aanvoelt. Een huis dat niet alleen praktisch is, maar bovenal uitnodigend – klaar voor nieuwe herinneringen.

Pluspunten in één oogopslag:

- Karakteristieke woning met authentieke details zoals houten balkconstructie, glas-in-loodramen en erker;
- Grondig verbouwd en verduurzaamd met behoud van originele elementen;
- Toplocatie in een rustige eenrichtingsstraat, op loopafstand van Piushaven en Leijpark;
- Zonnige voor- en achtertuin, voorzien van overkapping, bergruimte, sierbestrating, terras en achterom;
- Unieke master bedroom met sfeervolle vide en extra opbergruimte op zolder;
- Licht, ruimtelijk en uitnodigend dankzij grote ramen en veel natuurlijk daglicht;
- Bouwjaar: 1941;
- Woonoppervlak: 75 m²;
- Inhoud: 271 m³
- Perceeloppervlakte: 114 m²;
- Energielabel: C;
- NEN 2580 meetrapport*.

Wil je deze bijzondere woning met zijn vele mogelijkheden bezichtigen?
Dat begrijpen wij heel goed!
Bel of mail ons dan voor een afspraak:

Tel: 013 - 30 33 195
Mail: info@viapaulmakelaardij.nl

Via wie?
Via Paul Makelaardij natuurlijk!
Via wie anders?

De NEN 2580 meetnorm is een eenduidige meetnorm, waarbij met bepaalde richtlijnen rekening gehouden wordt. Zo wordt o.a. een zolder zonder vaste trap of met een lichtoppervlakte (bv dakraam) kleiner dan 0,5 m² niet tot de woonoppervlakte gerekend. Hierdoor kan de woonoppervlakte soms kleiner lijken dan de daadwerkelijke vloeroppervlakte en kleiner lijken dan bij vergelijkbare woningen waar de makelaar de meetnorm niet toe heeft gepast. Ondanks het feit dat de meetnorm verplicht is, hanteren niet alle makelaars consequent de norm. Via Paul Makelaardij laat haar woningen inmeten door een erkend bedrijf. Het meetrapport van deze woning is dan ook, indien gewenst, ter inzage.

Ten aanzien van deze verkoopbrochure zijn de gegevens in deze brochure met de grootste zorg samengesteld. Voor de juistheid van de verstrekte informatie zijn wij in grote mate afhankelijk van derden. Aan vermelde tekst, maten en bijgevoegde tekeningen kunnen derhalve geen rechten worden ontleend. Via Paul makelaardij en de verkoper aanvaarden geen aansprakelijkheid ten aanzien van de gegevens in deze brochure.

Kenmerken