Beschrijving

VALKENIERSTRAAT 7 TILBURG

Welkom in de Valkenierstraat, een charmante straat in een van de meest geliefde wijken van Tilburg. Hier woon je in een rustige, groene buurt met karakter, terwijl de levendigheid van de stad binnen handbereik ligt. Stap je voordeur uit en wandel binnen enkele minuten naar de sfeervolle Piushaven – hét culinaire hart van Tilburg waar water, terrassen en gezelligheid samenkomen. Denk aan genieten van een cappuccino bij Villa la Vida op zaterdagochtend, een lunch met verse vis van Smit Vis aan de Haven of een borrel bij RAK terwijl de zon schittert op het water. 

Voor je boodschappen wandel je zo naar het AaBe-centrum, en voor de broodliefhebbers is Bakker Alma in de Piushaven een ware verleiding. Houd je van wandelen of natuur? Het Leijpark ligt vlakbij en ook het prachtige natuurgebied Moerenburg is snel bereikbaar. En moet je een keer de stad uit, dan ben je via de Ringbaan-Zuid in no-time op de A58 richting Eindhoven, Den Bosch of Breda.

Een plek waar rust, sfeer en stadse gezelligheid samenkomen – dat is wonen aan de Valkenierstraat.

Welkom thuis

Binnenkomen in deze woning voelt direct warm en uitnodigend. Dankzij de ramen in én boven de voordeur stroomt het daglicht naar binnen – een voorproefje van de lichte, open sfeer die je in de rest van het huis zult ervaren.

Ruimtelijk wonen met karakter

De woonkamer is het hart van het huis. Een ruime, lichte leefruimte met genoeg plek voor lange eettafelsessies, een knusse zithoek en gezellige avonden met vrienden. De houtlook vloer geeft warmte, terwijl de schuifpui de grens tussen binnen en buiten laat vervagen. In de zomer leef je hier met de deuren open, de avondzon naar binnen en zachte tuinbriesjes die je woonkamer vullen.

Koken met licht

De keuken aan de achterzijde is licht, functioneel en slim ingedeeld. Twee werkbladen, een oven én magnetron op ooghoogte, een vaatwasser en rvs-afzuigkap maken koken hier een plezier – of je nu snel een pasta in elkaar draait of uitgebreid kookt voor een gezellige avond met vrienden. De voorraadkast onder de trap maakt het plaatje compleet.

Praktisch gemak

Achter de keuken vind je de bijkeuken – een echt pluspunt. Met plek voor je wasmachine én met directe toegang tot zowel tuin als badkamer. Een fijne, overzichtelijke indeling die wonen hier extra comfortabel maakt. De badkamer is modern, praktisch en voorzien van een inloopdouche, toilet en wastafelmeubel.

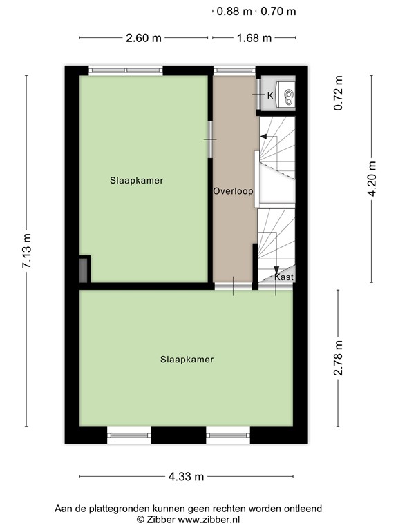
Rust & ruimte boven

Op de eerste verdieping bevinden zich twee ruime slaapkamers. De slaapkamer aan de voorzijde strekt zich uit over de volle breedte van de woning en beschikt – net als de overloop – over een handige inbouwkast. Aan de achterzijde ligt een tweede royale kamer. Via de overloop bereik je het platte dak, handig én praktisch.

Via een vaste trap bereik je de tweede verdieping: een sfeervolle zolderkamer die perfect is als derde slaapkamer, werkruimte of hobbyplek. Slimme bergruimte onder de knieschotten houdt al je spullen netjes uit het zicht.

Buiten genieten

De achtertuin op het westen zorgt voor zon tot in de late avond – ideaal voor lange zomeravonden met vrienden, een barbecue of gewoon een goed boek. Onderhoudsvriendelijk aangelegd, met achterin een ruime berging en een achterom. Fiets binnen zetten? Geen gedoe. Start je dag hier met een kop koffie… en sluit hem af met een avondzonnetje.

Pluspunten van de woning:

- Bouwjaar 1941;
- Perceeloppervlak 114 m2;
- Woonoppervlak 91 m2;
- Inhoud 321 m3;
- NEN 2580 meetrapport*;
- In het populaire Piushavengebied gelegen;
- In rustige woonwijk gelegen;
- Winkels, scholen en de diverse uitvalswegen op korte afstand gelegen.

Wil je deze bijzondere woning met zijn vele mogelijkheden bezichtigen?  
Dat begrijpen wij heel goed! 
Bel of mail ons dan voor een afspraak: 

Tel:      013 - 30 33 195 
Mail:    

Via wie? 
Via Paul Makelaardij natuurlijk! 
Via wie anders?

* De NEN 2580 meetnorm is een eenduidige meetnorm, waarbij met bepaalde richtlijnen rekening gehouden wordt. Zo wordt o.a. een zolder zonder vaste trap of met een lichtoppervlakte (bv dakraam) kleiner dan 0,5 m² niet tot de woonoppervlakte gerekend. Hierdoor kan de woonoppervlakte soms kleiner lijken dan de daadwerkelijke vloeroppervlakte en kleiner lijken dan bij vergelijkbare woningen waar de makelaar de meetnorm niet toe heeft gepast. Ondanks het feit dat de meetnorm verplicht is, hanteren niet alle makelaars consequent de norm. Via Paul Makelaardij laat haar woningen inmeten door een erkend bedrijf. Het meetrapport van deze woning is dan ook, indien gewenst, ter inzage.

Ten aanzien van deze verkoopbrochure zijn de gegevens in deze brochure met de grootste zorg samengesteld. Voor de juistheid van de verstrekte informatie zijn wij in grote mate afhankelijk van derden. Aan vermelde tekst, maten en bijgevoegde tekeningen kunnen derhalve geen rechten worden ontleend. Via Paul makelaardij en de verkoper aanvaarden geen aansprakelijkheid ten aanzien van de gegevens in deze brochure.

Kenmerken