Beschrijving

VAN ALKEMADESTRAAT  8 – TILBURG

Stel je voor: wonen in een levendige wijk waar het bruisende stadsleven en de gemoedelijkheid van een woonwijk elkaar ontmoeten. De Van Alkemadestraat ligt in Groeseind-Hoefstraat, een buurt die bekendstaat om haar jonge en energieke karakter. Hier hoor je kinderen spelen in de straten, fiets je in enkele minuten naar het centrum van Tilburg en bereik je eenvoudig alle voorzieningen.

Of je nu een avond uit wilt in de binnenstad, een trein moet halen op het centraal station of gewoon even boodschappen wilt doen; alles is letterlijk binnen handbereik. Cultuurliefhebbers kunnen hun hart ophalen met het Textielmuseum en Museum De Pont bijna om de hoek. En met de uitvalswegen op slechts vijf minuten rijden, ben je ook buiten de stad zo op weg. Kortom: een dynamische plek met de ideale balans tussen stadse gezelligheid en praktisch woongemak.

Het huis – wonen met karakter en mogelijkheden

Een welkom vol licht en karakter
De woning ademt de charme van de jaren ’30, maar biedt tegelijkertijd alle ruimte om er je eigen moderne draai aan te geven. Zodra je binnenkomt, valt de lichte entree op, die je meteen nieuwsgierig maakt naar de rest van het huis.

De woonkamer – een plek om samen te komen
De royale woonkamer is er een waar sfeer en gezelligheid samenkomen. De authentieke gaskachel vormt het warme hart van de ruimte, terwijl de openslaande deuren naar de tuin zorgen voor een heerlijk gevoel van licht en luchtigheid. De glas-in-lood details in het bovenlicht voegen net dat vleugje karakter toe dat je van een woning uit deze bouwperiode verwacht. Het houtlook laminaat dat naadloos doorloopt naar de keuken en entree, maakt het geheel stijlvol en praktisch. Hier zie je jezelf al op een zondagmiddag ontspannen met een boek of gezellig dineren met vrienden.

De keuken – een canvas voor jouw ideeën
De keuken is eenvoudig van opzet, maar dat betekent vooral dat je hier volledig je eigen smaak kunt laten spreken. De ruimte biedt veel potentie om een eigentijdse leefkeuken te creëren. De authentieke vaste kast met paneeldeur herinnert je aan de historie van het huis en voegt een charmant detail toe. Extra handig: onder de trap bevindt zich een kelder, ideaal voor voorraad en opbergruimte.

Badkamer en voorzieningen – praktisch en functioneel
Via het portaal achter de keuken bereik je het toilet, de tuin en de badkamer. De badkamer is volledig betegeld en beschikt over een inloopdouche en een wastafel. Functioneel zoals het is, maar ook hier geldt: met een frisse blik kun je er een fijne wellnessruimte van maken.

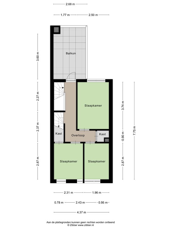
De eerste verdieping – rust en comfort
Boven vind je drie slaapkamers die stuk voor stuk licht en prettig van formaat zijn. De doorlopende houtlook laminaatvloer zorgt voor een rustige uitstraling. De overloop beschikt over een vaste kast en leidt naar een dakterras op het zuidoosten. Hier geniet je ’s ochtends van de eerste zonnestralen of juist ’s avonds van een drankje terwijl de dag tot rust komt.

De tweede verdieping – een wereld aan mogelijkheden
De ruime zolder met dakraam biedt volop mogelijkheden. Of je nu droomt van een vierde slaapkamer, een werkruimte, een atelier of een hobbykamer; hier kan het allemaal. Het is een flexibele ruimte die met weinig moeite een waardevolle aanvulling op het wooncomfort kan worden.

De tuin – zonnig en onderhoudsvriendelijk
De achtertuin is gericht op het zuidoosten, wat betekent dat je vrijwel de hele dag door van de zon kunt genieten. Dankzij het onderhoudsvriendelijke karakter heb je er weinig werk aan en alle tijd om te ontspannen. Achterin staat een praktische berging, ideaal voor fietsen of tuingereedschap.

- Bouwjaar 1938;
- Woonoppervlakte 85 m²;
- Perceeloppervlak 108 m²;
- Inhoud 375 m³;
- NEN 2580 meetrapport*;
- In rustige woonwijk gelegen;
- Winkels, scholen en de diverse uitvalswegen op korte afstand gelegen.

Wil je deze bijzondere woning met zijn vele mogelijkheden bezichtigen?
Dat begrijpen wij heel goed!
Bel of mail ons dan voor een afspraak:

Tel: 013 - 30 33 195
Mail: info@viapaulmakelaardij.nl

Via wie?
Via Paul Makelaardij natuurlijk!
Via wie anders?

De NEN 2580 meetnorm is een eenduidige meetnorm, waarbij met bepaalde richtlijnen rekening gehouden wordt. Zo wordt o.a. een zolder zonder vaste trap of met een lichtoppervlakte (bv dakraam) kleiner dan 0,5 m² niet tot de woonoppervlakte gerekend. Hierdoor kan de woonoppervlakte soms kleiner lijken dan de daadwerkelijke vloeroppervlakte en kleiner lijken dan bij vergelijkbare woningen waar de makelaar de meetnorm niet toe heeft gepast. Ondanks het feit dat de meetnorm verplicht is, hanteren niet alle makelaars consequent de norm. Via Paul Makelaardij laat haar woningen inmeten door een erkend bedrijf. Het meetrapport van deze woning is dan ook, indien gewenst, ter inzage.

Ten aanzien van deze verkoopbrochure zijn de gegevens in deze brochure met de grootste zorg samengesteld. Voor de juistheid van de verstrekte informatie zijn wij in grote mate afhankelijk van derden. Aan vermelde tekst, maten en bijgevoegde tekeningen kunnen derhalve geen rechten worden ontleend. Via Paul makelaardij en de verkoper aanvaarden geen aansprakelijkheid ten aanzien van de gegevens in deze brochure.

Kenmerken