Beschrijving

ZUID-OOSTERSTRAAT 63 TILBURG

Zuid-Oosterstraat 63 – Stijlvol wonen met ruimte, karakter en stadse gemakken
Op een steenworp afstand van het bruisende centrum van Tilburg, maar toch in een rustige straat met dorps karakter, ligt deze prachtige jaren ’30 woning. Met maar liefst 173 m² woonoppervlakte, vijf slaapkamers en volop authentieke details is dit een huis dat je zowel qua ruimte als sfeer zal verrassen.

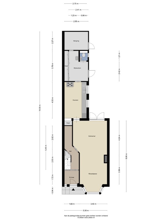
Binnenkomst – Licht en warmte in balans
Via de karakteristieke gebogen voordeur stap je binnen in de sfeervolle entree. Het voorportaal ademt direct jaren ’30 charme, met originele wandtegels en een chique zwart-wit geblokte tegelvloer. Een deur met glas-in-lood ramen en een zijraam laten het licht prachtig spelen. Vanuit de hal heb je toegang tot de meterkast, trapopgang en de woonkamer.

De woonkamer is een heerlijke open en lichte ruimte. Dankzij de grote raampartijen aan voor- en achterzijde valt er de hele dag zonlicht binnen. Aan de voorzijde zorgt de erker met glas-in-lood bovenlichten voor extra ruimte en sfeer, terwijl de openslaande tuindeuren aan de achterzijde het binnen- en buitenleven met elkaar verbinden. De warme houten vloer en strakke afwerking maken het plaatje compleet.

Een keuken met karakter
Vanuit de woonkamer loop je door naar de keuken, die een perfecte mix biedt van modern comfort en klassieke stijl. De hoogglans witte keuken is strak en tijdloos, voorzien van een vaatwasser, dubbele spoelbak, koelkast en veel kastruimte. Eyecatcher is het grote RVS 6-pits gasfornuis met brede oven en bijpassende afzuigkap. Ook hier komt de zwart-wit geblokte tegelvloer terug, wat een subtiele knipoog geeft naar het bouwjaar van de woning.

Aangrenzend vind je de bijkeuken, ideaal voor extra opbergruimte dankzij de grote schuifkastenwand. Hier is ook een uitstortgootsteen aanwezig. Vanuit de bijkeuken bereik je het aparte toilet én de achterdeur naar de tuin.

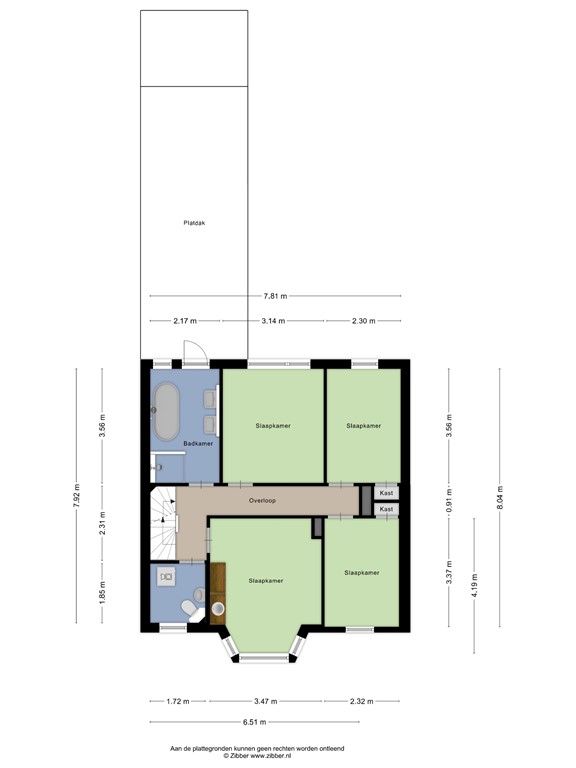
Eerste verdieping – Ruimte voor iedereen
Op de eerste verdieping word je verrast door de royale indeling. Aan de voorzijde ligt de grootste slaapkamer, eveneens met erker en wastafel. Daarnaast vind je hier een tweede kamer die nu is ingericht als walk-in closet – een droom voor iedere kledingliefhebber.

Aan de achterzijde bevinden zich nog twee ruime slaapkamers. Doordat de woning over de poort heen is gebouwd, heb je hier veel meer ruimte dan gemiddeld in de straat. Op deze verdieping vind je ook een aparte wasruimte met wastafel, tweede toilet en aansluitingen voor wasmachine en droger.

Stijlvol ontspannen in de badkamer
De badkamer is ruim en luxueus, een plek om helemaal tot rust te komen. Met een royaal ligbad, dubbele wastafel en een grote inloopdouche voelt het alsof je je eigen wellness aan huis hebt. Vanuit de badkamer heb je toegang tot het plat dak van de keuken en bijkeuken.

Tweede verdieping – Loftachtige master bedroom
Via een vaste trap kom je op de tweede verdieping. Hier tref je een royale, loftachtige master bedroom met de houten spanten van het dak mooi in het zicht. Twee grote dakramen zorgen voor een zee van licht. Daarnaast is er een aparte berging en via de slaapkamer toegang tot een praktische vliering voor spullen die je niet dagelijks nodig hebt.

Stadstuin met charme
De onderhoudsvriendelijke stadstuin op het noorden is bereikbaar via de bijkeuken. Hier is ruimte voor een gezellige loungehoek of eettafel om op zomerdagen te genieten. Grote tegels geven de tuin een strakke uitstraling, terwijl de houten schutting en berging zorgen voor privacy en opbergruimte. Dankzij de poort kun je eenvoudig achterom.

Pluspunten op een rij:

- Authentieke jaren ’30 details zoals glas-in-lood en originele tegels;
- Vijf slaapkamers + walk-in closet;
- Luxe badkamer en moderne keuken;
- Gelegen in gewilde buurt Loven-Zuid, vlak bij centrum en Spoorpark;
- Goede bereikbaarheid met OV en uitvalswegen.

Kenmerken:

- Bouwjaar 1936;
- Perceeloppervlak 145 m²;
- Woonoppervlak 173 m²;
- Inhoud  638 m³;
- NEN 2580 meetrapport*.

Stel je voor: wonen in een charmante straat, terwijl het bruisende stadscentrum slechts een paar minuten verderop ligt. Zuid-Oosterstraat 63 combineert het beste van twee werelden: authentieke jaren ’30 details, een zee aan ruimte én alle gemakken van de stad binnen handbereik.

Bel of mail ons dan voor een afspraak: 
Tel:      013 - 30 33 195 
Mail:    info@viapaulmakelaardij.nl

Via wie? 
Via Paul Makelaardij natuurlijk! 
Via wie anders?

* De NEN 2580 meetnorm is een eenduidige meetnorm, waarbij met bepaalde richtlijnen rekening gehouden wordt. Zo wordt o.a. een zolder zonder vaste trap of met een lichtoppervlakte (bv dakraam) kleiner dan 0,5 m² niet tot de woonoppervlakte gerekend. Hierdoor kan de woonoppervlakte soms kleiner lijken dan de daadwerkelijke vloeroppervlakte en kleiner lijken dan bij vergelijkbare woningen waar de makelaar de meetnorm niet toe heeft gepast. Ondanks het feit dat de meetnorm verplicht is, hanteren niet alle makelaars consequent de norm. Via Paul Makelaardij laat haar woningen inmeten door een erkend bedrijf. Het meetrapport van deze woning is dan ook, indien gewenst, ter inzage.

Ten aanzien van deze verkoopbrochure zijn de gegevens in deze brochure met de grootste zorg samengesteld. Voor de juistheid van de verstrekte informatie zijn wij in grote mate afhankelijk van derden. Aan vermelde tekst, maten en bijgevoegde tekeningen kunnen derhalve geen rechten worden ontleend. Via Paul makelaardij en de verkoper aanvaarden geen aansprakelijkheid ten aanzien van de gegevens in deze brochure.

Kenmerken