Via Paul Makelaardij
Verkocht onder voorbehoud

Verkocht onder voorbehoud: Craenweide 26, 5056 BX Berkel-Enschot

€ 575.000,- k.k.

Beschrijving

CRAENWEIDE 26 BERKEL-ENSCHOT

Een heerlijke gezinswoning, gebouwd onder architectuur van Jos Bedaux, in het groen, op een van de meest geliefde plekken van Berkel-Enschot.

Wonen aan de Craenweide is wonen in een van de meest gewilde en rustige lanen van Berkel-Enschot. Deze charmante wijk ademt ruimte, rust en verbondenheid — precies dat fijne dorpse karakter waar Berkel-Enschot zo om geliefd is. Hier groeten buren elkaar nog, spelen kinderen onbezorgd buiten in de groene straten en ervaar je direct na thuiskomst dat ontspannen, warme ‘thuisgevoel’.

Je woont hier op steenworp afstand van de Rauwbraken: een prachtig stuk natuur waar je heerlijk kunt wandelen, hardlopen of simpelweg genieten van de rust van het water. Ook het moderne winkelcentrum Koningsoord ligt op enkele minuten afstand, met een uitgebreid aanbod aan winkels, horecagelegenheden en voorzieningen. Toch ben je ook zo in het bruisende stadsleven; binnen 10 tot 15 minuten fiets je naar het centrum van Tilburg.

Berkel-Enschot biedt het beste van twee werelden: een dorpse sfeer met volop ruimte en groen, gecombineerd met een verrassend rijk aanbod aan sportverenigingen, basisscholen, winkels én snelle verbindingen naar omliggende steden. En midden in die fijne omgeving staat deze ideale woning aan Craenweide 26, een plek die voelt als thuiskomen.

Welkom in huis – waar licht, ruimte en warmte samenkomen

Zodra je binnenstapt, merk je het: dit is een huis dat je omarmt. De hal met trapopgang en toiletruimte vormt de aanloop naar een royale woonkamer waarin het daglicht gul naar binnen valt. De houten parketvloer loopt prachtig door en geeft direct die warme, natuurlijke uitstraling die past bij het karakter van dit huis. Thuiswerken? Dat kan, tussen de hal en de living bevind zich een extra afgesloten ruimte, welke perfect is werkruimte. Of een aparte speelkamer, een droom van elke ouder!

Gezelligheid rondom de houtkachel

In het zitgedeelte is het puur genieten. De sfeervolle houtkachel maakt dit dé plek voor lange winteravonden; warm, knus en uitnodigend. Twee schuifpuien zorgen voor een directe verbondenheid met de tuin — hier vloeit binnen moeiteloos over in buiten.

Koken met uitzicht op de tuin

De keuken, praktisch gelegen achter de woonkamer, is prettig ingericht en voorzien van alle benodigde apparatuur. Via de keuken stap je door naar de ruime bijkeuken met extra aanrecht, twee spoelbakken en aansluitingen voor wasmachine en droger. Vanuit hier bereik je zowel de tuin als de voormalige garage, nu in gebruik als handige berging.

Drie fijne slaapkamers & een complete badkamer

Op de eerste verdieping bevinden zich drie prettige slaapkamers. De twee slaapkamers aan de voorzijde zijn extra charmant dankzij een eigen wastafel. De badkamer aan de achterzijde is compleet uitgerust met een ligbad, douche, toilet en wastafelmeubel — alles wat je nodig hebt voor een comfortabele start van de dag.

Extra bergruimte op zolder

De ruime zolderverdieping is de ideale plek om koffers, kerstspullen en andere seizoensartikelen netjes op te bergen. Lekker veel ruimte, zonder dat je beperkt wordt in je wooncomfort.

Een tuin vol rust en privacy

De achtertuin is een heerlijke plek voor iedereen die houdt van buitenleven. Groen, beschut en met meerdere terrassen waardoor je altijd een plekje in de zon of schaduw kunt kiezen. Een grote zonneluifel zorgt voor verkoeling op zomerse dagen. De houten berging en het onderhoudsvriendelijke karakter maken deze tuin compleet.

Kenmerken
- Bouwjaar 1992;
- Perceeloppervlak 409 m²;
- Woonoppervlak 121 m²;
- Inhoud 492 m³;
- NEN 2580 meetrapport*;
- Energielabel A – geldig tot en met 8-4-2030;
- Vrijstaand geschakelde woning;
- 3 slaapkamers;
- 12 zonnepanelen;
- Riante onderhoudsvriendelijke tuin;
- Winkels, scholen en de diverse uitvalswegen op korte afstand gelegen;
- Met wat aanpassingen kan hier heel makkelijk een levensloopbestendige woning van gemaakt worden.

Wil je deze bijzondere woning met zijn vele mogelijkheden bezichtigen?
Dat begrijpen wij heel goed!
Bel of mail ons dan voor een afspraak:

Tel: 013 - 30 33 195
Mail: info@viapaulmakelaardij.nl

Via wie?
Via Paul Makelaardij natuurlijk!
Via wie anders?

* De NEN 2580 meetnorm is een eenduidige meetnorm, waarbij met bepaalde richtlijnen rekening gehouden wordt. Zo wordt o.a. een zolder zonder vaste trap of met een lichtoppervlakte (bv dakraam) kleiner dan 0,5 m² niet tot de woonoppervlakte gerekend. Hierdoor kan de woonoppervlakte soms kleiner lijken dan de daadwerkelijke vloeroppervlakte en kleiner lijken dan bij vergelijkbare woningen waar de makelaar de meetnorm niet toe heeft gepast. Ondanks het feit dat de meetnorm verplicht is, hanteren niet alle makelaars consequent de norm. Via Paul Makelaardij laat haar woningen inmeten door een erkend bedrijf. Het meetrapport van deze woning is dan ook, indien gewenst, ter inzage.

Ten aanzien van deze verkoopbrochure zijn de gegevens in deze brochure met de grootste zorg samengesteld. Voor de juistheid van de verstrekte informatie zijn wij in grote mate afhankelijk van derden. Aan vermelde tekst, maten en bijgevoegde tekeningen kunnen derhalve geen rechten worden ontleend. Via Paul makelaardij en de verkoper aanvaarden geen aansprakelijkheid ten aanzien van de gegevens in deze brochure.

Kenmerken

Overdracht
Vraagprijs € 575.000,- k.k.
Status Verkocht onder voorbehoud
Aanvaarding In overleg
Aangeboden sinds Maandag 17 november 2025
Laatste wijziging Vrijdag 12 december 2025
Bouw
Type object Eengezinswoning, woonhuis, geschakelde woning
Soort bouw Bestaande bouw
Bouwjaar 1992
Dakbedekking Dakpannen
Type dak Zadeldak
Oppervlaktes en inhoud
Perceeloppervlakte 409 m²
Woonoppervlakte 121 m²
Woonkameroppervlakte 46 m²
Inhoud 492 m³
Oppervlakte overige inpandige ruimten 18 m²
Oppervlakte externe bergruimte 6 m²
Oppervlakte gebouwgebonden buitenruimte 11 m²
Indeling
Aantal bouwlagen 3
Aantal kamers 6 (waarvan 3 slaapkamers)
Tuin
Type Achtertuin
Hoofdtuin Ja
Oriëntering Oosten
Heeft een achterom Ja
Tuin 2 - Type Achtertuin
Tuin 3 - Type Voortuin
Energieverbruik
Energielabel A
CV ketel
CV ketel Remeha Avanta 35c
Warmtebron Gas
Bouwjaar 2010
Eigendom Eigendom
Uitrusting
Warm water CV-ketel
Verwarmingssysteem Centrale verwarming
Houtkachel
Badkamervoorzieningen Douche
Ligbad
Toilet
Wastafel
Wastafelmeubel
Tuin aanwezig Ja
Heeft schuur/berging Ja
Heeft een schuifpui Ja
Heeft zonwering Ja
Heeft zonnecollectoren Ja
Heeft ventilatie Ja
Kadastrale gegevens
Kadastrale aanduiding Berkel A 3692
Perceeloppervlakte 409 m²
Omvang Geheel perceel
Eigendomsituatie Eigen grond
Neem contact met mij op

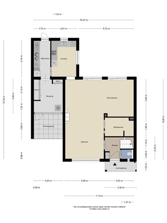
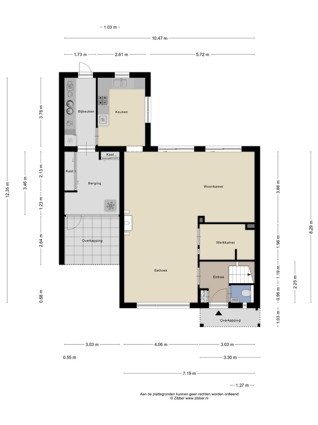
Plattegronden

Brochure(s) en overige bijlagen