Via Paul Makelaardij
Verkocht onder voorbehoud

Verkocht onder voorbehoud: Jan Tinbergenlaan 75, 5056 WE Berkel-Enschot

€ 625.000,- k.k.

Beschrijving

JAN TINBERGENLAAN 75 BERKEL-ENSCHOT

De Jan Tinbergenlaan in Berkel-Enschot is zo’n straat waar je direct voelt dat het klopt. Breed opgezet, omzoomd door volwassen groen en gelegen in een prettige, gemoedelijke woonomgeving waar buren elkaar nog groeten. Hier woon je in alle rust, maar met alles wat het dagelijks leven comfortabel maakt binnen handbereik. Berkel-Enschot staat bekend om zijn dorpse karakter, gecombineerd met de nabijheid van Tilburg. Het beste van twee werelden.

In de directe omgeving vind je scholen, speelveldjes en sportvoorzieningen, wat de buurt bijzonder aantrekkelijk maakt voor gezinnen. Een wandeling of fietstocht door het groen voelt hier vanzelfsprekend, terwijl winkelcentrum Koningsoord uitnodigt voor de dagelijkse boodschappen, een kop koffie of een snelle boodschap. Dankzij de gunstige ligging ten opzichte van uitvalswegen ben je bovendien snel onderweg richting Tilburg, Eindhoven of ’s-Hertogenbosch. Een locatie die rust ademt, maar tegelijkertijd perfect verbonden is met de wereld om je heen.

Een warm welkom – Sfeervol wonen met ruimte voor ieder levensmoment

Via de verzorgde voortuin met oprit voor maar liefst twee auto’s betreed je deze uitstekend onderhouden twee-onder-een-kapwoning. De entree voelt direct prettig aan: licht, ruim en overzichtelijk. De hal biedt plaats aan een garderobe, geeft toegang tot het toilet en leidt je verder de woning in. Hier begint het gevoel van thuiskomen.

Leven, ontspannen en samenzijn

De woonkamer is zonder twijfel het hart van het huis. De houten vloer, de sfeervolle houthaard en de royale raampartijen zorgen samen voor een warme, uitnodigende ambiance. De schuifpui verbindt binnen naadloos met buiten en laat het daglicht rijkelijk binnenstromen. De ruimte is groot genoeg voor een comfortabele zithoek én een gezellige eethoek, perfect voor lange avonden tafelen of ontspannen momenten bij het vuur.

Aansluitend bevindt zich een extra leefruimte – voorheen de keuken – die zich uitstekend leent als speelruimte, leeshoek of werkplek. Het grote raam met uitzicht op de tuin maakt dit een heerlijke plek om te verblijven.

Koken met uitzicht

De keuken, geplaatst in de aanbouw, is praktisch én prettig ingericht. Met een combinatie van lage en hoge kasten, volop werkruimte en complete inbouwapparatuur is dit een fijne plek voor iedere kookliefhebber. Terwijl je kookt, kijk je uit over de tuin en voel je de verbinding met buiten. Daarnaast is de keuken voorzien van een wasmachineaansluiting, wat extra praktisch is in het dagelijks gebruik. Vanuit de keuken is er directe toegang tot de inpandige garage – ideaal voor gemak in het dagelijks leven.

Praktisch en veelzijdig

De inpandige garage is ruim, voorzien van elektra en afgesloten met een elektrisch bedienbare sectionaaldeur. De vaste trap leidt naar een bergzolder, wat zorgt voor extra opslagruimte zonder concessies te doen aan wooncomfort.

Rust en comfort op de verdiepingen

Op de eerste verdieping bevinden zich drie royale slaapkamers, stuk voor stuk keurig afgewerkt met houten vloeren en moderne raambekleding. De vernieuwde kozijnen met HR++ glas zorgen voor comfort en energiezuinigheid. De badkamer, vernieuwd in 2021, straalt luxe en rust uit met een ruime inloopdouche, dubbele wastafel en een zwevend toilet. De aanwezige airco op de eerste verdieping zorgt het hele jaar door voor een aangenaam binnenklimaat.

De tweede verdieping verrast door haar ruimte en flexibiliteit. De zeer royale zolderkamer, voorzien van dakkapellen aan zowel de voor- als achterzijde, is momenteel één grote slaapkamer, maar kan eenvoudig worden verdeeld in twee volwaardige kamers. Op maat gemaakte kasten onder de dakkapellen zorgen voor een opgeruimd geheel. De voorzolder biedt plaats aan de wasvoorzieningen, twee wastafels en veel bergruimte achter de knieschotten.

Buitenleven op zijn best

De achtertuin, gelegen op het zonnige zuidwesten, is fraai aangelegd en biedt meerdere terrassen. Of je nu kiest voor een kop koffie in de ochtendzon of een lange zomeravond met vrienden achter in de tuin – hier kan het allemaal. De tuin is volledig omsloten en bereikbaar via een eigen zijpoort, wat zorgt voor privacy en gemak.

Een unieke extra: de multifunctionele woonunit

Achter in de tuin staat een volledig geïsoleerde woonunit van ca. 25 m², voorzien van HR++ glas. Deze ruimte is momenteel ingericht met een woonkamer, keukenblok, toiletruimte en slaapkamer. Ideaal als mantelzorgwoning, praktijk aan huis, thuiskantoor of gastenverblijf. Een waardevolle toevoeging die deze woning écht onderscheidt.

Duurzaam en toekomstgericht

Met energielabel A, gevelisolatie, vernieuwde kozijnen, een moderne meterkast en maar liefst 11 zonnepanelen is deze woning helemaal klaar voor de toekomst. Comfortabel wonen met oog voor duurzaamheid.

- Bouwjaar 1974;
- Perceeloppervlak: 300 m²;
- Woonoppervlak: 152 m²;
- Garage: 28 m2;
- Woonunit tuin: 25 m²;
- Inhoud: 639 m³;
- NEN 2580 meetrapport*;
- CV ketel recent vervangen (augustus 2025);
- In rustige populaire woonwijk gelegen;
- Winkels, scholen en de diverse uitvalswegen op korte afstand gelegen.

Wil je deze bijzondere woning met zijn vele mogelijkheden bezichtigen?
Dat begrijpen wij heel goed!
Bel of mail ons dan voor een afspraak:

Tel: 013 - 30 33 195
Mail: info@viapaulmakelaardij.nl

Via wie?
Via Paul Makelaardij natuurlijk!
Via wie anders?

* De NEN 2580 meetnorm is een eenduidige meetnorm, waarbij met bepaalde richtlijnen rekening gehouden wordt. Zo wordt o.a. een zolder zonder vaste trap of met een lichtoppervlakte (bv dakraam) kleiner dan 0,5 m² niet tot de woonoppervlakte gerekend. Hierdoor kan de woonoppervlakte soms kleiner lijken dan de daadwerkelijke vloeroppervlakte en kleiner lijken dan bij vergelijkbare woningen waar de makelaar de meetnorm niet toe heeft gepast. Ondanks het feit dat de meetnorm verplicht is, hanteren niet alle makelaars consequent de norm. Via Paul Makelaardij laat haar woningen inmeten door een erkend bedrijf. Het meetrapport van deze woning is dan ook, indien gewenst, ter inzage.

Ten aanzien van deze verkoopbrochure zijn de gegevens in deze brochure met de grootste zorg samengesteld. Voor de juistheid van de verstrekte informatie zijn wij in grote mate afhankelijk van derden. Aan vermelde tekst, maten en bijgevoegde tekeningen kunnen derhalve geen rechten worden ontleend. Via Paul makelaardij en de verkoper aanvaarden geen aansprakelijkheid ten aanzien van de gegevens in deze brochure.

Kenmerken

Overdracht
Vraagprijs € 625.000,- k.k.
Status Verkocht onder voorbehoud
Aanvaarding In overleg
Aangeboden sinds Dinsdag 10 februari 2026
Laatste wijziging Donderdag 12 maart 2026
Bouw
Type object Eengezinswoning, woonhuis, twee onder een kap woning
Soort bouw Bestaande bouw
Bouwjaar 1974
Dakbedekking Dakpannen
Type dak Zadeldak
Isolatievormen Muurisolatie
Oppervlaktes en inhoud
Perceeloppervlakte 300 m²
Woonoppervlakte 152 m²
Woonkameroppervlakte 41 m²
Inhoud 639 m³
Oppervlakte overige inpandige ruimten 28 m²
Oppervlakte externe bergruimte 25 m²
Oppervlakte gebouwgebonden buitenruimte 1 m²
Indeling
Aantal bouwlagen 3
Aantal kamers 7 (waarvan 4 slaapkamers)
Locatie
Ligging Aan rustige weg
In woonwijk
Tuin
Type Achtertuin
Hoofdtuin Ja
Oriëntering Zuid-west
Heeft een achterom Ja
Tuin 2 - Type Achtertuin
Tuin 3 - Type Voortuin
Energieverbruik
Energielabel A
CV ketel
CV ketel Intergas CW5
Warmtebron Gas
Bouwjaar 2025
Eigendom Eigendom
Uitrusting
Aantal parkeerplaatsen 2
Warm water CV-ketel
Verwarmingssysteem Centrale verwarming
Open haard
Vloerverwarming (gedeeltelijk)
Badkamervoorzieningen Dubbele wastafel
Inloopdouche
Toilet
Wastafelmeubel
Heeft airco Ja
Heeft kabel-tv Ja
Glasvezelaansluiting aanwezig Ja
Tuin aanwezig Ja
Heeft rolluiken Ja
Heeft een schuifpui Ja
Heeft zonnecollectoren Ja
Heeft ventilatie Ja
Kadastrale gegevens
Kadastrale aanduiding Berkel B 3045
Perceeloppervlakte 300 m²
Omvang Geheel perceel
Eigendomsituatie Eigen grond
Neem contact met mij op

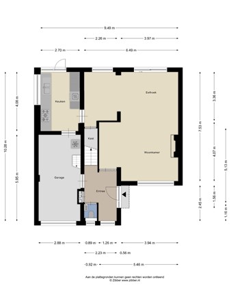
Plattegronden

Brochure(s) en overige bijlagen