Via Paul Makelaardij

Verkocht: De Ripsstraat 4, 5051 BB Goirle

Beschrijving

DE RIPSTRAAT 4 GOIRLE

Royaal wonen in de geliefde wijk Het Ven – met zwembad, 5 slaapkamers én een multifunctionele garage van 67 m²!

Deze verrassend ruime twee-onder-één-kap woning aan de Ripstraat 4 in Goirle biedt een unieke combinatie van comfort, ruimte en ligging. Gelegen in de gewilde en kindvriendelijke wijk Het Ven, op steenworp afstand van het bruisende dorpscentrum van Goirle én de Spoorzone in Tilburg, woon je hier rustig en groen met alle voorzieningen binnen handbereik. Of je nu van winkelen, wandelen, sporten of bourgondisch genieten houdt: hier vind je alles op korte afstand. Zelfs België ligt op slechts 10 minuten fietsen!

Indeling & kenmerken

Begane grond:
Je betreedt de woning via de verzorgde voortuin en dubbele oprit. Binnen tref je een lichte entreehal met garderobe, vernieuwde meterkast en modern hangtoilet. De keuken is functioneel ingericht in hoekopstelling met o.a. inductiekookplaat, oven en koelkast. De royale, uitgebouwde woonkamer met schuifpui naar de tuin biedt veel leefruimte en daglicht. Aangrenzend vind je de bijkeuken met opstelplaats voor wasmachine en droger en de cv-ketel (Remeha, 2021).

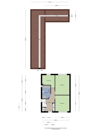
Eerste verdieping:
De eerste verdieping biedt drie ruime slaapkamers, allemaal voorzien van een mooie houtlook laminaatvloer. De complete badkamer beschikt over een ligbad, douche, wastafelmeubel en tweede toilet. Extra bergruimte is aanwezig in een vaste kast op de overloop.

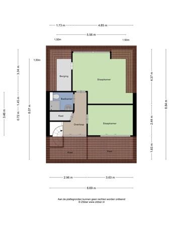
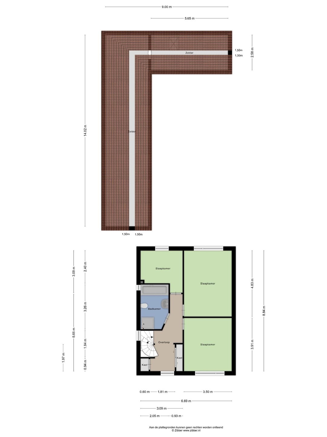
Tweede verdieping:
Deze volledige verdieping is in 2002 opgebouwd en vergroot met dakkapellen en een verhoogde nok. Hier vind je nog eens twee slaapkamers, een tweede badkamer met douche, wastafel en toilet, en extra berging met mechanische ventilatie en warmwatergeiser (Vaillant, 2021).

Tuin:
De achtertuin/patio op het westen is onderhoudsvriendelijk aangelegd en voorzien van een riante terrasoverkapping van 35 m². Het absolute pronkstuk? Het verlichte zwembad van ca. 28 m² (1,40 tot 1,90 meter diep) – ideaal voor ontspanning op zomerse dagen. Verder is er een dubbele buitenkraan en achterom aanwezig.

Multifunctioneel bijgebouw:
De woning beschikt over een enorme garage/berging/hobbyruimte van maar liefst 67 m², uitgerust met krachtstroom, verwarming, water, toilet en een vliering. Perfect voor werken aan huis, opslag, hobby’s of zelfs als praktijkruimte.

Samengevat:

- Bouwjaar 1962;
- Perceeloppervlak 287 m²;
- Woonoppervlak 159 m²;
- Inhoud 563 m³;
- NEN 2580 meetrapport*;
- 5 ruime slaapkamers en 2 complete badkamers;
- Grote woonkamer met uitbouw en aparte bijkeuken;
- Gigantisch bijgebouw van 67 m² met talloze mogelijkheden;
- Volledig voorzien van rolluiken en screen aan de voorzijde;
- Zinken dakgoten recent vernieuwd;
- Tuin/patio met overkapping en zwembad;
- Gelegen in populaire wijk Het Ven, nabij centrum en voorzieningen.

Een unieke kans voor wie ruim, luxe en centraal wil wonen in Goirle!

Wil je deze bijzondere woning met zijn vele mogelijkheden bezichtigen?
Dat begrijpen wij heel goed!

Bel of mail ons dan voor een afspraak:

Tel: 013 - 30 33 195
Mail: info@viapaulmakelaardij.nl

Via wie?
Via Paul Makelaardij natuurlijk!
Via wie anders?

* De NEN 2580 meetnorm is een eenduidige meetnorm, waarbij met bepaalde richtlijnen rekening gehouden wordt. Zo wordt o.a. een zolder zonder vaste trap of met een lichtoppervlakte (bv dakraam) kleiner dan 0,5 m² niet tot de woonoppervlakte gerekend. Hierdoor kan de woonoppervlakte soms kleiner lijken dan de daadwerkelijke vloeroppervlakte en kleiner lijken dan bij vergelijkbare woningen waar de makelaar de meetnorm niet toe heeft gepast. Ondanks het feit dat de meetnorm verplicht is, hanteren niet alle makelaars consequent de norm. Via Paul Makelaardij laat haar woningen inmeten door een erkend bedrijf. Het meetrapport van deze woning is dan ook, indien gewenst, ter inzage.

Ten aanzien van deze verkoopbrochure zijn de gegevens in deze brochure met de grootste zorg samengesteld. Voor de juistheid van de verstrekte informatie zijn wij in grote mate afhankelijk van derden. Aan vermelde tekst, maten en bijgevoegde tekeningen kunnen derhalve geen rechten worden ontleend. Via Paul makelaardij en de verkoper aanvaarden geen aansprakelijkheid ten aanzien van de gegevens in deze brochure.

Kenmerken

Overdracht
Vraagprijs € 495.000,- k.k.
Status Verkocht
Aanvaarding In overleg
Aangeboden sinds Donderdag 3 juli 2025
Laatste wijziging Dinsdag 2 december 2025
Bouw
Type object Eengezinswoning, woonhuis, tussenwoning
Soort bouw Bestaande bouw
Bouwjaar 1962
Dakbedekking Dakpannen
Type dak Zadeldak
Oppervlaktes en inhoud
Perceeloppervlakte 287 m²
Woonoppervlakte 159 m²
Woonkameroppervlakte 31 m²
Inhoud 563 m³
Oppervlakte externe bergruimte 67 m²
Oppervlakte gebouwgebonden buitenruimte 32 m²
Indeling
Aantal bouwlagen 3
Aantal kamers 8 (waarvan 5 slaapkamers)
Locatie
Ligging Aan rustige weg
In woonwijk
Tuin
Type Patio
Hoofdtuin Ja
Oriëntering West
Heeft een achterom Ja
Tuin 2 - Type Voortuin
Tuin 3 - Type Patio
Energieverbruik
Energielabel D
CV ketel
CV ketel Remeha
Bouwjaar 2021
Combiketel Ja
Eigendom Eigendom
Uitrusting
Aantal parkeerplaatsen 2
Warm water CV-ketel
Verwarmingssysteem Centrale verwarming
Badkamervoorzieningen Badkamer 1 Douche
Ligbad
Toilet
Wastafel
Badkamervoorzieningen Badkamer 2 Douche
Toilet
Wastafel
Tuin aanwezig Ja
Heeft rolluiken Ja
Heeft een schuifpui Ja
Heeft een zwembad Ja
Heeft ventilatie Ja
Kadastrale gegevens
Kadastrale aanduiding Goirle E 1627
Perceeloppervlakte 287 m²
Omvang Geheel perceel
Eigendomsituatie Eigen grond

Plattegronden

Brochure(s) en overige bijlagen