Via Paul Makelaardij
Verkocht onder voorbehoud

Verkocht onder voorbehoud: Tilburgseweg 4, 5051 AH Goirle

€ 489.000,- k.k.

Beschrijving

TILBURGSEWEG 4 GOIRLE

De Tilburgseweg in Goirle is zo’n straat waar het dorp zichzelf laat zien op z’n mooist. Levendig, karaktervol en met een warme Brabantse gemoedelijkheid. Hier wandel je langs winkels, speciaalzaken en gezellige eetgelegenheden, terwijl je tegelijkertijd het gevoel behoudt dat alles overzichtelijk en vertrouwd is. Aan het ene uiteinde lonkt het dorpshart, aan het andere begint vrijwel direct het uitgestrekte Brabantse natuurlandschap. Bossen, vennen en landelijke paden liggen op fiets- en wandelafstand, perfect voor wie graag de rust opzoekt na een dag vol dynamiek.

Goirle zelf biedt het beste van twee werelden: een dorpse sfeer met stadse voorzieningen binnen handbereik. Tilburg ligt letterlijk om de hoek, waardoor cultuur, onderwijs en uitgaansmogelijkheden altijd dichtbij zijn. En toch… kom je hier thuis, dan voelt het alsof de tijd net iets langzamer loopt. Precies dát maakt wonen aan de Tilburgseweg zo bijzonder.

Een huis met karakter, warmte en ruimte – Een statig welkom

Aan de Tilburgseweg 4 staat dit charmante herenhuis met garage, midden in het dorpshart. Een woning die direct indruk maakt door haar uitstraling en karakteristieke elementen. Hier woon je royaal, met ruimte voor het hele gezin, terwijl winkels, natuur en voorzieningen letterlijk aan je voeten liggen.

Via de entree kom je binnen in een prettige hal met garderobe en trapopgang: een voorproefje van de sfeer die je verder in huis zult ervaren.

Woonkamer – Licht, elegantie en rust

De zonnige woonkamer ademt sfeer. Zodra je binnenstapt, vallen de prachtige glas-in-loodramen aan de voor- en achterzijde op – een subtiele knipoog naar het bouwjaar van de woning. De eikenhouten vloer, het strak gestuukte plafond met sierlijsten en de prettige lichtinval zorgen samen voor een warm en elegant geheel. De indeling is flexibel: een gezellige zithoek aan de voorzijde, met uitzicht op de Tilburgseweg en de St. Jan, en een eethoek aan de achterzijde waar openslaande tuindeuren de tuin naar binnen halen. Dankzij de dubbele beglazing en airconditioning is het hier het hele jaar door comfortabel: behaaglijk warm in de winter, heerlijk koel in de zomer.

Leefkeuken – Het kloppend hart van het huis

Vanuit de woonkamer loop je door naar de royale woonkeuken – een echte leefruimte. Dit is zo’n plek waar lange avonden ontstaan, waar gekookt, gepraat en gelachen wordt. De boerenplavuizen vloer, de ingebouwde servieskast en het granieten werkblad versterken het landelijke, warme karakter.

En dan het absolute pronkstuk: het Stoves Richmond 90 DF gasfornuis in crème. Met vijf gaskookzones (waaronder een krachtige wokbrander), drie ovens, een airfryfunctie en gietijzeren grillplaat is dit fornuis een droom voor iedere kookliefhebber. Niet alleen functioneel, maar ook een ware eyecatcher die de keuken een exclusieve uitstraling geeft.

Staand achter het aanrecht kijk je uit op de tuin – koken met rust en groen als decor. Vanuit de keuken is bovendien de kelder bereikbaar, ideaal voor extra provisieruimte.

Bijkeuken & badkamer – Praktisch en comfortabel

Aansluitend aan de keuken ligt de bijkeuken met aansluitingen voor wasapparatuur, extra bergruimte en toegang tot de tuin. Vanuit de bijkeuken bereik je de separate toiletruimte en de badkamer op de begane grond. De badkamer is verzorgd en compleet met douchecabine, thermostaatkraan en designradiator, uitgevoerd in een rustige, passende kleurstelling.

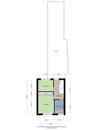
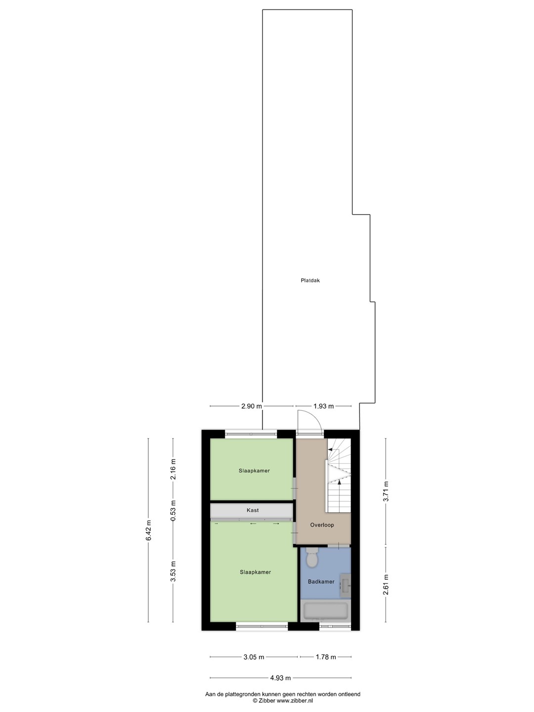
Eerste verdieping – Rust en ontspanning

De overloop geeft toegang tot twee slaapkamers, een tweede badkamer en het dakterras.
De hoofdslaapkamer aan de voorzijde beschikt over een vaste kastenwand en voelt licht en comfortabel aan. De tweede slaapkamer aan de achterzijde is perfect als kinder-, logeer- of werkkamer. Beide kamers zijn afgewerkt met een laminaatvloer. De badkamer op deze verdieping is uitgevoerd in frisse witte tinten en uitgerust met een ligbad met whirlpoolfunctie, wastafelmeubel, toilet en designradiator – een fijne plek om de dag ontspannen af te sluiten.

Tweede verdieping – Ruimte voor dromen

Via een vaste trap bereik je de voorzolder en twee zolderkamers. Eén kamer is een volwaardige slaapkamer met laminaatvloer en Velux dakraam. De tweede kamer biedt volop mogelijkheden: een extra slaapkamer, thuiswerkplek of creatieve studio. Nu in gebruik als bergruimte, maar klaar voor een nieuwe invulling.

Buitenleven – Zon en privacy

De zij- en achtertuin vormen een heerlijke buitenruimte. De achtertuin, gelegen op het westen, is sfeervol aangelegd met terras, plantenborders en grind. Hier geniet je in alle rust van de middag- en avondzon. Via een poort aan de zijkant is de tuin bereikbaar en achterin staat een houten berging/overkapping voor extra opslag, nu in gebruik als overdekt terras.

Garage – Comfort en gemak

De stenen garage met elektrisch bedienbare sectionaaldeur is bereikbaar via de St. Janstraat én vanuit de achtertuin. Ideaal voor het parkeren van een auto of het stallen van fietsen en bijvoorbeeld een motor.

Kenmerken op een rij:

- Bouwjaar: 1931;
- Inhoud: circa 496 m³;
- Woonoppervlakte: 114 m²;
- Perceeloppervlakte: 145 m²;
- NEN 2580 meetrapport aanwezig*.

Wil je deze bijzondere woning met zijn vele mogelijkheden bezichtigen?
Dat begrijpen wij heel goed!
Bel of mail ons dan voor een afspraak:

Tel: 013 - 30 33 195
Mail: info@viapaulmakelaardij.nl

Via wie?
Via Paul Makelaardij natuurlijk!
Via wie anders?

* De NEN 2580 meetnorm is een eenduidige meetnorm, waarbij met bepaalde richtlijnen rekening gehouden wordt. Zo wordt o.a. een zolder zonder vaste trap of met een lichtoppervlakte (bv dakraam) kleiner dan 0,5 m² niet tot de woonoppervlakte gerekend. Hierdoor kan de woonoppervlakte soms kleiner lijken dan de daadwerkelijke vloeroppervlakte en kleiner lijken dan bij vergelijkbare woningen waar de makelaar de meetnorm niet toe heeft gepast. Ondanks het feit dat de meetnorm verplicht is, hanteren niet alle makelaars consequent de norm. Via Paul Makelaardij laat haar woningen inmeten door een erkend bedrijf. Het meetrapport van deze woning is dan ook, indien gewenst, ter inzage.

Ten aanzien van deze verkoopbrochure zijn de gegevens in deze brochure met de grootste zorg samengesteld. Voor de juistheid van de verstrekte informatie zijn wij in grote mate afhankelijk van derden. Aan vermelde tekst, maten en bijgevoegde tekeningen kunnen derhalve geen rechten worden ontleend. Via Paul makelaardij en de verkoper aanvaarden geen aansprakelijkheid ten aanzien van de gegevens in deze brochure.

Kenmerken

Overdracht
Vraagprijs € 489.000,- k.k.
Status Verkocht onder voorbehoud
Aanvaarding In overleg
Aangeboden sinds Maandag 26 januari 2026
Laatste wijziging Vrijdag 20 februari 2026
Bouw
Type object Herenhuis, woonhuis, twee onder een kap woning
Soort bouw Bestaande bouw
Bouwjaar 1931
Dakbedekking Dakpannen
Type dak Zadeldak
Isolatievormen Dakisolatie
Gedeeltelijk dubbel glas
Muurisolatie
Oppervlaktes en inhoud
Perceeloppervlakte 145 m²
Woonoppervlakte 114 m²
Woonkameroppervlakte 23 m²
Inhoud 496 m³
Oppervlakte overige inpandige ruimten 26 m²
Oppervlakte externe bergruimte 9 m²
Oppervlakte gebouwgebonden buitenruimte 1 m²
Indeling
Aantal bouwlagen 3 (en 1 kelder)
Aantal kamers 6 (waarvan 3 slaapkamers)
Locatie
Ligging In centrum
Tuin
Type Achtertuin
Hoofdtuin Ja
Oriëntering West
Heeft een achterom Ja
Staat Goed onderhouden
Tuin 2 - Type Achtertuin
Tuin 2 - Staat Goed onderhouden
Energieverbruik
Energielabel C
Uitrusting
Aantal parkeerplaatsen 1
Warm water Elektrische boiler
Badkamervoorzieningen Badkamer 1 Douche
Badkamervoorzieningen Badkamer 2 Ligbad
Toilet
Wastafel
Wastafelmeubel
Whirlpool
Heeft airco Ja
Heeft kabel-tv Ja
Tuin aanwezig Ja
Heeft rolluiken Ja
Heeft schuur/berging Ja
Heeft een dakraam Ja
Heeft zonnecollectoren Ja
Heeft ventilatie Ja
Kadastrale gegevens
Kadastrale aanduiding Goirle B 4319
Perceeloppervlakte 145 m²
Omvang Geheel perceel
Eigendomsituatie Eigen grond
Neem contact met mij op

Plattegronden

Brochure(s) en overige bijlagen