Via Paul Makelaardij

Verkocht: Barneveldstraat 27, 5043 CA Tilburg

Beschrijving

BARNEVELDSTRAAT 27 TILBURG (REESHOF)

Ruimte om te leven
In de rustige en kindvriendelijke wijk Gesworen Hoek in de Reeshof vind je deze uitgebouwde semi-bungalow met een woonoppervlakte van 104 m² op een perceel van maar liefst 259 m². De woning is gelegen in een autoluwe straat en biedt dankzij de slimme indeling alle ruimte om comfortabel te wonen – nu én in de toekomst.

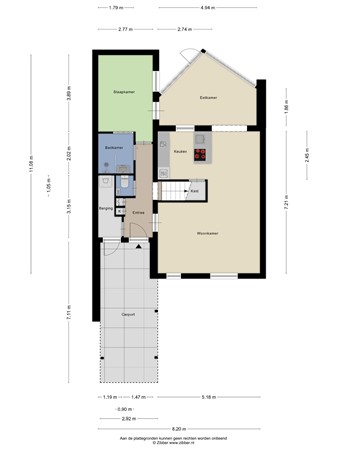
Bij binnenkomst tref je een nette entree met trapopgang en toegang tot de inpandige berging. Vanuit hier bereik je de woonkamer met veel lichtinval en een prettige indeling. De woonkamer loopt door in een eetkamer/tuinkamer aan de achterzijde met een glazen pui en openslaande deuren naar de tuin. Alle ramen aan de voorzijde zijn voorzien van rolluiken. Dankzij de recente laminaatvloer en strakke afwerking voelt de woning direct instapklaar.
De keuken staat in open verbinding met de woonkamer en is het hart van het huis. Voorzien van een modern kook-/spoeleiland en praktische inbouwapparatuur zoals kookplaat met afzuigkap, vaatwasser, koelkast en combi-magnetron op ooghoogte, is dit de ideale plek om samen te koken en te genieten.

Badkamer beneden
Op de begane grond bevindt zich een ruime slaapkamer (ca. 11 m²), waardoor de woning levensloopbestendig is. De naastgelegen badkamer is stijlvol afgewerkt en beschikt over een ruime inloopdouche en een modern wastafelmeubel. Het toilet is separaat gesitueerd, wel zo praktisch.

De inpandige berging (ca. 6 m²) is bereikbaar vanuit de hal én vanaf de oprit. Hier vind je de aansluitingen voor wasmachine en droger en is voldoende plek voor fietsen of extra opslag.

Bovenverdieping
Op de eerste verdieping vind je nog twee slaapkamers. De grootste (ca. 13 m²) beschikt over een handige berging onder de schuine kap, ideaal voor koffers en seizoensspullen. De tweede kamer (ca. 7 m²) is nu ingericht als walk-in closet – een luxe extra die eenvoudig naar wens kan worden omgetoverd tot slaap- of werkkamer. Ook op deze verdieping ligt een nette laminaatvloer.

Binnen wordt buiten
Vanuit de tuinkamer stap je zo de fraai aangelegde achtertuin in. De tuin is gesitueerd op het noordoosten, biedt volop privacy en grenst aan het talud van de Moerse Dreef. Met een groot terras, verhoogde borders en een houten berging met elektra is dit een fijne plek om te ontspannen.

Ook de voortuin is onderhoudsvriendelijk en voorzien van een eigen oprit, zodat parkeren op eigen terrein altijd mogelijk is.

Duurzaam wonen
Aan de achterzijde van de woning liggen maar liefst 18 zonnepanelen, waardoor je aanzienlijk bespaart op de energiekosten. Dit maakt de woning niet alleen toekomstbestendig, maar ook aantrekkelijk voor wie bewust en energiezuinig wil wonen.

Waarom Barneveldstraat 27?

- Levensloopbestendig dankzij slaapkamer en badkamer op de begane grond;
- Uitgebouwde woonkamer met veel lichtinval en open keuken;
- Fraai aangelegde tuin met berging en eigen oprit;
- Twee extra slaapkamers boven, waarvan één met walk-in closet;
- Rustige, kindvriendelijke ligging met alle voorzieningen nabij;
- 18 zonnepanelen voor lage energielasten en duurzaam wonen;
- Platdak uitbouw recent geheel vernieuwd.

Kenmerken:

- Bouwjaar: 1989;
- Woonoppervlak: 104 m²;
- Perceeloppervlakte: 259 m²;
- Inhoud: 369 m³;
- Energielabel: A;
- NEN 2580 meetrapport*.

Kortom: een instapklare semi-bungalow die comfort, duurzaamheid en gemak combineert met ruimte en rust.

Bel of mail ons dan voor een afspraak:
Tel: 013 - 30 33 195
Mail: tilburg@viapaulmakelaardij.nl

Via wie?
Via Paul Makelaardij natuurlijk!
Via wie anders?

De NEN 2580 meetnorm is een eenduidige meetnorm, waarbij met bepaalde richtlijnen rekening gehouden wordt. Zo wordt o.a. een zolder zonder vaste trap of met een lichtoppervlakte (bv dakraam) kleiner dan 0,5 m² niet tot de woonoppervlakte gerekend. Hierdoor kan de woonoppervlakte soms kleiner lijken dan de daadwerkelijke vloeroppervlakte en kleiner lijken dan bij vergelijkbare woningen waar de makelaar de meetnorm niet toe heeft gepast. Ondanks het feit dat de meetnorm verplicht is, hanteren niet alle makelaars consequent de norm. Via Paul Makelaardij laat haar woningen inmeten door een erkend bedrijf. Het meetrapport van deze woning is dan ook, indien gewenst, ter inzage.

Ten aanzien van deze verkoopbrochure zijn de gegevens in deze brochure met de grootste zorg samengesteld. Voor de juistheid van de verstrekte informatie zijn wij in grote mate afhankelijk van derden. Aan vermelde tekst, maten en bijgevoegde tekeningen kunnen derhalve geen rechten worden ontleend. Via Paul makelaardij en de verkoper aanvaarden geen aansprakelijkheid ten aanzien van de gegevens in deze brochure.

Kenmerken

Overdracht
Vraagprijs € 425.000,- k.k.
Status Verkocht
Aanvaarding In overleg
Aangeboden sinds Dinsdag 26 augustus 2025
Laatste wijziging Woensdag 3 december 2025
Bouw
Type object Bungalow, woonhuis, twee onder een kap woning
Soort bouw Bestaande bouw
Bouwjaar 1989
Dakbedekking Dakpannen
Type dak Lessenaarsdak
Oppervlaktes en inhoud
Perceeloppervlakte 259 m²
Woonoppervlakte 104 m²
Woonkameroppervlakte 26 m²
Inhoud 369 m³
Oppervlakte externe bergruimte 7 m²
Oppervlakte gebouwgebonden buitenruimte 20 m²
Indeling
Aantal bouwlagen 2
Aantal kamers 6 (waarvan 3 slaapkamers)
Locatie
Ligging Aan rustige weg
In woonwijk
Tuin
Type Achtertuin
Hoofdtuin Ja
Oriëntering Noord-oost
Tuin 2 - Type Achtertuin
Tuin 3 - Type Voortuin
Energieverbruik
Energielabel A
Uitrusting
Verwarmingssysteem Open haard
Stadsverwarming
Badkamervoorzieningen Inloopdouche
Wastafel
Wastafelmeubel
Tuin aanwezig Ja
Heeft rolluiken Ja
Heeft schuur/berging Ja
Heeft zonnecollectoren Ja
Heeft ventilatie Ja
Kadastrale gegevens
Kadastrale aanduiding Tilburg AF 1557
Perceeloppervlakte 259 m²
Omvang Geheel perceel
Eigendomsituatie Eigen grond

Plattegronden

Brochure(s) en overige bijlagen