Via Paul Makelaardij
Nieuw in verkoop

Te koop: Beijerlandstraat 31, 5018 DB Tilburg

€ 525.000,- k.k.

Beschrijving

BEIJERLANDSTRAAT 31 TILBURG

Welkom in Nieuw Jeruzalem – wonen met karakter
In het hart van de geliefde nieuwbouwwijk Nieuw Jeruzalem staat deze instapklare eindwoning te schitteren. Een plek waar modern wooncomfort, stijlvol design en een warme, dorpse sfeer samenkomen. Al bij aankomst valt de verzorgde uitstraling op: een fraai lijnenspel van gevels, keurig aangelegde paden en de rust van een wijk waar het leven net een tandje langzamer gaat. Hier voelt u zich meteen thuis, midden in een buurt die gemak en gezelligheid moeiteloos combineert.

Sfeervolle woning met licht, ruimte en comfort

Licht en ruimte in overvloed
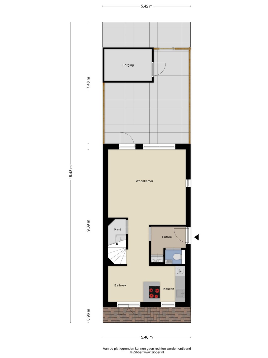
Deze hoekwoning van ruim 123 m² op een perceel van 100 m² biedt vier slaapkamers verdeeld over twee verdiepingen. Grote raampartijen zorgen voor een overvloed aan natuurlijk licht, waardoor elke ruimte voelt als een warme en uitnodigende plek om te wonen.

Warm welkom op de begane grond
De U-vormige woonkamer is het hart van het huis, met een praktische trapkast in het midden voor al uw opbergwensen. Dankzij de vloerverwarming ervaart u hier een aangename warmte, zelfs op de koudste dagen. De woonkamer vormt het perfecte decor voor gezellige avonden met familie of vrienden.

Keuken met oog voor detail
De moderne keuken is van alle gemakken voorzien: een vaatwasser, koelkast, combi-oven, spoelbak en een inductiekookplaat met down draft afzuigsysteem. Hier bereidt u maaltijden in stijl, terwijl het lichte interieur de ruimte een frisse, open uitstraling geeft.

Ontspanning en comfort
De badkamer is uitgerust met een inloopdouche, wastafel en toilet – een serene plek om de dag te beginnen of af te sluiten. De hoofdslaapkamer beschikt over een airco voor extra comfort tijdens warme zomerdagen. Op de tweede verdieping zorgen rolluiken aan de voorzijde voor privacy en optimale verduistering.

Handig en praktisch
De woning beschikt over een volwaardige tweede verdieping met twee royale slaapkamers en een extra ruimte met de aansluiting voor de wasmachine en de mechanische installatie. Een compacte, onderhoudsvriendelijke tuin op het oosten met grijze tegels, een buitenkraan en een houten schuur met elektra maakt het plaatje compleet. Voor bezoekers of uzelf is er openbaar parkeren in de straat.

Pluspunten op een rij
• Bouwjaar: 2016
• Woonoppervlak: 123 m²
• Perceeloppervlakte: 100 m²
• 4 slaapkamers
• Gratis parkeren in de straat
• 6 zonnepanelen
• Gedeeltelijk vloerverwarming
• Gedeeltelijk rolluiken en horren aanwezig
• Energielabel A, geldig tot en met 26-10-2026
NEN 2580 meetrapport*

Bezichtiging
Wil je deze bijzondere woning met zijn vele mogelijkheden bezichtigen?
Dat begrijpen wij heel goed!

Bel of mail ons dan voor een afspraak:
Tel: 013 - 30 33 195
Mail: tilburg@viapaulmakelaardij.nl

Via wie?
Via Paul Makelaardij natuurlijk!
Via wie anders?

* De NEN 2580 meetnorm is een eenduidige meetnorm, waarbij met bepaalde richtlijnen rekening gehouden wordt. Zo wordt o.a. een zolder zonder vaste trap of met een lichtoppervlakte (bv dakraam) kleiner dan 0,5 m² niet tot de woonoppervlakte gerekend. Hierdoor kan de woonoppervlakte soms kleiner lijken dan de daadwerkelijke vloeroppervlakte en kleiner lijken dan bij vergelijkbare woningen waar de makelaar de meetnorm niet toe heeft gepast. Via Paul Makelaardij laat haar woningen inmeten door een erkend bedrijf. Het meetrapport van deze woning is dan ook, indien gewenst, ter inzage.

Ten aanzien van deze verkoopbrochure zijn de gegevens in deze brochure met de grootste zorg samengesteld. Voor de juistheid van de verstrekte informatie zijn wij in grote mate afhankelijk van derden. Aan vermelde tekst, maten en bijgevoegde tekeningen kunnen derhalve geen rechten worden ontleend. Via Paul Makelaardij en de verkoper aanvaarden geen aansprakelijkheid ten aanzien van de gegevens in deze brochure.

Kenmerken

Overdracht
Vraagprijs € 525.000,- k.k.
Status Nieuw in verkoop
Aanvaarding In overleg
Aangeboden sinds Maandag 10 november 2025
Bouw
Type object Eengezinswoning, woonhuis, hoekwoning
Soort bouw Bestaande bouw
Bouwjaar 2016
Type dak Platdak
Oppervlaktes en inhoud
Perceeloppervlakte 100 m²
Woonoppervlakte 123 m²
Woonkameroppervlakte 22 m²
Inhoud 437 m³
Oppervlakte externe bergruimte 6 m²
Indeling
Aantal bouwlagen 3
Aantal kamers 8 (waarvan 4 slaapkamers)
Tuin
Type Achtertuin
Hoofdtuin Ja
Oriëntering Noord-oost
Heeft een achterom Ja
Tuin 2 - Type Achtertuin
Energieverbruik
Energielabel A
CV ketel
CV ketel Itho Daalderop Base Cube
Bouwjaar 2016
Combiketel Ja
Eigendom Eigendom
Uitrusting
Warm water CV-ketel
Zonnecollectoren
Verwarmingssysteem Centrale verwarming
Vloerverwarming (gedeeltelijk)
Badkamervoorzieningen Inloopdouche
Toilet
Wastafel
Heeft airco Ja
Heeft kabel-tv Ja
Heeft een frans balkon Ja
Tuin aanwezig Ja
Heeft rolluiken Ja
Heeft schuur/berging Ja
Heeft ventilatie Ja
Kadastrale gegevens
Kadastrale aanduiding Tilburg X 1769
Perceeloppervlakte 100 m²
Omvang Geheel perceel
Eigendomsituatie Eigen grond
Neem contact met mij op

Plattegronden

Brochure(s) en overige bijlagen