Via Paul Makelaardij
Nieuw in verkoop

Te koop: Benthuizenstraat 64, 5043 AS Tilburg

€ 385.000,- k.k.

Beschrijving

Sfeervol wonen aan het water – grotendeels gerenoveerd en instapklaar

Deze charmante woning is tussen 2017 en nu vrijwel volledig gerenoveerd en daarmee helemaal klaar voor jarenlang woonplezier. Denk aan kunststof kozijnen met HR++ glas, meerdere Velux-dakramen, een nieuwe voordeur, vernieuwde meterkast, een compleet nieuw dak én in 2025 zelfs twee hoogwaardige Daikin-airconditionings. Comfort en duurzaamheid zijn hier perfect gecombineerd.

De ligging maakt het plaatje compleet: aan de achterzijde bevindt zich een heerlijk overdekt terras direct aan het water. Een unieke plek om te ontspannen, te dineren in de avondzon of te genieten van een barbecue met vrienden. Aan de voorzijde beschikt de woning over een eigen oprit met ruimte voor meerdere auto’s.

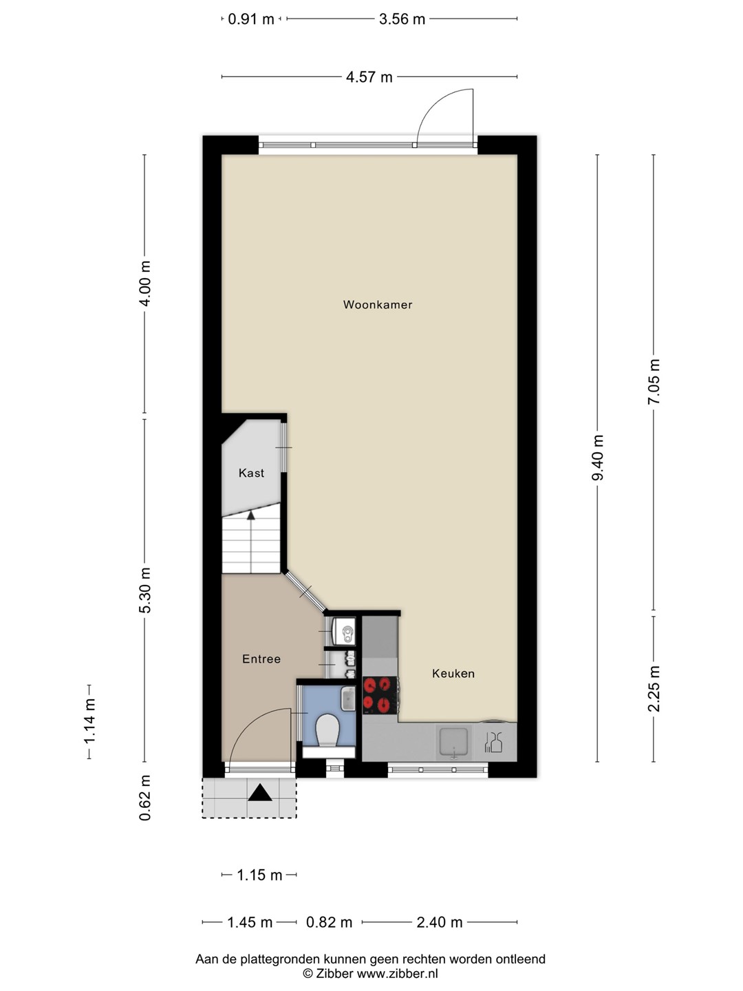
Begane grond

Via de hal/entree bereikt u de meterkast, het toilet, de trapopgang naar de eerste verdieping en de woonkamer.

De woonkamer is stijlvol afgewerkt met een Italiaanse marmeren tegelvloer, strakke wanden en een gespoten plafond. Aan de voorzijde bevindt zich de knusse keuken, voorzien van diverse inbouwapparatuur zoals een keramische kookplaat, afzuigkap en oven. Vanuit de woonkamer heeft u toegang tot een praktische bergkast en via de loopdeur bereikt u de achtertuin. De ramen beschikken zowel aan de voorzijde en achterzijde over elektrisch bedienbare screens.

Eerste verdieping

De overloop geeft toegang tot drie ruime slaapkamers en de badkamer. Alle slaapkamers zijn voorzien van een laminaatvloer, strakke wandafwerking en gespoten plafonds. De kamers aan de voorzijde beschikken over elektrisch bedienbare screens; de slaapkamer aan de achterzijde heeft een dakraam.

De badkamer is compleet uitgerust met een wastafel met ombouw en spiegel, ligbad, douche en mechanische ventilatie.

Tweede verdieping

Via een vaste trap bereikt u de tweede verdieping met een voorzolder en een vierde slaapkamer. Deze kamer is voorzien van een laminaatvloer, grote Velux-dakramen en een wastafel met ombouw en close?in boiler. Achter de knieschotten bevindt zich veel bergruimte. Vanuit de slaapkamer is bovendien de bergzolder bereikbaar voor extra opslag. De voorzolder beschikt over een aparte wasruimte met aansluitingen voor wasapparatuur.

Tuin

De achtertuin, gelegen op het Noordwesten, is verzorgd aangelegd met straatwerk en beplanting en grenst direct aan het water. Het overdekte terras/prieel biedt een fantastische plek om te ontspannen met uitzicht over het water.

Aan de voorzijde staat een vrij gelegen stenen berging met elektra. De eigen oprit biedt plaats aan meerdere auto’s.

Een woning om van te genieten

Vissen vanuit uw eigen achtertuin, dineren in de ondergaande zon of ontspannen onder het overdekte terras aan het water – het kan hier allemaal. Met vier slaapkamers, een prachtige ligging en een groot aantal recente renovaties is deze woning een unieke kans.

De woning ligt bovendien op loopafstand van winkelcentrum Buurmalsenplein en diverse voorzieningen. Kortom: absoluut een bezichtiging waard.

Bijzonderheden
- Bouwjaar: 1984
- Perceeloppervlakte: 143 m²
- Woonoppervlakte: 96 m²
- Energielabel B (echter dit is een oud label daarna is er oa. een nieuw dak geplaatst en nieuwe kozijnen)
- NEN 2580 meetrapport

Wil je deze bijzondere woning met zijn vele mogelijkheden bezichtigen?
Dat begrijpen wij heel goed!
Bel of mail ons dan voor een afspraak:

Tel: 013 - 30 33 195
Mail: info@viapaulmakelaardij.nl

Via wie?
Via Paul Makelaardij natuurlijk!
Via wie anders?

De NEN 2580 meetnorm is een eenduidige meetnorm, waarbij met bepaalde richtlijnen rekening gehouden wordt. Zo wordt o.a. een zolder zonder vaste trap of met een totale lichtoppervlakte (bv dakraam) kleiner dan 0,5 m² niet tot de woonoppervlakte gerekend. Hierdoor kan de woonoppervlakte soms kleiner lijken dan de daadwerkelijke vloeroppervlakte en kleiner lijken dan bij vergelijkbare woningen waar de makelaar de meetnorm niet toe heeft gepast. Ondanks het feit dat de meetnorm verplicht is, hanteren niet alle makelaars consequent de norm. Via Paul Makelaardij laat haar woningen inmeten door een erkend bedrijf.

Ten aanzien van deze verkoopbrochure zijn de gegevens in deze brochure met de grootste zorg samengesteld. Voor de juistheid van de verstrekte informatie zijn wij in grote mate afhankelijk van derden. Aan vermelde tekst, maten en bijgevoegde tekeningen kunnen derhalve geen rechten worden ontleend. Via Paul makelaardij en de verkoper aanvaarden geen aansprakelijkheid ten aanzien van de gegevens in deze brochure.

Kenmerken

Overdracht
Vraagprijs € 385.000,- k.k.
Status Nieuw in verkoop
Aanvaarding In overleg
Aangeboden sinds Maandag 30 maart 2026
Bouw
Type object Eengezinswoning, woonhuis, tussenwoning
Soort bouw Bestaande bouw
Bouwjaar 1984
Dakbedekking Dakpannen
Type dak Zadeldak
Isolatievormen Volledig geïsoleerd
Oppervlaktes en inhoud
Perceeloppervlakte 143 m²
Woonoppervlakte 96 m²
Inhoud 341 m³
Oppervlakte externe bergruimte 5 m²
Oppervlakte gebouwgebonden buitenruimte 1 m²
Indeling
Aantal bouwlagen 3
Aantal kamers 8 (waarvan 4 slaapkamers)
Tuin
Type Achtertuin
Hoofdtuin Ja
Oriëntering Noord west
Staat Goed onderhouden
Tuin 2 - Type Achtertuin
Tuin 2 - Staat Goed onderhouden
Tuin 3 - Type Voortuin
Tuin 3 - Staat Goed onderhouden
Energieverbruik
Energielabel B
Uitrusting
Aantal parkeerplaatsen 2
Badkamervoorzieningen Douche
Ligbad
Toilet
Wastafelmeubel
Heeft airco Ja
Tuin aanwezig Ja
Heeft schuur/berging Ja
Heeft een dakraam Ja
Heeft zonwering Ja
Heeft ventilatie Ja
Kadastrale gegevens
Kadastrale aanduiding Tilburg AF 195
Perceeloppervlakte 143 m²
Omvang Geheel perceel
Eigendomsituatie Eigen grond
Neem contact met mij op

Plattegronden

Brochure(s) en overige bijlagen