Via Paul Makelaardij
Verkocht onder voorbehoud

Verkocht onder voorbehoud: Bisschop Masiusstraat 39, 5014 PA Tilburg

€ 350.000,- k.k.

Beschrijving

BISSCHOP MASIUSSTRAAT 39 – TILBURG

Wonen in Sint Pieterspark

Welkom in de geliefde wijk Sint Pieterspark, een plek waar historie en levendigheid hand in hand gaan. Hier woon je rustig, maar toch op steenworp afstand van het bruisende hart van Tilburg. Binnen een paar minuten sta je in de Spoorzone, fiets je naar het sfeervolle stadscentrum of geniet je van een wandeling in het statige Wilhelminapark. Musea, horeca en supermarkten bevinden zich allemaal binnen handbereik. En met de Ringbaan-Noord om de hoek ben je zo onderweg richting Breda, Eindhoven of ’s-Hertogenbosch.
Kortom: een locatie die stadse dynamiek en buurtse gezelligheid perfect weet te combineren.

De woning – vol karakter en warmte
Een entree die welkom heet

De voordeur met zijn sierlijke vensters laat meteen zien wat deze woning belooft: licht, sfeer en karakter. Zodra je binnenkomt, word je omarmd door een warme ambiance. De hal leidt je soepel door naar de woonkamer, waar de eerste indruk meteen voelt als thuiskomen.

Wonen met allure

De woonkamer is ruim opgezet en ademt stijl. De hoge plafonds, sierlijsten en ornamenten geven de ruimte een klassieke uitstraling met een vleugje grandeur. Het daglicht valt gul naar binnen en benadrukt de zachte kleuren en strakke afwerking. Vanuit de eettafel kijk je uit richting de tuin en via de openslaande deuren verbind je binnen moeiteloos met buiten.

Koken met plezier

De keuken, gelegen achter de woonkamer, is praktisch en toch sfeervol. Met een kookplaat, een brede oven, vaatwasser én koelkast is dit een plek waar koken weer echt een belevenis wordt. Het aanrecht langs de lange wand biedt volop werkruimte, terwijl het keukenraam zorgt voor extra licht en verbinding met buiten.

Slim ingedeeld, heerlijk compleet

De bijkeuken verbindt functionaliteit met comfort: hier vind je de aansluiting voor de wasmachine en de toegang tot het toilet én de badkamer. Zowel de badkamer als het separate toilet zijn uitgevoerd in dezelfde moderne stijl, wat zorgt voor een strakke, luxe en uniforme uitstraling. De badkamer is volledig betegeld en beschikt over een ruime inloopdouche, een wastafel met wandmeubel en een spiegelkast die de ruimte licht en praktisch maakt.

Slapen onder karakteristiek dak

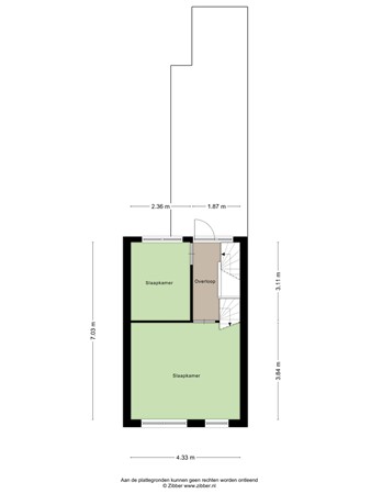
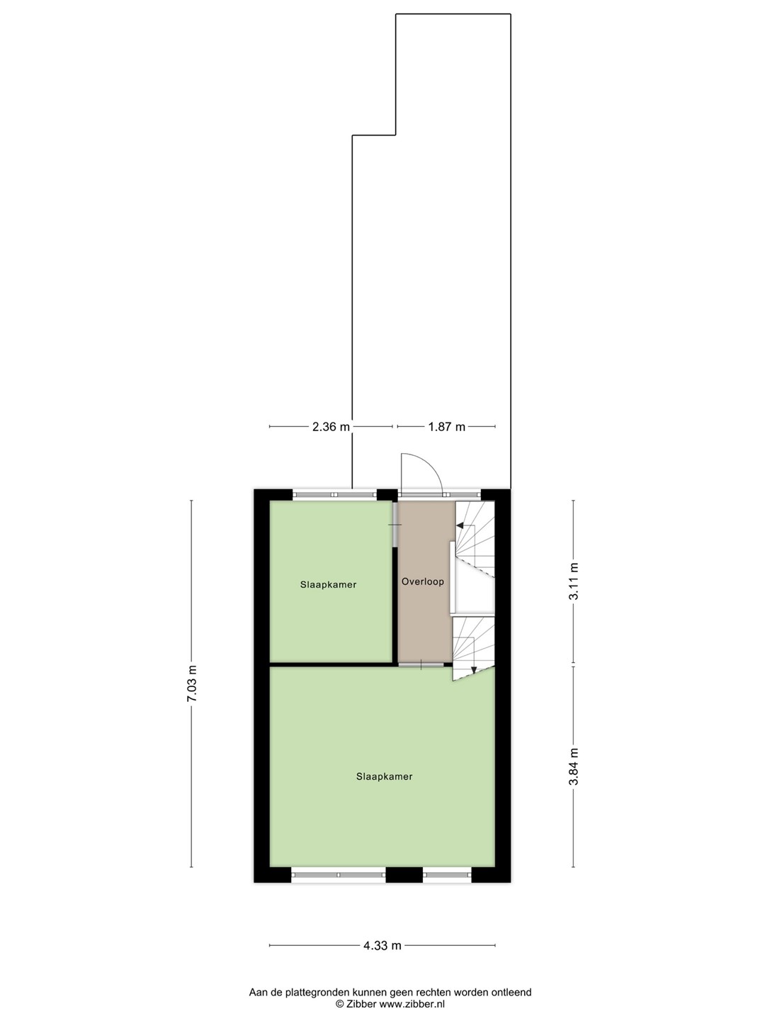
Op de eerste verdieping wachten twee slaapkamers die uitnodigen tot rust. De vaste trap naar de tweede verdieping brengt je naar de royale zolder met dakkapel: een volwaardige derde slaapkamer met verrassend veel licht. De voorzolder met Velux-raam en de slimme bergruimtes onder de knieschotten maken dit een uiterst functioneel én gezellig woonverdiep.

Buiten genieten in alle privacy

De achtertuin is onderhoudsvriendelijk en ideaal voor wie houdt van gemak en ontspanning. Door de ligging op het noordwesten profiteer je tot in de avond van de zon. Geen directe achterburen betekent bovendien optimale privacy. Achterin vind je een stenen berging én een praktische overkapping: de perfecte plek voor fietsen, tuinspullen of gewoon een knusse borrelplek.

Kenmerken van de woning:

- Bouwjaar 1936;
- Perceeloppervlak 93 m2;
- Woonoppervlak 96 m2;
- Inhoud 354 m3;
- NEN 2580 meetrapport*;
- In rustige woonwijk gelegen;
- Winkels, scholen en de diverse uitvalswegen op korte afstand gelegen;

Wil je deze bijzondere woning met zijn vele mogelijkheden bezichtigen?
Dat begrijpen wij heel goed!
Bel of mail ons dan voor een afspraak:

Tel: 013 - 30 33 195
Mail: info@viapaulmakelaardij.nl

Via wie?
Via Paul Makelaardij natuurlijk!
Via wie anders?

De NEN 2580 meetnorm is een eenduidige meetnorm, waarbij met bepaalde richtlijnen rekening gehouden wordt. Zo wordt o.a. een zolder zonder vaste trap of met een lichtoppervlakte (bv dakraam) kleiner dan 0,5 m² niet tot de woonoppervlakte gerekend. Hierdoor kan de woonoppervlakte soms kleiner lijken dan de daadwerkelijke vloeroppervlakte en kleiner lijken dan bij vergelijkbare woningen waar de makelaar de meetnorm niet toe heeft gepast. Ondanks het feit dat de meetnorm verplicht is, hanteren niet alle makelaars consequent de norm. Via Paul Makelaardij laat haar woningen inmeten door een erkend bedrijf. Het meetrapport van deze woning is dan ook, indien gewenst, ter inzage.

Ten aanzien van deze verkoopbrochure zijn de gegevens in deze brochure met de grootste zorg samengesteld. Voor de juistheid van de verstrekte informatie zijn wij in grote mate afhankelijk van derden. Aan vermelde tekst, maten en bijgevoegde tekeningen kunnen derhalve geen rechten worden ontleend. Via Paul makelaardij en de verkoper aanvaarden geen aansprakelijkheid ten aanzien van de gegevens in deze brochure.

Kenmerken

Overdracht
Vraagprijs € 350.000,- k.k.
Status Verkocht onder voorbehoud
Aanvaarding In overleg
Aangeboden sinds Maandag 29 september 2025
Laatste wijziging Donderdag 23 oktober 2025
Bouw
Type object Eengezinswoning, woonhuis, tussenwoning
Soort bouw Bestaande bouw
Bouwjaar 1936
Dakbedekking Dakpannen
Type dak Zadeldak
Oppervlaktes en inhoud
Perceeloppervlakte 93 m²
Woonoppervlakte 96 m²
Woonkameroppervlakte 21 m²
Inhoud 354 m³
Oppervlakte overige inpandige ruimten 4 m²
Oppervlakte gebouwgebonden buitenruimte 4 m²
Indeling
Aantal bouwlagen 3
Aantal kamers 5 (waarvan 3 slaapkamers)
Locatie
Ligging Aan rustige weg
In woonwijk
Tuin
Type Achtertuin
Hoofdtuin Ja
Oriëntering Noord west
Heeft een achterom Ja
Tuin 2 - Type Achtertuin
Energieverbruik
Energielabel C
CV ketel
CV ketel Nefit trendline Hrc 30/cw5
Warmtebron Gas
Bouwjaar 2017
Eigendom Eigendom
Uitrusting
Warm water CV-ketel
Verwarmingssysteem Centrale verwarming
Badkamervoorzieningen Inloopdouche
Wastafel
Wastafelmeubel
Tuin aanwezig Ja
Heeft rolluiken Ja
Heeft schuur/berging Ja
Heeft ventilatie Ja
Kadastrale gegevens
Kadastrale aanduiding Tilburg N 15787
Perceeloppervlakte 93 m²
Omvang Geheel perceel
Eigendomsituatie Eigen grond
Neem contact met mij op

Plattegronden

Brochure(s) en overige bijlagen