Via Paul Makelaardij
Nieuw in verkoop

Te koop: Bosscheweg 206, 5015 AG Tilburg

€ 435.000,- k.k.

Beschrijving

BOSSCHEWEG 206 TILBURG

Aan de geliefde Bosscheweg in Tilburg komt alles samen wat wonen zo aangenaam maakt. Deze karaktervolle straat ademt levendigheid en stedelijke energie, terwijl je tegelijkertijd profiteert van een verrassend groene en ontspannen omgeving. Hier woon je op een plek waar de stad nooit ver weg is, maar waar rust en natuur altijd binnen handbereik blijven.

Binnen enkele minuten sta je in het bruisende centrum van Tilburg, waar gezellige terrassen, boetiekjes en culinaire hotspots elkaar moeiteloos afwisselen. Ook het station bereik je eenvoudig binnen 7 tot 9 minuten fietsen, waardoor de rest van het land letterlijk aan je voeten ligt. En alsof dat nog niet genoeg is, ligt het prachtige natuurgebied Moerenburg om de hoek: een plek waar je na een drukke dag heerlijk kunt wandelen, hardlopen of simpelweg tot rust komt tussen het groen.

De Bosscheweg biedt daarmee een zeldzame balans tussen dynamiek en sereniteit. Een plek waar je het stadsleven voelt, maar nooit de ruimte en vrijheid verliest.

Een warm welkom met een moderne twist – Sfeervol wonen met karakter en comfort

Zodra je binnenstapt, voel je het meteen: dit is een huis waar met liefde en oog voor detail is gewoond én gerenoveerd. De entree met vernieuwde meterkast leidt je via een stijlvolle taatsdeur naar de woonkamer, waar licht, ruimte en afwerking samenkomen in perfecte harmonie.

Leven in licht en luxe
De woonkamer is een plek om te genieten. De visgraat PVC-vloer straalt warmte en elegantie uit, terwijl de inbouwspots en de open trap zorgen voor een moderne, luchtige uitstraling. Hier vloeien comfort en stijl naadloos in elkaar over – een ruimte die uitnodigt tot lange avonden met vrienden of juist rustige momenten voor jezelf.

Een keuken die inspireert
De keuken is zonder twijfel het hart van de woning. Dankzij het grote raam en de lichtkoepels baadt deze ruimte in natuurlijk licht. Het gloednieuwe keukenblok in L-opstelling is uitgerust met hoogwaardige apparatuur, waaronder een BORA kookplaat met geïntegreerde afzuiging, een Quooker en een strak composiet werkblad. Hier wordt koken een beleving. De airconditioning zorgt bovendien voor een aangenaam klimaat, zelfs op warme dagen.

Praktisch en doordacht ingedeeld
Achter de keuken vind je een handige bijkeuken met bergkast en separaat toilet, evenals een extra ruimte met aansluitingen voor wasapparatuur. Alles is hier ontworpen met het oog op comfort en gebruiksgemak.

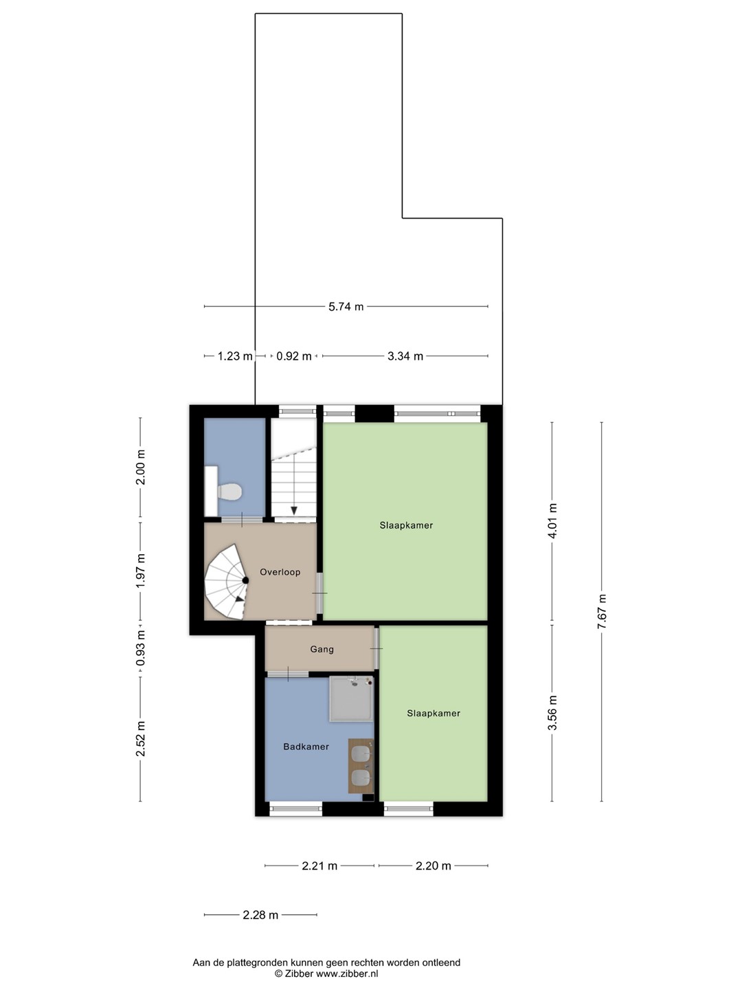
Rust en ruimte op de eerste verdieping
De eerste verdieping voelt als een oase van rust. Dankzij de uitbouw boven de poort is de indeling extra ruim en prettig. Twee strak afgewerkte slaapkamers, voorzien van airconditioning bieden volop mogelijkheden – van comfortabele master bedroom tot stijlvolle kleedkamer. De moderne badkamer (2022) straalt luxe uit met een douchecabine, stijlvol wastafelmeubel met 2 porseleinen waskommen, spiegel en designradiator.

Een verrassende tweede verdieping
Via een vaste trap bereik je de ruime zolderverdieping. Hier vind je een royale overloop met dakkapel en volop bergruimte, evenals een derde slaapkamer die zich perfect leent als logeerkamer, werkruimte of tienerkamer.

Buitenleven met een zonnig karakter
De achtertuin is een ware stadsoase. Gelegen op het zuidoosten en bijna pal op het zuiden, geniet je hier de hele dag van de zon. Het terras, het groen en zelfs een palmboom geven deze tuin een bijna vakantiesfeer. Achterin bevindt zich een multifunctionele stenen berging – ideaal als hobbyruimte of extra opslag – en een vrije achterom.

Duurzaam en toekomstgericht
Met 12 zonnepanelen, een nieuwe CV-ketel (2015) en een recente renovatie is deze woning helemaal klaar voor de toekomst. Hier woon je niet alleen comfortabel, maar ook bewust.

Kenmerken van de woning:

• Bouwjaar: 1926;
• Woonoppervlak: 114 m²;
• Perceeloppervlak: 182 m²;
• Inhoud: 404 m³;
• Vernieuwde badkamer;
• Gloednieuwe woonkeuken;
• CV-Ketel d.d. 26-09-2015;
• 12 Zonnepanelen;
• Energielabel D geldig tot en met 05-02-2035;
• NEN 2580 meetrapport*.

Wil je deze bijzondere woning met zijn vele mogelijkheden bezichtigen?
Dat begrijpen wij heel goed!
Bel of mail ons dan voor een afspraak:

Tel: 013 - 30 33 195
Mail: info@viapaulmakelaardij.nl

Via wie?
Via Paul Makelaardij natuurlijk!
Via wie anders?

De NEN 2580 meetnorm is een eenduidige meetnorm, waarbij met bepaalde richtlijnen rekening gehouden wordt. Zo wordt o.a. een zolder zonder vaste trap of met een lichtoppervlakte (bv dakraam) kleiner dan 0,5 m² niet tot de woonoppervlakte gerekend. Hierdoor kan de woonoppervlakte soms kleiner lijken dan de daadwerkelijke vloeroppervlakte en kleiner lijken dan bij vergelijkbare woningen waar de makelaar de meetnorm niet toe heeft gepast. Ondanks het feit dat de meetnorm verplicht is, hanteren niet alle makelaars consequent de norm. Via Paul Makelaardij laat haar woningen inmeten door een erkend bedrijf. Het meetrapport van deze woning is dan ook, indien gewenst, ter inzage.

Ten aanzien van deze verkoopbrochure zijn de gegevens in deze brochure met de grootste zorg samengesteld. Voor de juistheid van de verstrekte informatie zijn wij in grote mate afhankelijk van derden. Aan vermelde tekst, maten en bijgevoegde tekeningen kunnen derhalve geen rechten worden ontleend. Via Paul makelaardij en de verkoper aanvaarden geen aansprakelijkheid ten aanzien van de gegevens in deze brochure.

Kenmerken

Overdracht
Vraagprijs € 435.000,- k.k.
Status Nieuw in verkoop
Aanvaarding In overleg
Aangeboden sinds Dinsdag 7 april 2026
Bouw
Type object Eengezinswoning, woonhuis, tussenwoning
Soort bouw Bestaande bouw
Bouwjaar 1926
Dakbedekking Dakpannen
Type dak Zadeldak
Isolatievormen Dubbel glas
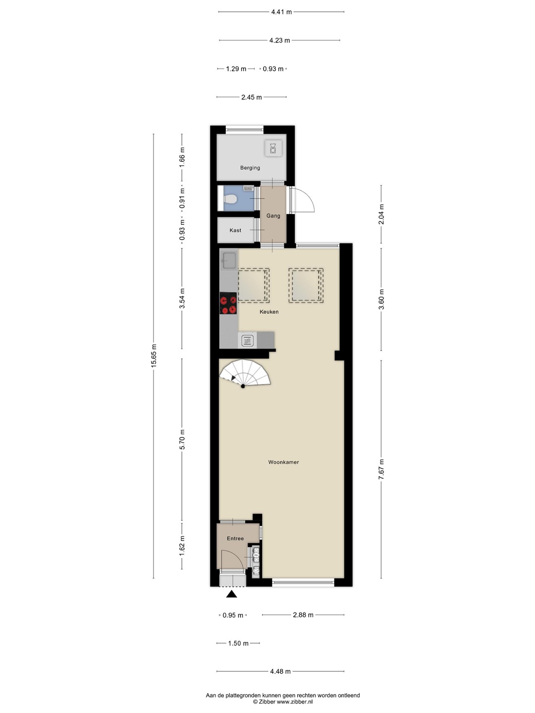
Oppervlaktes en inhoud
Perceeloppervlakte 182 m²
Woonoppervlakte 114 m²
Woonkameroppervlakte 34 m²
Inhoud 404 m³
Oppervlakte externe bergruimte 14 m²
Indeling
Aantal bouwlagen 3
Aantal kamers 5 (waarvan 3 slaapkamers)
Locatie
Ligging In woonwijk
Tuin
Type Achtertuin
Hoofdtuin Ja
Oriëntering Zuidoost
Heeft een achterom Ja
Tuin 2 - Type Achtertuin
Tuin 3 - Type Voortuin
Energieverbruik
Energielabel D
CV ketel
CV ketel Bosch ZWBR 35-3A (35 HRC)
Warmtebron Gas
Bouwjaar 2015
Combiketel Ja
Eigendom Eigendom
Uitrusting
Warm water CV-ketel
Verwarmingssysteem Centrale verwarming
Badkamervoorzieningen Douche
Dubbele wastafel
Wastafelmeubel
Heeft airco Ja
Heeft kabel-tv Ja
Glasvezelaansluiting aanwezig Ja
Tuin aanwezig Ja
Heeft rolluiken Ja
Heeft schuur/berging Ja
Heeft zonnecollectoren Ja
Heeft ventilatie Ja
Kadastrale gegevens
Kadastrale aanduiding Tilburg V 663
Perceeloppervlakte 182 m²
Omvang Geheel perceel
Eigendomsituatie Eigen grond
Neem contact met mij op

Plattegronden

Brochure(s) en overige bijlagen