Via Paul Makelaardij

Onder bod: Bosscheweg 33, 5015 AA Tilburg

€ 795.000,- k.k.

Beschrijving

BOSSCHEWEG 33 TILBURG

Wonen aan de Bosscheweg betekent kiezen voor het beste van twee werelden: rust en ruimte aan de groene rand van Tilburg, met de bruisende stad binnen handbereik. Hier, aan de ventweg, omgeven door karaktervolle woningen en volwassen groen, ervaart u een gevoel van landelijk wonen terwijl het stadscentrum slechts een korte fietsrit verwijderd is. De buurt staat bekend om haar gemoedelijke sfeer en prettige diversiteit aan bewoners — met name gezinnen en levensgenieters die de combinatie van ruimte, privacy en goede bereikbaarheid waarderen. Op steenworp afstand ligt het sfeervolle centrum van Berkel-Enschot; binnen tien minuten staat u midden in het hart van Tilburg, en binnen no-time rijdt u naar Oisterwijk of ’s-Hertogenbosch voor een dagje genieten. Supermarkten, scholen, het treinstation en uitvalswegen? Alles ligt verrassend dichtbij. Hier woont u niet alleen; hier leeft u. In alle rust, zonder concessies te doen aan stedelijk comfort.

Karakter met allure
Gebouwd in 1936, met de uitstraling van toen en het comfort van nu. Zodra u het donker grijze grind oprijdt, valt de charmante uitstraling direct op: een stijlvolle 2-onder-1-kapwoning met karakter, ruimte en natuurlijke klasse. Het brede perceel, de royale voortuin en de ruime parkeermogelijkheden zetten de toon — dit is thuiskomen met statigheid.

Warmte, licht & leven
Bij binnenkomst wordt u verwelkomd door een bijzonder royale leefruimte waar warmte en luxe harmonieus samenkomen. De donkere hardstenen vloer loopt elegant door van eetkamer naar woonkamer en vormt een stijlvol contrast met het natuurlijke licht dat via de grote schuifpuien binnenvalt. De eethoek, aan de voorzijde van de woning, is sfeervol en stijlvol tegelijk. Een knipoog naar luxe: een stijlvol waskom-meubel maakt de ruimte uniek. De woonkamer straalt intimiteit uit; de open haard vormt het warme hart van de zitruimte, ideaal voor lange avonden bij het vuur.

Altijd het perfecte klimaat
Naast de warmte van de haard biedt de woonkamer optimaal comfort dankzij de aanwezige airconditioning. Tijdens warme zomerdagen blijft het binnen heerlijk koel, terwijl in de winter juist extra behaaglijke warmte kan worden toegevoegd. Zo geniet u hier ieder seizoen van een aangenaam binnenklimaat — luxe die u voelt, elke dag opnieuw.

Binnen & buiten in één beweging
Twee grote schuifpuien verbinden de woonkamer moeiteloos met de royale overkapping van ca. 24 m² — een volwaardige buitenkamer met zicht op de diepe, privacy-rijke tuin. In elk seizoen een heerlijk verlengstuk van uw woonkamer: dineren in de buitenlucht, ontspannen met uitzicht op groen en vogels, of gewoon genieten van de stilte.

Koken in stijl
De moderne, greeploze keuken is een droom voor de kookliefhebber. Een centraal kookeiland met vijf-pits gaskookplaat, een oven, een rvs-afzuigkap en een strak vormgegeven werkblad. Hier wordt met plezier gekookt, geleefd en gelachen. Via de keuken bereikt u een praktische bijkeuken — slim, ruim en functioneel. Aan de zijkant van de keuken vindt u nog een tweede overkapping.

Luxe boven, rust als luxe
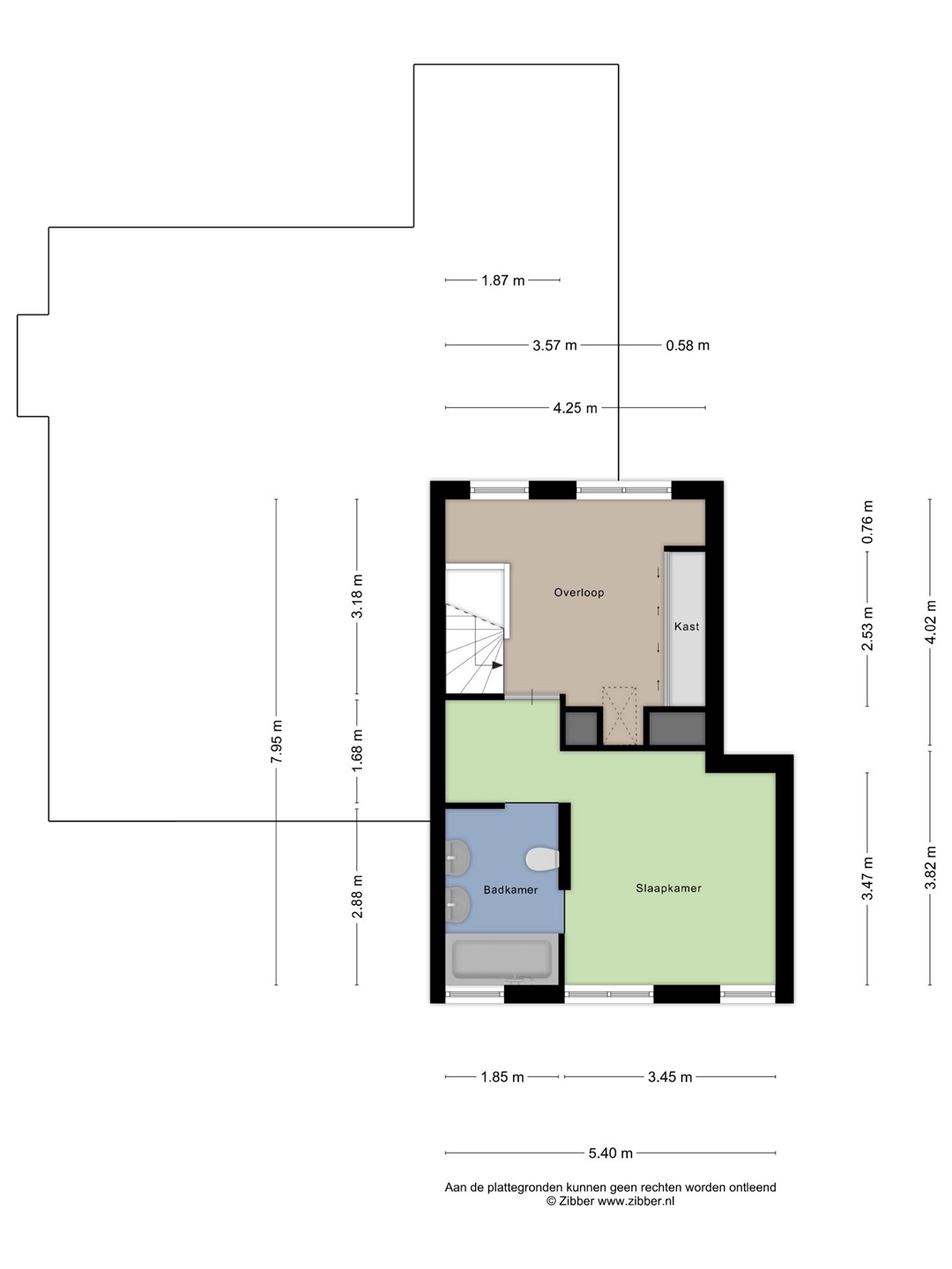
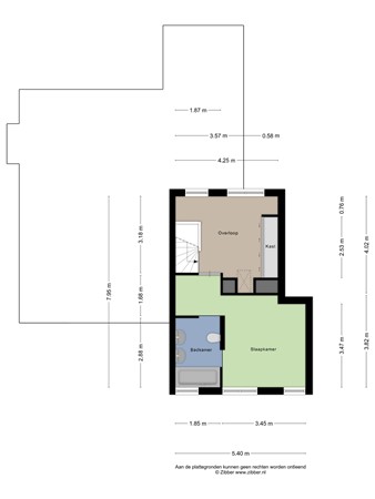
De houten trap leidt naar een verrassend royale overloop — een kamer op zichzelf, met een stijlvolle kastenwand en zichtbare spanten die karakter en warmte brengen. De master bedroom is een heilzame oase. Luxe, ruim en voorzien van airconditioning voor comfort tijdens warme zomernachten. En suite ligt de elegante badkamer met marmeren vloertegels, een royaal ligbad, dubbele wastafel en zwevend toilet. Rust, comfort en klasse komen hier samen. Deze etage ademt boutique-hotel allure.

Multifunctionele bedrijfsruimte
Aan huis werken? Een praktijk aan huis? Atelier, kantoor, salon of studio?
De huidige hoogwaardige beauty-salon (ca. 25 m²) met marmeren vloer, grote raampartijen en zicht op de Bosscheweg maakt dit huis uniek. Professioneel én gastvrij, met eigen entree en parkeerruimte. De mogelijkheden zijn eindeloos.
Het bestemmingsplan: https://www.ruimtelijkeplannen.nl/documents/NL.IMRO.0855.BSP2008015-e001/r_NL.IMRO.0855.BSP2008015-e001_2.17.html

Duurzaam & energiebewust wonen
Dit huis combineert karakter met modern wooncomfort. Met maar liefst 36 zonnepanelen profiteert u dagelijks van lagere energielasten én draagt u bij aan een duurzame toekomst. Slim, stijlvol en toekomstgericht wonen — precies wat bij een woning van dit niveau past.

Een achtertuin die voelt als een privépark
De achtertuin is een ware troef: meer dan 40 meter diep, gelegen op het noordwesten en ontworpen voor ontspanning, privacy en buitenleven in optima forma. Dankzij de royale afmetingen vindt u hier op elk moment van de dag een fijne plek in de zon of juist in de schaduw. Twee praktische bergingen bieden volop ruimte voor tuingereedschap, fietsen en buitenmeubels. De geregistreerde waterput voorziet in het bewateren van de tuin. En bovenal: de rust en privacy die deze tuin biedt zijn uitzonderlijk — hier geniet u ongestoord van lange zomeravonden, spelende kinderen, tuinfeesten of simpelweg een momentje voor uzelf met uitzicht op groen en stilte.

Kenmerken van de woning:
- Bouwjaar: 1936;
- Woonoppervlak: 146 m²;
- Inhoud: 564 m³;
- Perceeloppervlakte: 1266 m²;
- Voorzien van 36 zonnepanelen;
- Energielabel B, geldig tot en met 31-10-2034;
- NEN 2580 meetrapport*.

Er is een mogelijkheid om aan te bouwen en er is eenvoudig een tweede verdieping van 60 m2 op te bouwen op de tweede verdieping. Daar is al een tekening van.

Wil je deze bijzondere woning met zijn vele mogelijkheden bezichtigen?
Bel of mail ons dan voor een afspraak:

Tel: 013 - 30 33 195
Mail: info@viapaulmakelaardij.nl

Via wie? Via Paul Makelaardij natuurlijk! Via wie anders?

De NEN 2580 meetnorm is een eenduidige meetnorm, waarbij met bepaalde richtlijnen rekening gehouden wordt. Zo wordt o.a. een zolder zonder vaste trap of met een lichtoppervlakte (bv dakraam) kleiner dan 0,5 m² niet tot de woonoppervlakte gerekend. Hierdoor kan de woonoppervlakte soms kleiner lijken dan de daadwerkelijke vloeroppervlakte en kleiner lijken dan bij vergelijkbare woningen waar de makelaar de meetnorm niet toe heeft gepast. Ondanks het feit dat de meetnorm verplicht is, hanteren niet alle makelaars consequent de norm. Via Paul Makelaardij laat haar woningen inmeten door een erkend bedrijf. Het meetrapport van deze woning is dan ook, indien gewenst, ter inzage.

Ten aanzien van deze verkoopbrochure zijn de gegevens in deze brochure met de grootste zorg samengesteld. Voor de juistheid van de verstrekte informatie zijn wij in grote mate afhankelijk van derden. Aan vermelde tekst, maten en bijgevoegde tekeningen kunnen derhalve geen rechten worden ontleend. Via Paul makelaardij en de verkoper aanvaarden geen aansprakelijkheid ten aanzien van de gegevens in deze brochure.

Kenmerken

Overdracht
Vraagprijs € 795.000,- k.k.
Status Onder bod
Aanvaarding In overleg
Aangeboden sinds Donderdag 13 november 2025
Laatste wijziging Maandag 29 december 2025
Bouw
Type object Eengezinswoning, woonhuis, twee onder een kap woning
Soort bouw Bestaande bouw
Bouwjaar 1936
Dakbedekking Dakpannen
Type dak Schilddak
Oppervlaktes en inhoud
Perceeloppervlakte 1.266 m²
Woonoppervlakte 146 m²
Woonkameroppervlakte 27 m²
Inhoud 564 m³
Oppervlakte overige inpandige ruimten 6 m²
Oppervlakte externe bergruimte 20 m²
Oppervlakte gebouwgebonden buitenruimte 38 m²
Indeling
Aantal bouwlagen 3
Aantal kamers 6 (waarvan 1 slaapkamer)
Tuin
Type Achtertuin
Hoofdtuin Ja
Oriëntering Noord west
Heeft een achterom Ja
Tuin 2 - Type Achtertuin
Tuin 3 - Type Voortuin
Tuin 4 - Type Zijtuin
Energieverbruik
Energielabel B
CV ketel
Warmtebron Gas
Uitrusting
Warm water CV-ketel
Verwarmingssysteem Centrale verwarming
Open haard
Badkamervoorzieningen Dubbele wastafel
Ligbad
Toilet
Heeft airco Ja
Tuin aanwezig Ja
Heeft schuur/berging Ja
Heeft een schuifpui Ja
Heeft zonnecollectoren Ja
Heeft ventilatie Ja
Kadastrale gegevens
Kadastrale aanduiding Tilburg V 1010
Perceeloppervlakte 208 m²
Omvang Geheel perceel
Eigendomsituatie Eigen grond
Kadastrale aanduiding Tilburg V 1031
Perceeloppervlakte 430 m²
Omvang Geheel perceel
Eigendomsituatie Eigen grond
Kadastrale aanduiding Tilburg V 1191
Perceeloppervlakte 492 m²
Omvang Geheel perceel
Eigendomsituatie Eigen grond
Kadastrale aanduiding Tilburg V 1196
Perceeloppervlakte 136 m²
Omvang Geheel perceel
Eigendomsituatie Eigen grond
Neem contact met mij op

Plattegronden

Brochure(s) en overige bijlagen