Via Paul Makelaardij

Onder bod: Dahliahof 19, 5014 AV Tilburg

€ 479.000,- k.k.

Beschrijving

DAHLIAHOF 19 TILBURG

De Dahliahof is een rustige, intieme straat waar het stedelijke leven van Tilburg moeiteloos samengaat met een prettige woonomgeving. Hier woon je beschut, overzichtelijk en vriendelijk, terwijl de dynamiek van de stad zich op slechts enkele minuten afstand bevindt. De ligging aan de rand van de geliefde Spoorzone maakt deze plek bijzonder aantrekkelijk: een gebied waar creativiteit, cultuur en stedelijke vernieuwing samenkomen.

Op loopafstand vind je het centrum van Tilburg, het NS-station en een breed aanbod aan winkels, horeca en culturele voorzieningen. Of je nu ’s ochtends snel een koffie haalt, na het werk nog even de stad in loopt of juist thuis de rust opzoekt: alles is binnen handbereik. Tegelijkertijd voelt de Dahliahof als een dorpje in de stad, met weinig verkeer, veel rust en een prettige sfeer. Een ideale woonplek voor wie centraal wil wonen zonder concessies te doen aan comfort en leefbaarheid.

Eigentijds wonen met karakter – Industrieel verleden, modern comfort

Deze instapklare tussenwoning is onderdeel van het nieuwbouwproject De Tricotage, een naam die verwijst naar de voormalige breifabriek die hier ooit stond. Die geschiedenis zie je subtiel terug in de robuuste architectuur met industriële knipoog, zoals de karakteristieke sheddakvorm. Het resultaat is een woning met een eigen identiteit: stoer en onderscheidend, maar tegelijkertijd warm, modern en volledig van deze tijd.

Binnenkomen met stijl

Bij binnenkomst in de hal valt direct de strakke afwerking op. De combinatie van een stijlvolle stalen deur en een laminaat-vloer die naadloos over de gehele begane grond is doorgelegd, zorgt voor een rustige en verzorgde uitstraling. Hier vind je de meterkast, een luxe toiletruimte en ruimte voor de garderobe. De toiletruimte is betegeld en voorzien van een hangend toilet en fonteintje – een detail dat de hoge afwerkingsgraad van deze woning onderstreept.

Leefruimte waar alles samenkomt

De uitgebouwde woonkamer aan de achterzijde is een heerlijke plek om te ontspannen en samen te zijn. Er is volop ruimte voor een comfortabele zithoek én een royale eettafel. De openslaande tuindeuren laten het daglicht rijkelijk binnenstromen en zorgen voor een natuurlijke verbinding met buiten. De trap naar de eerste verdieping is subtiel geïntegreerd in het interieur en onder de trap bevindt zich een praktische bergkast – slim en stijlvol opgelost.

Koken als beleving

Centraal in de woning ligt de eethoek, die naadloos overloopt in de open keuken aan de voorzijde. De moderne zwarte keuken in dubbele opstelling is een echte eyecatcher en van alle gemakken voorzien. Denk aan een vaatwasser, inductiekookplaat met geïntegreerde kookveldafzuiging, een combi-oven op ooghoogte en een koelkast in de kastenwand. Een keuken die uitnodigt tot koken, tafelen en samenzijn.

Rust en comfort op de verdiepingen

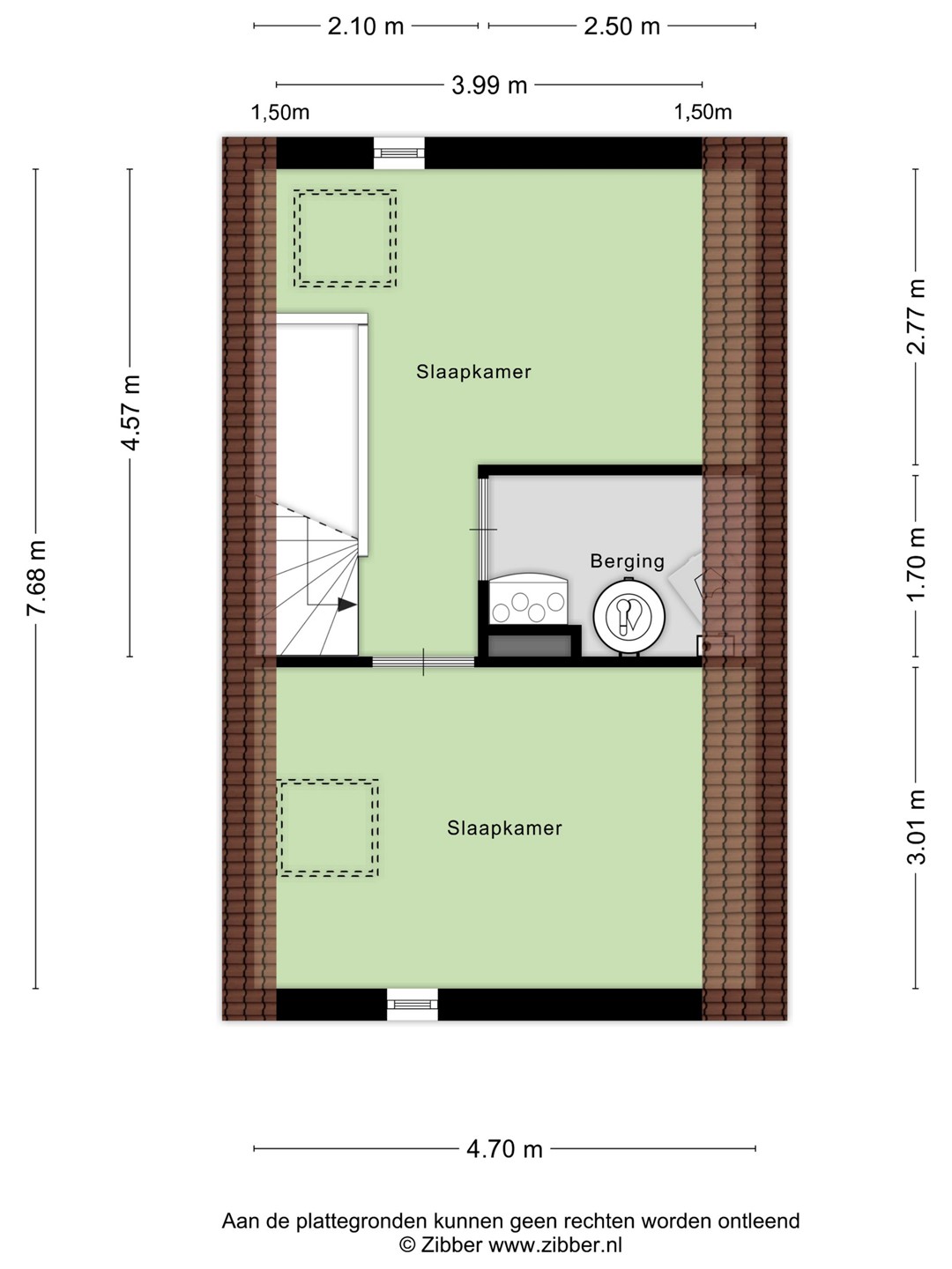
Op de eerste verdieping biedt de overloop toegang tot twee slaapkamers en de badkamer. De ruime hoofdslaapkamer aan de voorzijde is afgewerkt met een houtlook laminaatvloer met vloerverwarming en strak afgewerkte wanden – een rustige en comfortabele plek om de dag te beginnen en te eindigen. De tweede slaapkamer aan de achterzijde is iets compacter en ideaal als kinder-, werk- of logeerkamer.

De centraal gelegen badkamer is stijlvol en compleet uitgevoerd met een ruime inloopdouche, wastafelmeubel, hangend toilet en vloerverwarming.

De tweede verdieping biedt één volwaardige slaapkamer, uitgevoerd in dezelfde moderne stijl als de rest van de woning. Daarnaast is er een ruime open zolder, die uitstekend kan dienen als vierde slaapkamer of eenvoudig kan worden omgebouwd tot een extra slaapvertrek. Centraal op deze verdieping bevindt zich de technische ruimte met de warmtepomp, WTW-installatie en aansluitingen voor wasmachine en droger.

Zonnige tuin met privacy

De achtertuin is gelegen op het oosten, wat betekent dat je hier al vroeg op de dag van de zon kunt genieten. De tuin is strak en onderhoudsvriendelijk aangelegd met grint, tegels en kunstgras, waardoor het geheel een moderne uitstraling heeft. Achterin de tuin bevindt zich een houten berging met elektra en er is een praktische achterom aanwezig.

Duurzaam en toekomstgericht
Deze woning is volledig ingericht op comfortabel en energiezuinig wonen. Met zes zonnepanelen, een warmtepomp, uitstekende isolatie en moderne installaties is de woning klaar voor de toekomst. De vloerverwarming zorgt niet alleen voor aangename warmte in de winter, maar kan in de zomer ook actief verkoelen. Hierdoor blijft het binnenklimaat op alle verdiepingen prettig. Zo gaan duurzaamheid, comfort en woonplezier hier naadloos samen.

Kenmerken van de woning:

- Bouwjaar: 2021
- Woonoppervlak: 109 m²
- Perceeloppervlakte: 106 m²
- Inhoud: ca. 385 m³
- Energielabel A+++, geldig tot en met 12-10-2031
- Warmtepomp met vloerkoeling
- NEN 2580 meetrapport aanwezig*
- Instapklare tussenwoning met 3 slaapkamers
- Rustige ligging nabij het centrum van Tilburg

Wil je deze bijzondere woning met zijn vele mogelijkheden bezichtigen?
Dat begrijpen wij heel goed!
Bel of mail ons dan voor een afspraak:

Tel: 013 - 30 33 195
Mail: info@viapaulmakelaardij.nl

Via wie?
Via Paul Makelaardij natuurlijk!
Via wie anders?

* De NEN 2580 meetnorm is een eenduidige meetnorm, waarbij met bepaalde richtlijnen rekening gehouden wordt. Zo wordt o.a. een zolder zonder vaste trap of met een lichtoppervlakte (bv dakraam) kleiner dan 0,5 m² niet tot de woonoppervlakte gerekend. Hierdoor kan de woonoppervlakte soms kleiner lijken dan de daadwerkelijke vloeroppervlakte en kleiner lijken dan bij vergelijkbare woningen waar de makelaar de meetnorm niet toe heeft gepast. Ondanks het feit dat de meetnorm verplicht is, hanteren niet alle makelaars consequent de norm. Via Paul Makelaardij laat haar woningen inmeten door een erkend bedrijf. Het meetrapport van deze woning is dan ook, indien gewenst, ter inzage.

Ten aanzien van deze verkoopbrochure zijn de gegevens in deze brochure met de grootste zorg samengesteld. Voor de juistheid van de verstrekte informatie zijn wij in grote mate afhankelijk van derden. Aan vermelde tekst, maten en bijgevoegde tekeningen kunnen derhalve geen rechten worden ontleend. Via Paul makelaardij en de verkoper aanvaarden geen aansprakelijkheid ten aanzien van de gegevens in deze brochure.

Kenmerken

Overdracht
Vraagprijs € 479.000,- k.k.
Status Onder bod
Aanvaarding In overleg
Aangeboden sinds Woensdag 25 februari 2026
Laatste wijziging Maandag 9 maart 2026
Bouw
Type object Eengezinswoning, woonhuis, tussenwoning
Soort bouw Bestaande bouw
Bouwjaar 2021
Isolatievormen Volledig geïsoleerd
Oppervlaktes en inhoud
Perceeloppervlakte 106 m²
Woonoppervlakte 109 m²
Woonkameroppervlakte 27 m²
Inhoud 385 m³
Oppervlakte externe bergruimte 6 m²
Oppervlakte gebouwgebonden buitenruimte 1 m²
Indeling
Aantal bouwlagen 3
Aantal kamers 6 (waarvan 3 slaapkamers)
Locatie
Ligging Aan park
Aan rustige weg
In centrum
In woonwijk
Vrij uitzicht
Tuin
Type Achtertuin
Hoofdtuin Ja
Oriëntering Oosten
Heeft een achterom Ja
Tuin 2 - Type Achtertuin
Energieverbruik
Energielabel A+++
Uitrusting
Verwarmingssysteem Vloerverwarming
Warmtepomp
Warmterecuperatiesysteem
Badkamervoorzieningen Inloopdouche
Toilet
Wastafel
Wastafelmeubel
Heeft kabel-tv Ja
Glasvezelaansluiting aanwezig Ja
Tuin aanwezig Ja
Heeft schuur/berging Ja
Heeft een dakraam Ja
Heeft zonnecollectoren Ja
Heeft ventilatie Ja
Kadastrale gegevens
Kadastrale aanduiding Tilburg N 20926
Perceeloppervlakte 106 m²
Omvang Geheel perceel
Eigendomsituatie Eigen grond
Neem contact met mij op

Plattegronden

Brochure(s) en overige bijlagen