Via Paul Makelaardij

Verkocht: Galjoenstraat 28-11, 5017 CN Tilburg

Beschrijving

GALJOENSTRAAT 28-11 TILBURG

In het bruisende hart van de Piushaven ligt dit moderne appartement met volledig vernieuwde keuken (2024), op de 3e verdieping van een markant wooncomplex dat in 2014 opgeleverd werd. Dit hoekappartement deelt de bovenste verdieping van het complex met slecht 1 ander appartement. Het appartement beschikt over 2 slaapkamers. De woonkamer beschikt over een balkon op het westen. Het complex beschikt over een parkeerkelder met 1 eigen parkeerplaats en berging voor dit appartement. Door de ligging zit je met je neus bovenop alles wat de Piushaven te bieden heeft en daarnaast kun je lopend via de wandelpromenade van de Piushaven naar het stadscentrum en de winkels van AaBe Fabriek. Wil je even ontsnappen aan de levendigheid? Dan loop je zo naar het prachtige landschapspark Moerenburg, dat aan de andere kant van de Piushaven ligt. Via de nabijgelegen Ringbaan zijn ook de snelwegen snel te bereiken.

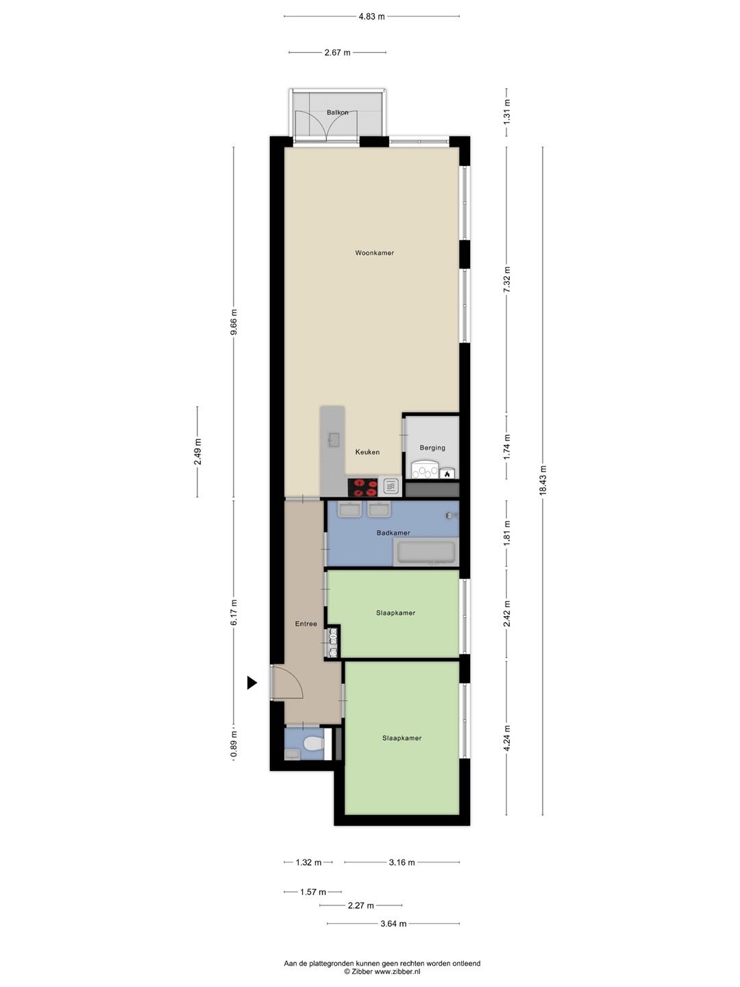
Indeling:

Begane grond:
Op de begane grond vind je de zeer verzorgde gemeenschappelijke entree met bellentableau, brievenbussen en videofooninstallatie. De centrale hal biedt toegang tot de lift. In de parkeerkelder is een parkeerplaats aanwezig en tevens is er een eigen berging voor fietsen en extra opslag.

Entree:
Je komt het appartement binnen in de hal die toegang geeft tot de twee slaapkamer, het toilet, de badkamer de
woonkamer/keuken. Het toilet is betegeld met lichte wandtegels, donkere vloertegels en beschikt over een zwevend toilet en fonteintje.

Woonkamer:
Bij binnenkomst in de grote, lichte woonkamer met indrukwekkend uitzicht, springen meteen de grote ramen en het balkon in het oog. Doordat het een hoekappartement is, bestaat de woonkamer uit twee grote raampartijen wat zorgt voor een wow-factor! De ramen op de westkant van de woonkamer beschikken tevens over buitenzonwering
(screens) bestaande uit een uitvalscherm en een Roma ZIP- screen beiden op afstand te bedienen met een handzender. Nieuw geplaatst in 2024. Verder is de woonkamer ruim van opzet met voldoende ruimte voor een royale zithoek en een
eettafel. De ruimte is afgewerkt met een warme "houtlook" laminaatvloer, die mooi doorloopt naar de slaapkamers en de entree.

Balkon:
Het balkon ligt op het westen en is vanuit de woonkamer bereikbaar. Vanaf het balkon kijk je mooi uit over de Kempenaarplaats naar de Piushaven.

Keuken:
De open keuken (2024) bevindt zich bij binnenkomst aan de rechterzijde van de living en heeft een moderne warme uitstraling. De keuken is van alle gemakken voorzien en beschikt over de nieuwste Bora inductie kookplaat met kookveldafzuiging, een vaatwasser, een combi-oven op ooghoogte en een koelkast. Alle apparatuur is van AEG.
Hier tover je binnen de kortste keren de lekkerste gerechten tevoorschijn.

Bijkeuken:
Via de keuken bereik je de berging/bijkeuken. Ideaal voor het opbergen van extra (keuken) voorraad. Je vindt er tevens de aansluitingen voor de wasmachine en de droger.

Slaapkamers:
De royale slaapkamers zijn netjes afgewerkt en hebben een fijne daglichttoetreding. In de grootste slaapkamer plaats je met gemak een grote kastenwand. Ideaal voor het opbergen van je garderobe. De tweede slaapkamer zou een mooie logeer- of werkkamer kunnen zijn.

Badkamer:
De moderne badkamer is volledig betegeld met witte wandtegels en een donkere vloertegel. De badkamer is voorzien van een twee wastafels, een designradiator, een douche en een ligbad.

- Bouwjaar 2014;
- Woonoppervlakte 86 m²;
- NEN 2580 meetrapport beschikbaar*;
- Servicekosten per maand € 226,=;
- Twee slaapkamers;
- Energielabel A;
- Hoekappartement op de bovenste verdieping;
- Ramen op de westkant van de woonkamer beschikken over buitenzonwering;
- Balkon op het westen;
- Eigen parkeerplaats in de afgesloten ondergrondse garage;
- Voldoende parkeergelegenheid voor bezoekers op eigen terrein.

Wil je dit mooie appartement in het centrum van Tilburg bezichtigen?

Dat begrijpen wij heel goed!
Bel of mail ons dan voor een afspraak:

Tel: 013 - 30 33 195
Mail: info@viapaulmakelaardij.nl

Via wie?
Via Paul Makelaardij natuurlijk!
Via wie anders?

* De NEN 2580 meetnorm is een eenduidige meetnorm, waarbij met bepaalde richtlijnen rekening gehouden wordt. Zo wordt o.a. een zolder zonder vaste trap of met een lichtoppervlakte (bv dakraam) kleiner dan 0,5 m² niet tot de woonoppervlakte gerekend. Hierdoor kan de woonoppervlakte soms kleiner lijken dan de daadwerkelijke vloeroppervlakte en kleiner lijken dan bij vergelijkbare woningen waar de makelaar de meetnorm niet toe heeft gepast. Ondanks het feit dat de meetnorm verplicht is, hanteren niet alle makelaars consequent de norm. Via Paul Makelaardij laat haar woningen inmeten door een erkend bedrijf. Het meetrapport van deze woning is dan ook, indien gewenst, ter inzage.

Ten aanzien van deze verkoopbrochure zijn de gegevens in deze brochure met de grootste zorg samengesteld. Voor de juistheid van de verstrekte informatie zijn wij in grote mate afhankelijk van derden. Aan vermelde tekst, maten en bijgevoegde tekeningen kunnen derhalve geen rechten worden ontleend. Via Paul makelaardij en de verkoper aanvaarden geen aansprakelijkheid ten aanzien van de gegevens in deze brochure.

Kenmerken

Overdracht
Vraagprijs € 500.000,- k.k.
Servicekosten € 226,-
Status Verkocht
Aanvaarding In overleg
Aangeboden sinds Maandag 18 augustus 2025
Laatste wijziging Dinsdag 28 oktober 2025
Bouw
Type object Galerijflat, appartement
Woonlaag 3e woonlaag
Soort bouw Bestaande bouw
Bouwjaar 2014
Dakbedekking Bitumen
Type dak Platdak
Oppervlaktes en inhoud
Woonoppervlakte 86 m²
Woonkameroppervlakte 35 m²
Inhoud 283 m³
Oppervlakte externe bergruimte 16 m²
Oppervlakte gebouwgebonden buitenruimte 4 m²
Indeling
Aantal bouwlagen 1
Aantal kamers 4 (waarvan 2 slaapkamers)
Locatie
Ligging Aan rustige weg
In centrum
Energieverbruik
Energielabel A
CV ketel
CV ketel Remeha Avanta
Bouwjaar 2014
Combiketel Ja
Eigendom Eigendom
Uitrusting
Aantal parkeerplaatsen 1
Warm water CV-ketel
Verwarmingssysteem Centrale verwarming
Badkamervoorzieningen Douche
Dubbele wastafel
Ligbad
Heeft een balkon Ja
Heeft een parkeerplaats Ja
Heeft schuur/berging Ja
Vereniging van Eigenaren
Ingeschreven bij de KvK Ja
Jaarlijkse vergadering Ja
Periodieke bijdrage Ja
Reservefonds Ja
Onderhoudsverwachting Ja
Opstal verzekering Ja
Kadastrale gegevens
Kadastrale aanduiding Tilburg X 1556
Omvang Appartementsrecht of complex
Eigendomsituatie Eigen grond
Kadastrale aanduiding Tilburg X 1556
Omvang Appartementsrecht of complex
Eigendomsituatie Eigen grond
Kadastrale aanduiding Tilburg X 1556
Omvang Appartementsrecht of complex
Eigendomsituatie Eigen grond

Plattegronden

Brochure(s) en overige bijlagen