Via Paul Makelaardij
Verkocht onder voorbehoud

Verkocht onder voorbehoud: Hart van Brabantlaan 149, 5038 LB Tilburg

€ 425.000,- k.k.

Beschrijving

HART VAN BRABANTLAAN 149 TILBURG

Hart van Brabantlaan en omgeving
Welkom aan de Hart van Brabantlaan. Hier woont u stedelijk en centraal, met alles wat Tilburg aantrekkelijk maakt op loop- en fietsafstand. Het Spoorpark ligt praktisch achterom voor sport, ontspanning en evenementen. Het station en het centrum zijn op loopafstand; busverbindingen en uitvalswegen (o.a. A58/N65) zorgen voor een vlotte bereikbaarheid richting Eindhoven, Breda en ’s-Hertogenbosch. Dagelijkse voorzieningen zoals supermarkten, scholen, sportclubs en horeca liggen in de directe omgeving. Aan de straatzijde proeft u de levendigheid van de stad; aan de achterzijde geniet u juist van rust in de ruime, groene stadstuin.

Een verborgen parel aan de voorzijde
Bij het eerste gezicht laat deze woning aan de Hart van Brabantlaan niet vermoeden wat erachter schuilgaat. Achter de charmante gevel ontvouwt zich een warm en verrassend interieur dat zowel comfort als sfeer ademt. De woonkamer heeft een houten vloer en strak gestucte wanden, wat zorgt voor een frisse en tijdloze basis. Dankzij de grote ramen valt er volop daglicht binnen, waardoor de ruimte licht en sfeervol aanvoelt. De indeling nodigt uit tot ontspannen en gezellig samenzijn, terwijl u via de achterzijde direct contact heeft met de tuin – ideaal voor wie binnen en buiten graag met elkaar verbindt.

Een keuken waar kookliefhebbers blij van worden
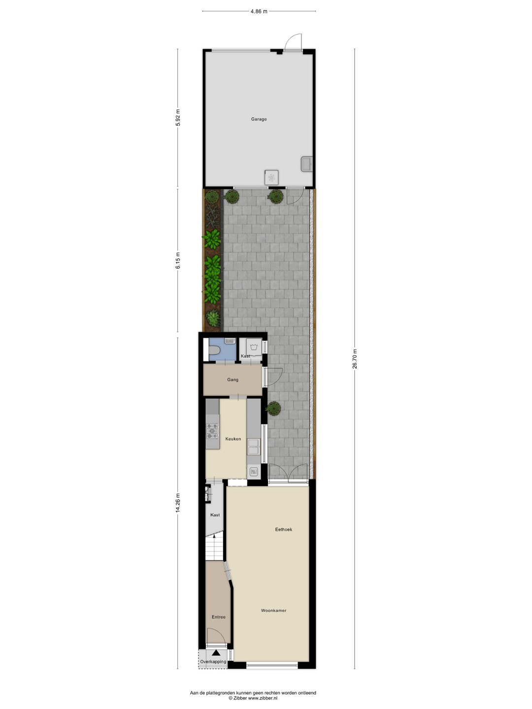
In deze keuken komt functionaliteit samen met plezier in koken. Hier vindt u niet alleen alle benodigde apparatuur — waaronder een 5-pits gasfornuis, koelkast, vriezer en vaatwasser — maar ook ruimte om écht fijn te koken. Een groot pluspunt is de royale inbouwkast: perfect voor het opbergen van voorraad, servies en keukenapparatuur, zodat alles binnen handbereik is én het aanrecht lekker opgeruimd blijft. Aansluitend vindt u de praktische bijkeuken met extra opbergruimte, een toilet, garderobe en aansluitingen voor wasmachine en droger. Een ideale aanvulling voor wie een georganiseerde leefruimte belangrijk vindt.

Vier slaapkamers vol mogelijkheden
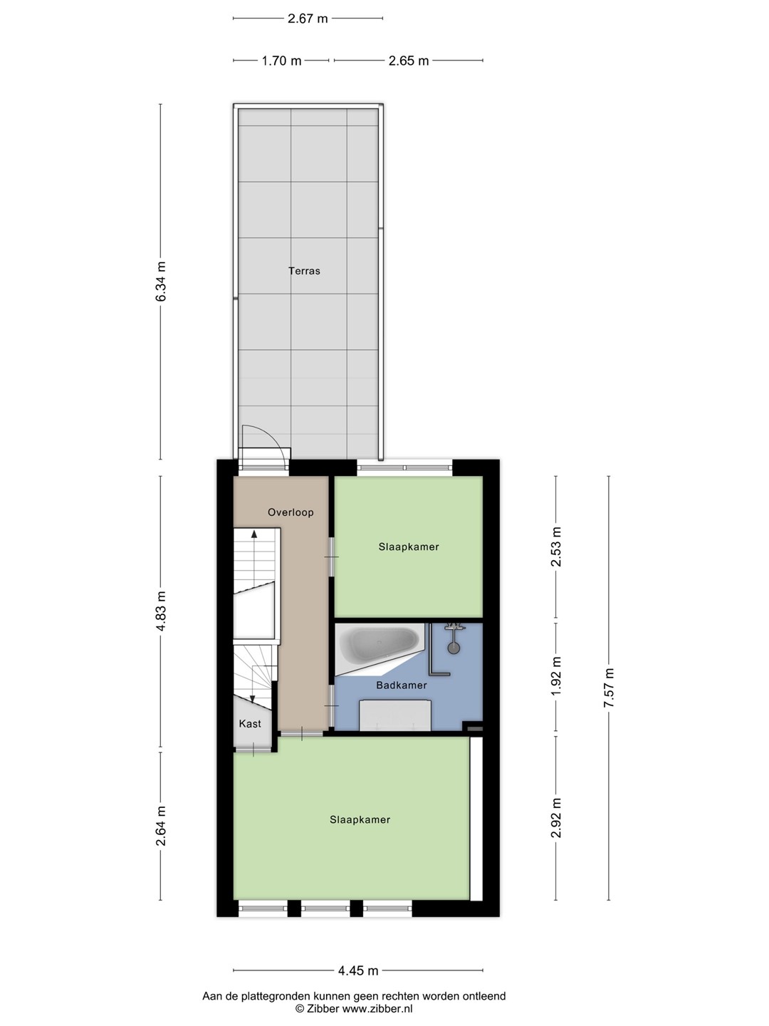
Deze royale tussenwoning beschikt over maar liefst vier slaapkamers, ideaal voor gezinnen of thuiskantoorliefhebbers. Vier slaapkamers vol mogelijkheden. Op de eerste verdieping bevinden zich twee volwaardige slaapkamers, waarvan één is uitgerust met een praktische inbouwkast. De ruime badkamer biedt optimaal comfort met een diep zitbad, een aparte douche en een tweepersoons wastafel. De tweede verdieping verrast met opnieuw twee slaapkamers, beide voorzien van een dakkapel waardoor er extra licht en ruimte ontstaat. In één van de kamers bevindt zich een ingebouwde kast — ideaal als kleding- of bergruimte. Daarnaast is hier een aparte ruimte met het tweede toilet, een wastafel en de CV-ketel. Via een vlizotrap bereikt u de bergzolder, perfect voor extra opslag.

Duurzaam, comfortabel en klaar voor de toekomst
Deze woning is zorgvuldig verduurzaamd om u het hele jaar door een prettig binnenklimaat én lagere energiekosten te bieden. In 2025 zijn het dak vernieuwd en is spouwmuurisolatie aangebracht — verbeteringen die direct merkbaar zijn in comfort en energieverbruik. Vrijwel alle ramen zijn voorzien van HR++ glas en horren, terwijl vloerisolatie en rolluiken bijdragen aan een stabiele binnentemperatuur en extra wooncomfort. De CV-ketel uit 2018 zorgt voor betrouwbare verwarming en warm water. Het resultaat is een energiezuinige woning met een aangenaam en gezond leefklimaat, klaar voor de toekomst.

Ontspanning met uitzicht en groen om u heen
Achter de woning geniet u van een rustig, groen uitzicht op het bruisende Spoorpark – een plek waar natuur, recreatie en ontspanning harmonieus samenkomen. Hier woont u midden in de stad, maar ervaart u dagelijks het gevoel van ruimte en rust. De achtertuin is een ruime, groene stadstuin: beschut, onderhoudsvriendelijk in te richten en groot genoeg voor zowel een eettafel als een comfortabele zithoek. Een fijne plek om in alle privacy te ontbijten, buiten te werken of lange zomeravonden door te brengen. Daarnaast beschikt de woning over een sfeervol dakterras met vrij zicht, waar u ’s avonds kunt genieten van de ondergaande zon — het perfecte verlengstuk van uw wooncomfort.

Unieke meerwaarde: de royale garage
De ruime garage achter de woning is een zeldzame troef op deze centrale locatie. Met een elektrische deur, directe toegang vanaf het achterpad en een ruime, praktische indeling biedt deze plek ongekende mogelijkheden. Fietsen, bakfiets of motor staan hier altijd droog en veilig, en er blijft nog volop ruimte over voor opslag, klusprojecten of hobby’s. Dankzij deze extra meters wint u binnen waardevolle woonruimte en geniet u buiten van ultiem gebruiksgemak — een luxe die in dit deel van de stad maar zelden te vinden is.

Pluspunten van de woning
• Bouwjaar: 1936
• Woonoppervlak: 136 m²
• Perceeloppervlakte: 117 m²
• 4 slaapkamers
• Grote garage
• Sfeervol dakterras
• Goed geïsoleerd, energiezuinig en comfortabel: dakisolatie, rolluiken, vloerisolatie, spouwisolatie
• Energielabel C, geldig tot en met 02-02-2030
• NEN 2580 meetrapport*

Wil je deze bijzondere woning met zijn vele mogelijkheden bezichtigen?
Dat begrijpen wij heel goed!

Bel of mail ons dan voor een afspraak:
Tel: 013 - 30 33 195
Mail: info@viapaulmakelaardij.nl

Via wie?
Via Paul Makelaardij natuurlijk!
Via wie anders?

De NEN 2580 meetnorm is een eenduidige meetnorm, waarbij met bepaalde richtlijnen rekening gehouden wordt. Zo wordt o.a. een zolder zonder vaste trap of met een lichtoppervlakte (bv dakraam) kleiner dan 0,5 m² niet tot de woonoppervlakte gerekend. Hierdoor kan de woonoppervlakte soms kleiner lijken dan de daadwerkelijke vloeroppervlakte en kleiner lijken bij vergelijkbare woningen waar de makelaar de meetnorm niet heeft toegepast. Ondanks het feit dat de meetnorm verplicht is, hanteren niet alle makelaars consequent de norm. Via Paul Makelaardij laat haar woningen inmeten door een erkend bedrijf. Het meetrapport van deze woning is dan ook, indien gewenst, ter inzage.

Ten aanzien van deze verkoopbrochure zijn de gegevens in deze brochure met de grootste zorg samengesteld. Voor de juistheid van de verstrekte informatie zijn wij in grote mate afhankelijk van derden. Aan vermelde tekst, maten en bijgevoegde tekeningen kunnen derhalve geen rechten worden ontleend. Via Paul Makelaardij en de verkoper aanvaarden geen aansprakelijkheid ten aanzien van de gegevens in deze brochure.

Kenmerken

Overdracht
Vraagprijs € 425.000,- k.k.
Status Verkocht onder voorbehoud
Aanvaarding In overleg
Aangeboden sinds Maandag 17 november 2025
Laatste wijziging Maandag 8 december 2025
Bouw
Type object Eengezinswoning, woonhuis, tussenwoning
Soort bouw Bestaande bouw
Bouwjaar 1936
Dakbedekking Dakpannen
Type dak Zadeldak
Isolatievormen Dakisolatie
Dubbel glas
Muurisolatie
Vloerisolatie
Oppervlaktes en inhoud
Perceeloppervlakte 117 m²
Woonoppervlakte 111 m²
Woonkameroppervlakte 25 m²
Inhoud 402 m³
Oppervlakte overige inpandige ruimten 3 m²
Oppervlakte externe bergruimte 27 m²
Oppervlakte gebouwgebonden buitenruimte 18 m²
Indeling
Aantal bouwlagen 4
Aantal kamers 6 (waarvan 4 slaapkamers)
Locatie
Ligging Aan drukke weg
Vrij uitzicht
Tuin
Type Achtertuin
Hoofdtuin Ja
Oriëntering Noorden
Heeft een achterom Ja
Tuin 2 - Type Achtertuin
Energieverbruik
Energielabel C
CV ketel
Warmtebron Gas
Bouwjaar 2018
Combiketel Ja
Eigendom Eigendom
Uitrusting
Warm water CV-ketel
Verwarmingssysteem Centrale verwarming
Badkamervoorzieningen Douche
Dubbele wastafel
Wastafelmeubel
Zitbad
Heeft kabel-tv Ja
Tuin aanwezig Ja
Heeft rolluiken Ja
Kadastrale gegevens
Kadastrale aanduiding Tilburg P 5864
Perceeloppervlakte 117 m²
Omvang Geheel perceel
Eigendomsituatie Eigen grond
Neem contact met mij op

Plattegronden

Brochure(s) en overige bijlagen