Via Paul Makelaardij
Nieuw in verkoop

Te koop: Hoogvensestraat 67, 5017 CB Tilburg

€ 385.000,- k.k.

Beschrijving

HOOGVENSESTRAAT 67 - TILBURG

Wonen met karakter en een verhaal
Welkom aan de Hoogvensestraat 67: een authentieke woning uit 1916 met een charmante voorgevel die direct de aandacht trekt. Hier voelt u bij binnenkomst meteen de sfeer van toen, gecombineerd met het comfort van nu. Een huis met een ziel, waar iedere ruimte warmte en karakter uitstraalt.

Levendigheid om de hoek, rust binnen handbereik
Op deze plek ervaart u het beste van twee werelden. Op loopafstand ligt het levendige Piushavengebied, waar het water en de stad samenkomen in een gezellige mix van terrassen, restaurants en ontspanning. Op zonnige dagen bruist het hier van het leven, terwijl u thuis juist geniet van rust en geborgenheid. En heeft u behoefte aan groen en stilte, dan wandelt u zo natuurgebied Moerenburg in. Ook de AaBe Fabriek ligt om de hoek – ideaal voor dagelijkse boodschappen of een middagje winkelen.

Een warm en licht thuis
Achter de voordeur ontvouwt zich een verrassend ruime begane grond. De strakke grijze gietvloer zorgt voor een moderne en rustige basis, terwijl de grote ramen de woonkamer vullen met natuurlijk licht. Hier is alle ruimte voor een comfortabele zithoek en een royale eettafel, een plek waar u samenkomt, ontspant en geniet.

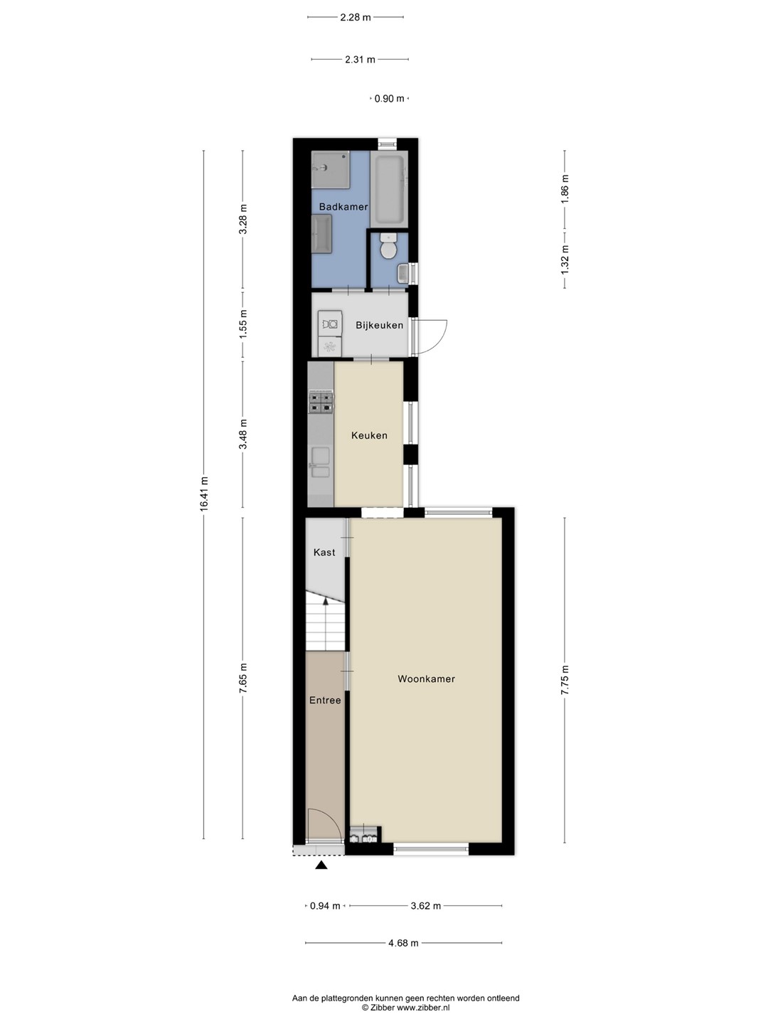
De halfopen keuken sluit hier naadloos op aan en vormt een echte blikvanger. De blauwe fronten in combinatie met het stoere betonlook werkblad geven de ruimte een eigentijds en karaktervol geheel. Alles wat u nodig heeft is aanwezig, terwijl de open verbinding met de woonkamer zorgt dat u altijd in contact blijft met uw gezelschap.

Praktisch gemak met comfort
Aansluitend vindt u de bijkeuken: een praktische en veelzijdige ruimte met plek voor extra apparatuur, de wasmachine en de cv-installatie. Vanuit hier bereikt u het separate toilet en de badkamer. De badkamer is compleet en comfortabel ingericht, met een wastafelmeubel, douche en een ligbad – een fijne plek om de dag rustig te beginnen of juist ontspannen af te sluiten.

Ruimte om tot rust te komen
Op de verdieping valt direct de prettige lichtinval op, die zorgt voor een open en aangename sfeer. De slaapkamers zijn goed van formaat en voelen stuk voor stuk comfortabel aan. De houten vloer op de overloop en in één van de kamers voegt extra warmte toe. De slaapkamer aan de voorzijde – de master bedroom – is heerlijk licht en biedt een fijne plek om tot rust te komen.

Genieten van het buitenleven
Ook buiten is het goed vertoeven. De onderhoudsvriendelijke stadstuin biedt precies wat u nodig heeft: rust, privacy en een vleugje groen dankzij de hederahaag. Achterin is ruimte voor een gezellig zitje, waar u kunt genieten van lange zomeravonden of een rustig moment voor uzelf.

Een plek om thuis te komen
Hoogvensestraat 67 is meer dan een woning – het is een plek waar sfeer, locatie en comfort samenkomen. Een huis waar u zich direct thuis voelt, midden in een levendige omgeving en toch met alle rust binnen handbereik.

Kenmerken:

- Bouwjaar: 1916
- Gebruikersoppervlakte: 92 m²
- Perceel: 145 m²
- Authentieke woning met charmante voorgevel
- Gelegen op een toplocatie nabij bruisende Piushavengebied
- Ruime en lichte woonkamer
- Praktische bijkeuken
- Twee goed bemeten slaapkamers met prettige lichtinval
- Houten vloer op de verdieping voor extra sfeer en warmte
- Onderhoudsvriendelijke stadstuin met privacy en ruimte voor een zitje
- Natuurgebied Moerenburg en winkelcentrum AaBe Fabriek op korte afstand
- Ideale woning voor wie centraal én sfeervol wil wonen in Tilburg
- NEN 2580 meetrapport*

Wil je deze bijzondere woning met zijn vele mogelijkheden bezichtigen?
Dat begrijpen wij heel goed!
Bel of mail ons dan voor een afspraak:

Tel: 013 - 30 33 195
Mail: info@viapaulmakelaardij.nl

Via wie?
Via Paul Makelaardij natuurlijk!
Via wie anders?

De NEN 2580 meetnorm is een eenduidige meetnorm, waarbij met bepaalde richtlijnen rekening gehouden wordt. Zo wordt o.a. een zolder zonder vaste trap of met een totale lichtoppervlakte (bv dakraam) kleiner dan 0,5 m² niet tot de woonoppervlakte gerekend. Hierdoor kan de woonoppervlakte soms kleiner lijken dan de daadwerkelijke vloeroppervlakte en kleiner lijken dan bij vergelijkbare woningen waar de makelaar de meetnorm niet toe heeft gepast. Ondanks het feit dat de meetnorm verplicht is, hanteren niet alle makelaars consequent de norm. Via Paul Makelaardij laat haar woningen inmeten door een erkend bedrijf.

Kenmerken

Overdracht
Vraagprijs € 385.000,- k.k.
Status Nieuw in verkoop
Aanvaarding In overleg
Aangeboden sinds Dinsdag 7 april 2026
Bouw
Type object Eengezinswoning, woonhuis, hoekwoning
Soort bouw Bestaande bouw
Bouwjaar 1916
Type dak Platdak
Isolatievormen Dakisolatie
Dubbel glas
Vloerisolatie
Oppervlaktes en inhoud
Perceeloppervlakte 145 m²
Woonoppervlakte 92 m²
Woonkameroppervlakte 28 m²
Inhoud 327 m³
Oppervlakte gebouwgebonden buitenruimte 1 m²
Indeling
Aantal bouwlagen 2
Aantal kamers 4 (waarvan 2 slaapkamers)
Tuin
Type Achtertuin
Hoofdtuin Ja
Oriëntering Noorden
Heeft een achterom Ja
Staat Normaal
Tuin 2 - Type Achtertuin
Tuin 2 - Staat Normaal
Energieverbruik
Energielabel D
CV ketel
CV ketel Remehe Tzerra
Warmtebron Gas
Bouwjaar 2014
Combiketel Ja
Eigendom Eigendom
Uitrusting
Warm water CV-ketel
Verwarmingssysteem Centrale verwarming
Elektrische verwarming
Badkamervoorzieningen Douche
Ligbad
Wastafelmeubel
Tuin aanwezig Ja
Kadastrale gegevens
Kadastrale aanduiding Tilburg M 8365
Perceeloppervlakte 145 m²
Omvang Geheel perceel
Eigendomsituatie Eigen grond
Neem contact met mij op

Plattegronden

Brochure(s) en overige bijlagen