Via Paul Makelaardij
Verkocht onder voorbehoud

Verkocht onder voorbehoud: Klaverstraat 70, 5025 MD Tilburg

€ 289.000,- k.k.

Beschrijving

HELAAS IS HET NIET MEER MOGELIJK OM EEN BEZICHTIGING IN TE PLANNEN VOOR DEZE WONING. JE KUNT JE GEGEVENS ACHTERLATEN VOOR DE RESERVELIJST.

KLAVERSTRAAT 70 TILBURG

De Klaverstraat is zo’n straat waar je direct voelt: hier wordt geleefd. Gelegen in de geliefde wijk Sint Anna ademt deze omgeving karakter, rust en authenticiteit. De straat wordt gekenmerkt door charmante vooroorlogse woningen, volwassen gevels en een prettige, gemoedelijke sfeer. Hier groet je elkaar nog en voelt thuiskomen écht als thuiskomen.

Op loopafstand ligt het bruisende stadscentrum van Tilburg, waar je terechtkunt voor een terrasje, een goed restaurant of een middagje winkelen. Voor ontspanning in het groen wandel je zo naar het Kromhoutpark of Stadspark Oude Dijk – perfecte plekken voor een frisse ochtendwandeling of een ontspannen middag in de zon. Ook praktisch gezien is de ligging ideaal: scholen, winkels voor de dagelijkse boodschappen en uitvalswegen richting Breda, Eindhoven en ’s-Hertogenbosch bevinden zich allemaal binnen handbereik. Een wijk die rust en levendigheid moeiteloos combineert.

Wonen met karakter, warmte en mogelijkheden

Een binnenkomst die meteen raakt

Zodra je de karakteristieke voordeur opent, word je verwelkomd door een sfeer die je vandaag de dag nog maar zelden tegenkomt. Het glas-in-lood bovenlicht filtert het daglicht op een zachte, bijna nostalgische manier naar binnen, terwijl de lambrisering in de hal direct herinnert aan het rijke verleden van deze woning. Dit is geen standaard entree, maar een warm welkom met persoonlijkheid en stijl.

Een leefruimte waar het leven zich afspeelt

De woonkamer vormt zonder twijfel het kloppend hart van het huis. Dankzij de uitbouw aan de achterzijde is hier een verrassend ruime leefruimte ontstaan, waar wonen, eten en samenzijn moeiteloos samenkomen. De indeling biedt alle ruimte voor een royale eettafel voor lange avonden met vrienden én een comfortabele zithoek om tot rust te komen na een drukke dag. De houtlook laminaatvloer zorgt voor een warme, rustige basis en verbindt de verschillende functies in de ruimte op een natuurlijke manier. Aan de achterzijde kijk je uit op de beschutte binnenplaats, wat zorgt voor privacy en een intieme sfeer. Een extra pluspunt: het raam biedt de mogelijkheid om te worden verlaagd tot aan de grond, waardoor binnen en buiten straks naadloos in elkaar overlopen.

Koken met licht en potentie

De keuken bevindt zich in de aanbouw en baadt in het daglicht dankzij het grote raam. Hier kook je met uitzicht, licht en lucht — een fijne plek om de dag te beginnen of af te sluiten. De basisvoorzieningen zijn aanwezig, maar deze ruimte nodigt vooral uit tot vernieuwing. Of je nu droomt van een moderne leefkeuken, een landelijke stijl of een strak design: dit is jouw canvas om een keuken te creëren die perfect aansluit bij jouw woonwensen.

Ontspanning en functionaliteit hand in hand

Achter de keuken bevinden zich de badkamer en bijkeuken, praktisch gesitueerd maar met oog voor comfort. De volledig betegelde badkamer is uitgerust met een ligbad met douche, wastafel en toilet — een fijne plek om te ontspannen na een lange dag. De bijkeuken biedt ruimte voor de wasmachine en beschikt over een achterdeur, wat zorgt voor extra gemak en functionaliteit in het dagelijks leven.

Slapen met rust en karakter

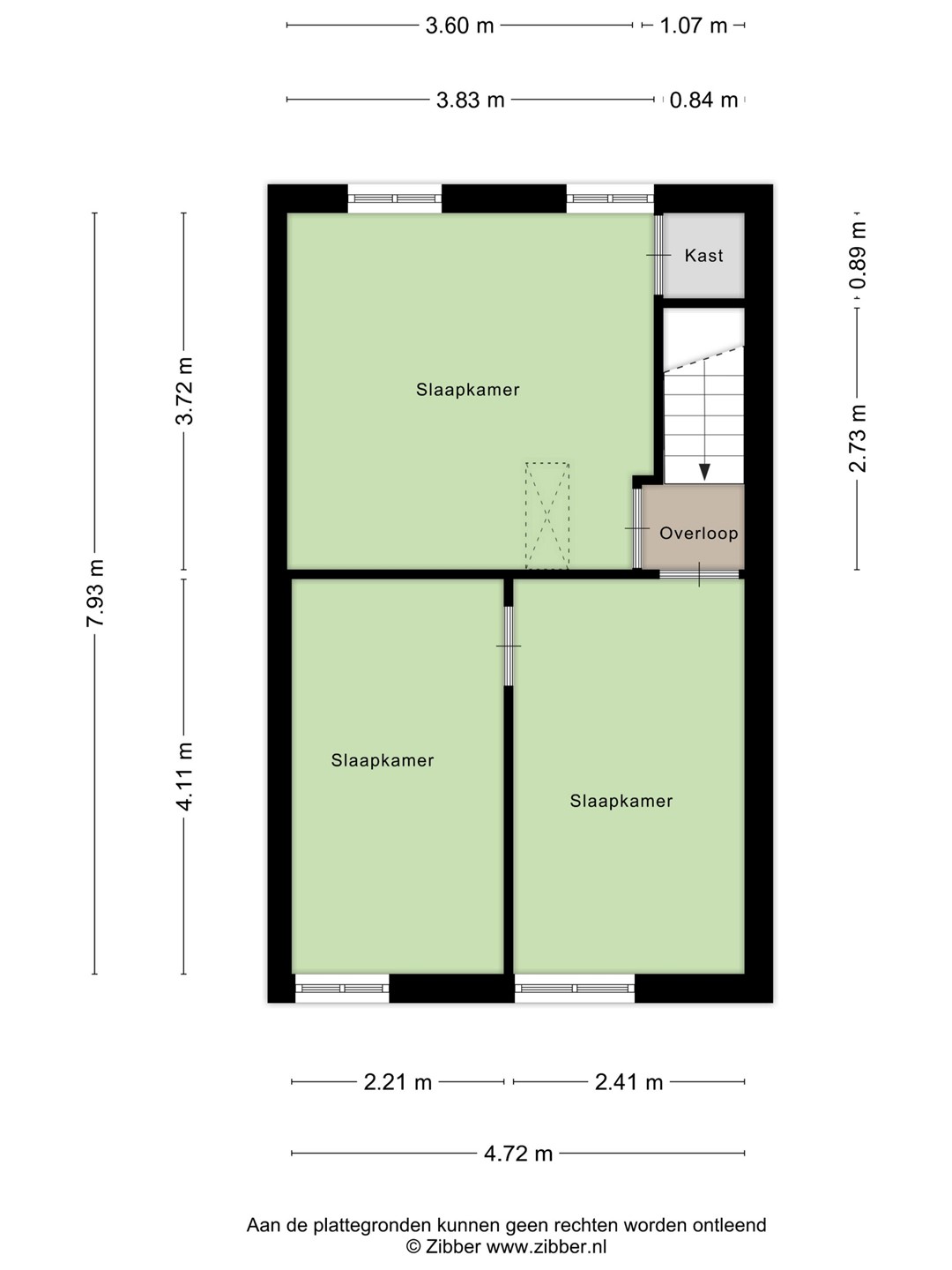
Via de vaste trap bereik je de eerste verdieping, waar drie slaapkamers op je wachten. Twee kamers aan de voorzijde en een royale hoofdslaapkamer aan de achterzijde, waar rust en privacy centraal staan. Alle slaapkamers beschikken nog over een authentieke houten vloer — een prachtig detail dat bijdraagt aan het karakter en de ziel van het huis. Elke kamer voelt licht, prettig en flexibel in gebruik, of je nu een slaapkamer, werkplek of hobbyruimte nodig hebt.

Praktische extra’s met ruimte

Daarnaast beschikt de woning over een ruime zolder, ideaal voor het opbergen van koffers, seizoensspullen en kerstdecoratie. Alles netjes uit het zicht, maar altijd binnen handbereik.

Buitenleven zonder onderhoud

De onderhoudsvrije achtertuin/binnenplaats is een fijne, beschutte plek om te genieten van het buitenleven. Of je hier nu een knusse zithoek creëert of een groene oase met potten en planten — de ruimte voelt intiem en rustig aan. Dankzij de poort aan de zijkant van de woning is de binnenplaats bovendien eenvoudig bereikbaar met de fiets, een praktisch detail dat het wooncomfort compleet maakt.

Pluspunten op een rij

- Bouwjaar 1905;
- Perceeloppervlak 138 m²;
- Woonoppervlak 95 m²;
- Inhoud 345 m³;
- NEN 2580 meetrapport*;
- Gelegen in een rustige woonwijk;
- Winkels, scholen en diverse uitvalswegen op korte afstand.

Wil je deze bijzondere woning met zijn vele mogelijkheden bezichtigen?
Dat begrijpen wij heel goed!
Bel of mail ons dan voor een afspraak:

Tel: 013 - 30 33 195
Mail: info@viapaulmakelaardij.nl

Via wie?
Via Paul Makelaardij natuurlijk!
Via wie anders?

* De NEN 2580 meetnorm is een eenduidige meetnorm, waarbij met bepaalde richtlijnen rekening gehouden wordt. Zo wordt o.a. een zolder zonder vaste trap of met een lichtoppervlakte (bv dakraam) kleiner dan 0,5 m² niet tot de woonoppervlakte gerekend. Hierdoor kan de woonoppervlakte soms kleiner lijken dan de daadwerkelijke vloeroppervlakte en kleiner lijken dan bij vergelijkbare woningen waar de makelaar de meetnorm niet toe heeft gepast. Ondanks het feit dat de meetnorm verplicht is, hanteren niet alle makelaars consequent de norm. Via Paul Makelaardij laat haar woningen inmeten door een erkend bedrijf. Het meetrapport van deze woning is dan ook, indien gewenst, ter inzage.

Ten aanzien van deze verkoopbrochure zijn de gegevens in deze brochure met de grootste zorg samengesteld. Voor de juistheid van de verstrekte informatie zijn wij in grote mate afhankelijk van derden. Aan vermelde tekst, maten en bijgevoegde tekeningen kunnen derhalve geen rechten worden ontleend. Via Paul makelaardij en de verkoper aanvaarden geen aansprakelijkheid ten aanzien van de gegevens in deze brochure.

Kenmerken

Overdracht
Vraagprijs € 289.000,- k.k.
Status Verkocht onder voorbehoud
Aanvaarding In overleg
Aangeboden sinds Donderdag 29 januari 2026
Laatste wijziging Dinsdag 3 maart 2026
Bouw
Type object Eengezinswoning, woonhuis, hoekwoning
Soort bouw Bestaande bouw
Bouwjaar 1905
Dakbedekking Dakpannen
Type dak Zadeldak
Oppervlaktes en inhoud
Perceeloppervlakte 138 m²
Woonoppervlakte 95 m²
Woonkameroppervlakte 28 m²
Inhoud 345 m³
Oppervlakte overige inpandige ruimten 2 m²
Indeling
Aantal bouwlagen 3
Aantal kamers 5 (waarvan 3 slaapkamers)
Locatie
Ligging Aan rustige weg
In woonwijk
Tuin
Type Achtertuin
Hoofdtuin Ja
Oriëntering Oosten
Heeft een achterom Ja
Tuin 2 - Type Achtertuin
Energieverbruik
Energielabel F
CV ketel
CV ketel Nefit Trendline HR C25
Warmtebron Gas
Bouwjaar 2019
Eigendom Eigendom
Uitrusting
Warm water CV-ketel
Verwarmingssysteem Centrale verwarming
Badkamervoorzieningen Ligbad
Toilet
Wastafel
Heeft kabel-tv Ja
Tuin aanwezig Ja
Heeft ventilatie Ja
Kadastrale gegevens
Kadastrale aanduiding Tilburg P 5672
Perceeloppervlakte 138 m²
Omvang Geheel perceel
Eigendomsituatie Eigen grond
Neem contact met mij op

Plattegronden

Brochure(s) en overige bijlagen