Via Paul Makelaardij
Nieuw in verkoop

Te koop: Kwaadeindstraat 43, 5041 JJ Tilburg

€ 435.000,- k.k.

Beschrijving

KWAADEINDSTRAAT 43 TILBURG

De Kwaadeindstraat is zo’n straat die meteen het echte Tilburgse stadsgevoel ademt. Een fijne mix van karaktervolle jaren ’30 woningen, volwassen groen en een prettige levendigheid zonder dat het druk aanvoelt. Hier woon je in een buurt waar buren elkaar nog groeten, waar de stad altijd dichtbij is, maar waar je thuis toch rust ervaart.

Op loopafstand ligt het bruisende centrum van Tilburg met zijn veelzijdige winkels, restaurants en cafés. Zin in ontspanning of juist reuring? Het Spoorpark ligt letterlijk om de hoek en vormt een groene oase midden in de stad: perfect voor een ochtendwandeling, een rondje hardlopen of een gezellige middag in de zon. Ook het station, scholen en dagelijkse voorzieningen bevinden zich binnen handbereik. Ook de Spoorzone ligt om de hoek, met diverse hippe horecagelegenheden en culturele hotspots zoals Museum De Pont en het Textielmuseum. Voor de dagelijkse boodschappen is de Albert Heijn XL vlakbij en dankzij de gunstige ligging ten opzichte van de uitvalswegen ben je bovendien snel onderweg richting de rest van de regio. De Kwaadeindstraat biedt daarmee het beste van twee werelden: stedelijk wonen met een warm, dorps karakter.

Wonen met ziel, licht en karakter

Welkom in deze prachtige, gemoderniseerde jaren ’30 woning waar sfeer, karakter en hedendaags comfort naadloos samenkomen. Zodra je voor de authentieke voordeur staat, voel je het al: dit is geen standaard huis, dit is een thuis met een verhaal.

Licht, ruimte en gezelligheid

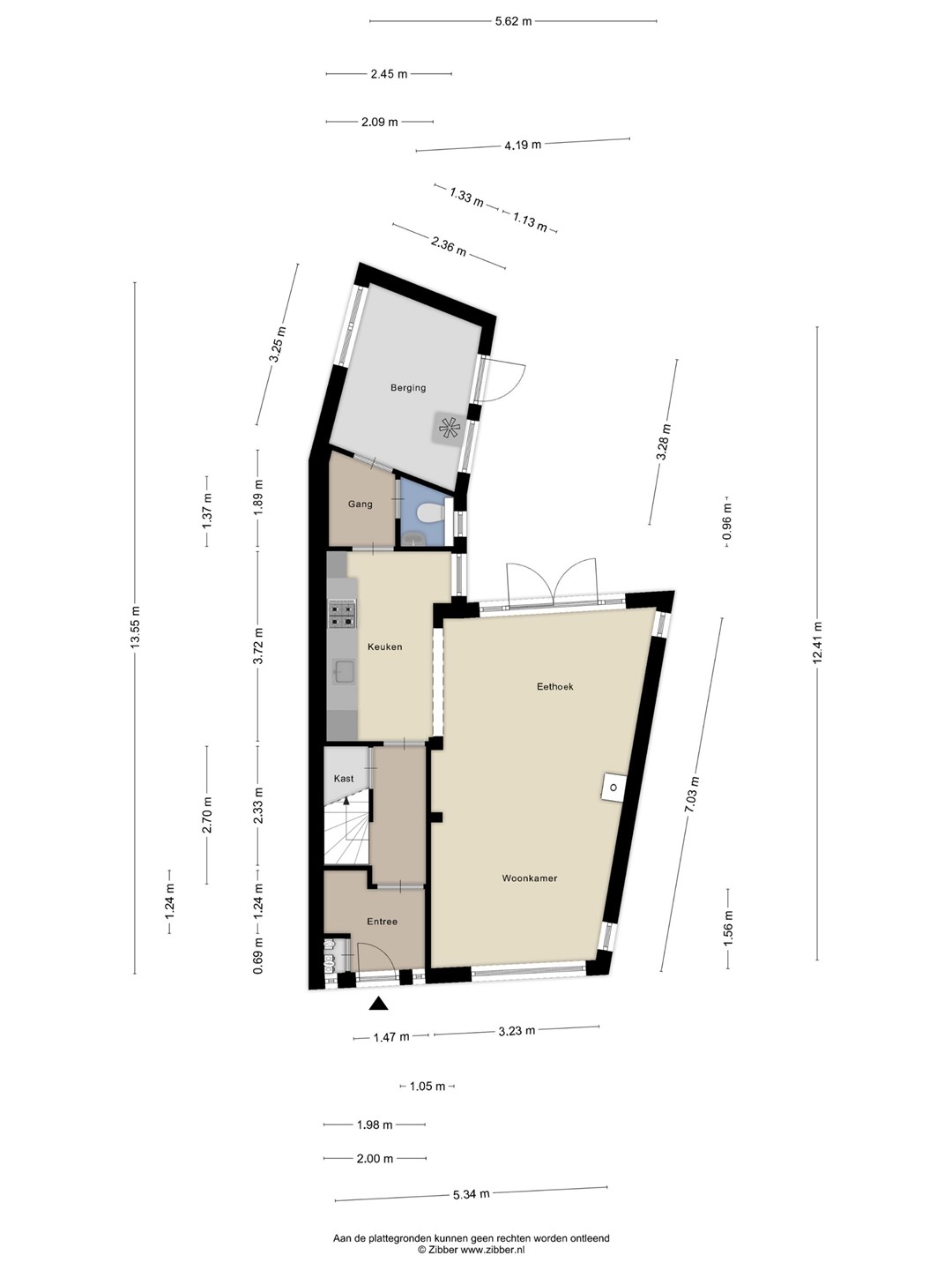
Binnen word je verwelkomd door een fraaie vestibule met garderobenis, gevolgd door een hal die toegang biedt tot alle belangrijke leefruimtes. De woonkamer is een heerlijke plek om te verblijven: licht, ruim en vol karakter. De stijlvolle houten vloer, de glas-in-loodramen en de houtkachel zorgen samen voor een warme, cosy sfeer waarin je elk seizoen wilt thuiskomen. De openslaande tuindeuren verbinden binnen en buiten moeiteloos met elkaar en laten het daglicht rijkelijk binnenstromen.

Koken met stijl

De halfopen keuken in mat zwart is een echte blikvanger en vormt het hart van het huis. Modern, strak en tegelijkertijd perfect passend bij het karakter van de woning. De keuken is uitgerust met diverse inbouwapparatuur zoals een vaatwasser, oven, 4-pits gaskookplaat, afzuigkap en koel-vriescombinatie. Vanuit hier bereik je het portaal met toiletruimte en toegang tot de berging, die op haar beurt weer leidt naar de achtertuin.

Rustige nachten & comfortabele badkamer

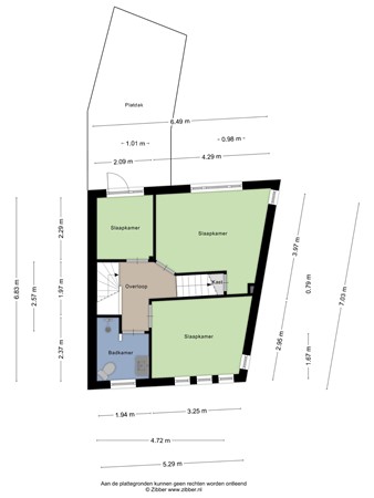
Op de eerste verdieping bevinden zich drie lichte slaapkamers, stuk voor stuk fijne ruimtes met een prettige sfeer. Eén van de slaapkamers beschikt over een vaste kast. De moderne badkamer is strak en smaakvol uitgevoerd en biedt alle comfort die u mag verwachten. De ruimte is voorzien van een inloopdouche, een wastafel met stijlvol meubel en een toilet. Dankzij de neutrale kleurstelling en praktische indeling voelt de badkamer prettig, rustig en functioneel aan – een fijne plek om de dag ontspannen te beginnen of af te sluiten.

Een zolder om verliefd op te worden

Via een vaste trap bereik je de royale zolderslaapkamer, waar de authentieke houten spanten direct in het oog springen. Deze ruimte ademt sfeer en karakter. De dakkapel zorgt voor een prachtige lichtinval en extra ruimte. Daarnaast zijn er vaste kasten aanwezig met daarin de c.v.-ketel en aansluitingen voor wasapparatuur.

Buiten genieten

De knusse stadstuin, gelegen op het noordwesten, is een heerlijke plek om te ontspannen. Of je nu ’s middags van de zon geniet of ’s avonds gezellig buiten zit met een goed glas wijn: deze tuin biedt privacy en rust. Dankzij de praktische achterom is de tuin ook nog eens functioneel.

Waarom dit huis zo fijn is:

- Goed onderhouden en mooi afgewerkt, met behoud van authentieke elementen;
- Veel lichtinval zorgt voor een open, prettige sfeer in alle leefruimtes;
- Openslaande tuindeuren creëren een directe verbinding met buiten;
- Praktische indeling met royale slaapkamers en verrassend veel ruimte.

Dit is zo’n woning die je niet elke dag tegenkomt. Warm, sfeervol en vol karakter. Een huis dat je omarmt zodra je binnenstapt en waar herinneringen gemaakt worden.

Naast sfeer en comfort is ook aan duurzaamheid gedacht. De aanwezigheid van 5 zonnepanelen zorgt voor een prettig energieverbruik en maakt deze woning niet alleen charmant, maar ook toekomstgericht.

Kenmerken:

- Bouwjaar: 1936
- Woonoppervlak: 111 m²
- Inhoud: 421 m³
- Energielabel: C (geldig tot en met 12-11-2035)
- NEN 2580 meetrapport*

Wil je deze bijzondere woning met zijn vele mogelijkheden bezichtigen?
Dat begrijpen wij heel goed!
Bel of mail ons dan voor een afspraak:

Tel: 013 - 30 33 195
Mail: info@viapaulmakelaardij.nl

Via wie?
Via Paul Makelaardij natuurlijk!
Via wie anders?

* De NEN 2580 meetnorm is een eenduidige meetnorm, waarbij met bepaalde richtlijnen rekening gehouden wordt. Zo wordt o.a. een zolder zonder vaste trap of met een lichtoppervlakte (bv dakraam) kleiner dan 0,5 m² niet tot de woonoppervlakte gerekend. Hierdoor kan de woonoppervlakte soms kleiner lijken dan de daadwerkelijke vloeroppervlakte en kleiner lijken dan bij vergelijkbare woningen waar de makelaar de meetnorm niet toe heeft gepast. Ondanks het feit dat de meetnorm verplicht is, hanteren niet alle makelaars consequent de norm. Via Paul Makelaardij laat haar woningen inmeten door een erkend bedrijf. Het meetrapport van deze woning is dan ook, indien gewenst, ter inzage.

Ten aanzien van deze verkoopbrochure zijn de gegevens in deze brochure met de grootste zorg samengesteld. Voor de juistheid van de verstrekte informatie zijn wij in grote mate afhankelijk van derden. Aan vermelde tekst, maten en bijgevoegde tekeningen kunnen derhalve geen rechten worden ontleend. Via Paul makelaardij en de verkoper aanvaarden geen aansprakelijkheid ten aanzien van de gegevens in deze brochure.

Kenmerken

Overdracht
Vraagprijs € 435.000,- k.k.
Status Nieuw in verkoop
Aanvaarding In overleg
Aangeboden sinds Donderdag 8 januari 2026
Laatste wijziging Dinsdag 13 januari 2026
Bouw
Type object Eengezinswoning, woonhuis, twee onder een kap woning
Soort bouw Bestaande bouw
Bouwjaar 1936
Dakbedekking Dakpannen
Type dak Schilddak
Oppervlaktes en inhoud
Perceeloppervlakte 91 m²
Woonoppervlakte 111 m²
Woonkameroppervlakte 26 m²
Inhoud 421 m³
Oppervlakte overige inpandige ruimten 8 m²
Indeling
Aantal bouwlagen 3
Aantal kamers 6 (waarvan 4 slaapkamers)
Locatie
Ligging Aan rustige weg
In woonwijk
Vrij uitzicht
Tuin
Type Achtertuin
Hoofdtuin Ja
Oriëntering Noord west
Heeft een achterom Ja
Tuin 2 - Type Achtertuin
Energieverbruik
Energielabel C
CV ketel
CV ketel Intergas HR 107
Warmtebron Gas
Bouwjaar 2018
Combiketel Ja
Eigendom Eigendom
Uitrusting
Warm water CV-ketel
Verwarmingssysteem Centrale verwarming
Houtkachel
Badkamervoorzieningen Inloopdouche
Toilet
Wastafel
Wastafelmeubel
Tuin aanwezig Ja
Heeft rolluiken Ja
Heeft schuur/berging Ja
Heeft zonnecollectoren Ja
Heeft ventilatie Ja
Kadastrale gegevens
Kadastrale aanduiding Tilburg O 4265
Perceeloppervlakte 91 m²
Omvang Geheel perceel
Eigendomsituatie Eigen grond
Neem contact met mij op

Plattegronden

Brochure(s) en overige bijlagen