Via Paul Makelaardij
Nieuw in verkoop

Te koop: Leo Xiii-Straat 86, 5046 KK Tilburg

€ 315.000,- k.k.

Beschrijving

LEO XIII-STRAAT 86 TILBURG

Wonen aan de Leo XIII-straat: karakter, cultuur en comfort

De Leo XIII-straat is zo’n straat waar Tilburg op zijn mooist samenkomt. Gelegen in de geliefde wijk Pastorieklamp Oost woon je hier in een prettige balans tussen rust en levendigheid. Een buurt met karakter, waar jonge gezinnen, starters en liefhebbers van de stad elkaar vinden. De straat ademt historie, met charmante gevels en een dorps gevoel, terwijl het stadsleven zich op slechts enkele minuten afstand afspeelt.

Op de fiets sta je binnen no-time in het bruisende centrum van Tilburg of op het centraal station. Voor de dagelijkse boodschappen wandel je eenvoudig naar de supermarkt om de hoek. En alsof dat nog niet genoeg is, ligt één van de oudste en groenste parken van Tilburg – het Wilhelminapark – op loopafstand. Cultuurliefhebbers kunnen hun hart ophalen: het Textielmuseum en Museum De Pont bevinden zich praktisch om de hoek. Ook qua bereikbaarheid zit je hier perfect; binnen vijf minuten rijd je de belangrijkste uitvalswegen op. Rustig wonen, met alles binnen handbereik.

Een huis dat je voelt zodra je binnenstapt – Instapklaar wonen met een ziel

Dit is zo’n woning waar sfeer geen detail is, maar de rode draad. Een instapklare eengezinswoning met een warme, authentieke uitstraling en verrassend veel ruimte, verdeeld over drie slaapkamers op twee verdiepingen. Een huis dat voelt als thuis vanaf het eerste moment.

Een entree met karakter

Het authentieke verhaal begint al bij binnenkomst. De sfeervolle entree verwelkomt je met een prachtige terrazzo vloer en glas-in-loodramen boven de voordeur. Details die je zelden nog tegenkomt, maar hier met zorg zijn behouden en gekoesterd.

Woonkamer vol warmte en licht

De woonkamer is een heerlijke leefruimte waar sfeer en comfort samenkomen. De warme houten vloer, de glas-in-loodramen boven het grote raam aan de straatzijde en de klassieke ensuite deuren zorgen voor een tijdloze elegantie. Dit is een plek om te ontspannen, te leven en te genieten – met een fijne lichtinval gedurende de dag.

Woonkeuken met daglicht als hoofdrolspeler

De woonkeuken is praktisch én uitnodigend. Uitgerust met een vaatwasser, 4-pits gaskookplaat, oven en een RVS afzuigkap, gecombineerd met lichte witte boven- en onderkasten die zorgen voor een frisse uitstraling. De lichtstraat maakt deze ruimte extra bijzonder en laat het daglicht rijkelijk binnenstromen – perfect voor lange ontbijten en gezellige diners.

Strak en vernieuwd comfort

Achter de keuken bevindt zich de recent volledig vernieuwde badkamer (2025). Een moderne ruimte met strakke witte wandtegels, een ligbad, toilet, wastafel met meubel en een designradiator. Hier komen stijl en comfort naadloos samen.

Eerste verdieping: rust en buitenruimte

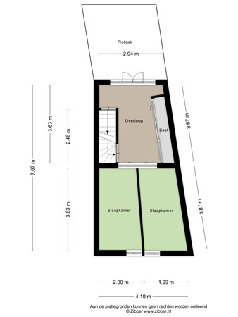
Op de eerste verdieping vind je twee slaapkamers en een verrassend ruime overloop met kastenwand. De openslaande deuren naar het zonnige dakterras op het zuiden maken deze verdieping extra aantrekkelijk. De mooi gelakte houten vloeren op de overloop en in beide slaapkamers versterken het warme en verzorgde gevoel.

Tweede verdieping: ruimte en functionaliteit

De tweede verdieping biedt een ruime derde slaapkamer met veel opbergruimte, een vaste wastafel en aansluitingen voor wasmachine en droger. Een fijne, multifunctionele ruimte die zich perfect leent als master bedroom, werkruimte of logeerkamer.

Zonnige buitenplek

De onderhoudsvriendelijke binnenplaats op het zuiden is een heerlijke plek om buiten te zitten. Met een praktische berging achter de woning is ook aan gemak gedacht. Hier geniet je in alle rust, midden in de stad.

Rustig wonen, centraal leven

Een unieke combinatie: rustig wonen in een fijne straat, terwijl het centrum van Tilburg letterlijk om de hoek ligt. Parkeren kan via betaald parkeren, met de mogelijkheid tot het aanvragen van een parkeervergunning.

Pluspunten op een rij;

- Bouwjaar: 1917;
- Woonoppervlak: 83 m²;
- Inhoud: 297 m³;
- Energielabel …… geldig tot en met ……;
- Authentieke details;
- Recent vernieuwde badkamer (2025);
- Rustig wonen nabij het centrum;
- NEN 2580 meetrapport*.

Wil je deze bijzondere woning met zijn vele mogelijkheden bezichtigen?
Dat begrijpen wij heel goed!
Bel of mail ons dan voor een afspraak:

Tel: 013 - 30 33 195
Mail: info@viapaulmakelaardij.nl

Via wie?
Via Paul Makelaardij natuurlijk!
Via wie anders?

De NEN 2580 meetnorm is een eenduidige meetnorm, waarbij met bepaalde richtlijnen rekening gehouden wordt. Zo wordt o.a. een zolder zonder vaste trap of met een lichtoppervlakte (bv dakraam) kleiner dan 0,5 m² niet tot de woonoppervlakte gerekend. Hierdoor kan de woonoppervlakte soms kleiner lijken dan de daadwerkelijke vloeroppervlakte en kleiner lijken dan bij vergelijkbare woningen waar de makelaar de meetnorm niet toe heeft gepast. Ondanks het feit dat de meetnorm verplicht is, hanteren niet alle makelaars consequent de norm. Via Paul Makelaardij laat haar woningen inmeten door een erkend bedrijf. Het meetrapport van deze woning is dan ook, indien gewenst, ter inzage.

Ten aanzien van deze verkoopbrochure zijn de gegevens in deze brochure met de grootste zorg samengesteld. Voor de juistheid van de verstrekte informatie zijn wij in grote mate afhankelijk van derden. Aan vermelde tekst, maten en bijgevoegde tekeningen kunnen derhalve geen rechten worden ontleend. Via Paul makelaardij en de verkoper aanvaarden geen aansprakelijkheid ten aanzien van de gegevens in deze brochure.

Kenmerken

Overdracht
Vraagprijs € 315.000,- k.k.
Status Nieuw in verkoop
Aanvaarding In overleg
Aangeboden sinds Donderdag 8 januari 2026
Bouw
Type object Eengezinswoning, woonhuis, tussenwoning
Soort bouw Bestaande bouw
Bouwjaar 1917
Dakbedekking Dakpannen
Type dak Zadeldak
Oppervlaktes en inhoud
Perceeloppervlakte 67 m²
Woonoppervlakte 83 m²
Woonkameroppervlakte 22 m²
Inhoud 297 m³
Oppervlakte overige inpandige ruimten 1 m²
Oppervlakte gebouwgebonden buitenruimte 5 m²
Indeling
Aantal bouwlagen 3
Aantal kamers 6 (waarvan 3 slaapkamers)
Locatie
Ligging Aan rustige weg
In woonwijk
Tuin
Type Achtertuin
Hoofdtuin Ja
Oriëntering Zuiden
Tuin 2 - Type Achtertuin
Energieverbruik
Energielabel D
CV ketel
CV ketel Remeha Tzerra Ace 24C
Warmtebron Gas
Bouwjaar 2021
Eigendom Eigendom
Uitrusting
Warm water CV-ketel
Verwarmingssysteem Centrale verwarming
Badkamervoorzieningen Ligbad
Toilet
Wastafel
Wastafelmeubel
Tuin aanwezig Ja
Heeft ventilatie Ja
Kadastrale gegevens
Kadastrale aanduiding Tilburg N 18426
Perceeloppervlakte 67 m²
Omvang Geheel perceel
Eigendomsituatie Eigen grond
Neem contact met mij op

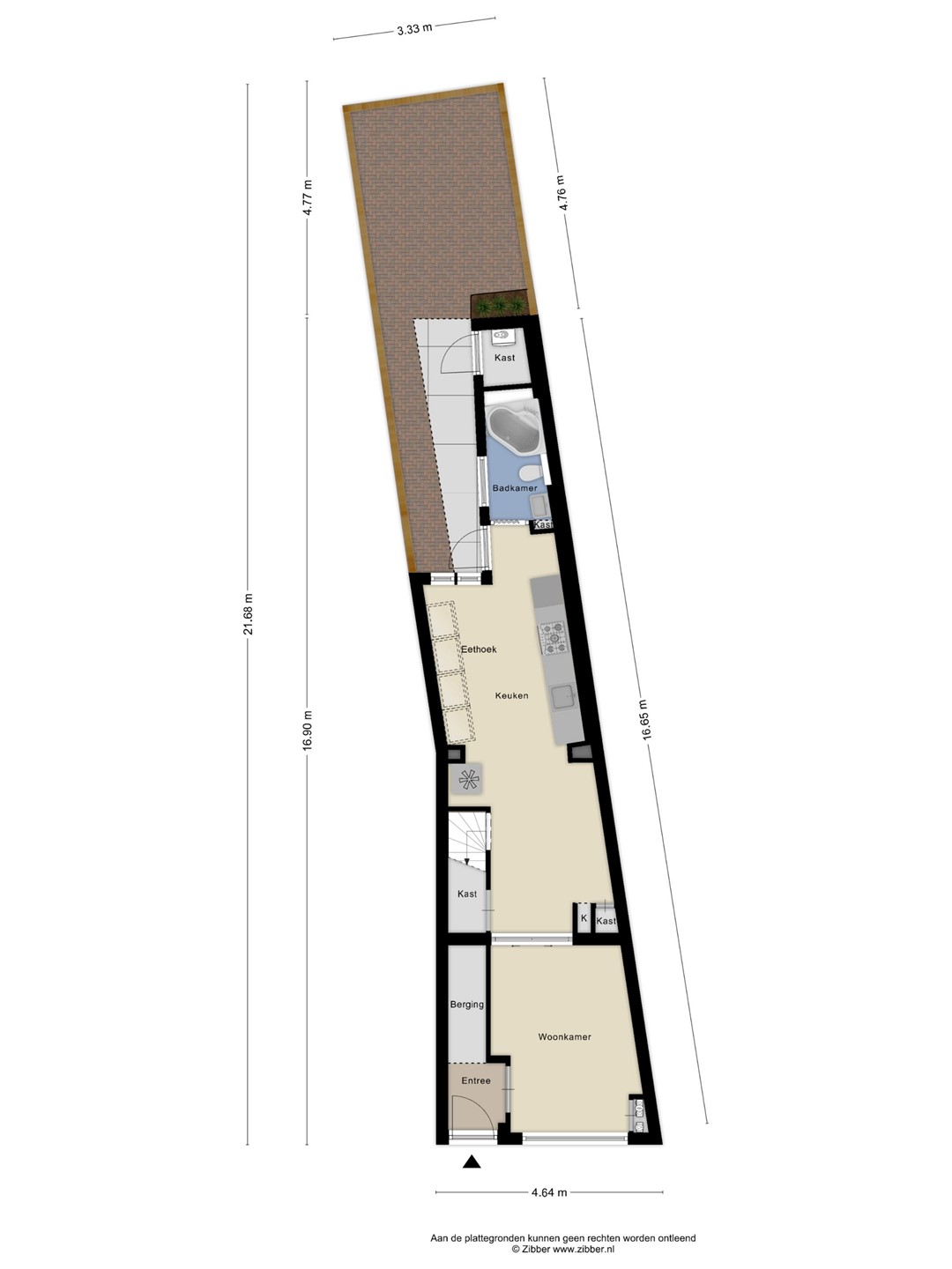
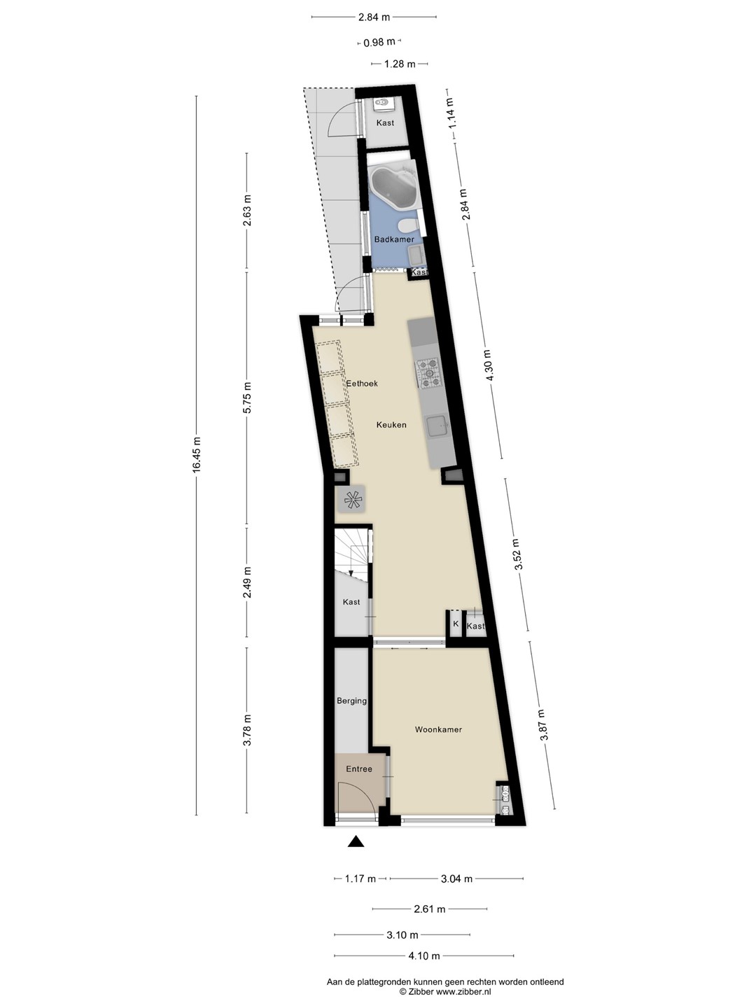
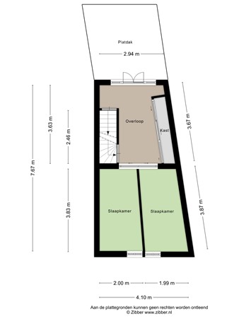
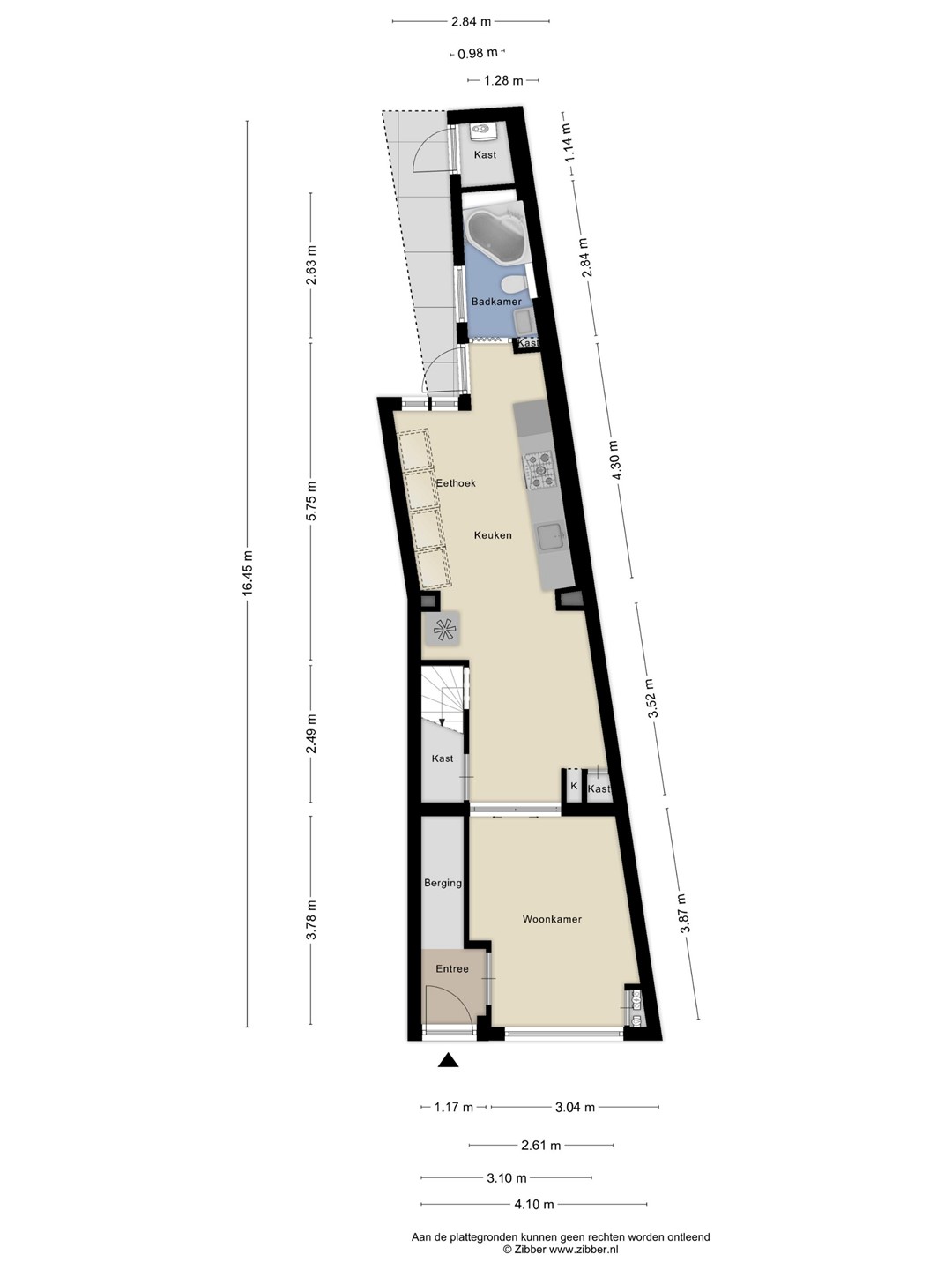
Plattegronden

Brochure(s) en overige bijlagen