Via Paul Makelaardij
Verkocht onder voorbehoud

Verkocht onder voorbehoud: Metslawierstraat 48, 5045 EC Tilburg

€ 399.000,- k.k.

Beschrijving

METSLAWIERSTRAAT 48 TILBURG

Wonen in de Metslawierstraat

De Metslawierstraat is gelegen in de rustige en geliefde wijk Leeuwerik Zuid in stadsdeel Reeshof, een omgeving die bekend staat om haar groene karakter, ruime opzet en kindvriendelijke sfeer. Hier woon je in een fijne woonomgeving waar rust en levendigheid perfect samenkomen. In de directe omgeving vind je diverse speelplekken, scholen, sportvoorzieningen en veel groen, waardoor het een ideale plek is voor gezinnen en iedereen die comfortabel wil wonen met alle dagelijkse voorzieningen binnen handbereik.

Voor de dagelijkse boodschappen ligt winkelcentrum Heyhoef op korte afstand, met een uitgebreid aanbod aan winkels, supermarkten en gezellige horecagelegenheden. Ook qua bereikbaarheid zit je hier uitstekend: via de nabijgelegen uitvalswegen ben je snel onderweg richting andere steden, terwijl het bruisende centrum van Tilburg eenvoudig per fiets of auto te bereiken is.
De Metslawierstraat zelf is een rustige woonstraat met een prettige, gemoedelijke sfeer. Kinderen spelen hier nog onbezorgd buiten en buren kennen elkaar. Een plek waar wonen voelt als thuiskomen.

Sfeervol wonen met verrassend veel ruimte

Thuiskomen in een fijne hoekwoning
Deze charmante hoekwoning verwelkomt je met een warme en uitnodigende uitstraling. Gelegen in een kindvriendelijke buurt en met een speeltuin direct naast de woning, vormt dit huis een heerlijke plek voor gezinnen. Dankzij de hoekligging geniet je hier van extra licht en ruimte, wat direct voelbaar is zodra je binnenstapt.

Een lichte woonkamer vol leefcomfort
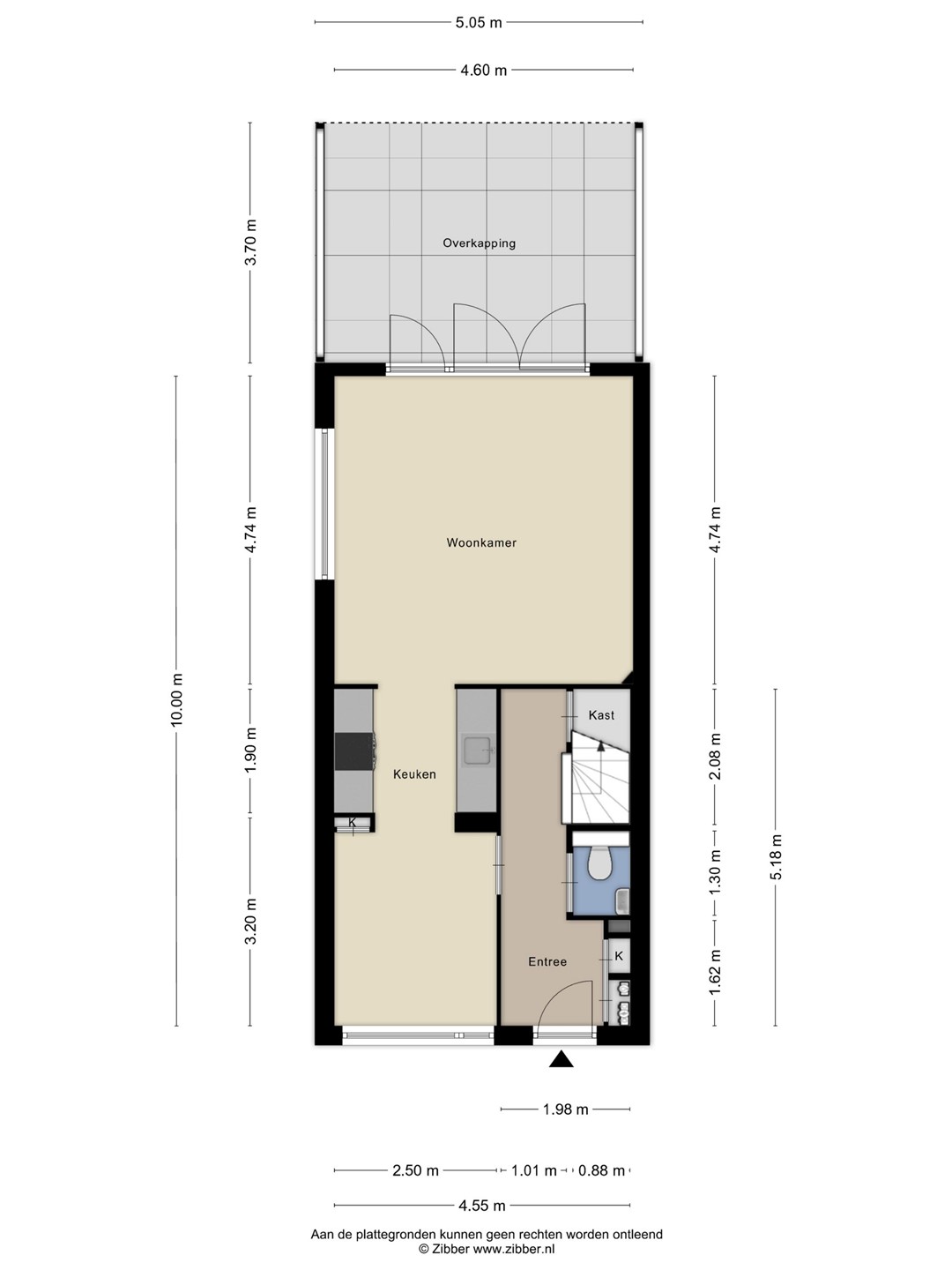
Bij binnenkomst tref je de entree met meterkast, toiletruimte met fontein, trapopgang en een praktische trapkast. Vanuit de hal heb je toegang tot zowel de keuken/eetkamer als de tuingerichte woonkamer.

De woonkamer vormt het hart van het huis en biedt een heerlijke leefruimte. Dankzij de hoekligging beschikt deze ruimte over een groot zijraam dat zorgt voor een prachtige lichtinval gedurende de dag. Dit zijraam is bovendien voorzien van een zonnescherm.

De twee openslaande deuren en een extra loopdeur verbinden de woonkamer direct met de tuin. Op zonnige dagen zet je de deuren open en loopt binnen moeiteloos over in buiten – precies het soort wooncomfort waar je iedere dag van geniet.

Het hart van het huis: de keuken
Centraal in de woning bevindt zich de lichte keuken, een plek waar koken en samenzijn samenkomen.
Het houten werkblad geeft de keuken een warme en natuurlijke uitstraling.
De keuken is praktisch ingericht met een keukenblad aan beide zijden en voorzien van
diverse inbouwapparatuur, waaronder:
• inductiekookplaat (4 pits);
• RVS afzuigkap;
• oven;
• vaatwasser;
• koelkast.

Richting de eetkamer bevindt zich bovendien een handige ingebouwde kast, ideaal voor extra bergruimte.
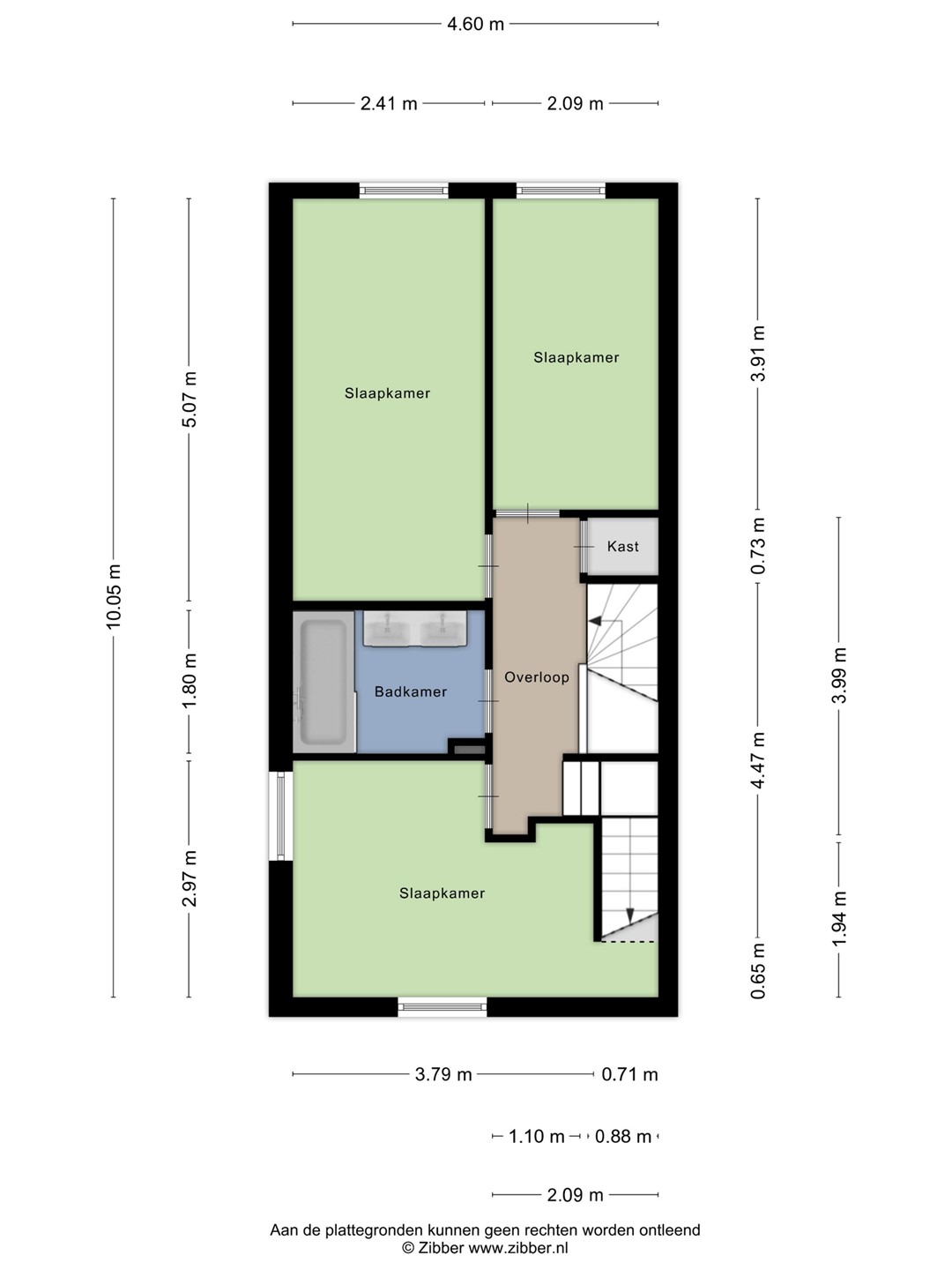
Speelse verdieping met drie slaapkamers

Op de eerste verdieping bevinden zich drie slaapkamers en de badkamer. De kamers hebben een speels karakter door subtiele hoogteverschillen, wat deze verdieping extra charme geeft. Alle slaapkamers zijn afgewerkt met een nette laminaatvloer.

De badkamer heeft een frisse en moderne uitstraling dankzij de combinatie van witte wandtegels en zwarte vloertegels. In de afgelopen jaren is de ruimte opgefrist met een nieuw dubbel wastafelmeubel, wat zorgt voor extra comfort in het dagelijks gebruik.
Op de overloop bevindt zich bovendien een praktische ingebouwde kast met aansluiting voor de wasmachine.

Verrassend ruime tweede verdieping
De tweede verdieping biedt nog meer mogelijkheden. Hier bevinden zich een vierde slaapkamer en een bergkamer. Dankzij het grote dakraam en de knieschotten is dit een lichte en praktische ruimte met veel bergruimte.
Het hoge plafond geeft de verdieping een ruimtelijk gevoel en biedt zelfs de mogelijkheid om hier twee slaapkamers te realiseren. Ideaal voor groeiende gezinnen, een werkruimte of hobbykamer.

Buitenleven in de eigen tuin
Ook buiten is het heerlijk vertoeven. De achtertuin is onderhoudsvriendelijk aangelegd met tegels, waardoor je meer tijd overhoudt om te genieten. Achter in de tuin bevindt zich een sfeervolle overkapping – een fijne plek om lange zomeravonden door te brengen met vrienden en familie.
Op de achterzijde van het perceel staat een houten schuur voorzien van elektra, perfect voor het opbergen van fietsen en tuinspullen.

Groen en spelen om de hoek
Wat deze woning extra bijzonder maakt, is de ligging naast een speeltuin voor kinderen en de groene omgeving in de buurt. Hier kunnen kinderen veilig spelen en is er altijd ruimte om naar buiten te gaan.

De pluspunten van deze woning:
• Bouwjaar: 1999;
• Woonoppervlak: 110 m²;
• Perceeloppervlakte: 128 m²;
• Tussenwoning met 4 slaapkamers;
• Energielabel B geldig tot en met 02-12-2030;
• Stadsverwarming;
• NEN 2580 meetrapport*.

Wil je deze bijzondere woning met zijn vele mogelijkheden bezichtigen?
Dat begrijpen wij heel goed!

Bel of mail ons dan voor een afspraak:
Tel: 013 - 30 33 195
Mail: info@viapaulmakelaardij.nl

Via wie?
Via Paul Makelaardij natuurlijk!
Via wie anders?

*De NEN 2580 meetnorm is een eenduidige meetnorm, waarbij met bepaalde richtlijnen rekening gehouden wordt. Zo wordt o.a. een zolder zonder vaste trap of met een lichtoppervlakte (bv dakraam) kleiner dan 0,5 m² niet tot de woonoppervlakte gerekend. Hierdoor kan de woonoppervlakte soms kleiner lijken dan de daadwerkelijke vloeroppervlakte en kleiner lijken dan bij vergelijkbare woningen waar de makelaar de meetnorm niet toe heeft gepast. Ondanks het feit dat de meetnorm verplicht is, hanteren niet alle makelaars consequent de norm. Via Paul Makelaardij laat haar woningen inmeten door een erkend bedrijf. Het meetrapport van deze woning is dan ook, indien gewenst, ter inzage.

Ten aanzien van deze verkoopbrochure zijn de gegevens in deze brochure met de grootste zorg samengesteld. Voor de juistheid van de verstrekte informatie zijn wij in grote mate afhankelijk van derden. Aan vermelde tekst, maten en bijgevoegde tekeningen kunnen derhalve geen rechten worden ontleend. Via Paul makelaardij en de verkoper aanvaarden geen aansprakelijkheid ten aanzien van de gegevens in deze brochure.

Kenmerken

Overdracht
Vraagprijs € 399.000,- k.k.
Status Verkocht onder voorbehoud
Aanvaarding In overleg
Aangeboden sinds Maandag 23 maart 2026
Laatste wijziging Donderdag 16 april 2026
Bouw
Type object Eengezinswoning, woonhuis, hoekwoning
Soort bouw Bestaande bouw
Bouwjaar 1999
Dakbedekking Leisteen
Type dak Zadeldak
Isolatievormen Dakisolatie
Dubbel glas
Muurisolatie
Vloerisolatie
Oppervlaktes en inhoud
Perceeloppervlakte 128 m²
Woonoppervlakte 110 m²
Woonkameroppervlakte 22 m²
Inhoud 390 m³
Oppervlakte externe bergruimte 7 m²
Oppervlakte gebouwgebonden buitenruimte 19 m²
Indeling
Aantal bouwlagen 3
Aantal kamers 7 (waarvan 4 slaapkamers)
Locatie
Ligging In woonwijk
Tuin
Type Achtertuin
Hoofdtuin Ja
Oriëntering Zuiden
Heeft een achterom Ja
Tuin 2 - Type Achtertuin
Tuin 3 - Type Voortuin
Energieverbruik
Energielabel B
Uitrusting
Verwarmingssysteem Stadsverwarming
Badkamervoorzieningen Dubbele wastafel
Ligbad
Wastafelmeubel
Heeft kabel-tv Ja
Glasvezelaansluiting aanwezig Ja
Tuin aanwezig Ja
Heeft schuur/berging Ja
Heeft een dakraam Ja
Heeft zonwering Ja
Heeft zonnecollectoren Ja
Heeft ventilatie Ja
Kadastrale gegevens
Kadastrale aanduiding Tilburg AG 5417
Perceeloppervlakte 128 m²
Omvang Geheel perceel
Eigendomsituatie Eigen grond
Neem contact met mij op

Plattegronden

Brochure(s) en overige bijlagen